+ Lisa oma töö      

Otsid ehitajat "Renoveerimine" valdkonnast?

Parima pakkumise ja teostaja leidmiseks lisa oma töö.

Korteri kap. remont 83m2 Tartus

ID 54825

917 vaatamist

Prindi

  • check Pakkumiste tegemine
    kuni 20.10.2020
  • check Võitja valik kuni
    27.10.2020
  • 3 Töö teostamine
    ja hinnang
Hanke lõpp: T, 20. oktoober, 2020
Maakond: Tartumaa
Linn: Tartu
Muu asula: Raadi
Tööde algus: E, 19. oktoober, 2020 (Soovituslik)
Tööde lõpp: R, 01. jaanuar, 2021 (Soovituslik)
Ehitusmaterjalid: Töö tellija poolt
Soovin pakkumisi: Summa kogu projektile

Töö sisu

Tegemist vajab maja terve teine korrus ehk 83m2 korteri kap. remont.
Hetkeseisukorras on korter karkassini puhtaks lõhutud, vaja lammutada veel mõned vaheseinad.

Korteris saab olema 3 magamistuba, köök avatud elutoaga ning vannituba/wc ja leiliruum elektrikerisega.

TÖÖ SISU:
Vaja lammutada ning toestada mõned vaheseinad, ehitada uued vaheseinad, rihtida põrandad, paigaldada põrandalaud, ehitada metallkarkassil vaheseinad, täiteks vill ning seinte viimistluseks osaliselt puitlaudis, osaliselt kips, lakke puitvooder. Vedada korteri elektrijuhtmestik, paigaldada pistikupesad ning elektrikilp. Vedada korterisisene vee-ja äravoolutorustik kööki ning vannitoas wc-le ja dušile. Paigaldada välisuks ning siseuksed, lihvida ja õlivahatada põrandalauad, paigaldada põrandaliistud ning aknalauad, valgustid, viimistleda sisemised aknapaled, uksepaled, plaatida vannitoa ja leiliruumi põrand ning osad vannitoa seinad plaatida, osad kips+värv, leiliruumis paigaldada laudis, ehitada lava ning paigaldada ja ühendada elektrikeris. Paigaldada õhk-vesi soojuspump radikate süsteemiga.

Kuna töid on erinevast valdkonnast ning kogu remont võtab aega 2-3 kuud, siis on see ideaalne sügis või talve objekt 2 mehe brigaadile või andekale ühe mehe show`le. Võib teha pakkumise tunnihinna põhjal(võtta arvesse pika ja stabiilse objekti olemasolu) või teha komplekti hind (võttes arvesse et tööd tehakse jooksvalt ära ning ei teki vahele pause).

Võib pakkuda eritööde hindu

-kogu korteri elektritööd(juhtmestiku vedamine, kilp, pistikud, lülitid)
-maalritööd(kuna täpne maht ei ole teada, siis pakkuda oma m2 hinda)
-küttesüsteem(süsteemi müüks ja paigaldus või vaid paigaldus)
-torutööd
-vana fassaadilaudise värvimine80m2(vana värv harjaga lahti ning 2x värv peale)
-välistrepi keevitamine 2.9m kõrge 19 astet +1m platvorm


Hea koostöö puhul ühele asjalikule töömehele pakkuda aastaringselt stabiilset sissetulekut paindlike töötingimustega ning väheste komandeeringutega(baas Tartumaa).

Kui miskit kõnetas, siis olge lahked ja tehke pakkumine ning kirjutage lahti mida see sisaldab ning millal olete valmis alustama.

Pildid, video ja failid

Hanke korraldaja: ettevõte ID44458

Pakkumised

Pakkumisi kokku: 6

Ettevõte Summa Käibemaks Lisatud Vestlus
Kasutaja ikoon ID27299
Pakkuja profiil Väike nool paremale
16 200€ Ei ole KMKR Ei ole KMKR 17.10.2020 Vestlus (0)

Pakkumise kirjeldus:

Tere. Kindlasti ei ole aega alustada enne jaanuarit.
Kuna siin osapakkumised keelatud ja olen juba hoiatuse saanud, sisi teen ligikaudse pakkumise. Arvestatud siis 600 tunniga, 27.-eur tund. Muidugi nende kirjelduste järgi on raske öelda täpselt kuluvat aega, aga momendil siis arvestatud 3 kuuga. Kui läheb üle selle, siis tuleb eraldi kokkuleppida. Ar ... Rohkem

Kasutaja ikoon ID50767
Pakkuja profiil Väike nool paremale
15 000€ Ei ole KMKR Ei ole KMKR 18.10.2020 Vestlus (0)

Pakkumise kirjeldus:

Tere objektile saaks 2 ehitajat ja hiljem ka maalri
Lugupidamisega J.V

Kasutaja ikoon ID19121
Pakkuja profiil Väike nool paremale
9 600€ KM lisandub KM lisandub 20.10.2020 Vestlus (4)

Pakkumise kirjeldus:

Alustada saaks novembri alguses kahe mehega.

Kasutaja ikoon ID50979
Pakkuja profiil Väike nool paremale
9€ Ei ole KMKR Ei ole KMKR 20.10.2020 Vestlus (0)

Pakkumise kirjeldus:

Maalritööd 10eur.m2,krohvimine 8eur.m2.

Kasutaja ikoon ID57565
Pakkuja profiil Väike nool paremale
12 500€ Ikoon kell Sisaldab KM Sisaldab KM 20.10.2020 Vestlus (0)

Pakkumise kirjeldus:

Tegin näilise pakkumise.
Selle hinna sees sisaldab kõik sugu tööd.
Võimalus võtta kõik tööd enda peale ja leida tegijad valdkondadele, mida ise ei tee. Nt: õhksoojuspumba paigaldus.
Kui hind ei sobi võib ka kõik tööd eraldi tükitöö alusel kokku leppida ja tööd mida ei saa tükitööalusel teha, võimalik konkreetne tunnihind kokku lepp ... Rohkem

Kasutaja ikoon ID52284
Pakkuja profiil Väike nool paremale
18€ Sisaldab KM Sisaldab KM 20.10.2020 Vestlus (5)

Pakkumise kirjeldus:

Tere

Meiepoolne pakkumine Teile
Analoogsete töödega suured kogemused ja hetkel 1 selline objekt käsil.
Töid teostavad 2 meest ja lisaks leiame ka elektriku ja torumehe.
Hind on tunnihind, kohapeal üle vaadates saab ka suurusjärgus tüki kokku leppida:)

Lugupidamisega

Küsimused hanke korraldajale

Küsimus: private ID19121   18.10.2020 12:42
Tere,
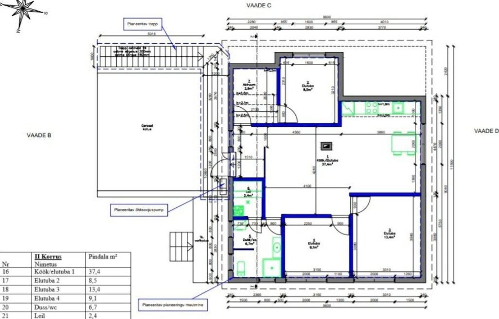
kas trepi ja garaaži katusel asuva käigutee kohta on projekt (eskiis) olemas?
Vesi ja kanal on korteri vastasnurkades; millistes kohtades saab ehitada püstikud, mis läbivad alumist elamist?

Teavita reeglite rikkumisest

Korraldaja vastus: 18.10.2020 12:52

Tere, lisatud teise korruse plaan on kõige informatiivsem trepilahenduse kohta. Kanalisatsioonipüstak ja veepüstak tuleb üles selles kohas kus eskiisil on wc märgitud ning lisaks vesi peauksest paar meetrit vasakul.

Teavita reeglite rikkumisest

Lisa küsimus

Lisa küsimus

Minu pakkumine

Reeglid

Pakkumise kirjelduse väli on mõeldud pakkumise detailsemaks lahti kirjutamiseks. Pikema teksti mugavaks sisestamiseks klikkige kasti paremal ülaservas oleval ikoonil.
Pakkumist tehes on keelatud postitada enda kontaktandmeid (nimi, telefon, aadress jne). Me jälgime ja analüüsime pakkumisi, et vältida pettuseid ja reeglite rikkumisi.
Rikkumise puhul kasutajakonto blokeeritakse.

 

Teisi töid samas valdkonnas

Valdkonnas "Renoveerimine" on 2 aktiivset tööd

no-img Pilt puudub

Renoveerimisprojekti koostamine

Asukoht: Läänemaa, Matsalu
Aega jäänud: 2p 15h
Tehtud pakkumisi: 4

Saunamaja renoveerimine väljastpoolt

Asukoht: Ida-Virumaa, Kiviõli
Aega jäänud: 15h 20 min
Tehtud pakkumisi: 0

Vanemad teated:

Vaata kõiki

Sellel veebilehel kasutatakse küpsiseid. Kasutamist jätkates nõustute küpsiste kasutamisega.

Sulge
 
Minu pakkumine

Reeglid

Pakkumise kirjelduse väli on mõeldud pakkumise detailsemaks lahti kirjutamiseks. Pikema teksti mugavaks sisestamiseks klikkige kasti paremal ülaservas oleval ikoonil.
Pakkumist tehes on keelatud postitada enda kontaktandmeid (nimi, telefon, aadress jne). Me jälgime ja analüüsime pakkumisi, et vältida pettuseid ja reeglite rikkumisi.
Rikkumise puhul kasutajakonto blokeeritakse.