+ Lisa oma töö      

Otsid ehitajat "Siseviimistlustööd" valdkonnast?

Parima pakkumise ja teostaja leidmiseks lisa oma töö.

IKEA köögimööbli paigaldus

ID 54677

1181 vaatamist

Prindi

  • check Pakkumiste tegemine
    kuni 13.10.2020
  • check Võitja valik kuni
    20.10.2020
  • 3 Töö teostamine
    ja hinnang
Hanke lõpp: T, 13. oktoober, 2020
Maakond: Harjumaa
Muu asula: Peetri
Tööde algus: E, 12. oktoober, 2020 (Soovituslik)
Tööde lõpp: P, 25. oktoober, 2020 (Soovituslik)
Ehitusmaterjalid: Töö tellija poolt
Soovin pakkumisi: Summa kogu projektile

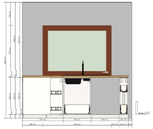
Töö sisu

Köögimööbel ja tehnika asuvad juba toas ning midagi vedama ei pea. Köögikapid on kokku pandud juba meie enda poolt.

Vaja on:

1) Alumised kapid kinnitada IKEA siiniga seina külge (pikem sein on kipssein, lühem kivisein), ülemised kapid vaja paigaldada kipsseina (vaja spetsiaalseid kipsseina tüübleid, need tuleks paigaldajal endal hankida)
2) Paigaldada tööpind (https://www.ikea.com/fi/fi/p/karlby-tyoetaso-tammi-viilu-70335189/) kahes osas
3) Tööpinna sisse lõigata augud pliidiplaadi ja valamu+segisti jaoks
4) Integreeritud tehnika ühendamine (elektri- ja sanitaartööd) ja paigaldus: nõudepesumasin, ahi, pliidiplaat, valamu, segisti, õhupuhasti (peab vaatama, kas otse seinast tulevate ühendustega on võimalik ühendada, pistikupesa on lihtsam variant)
5) Köögi suurus 228 x 308 cm

Eelistan garantiiga töid.

Pildid, video ja failid

Hanke korraldaja: eraisik ID53141

Pakkumised

Pakkumisi kokku: 4

Ettevõte Summa Käibemaks Lisatud Vestlus
Kasutaja ikoon ID30805
Pakkuja profiil Väike nool paremale
700€ Ei ole KMKR Ei ole KMKR 12.10.2020 Vestlus (0)

Pakkumise kirjeldus:

Tere , hind soovitule. pakkumine koos tüüblitega.

Kasutaja ikoon ID36489
Pakkuja profiil Väike nool paremale
650€ Ei ole KMKR Ei ole KMKR 12.10.2020 Vestlus (0)
Kasutaja ikoon ID47773
Pakkuja profiil Väike nool paremale
600€ Ei ole KMKR Ei ole KMKR 13.10.2020 Vestlus (0)

Pakkumise kirjeldus:

Pakkumine on tehtud IKEA köögi paigaldusele vastavalt hankes kirjeldatule, KÄIBEMAKSU ei lisandu. Eeldame, et kapid-riiulid on paigalduseks komplekteeritud ning tehnika ühendamiseks vajalikud el.ühendused+toruühendused, ventilatsiooni-viigud on paigaldatavast esemest vähemalt 1 m kaugusel olemas. Pakkumine sisaldab materjalidest silikooni ja kipsseina ... Rohkem

Kasutaja ikoon ID49920
Pakkuja profiil Väike nool paremale
250€ Sisaldab KM Sisaldab KM 13.10.2020 Vestlus (0)

Pakkumise kirjeldus:

Tere. Paigalduse hind. Teostada saaks K-R õhtu poole, L-P terve päev.
Terv.

Küsimused hanke korraldajale

Küsimus: private ID50693   10.10.2020 19:18
Kas kipsseina taga on ka tugevuseks pandud osa plaat vms ülemiste kappide jaoks?

Teavita reeglite rikkumisest

Korraldaja vastus: 10.10.2020 22:38

Tere! Minu hinnangul mitte. Elutoas on samuti kipssein ning sealsete seinakappidega kasutasime nt ankruid - keeras kipsplaadi taga mingi osa liigendiga risti seinaga ja sinna sisse läks kruvi. Ilmselt sarnane süsteem tuleb ka köögis teha, need kapid püsivad väga kindlalt seinas.

Teavita reeglite rikkumisest

Lisa küsimus

Lisa küsimus

Minu pakkumine

Reeglid

Pakkumise kirjelduse väli on mõeldud pakkumise detailsemaks lahti kirjutamiseks. Pikema teksti mugavaks sisestamiseks klikkige kasti paremal ülaservas oleval ikoonil.
Pakkumist tehes on keelatud postitada enda kontaktandmeid (nimi, telefon, aadress jne). Me jälgime ja analüüsime pakkumisi, et vältida pettuseid ja reeglite rikkumisi.
Rikkumise puhul kasutajakonto blokeeritakse.

 

Teisi töid samas valdkonnas

Valdkonnas "Siseviimistlustööd" on 23 aktiivset tööd

Seinte värvimine

Asukoht: Harjumaa, Tallinn
Aega jäänud: 3h 12 min
Tehtud pakkumisi: 7

Seinte pahteldus ja värvimine

Asukoht: Harjumaa, Türisalu
Aega jäänud: 3p 3h
Tehtud pakkumisi: 7

Vanemad teated:

Vaata kõiki

Sellel veebilehel kasutatakse küpsiseid. Kasutamist jätkates nõustute küpsiste kasutamisega.

Sulge
 
Minu pakkumine

Reeglid

Pakkumise kirjelduse väli on mõeldud pakkumise detailsemaks lahti kirjutamiseks. Pikema teksti mugavaks sisestamiseks klikkige kasti paremal ülaservas oleval ikoonil.
Pakkumist tehes on keelatud postitada enda kontaktandmeid (nimi, telefon, aadress jne). Me jälgime ja analüüsime pakkumisi, et vältida pettuseid ja reeglite rikkumisi.
Rikkumise puhul kasutajakonto blokeeritakse.