+ Lisa oma töö      

Otsid ehitajat "Sanitaartehnilised tööd" valdkonnast?

Parima pakkumise ja teostaja leidmiseks lisa oma töö.

Hange on lõppenud!

Võitjaks osutus kasutaja ID 50618

Korraldaja hinnang tehtud tööle

5.0
05.11.2020
Töökiirus: 12345
Kvaliteet: 12345
Hind: 12345

Mehed tulid täpselt kokkulepitud kuupäeval kohale ja tegid kiiresti töö ära. - Taniel P.

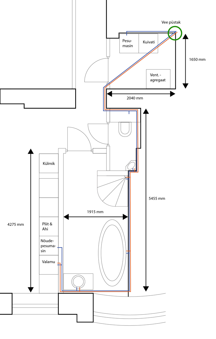
Tarbevee ja äravoolu vedamine renoveeritavas korteris

ID 54632

1258 vaatamist

Prindi

  • check Pakkumiste tegemine
    kuni 22.10.2020
  • check Võitja valik kuni
    29.10.2020
  • 3 Töö teostamine
    ja hinnang
Hanke lõpp: N, 22. oktoober, 2020
Maakond: Harjumaa
Linn: Tallinn
Tööde algus: E, 26. oktoober, 2020 (Soovituslik)
Tööde lõpp: P, 01. november, 2020 (Soovituslik)
Ehitusmaterjalid: Töö tegija poolt
Soovin pakkumisi: Summa kogu projektile

Töö sisu

Vee torustiku vedamine
- Uute veemõõtjate (ei ole kaugelt loetavad) paigaldamine püstaku juurde
- Külmavee kraan pesumasina juurde seinale
- Külmavee kraan WC poti juurde
- Sooja- ja külmavee põlvega kraanid WC kraanikausi alla seinale
Kraanikausiga ei ole vaja ühendada.
- Sooja- ja külmavee ühenduskohad dušinurga seinale.
- Sooja- ja külmavee ühenduskohad seinale vanni kraani jaoks.
- Sooja- ja külmavee põlvega kraanid vannitoa kraanikausi alla seinale
- Sooja- ja külmavee põlvega kraanid köögi kraani alla.
- Külmavee kraan nõudepesumasina juurde

Äravoolu vedamine majapidamisruumis
- Seinale paigaldada pesumasina äravool
- Seinale paigaldada kuivati kondensaadi äravool (haisulukuga)
- Seinale paigaldada vent. agregaadi kondensaadi äravool (haisulukuga)

Äravoolu vedamine köögis ja vannitoas
- Paigaldada WC seinale äravoolu ava kraanikausi jaoks. (Kraanikausi paigaldamine jääb tellimusest välja)
- Paigaldada vannitoa põrandale äravoolu ava duši aluse jaoks. Äravool valatakse uue põranda sisse. (Duši aluse paigaldamine jääb tellimusest välja)
- Paigaldada vannitoa põrandale äravoolu ava vannile. (Vanni paigaldamine jääb tellimusest välja)
- Paigaldada vannitoa seinale äravoolu ava kraanikausi jaoks. (Kraanikausi paigaldamine jääb tellimusest välja)
- Paigaldada köögi seinale kraanikausi äravoolu ava. (Kraanikausi paigaldamine jääb tellimusest välja)
- Paigaldada köögi seinale nõudepesumasina äravoolu ava.

Pakkumine peab sisaldama tööde teostamiseks vajalike materjalide hinda.

Pildid, video ja failid

Hanke korraldaja: eraisik ID57396

Pakkumised

Pakkumisi kokku: 2

Ettevõte Summa Käibemaks Lisatud Vestlus
Kasutaja ikoon ID50618
Pakkuja profiil Väike nool paremale
650€ KM lisandub KM lisandub 19.10.2020 Vestlus (3)

Pakkumise kirjeldus:

Hind sisaldab:
- tarbevee torustiku, liitmike kinnitusi ja paigaldustöid
- kanalisatsiooni torustiku, liitmike, kinnitusi ja paigaldustöid
- transpordikulusid
- töödele garantii

Kasutaja ikoon ID1572
Pakkuja profiil Väike nool paremale
600€ KM lisandub KM lisandub 22.10.2020 Vestlus (0)

Pakkumise kirjeldus:

Hind hankes kirjeldatud vee- ja kanalisatsioonitorustiku ehituseks. Sisaldab materjale. Garantii vastavalt seadusele. Saame alustada koheselt.

Küsimused hanke korraldajale

Hanke korraldajale ei ole veel küsimusi esitatud.

Lisa küsimus

Lisa küsimus

Minu pakkumine

Reeglid

Pakkumise kirjelduse väli on mõeldud pakkumise detailsemaks lahti kirjutamiseks. Pikema teksti mugavaks sisestamiseks klikkige kasti paremal ülaservas oleval ikoonil.
Pakkumist tehes on keelatud postitada enda kontaktandmeid (nimi, telefon, aadress jne). Me jälgime ja analüüsime pakkumisi, et vältida pettuseid ja reeglite rikkumisi.
Rikkumise puhul kasutajakonto blokeeritakse.

 

Vanemad teated:

Vaata kõiki

Sellel veebilehel kasutatakse küpsiseid. Kasutamist jätkates nõustute küpsiste kasutamisega.

Sulge
 
Minu pakkumine

Reeglid

Pakkumise kirjelduse väli on mõeldud pakkumise detailsemaks lahti kirjutamiseks. Pikema teksti mugavaks sisestamiseks klikkige kasti paremal ülaservas oleval ikoonil.
Pakkumist tehes on keelatud postitada enda kontaktandmeid (nimi, telefon, aadress jne). Me jälgime ja analüüsime pakkumisi, et vältida pettuseid ja reeglite rikkumisi.
Rikkumise puhul kasutajakonto blokeeritakse.