+ Lisa oma töö      

Otsid ehitajat "Betoonitööd" valdkonnast?

Parima pakkumise ja teostaja leidmiseks lisa oma töö.

Eramu vundamentide ja sissesõidu tee ehitus.

ID 54492

864 vaatamist

Prindi

  • check Pakkumiste tegemine
    kuni 10.10.2020
  • check Võitja valik kuni
    17.10.2020
  • 3 Töö teostamine
    ja hinnang
Hanke lõpp: L, 10. oktoober, 2020
Maakond: Läänemaa
Linn: Haapsalu
Muu asula: Paralepa
Tööde algus: N, 15. oktoober, 2020 (Soovituslik)
Tööde lõpp: N, 19. november, 2020 (Soovituslik)
Ehitusmaterjalid: Töö tegija poolt
Soovin pakkumisi: Tüki- või ühikuhinda

Töö sisu

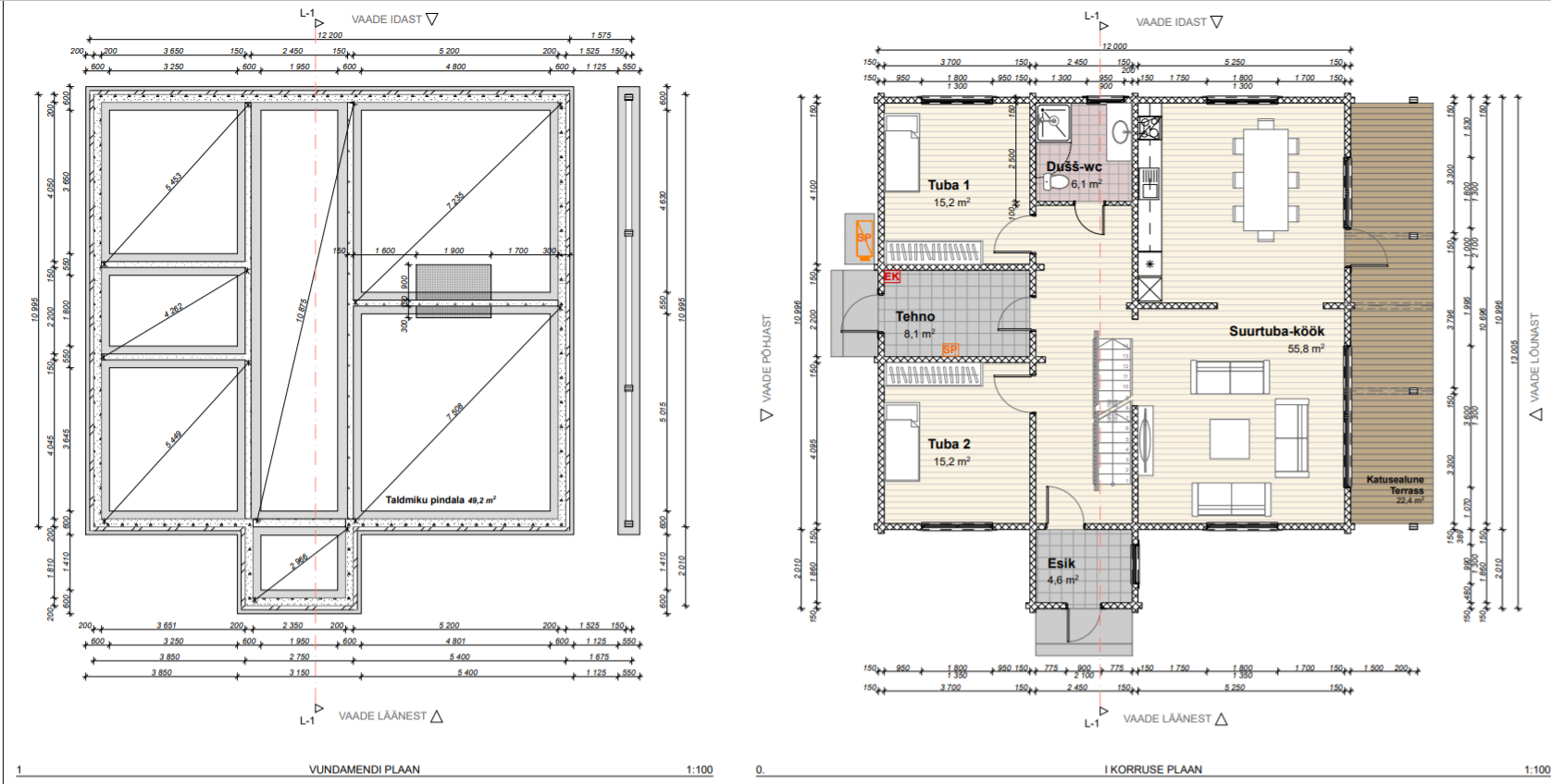
Asukoht Paralepa, Lääne - Nigula vald.

1) Kinnistule tee rajamine tihendatud aluseni. Pinnase väljakaeve maht ca 100 m3.

2) Elumaja lintvundamendi ehitus. Pinnase, kändude ja juurikate väljakaeve maht ca 100m3.

3) Elumaja plaatvundamendi ehitus. 200mm EPS paigaldus koos põrandasse minevate veetorude ja kanalisatsiooni paigaldusega. Põrandaküttetorude paigaldus koos kollektoritega.
Betoonivalu 100mm ja betoonplaadi lihvimine.

4) Sauna lint- ja plaatvundamendi ehitus. Pinnase, kändude ja juurikate väljakaeve ja äraveo maht ca 30m3. 200mm EPS paigaldus koos kanalisatsiooni ja veetorude paigaldusega.
Betoonivalu 100mm ja betoonplaadi lihvimine.

5) Suveköögi postvundamendi ehitus. 200se läbimõõduga betoneeritud ja armeeritud postide rajamine, 12tk.

Palun tööde maksumus tuua eraldi, punktide kaupa.

Pildid, video ja failid

Hanke korraldaja: eraisik ID57418

Pakkumised

Pakkumisi kokku: 2

Ettevõte Summa Käibemaks Lisatud Vestlus
Kasutaja ikoon ID55134
Pakkuja profiil Väike nool paremale
194€ Sisaldab KM Sisaldab KM 08.10.2020 Vestlus (0)
Kasutaja ikoon ID53687
Pakkuja profiil Väike nool paremale
31 355€ KM lisandub KM lisandub 10.10.2020 Vestlus (0)

Pakkumise kirjeldus:

1. Kinnistule tee rajamine (olemasoleva pinnase kaeve, killustikust fr 16/32 alus h=100mm, kruusast fr 0/32 pealiskiht , h=10cm) , väljakaeva maht 100m³ : 3 822.-
2. Vundament (objekti märkimine, vundamendi kaeve, aluse ehitus fr 16-32 h=100m, 600x200 taldmiku ehitus armeeritud 8mm betoonist C25/30, vundamendi seinad kergplokk 5 viis rida): 8757.-
3. Er ... Rohkem

Küsimused hanke korraldajale

Hanke korraldajale ei ole veel küsimusi esitatud.

Lisa küsimus

Lisa küsimus

Minu pakkumine

Reeglid

Pakkumise kirjelduse väli on mõeldud pakkumise detailsemaks lahti kirjutamiseks. Pikema teksti mugavaks sisestamiseks klikkige kasti paremal ülaservas oleval ikoonil.
Pakkumist tehes on keelatud postitada enda kontaktandmeid (nimi, telefon, aadress jne). Me jälgime ja analüüsime pakkumisi, et vältida pettuseid ja reeglite rikkumisi.
Rikkumise puhul kasutajakonto blokeeritakse.

 

Teisi töid samas valdkonnas

Valdkonnas "Betoonitööd" on 6 aktiivset tööd

Betoonist platsi valamine väljas.

Asukoht: Harjumaa, Luige
Aega jäänud: 12h 7 min
Tehtud pakkumisi: 4

Betoonpõranda valu

Asukoht: Harjumaa, Jõelähtme
Aega jäänud: 2p 12h
Tehtud pakkumisi: 3

Vanemad teated:

Vaata kõiki

Sellel veebilehel kasutatakse küpsiseid. Kasutamist jätkates nõustute küpsiste kasutamisega.

Sulge
 
Minu pakkumine

Reeglid

Pakkumise kirjelduse väli on mõeldud pakkumise detailsemaks lahti kirjutamiseks. Pikema teksti mugavaks sisestamiseks klikkige kasti paremal ülaservas oleval ikoonil.
Pakkumist tehes on keelatud postitada enda kontaktandmeid (nimi, telefon, aadress jne). Me jälgime ja analüüsime pakkumisi, et vältida pettuseid ja reeglite rikkumisi.
Rikkumise puhul kasutajakonto blokeeritakse.