+ Lisa oma töö      

Otsid ehitajat "Vundamenditööd" valdkonnast?

Parima pakkumise ja teostaja leidmiseks lisa oma töö.

Eramaja vundament

ID 54445

1103 vaatamist

Prindi

  • check Pakkumiste tegemine
    kuni 10.10.2020
  • check Võitja valik kuni
    17.10.2020
  • 3 Töö teostamine
    ja hinnang
Hanke lõpp: L, 10. oktoober, 2020
Maakond: Tartumaa
Linn: Tartu
Tööde algus: E, 16. november, 2020 (Soovituslik)
Tööde lõpp: E, 30. november, 2020 (Soovituslik)
Ehitusmaterjalid: Töö tegija poolt
Soovin pakkumisi: Summa kogu projektile

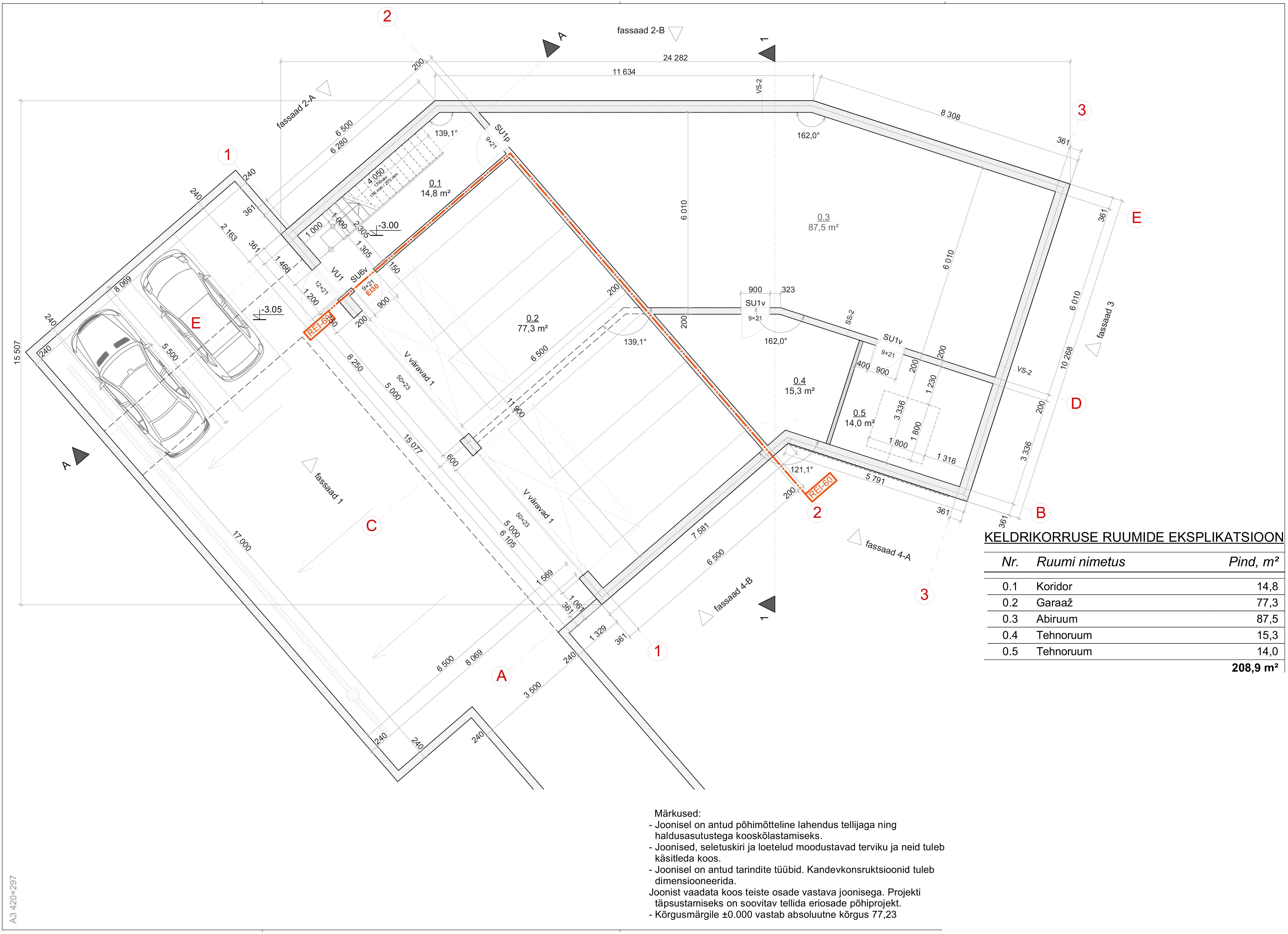
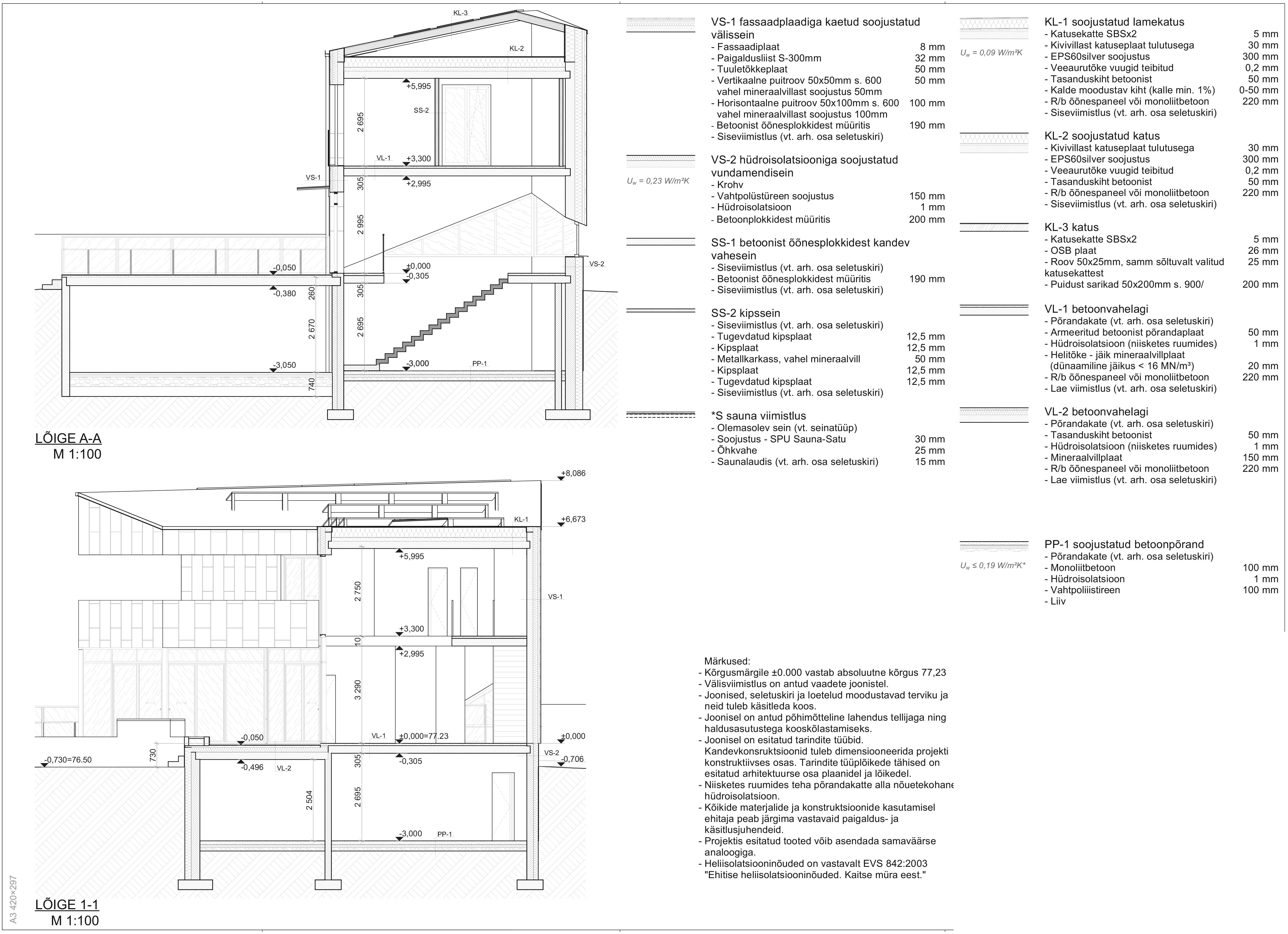
Töö sisu

Lintvundamendi ehitus.
Majaalune vundament ja tugimüüride vundament.

Pildid, video ja failid

Hanke korraldaja: ettevõte ID36409

Pakkumised

Pakkumisi kokku: 1

Ettevõte Summa Käibemaks Lisatud Vestlus
Kasutaja ikoon ID57417
Pakkuja profiil Väike nool paremale
12 500€ KM lisandub KM lisandub 05.10.2020 Vestlus (0)

Pakkumise kirjeldus:

Pakkumine koostatud hanke informatsiooni, jooniste ja tellija selgituste põhjal

Lugupidamisega

Küsimused hanke korraldajale

Küsimus: private ID57417   04.10.2020 21:31
Tere,
Paluks lintvundamendi spetsifikatsiooni . Ristlõike joonise ja mahu andmetega saaks ka hinna koostada.

Lugupidamisega

Teavita reeglite rikkumisest

Korraldaja vastus: 05.10.2020 20:45

Vundamendil plaani ei ole.
Laius on 60cm, kõrgus 30cm ja armeering on 10mm armatuur raud, 3 alla ja üles.
Peale läheb kolumbia kivi (240) 3 rida.
Lisasin täiendava pildi, vundamenti soovime hetkel ainult majaosale.

Teavita reeglite rikkumisest

Küsimus: private ID57417   05.10.2020 21:14
Kas soovite pakkumist koos kolumbia ladumisega?

Teavita reeglite rikkumisest

Korraldaja vastus: 05.10.2020 21:20

Jah ja täisvalamisega

Teavita reeglite rikkumisest

Lisa küsimus

Lisa küsimus

Minu pakkumine

Reeglid

Pakkumise kirjelduse väli on mõeldud pakkumise detailsemaks lahti kirjutamiseks. Pikema teksti mugavaks sisestamiseks klikkige kasti paremal ülaservas oleval ikoonil.
Pakkumist tehes on keelatud postitada enda kontaktandmeid (nimi, telefon, aadress jne). Me jälgime ja analüüsime pakkumisi, et vältida pettuseid ja reeglite rikkumisi.
Rikkumise puhul kasutajakonto blokeeritakse.

 

Vanemad teated:

Vaata kõiki

Sellel veebilehel kasutatakse küpsiseid. Kasutamist jätkates nõustute küpsiste kasutamisega.

Sulge
 
Minu pakkumine

Reeglid

Pakkumise kirjelduse väli on mõeldud pakkumise detailsemaks lahti kirjutamiseks. Pikema teksti mugavaks sisestamiseks klikkige kasti paremal ülaservas oleval ikoonil.
Pakkumist tehes on keelatud postitada enda kontaktandmeid (nimi, telefon, aadress jne). Me jälgime ja analüüsime pakkumisi, et vältida pettuseid ja reeglite rikkumisi.
Rikkumise puhul kasutajakonto blokeeritakse.