+ Lisa oma töö      

Otsid ehitajat "Renoveerimine" valdkonnast?

Parima pakkumise ja teostaja leidmiseks lisa oma töö.

2-toalise korteri remont Tartus

ID 54388

939 vaatamist

Prindi

  • check Pakkumiste tegemine
    kuni 02.10.2020
  • check Võitja valik kuni
    09.10.2020
  • 3 Töö teostamine
    ja hinnang
Hanke lõpp: R, 2. oktoober, 2020
Maakond: Tartumaa
Linn: Tartu
Tööde algus: E, 05. oktoober, 2020 (Soovituslik)
Tööde lõpp: R, 30. oktoober, 2020 (Soovituslik)
Ehitusmaterjalid: Töö tellija poolt
Soovin pakkumisi: Summa kogu projektile

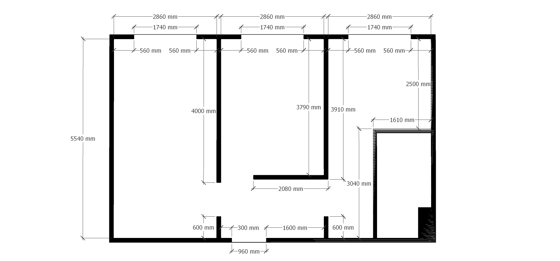
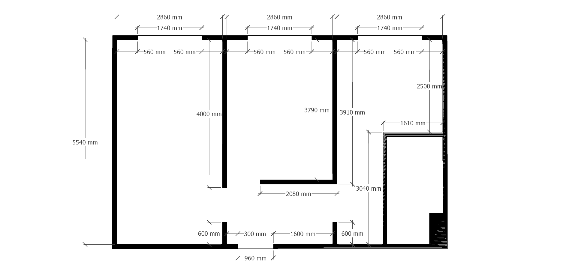
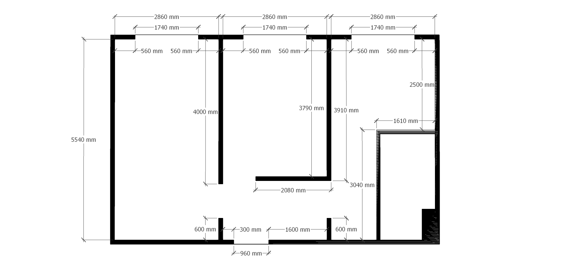
Töö sisu

Kahetoalise korteri tellitavad renoveerimistööd
Korteri üldandmed:

Korrus: 4
Suur tuba: 16 m2
Magamistuba: 11 m2
Esik: 5 m2
Koridor: 3.6 m2
Köök: 7 m2
Vannituba: 5 m2

Teostatavad tööd:
1. Vannitoa lammutus ja ehitusjäätmete utiliseerimine.
Hetkel olukord: vannituba ja WC on eraldi ruumina. Seinad ja lagi betoonist. Vann, valamu ja WC pott sees.
Teostatav töö: vaja praegune sanitaarsõlm 3 x 1,5 m välja lõhkuda ja jäätmed utiliseerida.

2. Elektritööd.
Hetkel olukord: vanad elektrijuhtmed on veetud betoonseinte seest. Jaotuskilp on korteri esiku seinas teisel pool trepikojas.
Teostatav töö: kogu elektrisüsteemi vahetus. Elektrikilbi paigaldus esiku seinale. Uute elektrijuhtmete paigaldus seinte ja lagede seest, lülitite ja pistikupesade dooside freesimine, pistikupesade ja lülitite ühendamine. Sidekaabli paigaldus suurde tuppa.
Lüliteid: 6
Pistikupesi: 15

3. Veetorutööd.
Hetkel olukord: korteris on 2 sooja- ja 2 külmavee liitumissõlme. Lisaks üks siugtoru.
Teostatav töö: vee liitumissõlmedel 4 tk on vaja teha uued liitmikud ja uue siugtoru paigaldus.

4. Vannitoa ehitus:
Uue vannita ehitus 3 x 1,5 m - karkass. WC-pott seinapealne, renntrapp, hüdroisolatsioon, elektriline põrandaküte, kraanikauss – vesi peale, kanal äravoolule, pesumasin – vesi peale, kanal äravoolule. Plaatimine - põrand ja seinad, lagi värvida, ventilatsioonipaigaldus. Uus veetorustik aluplex, ukse paigaldus. Ehitaja saab kaasa rääkida parima lahenduse leidmisel.
Põrandaplaat: 20x20
Seinaplaat: 20x60

5. Põrandate plaatimine esik, koridor ja köök. 15,6 m2
Hetkel olukord: põrand on saepuruplaadist.
Teostatavad tööd: vana põranda välja lõhkumine ja utiliseerimine. Põrandavalu ja plaatimine. Põrand jääb ühte tasapinda.
Põrandaplaat: 42x42

6. Seinte, lagede, aknapalede ja ukseavade viimistlus.
Hetkel olukord: vana tapeet on eemaldatud kuni betoonini. Köögis seinavärv määrdunud. Uued aknad koos paigladusega on tellitud tellija poolt.
Teostatavad tööd: Suur tuba, magamistuba, esik, koridor ja köögis vaja seinad ja laed vajadusel puhastsada vanast krohvist ning pahteldada ja sirgeks lihvida tasemele, et saaks alustada seinte ja lagede kruntimisega. Kruntida ja värvida pole vaja. Selle teostab tellija.
Ukseavasid 4 tk. Nurgad tugevdada ja viimistleda kuni pahteldamise ja lihvimiseni. Seina kõrgus 2,6 m.
Aknaavasid 3 tk 1,8 m x 1,2 m
Ukseavad: 0,9 x 2,1 - 2 tk; 1 x 2,1 - 1tk; 1,2 x 2,1 - 1 tk
Sein: 130 m2
Lagi: 47,6 m2

Pildid, video ja failid

Hanke korraldaja: ettevõte ID57145

Pakkumised

Pakkumisi kokku: 5

Ettevõte Summa Käibemaks Lisatud Vestlus
Kasutaja ikoon ID44249
Pakkuja profiil Väike nool paremale
15 000€ KM lisandub KM lisandub 23.09.2020 Vestlus (0)
Kasutaja ikoon ID52335
Pakkuja profiil Väike nool paremale
17 000€ KM lisandub KM lisandub 23.09.2020 Vestlus (0)

Pakkumise kirjeldus:

Hind sisaldab loetelus olevaid töid ja prahi utiliseerimist.
Töid teostavad spetsialiseerunud ehitajad.

Lugupidamisega

Kasutaja ikoon ID37573
Pakkuja profiil Väike nool paremale
11 500€ KM lisandub KM lisandub 27.09.2020 Vestlus (0)

Pakkumise kirjeldus:

Tere!

Pakkumine vastavalt Teie kirjeldusele.

Lugupidamisega,

Kasutaja ikoon ID57417
Pakkuja profiil Väike nool paremale
13 200€ KM lisandub KM lisandub 29.09.2020 Vestlus (0)

Pakkumise kirjeldus:

Pakkumine koostatud tuginedes tellija kirjalikule informatsioonile ning piltidele ja joonistele.
Töid teostavad spetsialistid. Elektrik ja santehnik on sertifitseeritud.
Oskuste ja referentsidega saab tutvuda ettevõtte kodulehelt.

Lugupidamisega

Kasutaja ikoon ID50253
Pakkuja profiil Väike nool paremale
12 500€ KM lisandub KM lisandub 01.10.2020 Vestlus (6)

Pakkumise kirjeldus:

Ehitustööde kogemus üle 10 a töid teeme ametlikult, ehitustööde garantii 2 aastat

Küsimused hanke korraldajale

Hanke korraldajale ei ole veel küsimusi esitatud.

Lisa küsimus

Lisa küsimus

Minu pakkumine

Reeglid

Pakkumise kirjelduse väli on mõeldud pakkumise detailsemaks lahti kirjutamiseks. Pikema teksti mugavaks sisestamiseks klikkige kasti paremal ülaservas oleval ikoonil.
Pakkumist tehes on keelatud postitada enda kontaktandmeid (nimi, telefon, aadress jne). Me jälgime ja analüüsime pakkumisi, et vältida pettuseid ja reeglite rikkumisi.
Rikkumise puhul kasutajakonto blokeeritakse.

 

Teisi töid samas valdkonnas

Valdkonnas "Renoveerimine" on 2 aktiivset tööd

no-img Pilt puudub

Renoveerimisprojekti koostamine

Asukoht: Läänemaa, Matsalu
Aega jäänud: 2p 16h
Tehtud pakkumisi: 4

Saunamaja renoveerimine väljastpoolt

Asukoht: Ida-Virumaa, Kiviõli
Aega jäänud: 16h 37 min
Tehtud pakkumisi: 0

Vanemad teated:

Vaata kõiki

Sellel veebilehel kasutatakse küpsiseid. Kasutamist jätkates nõustute küpsiste kasutamisega.

Sulge
 
Minu pakkumine

Reeglid

Pakkumise kirjelduse väli on mõeldud pakkumise detailsemaks lahti kirjutamiseks. Pikema teksti mugavaks sisestamiseks klikkige kasti paremal ülaservas oleval ikoonil.
Pakkumist tehes on keelatud postitada enda kontaktandmeid (nimi, telefon, aadress jne). Me jälgime ja analüüsime pakkumisi, et vältida pettuseid ja reeglite rikkumisi.
Rikkumise puhul kasutajakonto blokeeritakse.