+ Lisa oma töö      

Otsid ehitajat "Küttesüsteemid" valdkonnast?

Parima pakkumise ja teostaja leidmiseks lisa oma töö.

Hange on lõppenud!

Võitjaks osutus kasutaja ID 56531

Korraldaja hinnang tehtud tööle

5.0
30.09.2020
Töökiirus: 12345
Kvaliteet: 12345
Hind: 12345

Väga kiiresti, professionaalselt ning hästi tehtud töö, mis tehti isegi odavamalt kui kokku lepitud algselt. Väga väga positiivne kogemus ning kindlasti kasutan selle firma abi jälle kui vaja. Aitäh veelkord - Kirret K.

Kahekordse väikeeramu (ca 160m2 eluruume) + täiskelder gaasikatlal baseeruva keskküttesüsteemi väljatöötamine.

ID 54324

970 vaatamist

Prindi

  • check Pakkumiste tegemine
    kuni 27.09.2020
  • check Võitja valik kuni
    27.09.2020
  • 3 Töö teostamine
    ja hinnang
Hanke lõpp: P, 27. september, 2020
Maakond: Tartumaa
Linn: Tartu
Tööde algus: L, 19. september, 2020 (Soovituslik)
Tööde lõpp: R, 16. oktoober, 2020 (Soovituslik)
Ehitusmaterjalid: Töö tellija poolt
Soovin pakkumisi: Summa kogu projektile

Töö sisu

Kahekordse väikeeramu (ca 160m2 eluruume) + täiskelder gaasikatlal baseeruva keskküttesüsteemi väljatöötamine.

Hetkel on 70ndatel ehitatud kivimaja (väljast krohvitud, hetkel veel penoga väljast soojendatud pole kuid vast järgmise paari aasta jooksul saab) kapitaalremondis kuhu varsti paigaldatakse gaasikatel. Selle hanke eesmärgiks ongi siis välja mõelda parim lahendus, kuidas mõlemad korrused omavahel tööle panna koos natukese automaatikaga. Projektile kooskõlastusi vms tarvis ei ole.

Piisab lihtsast projektist koos spetsifikatsiooni ja põhimõttejoonisega, kus on välja toodud vajalikud komponendid, nende dimensioneering ning süsteemi joonised.

Natuke täpsemalt ka siis:

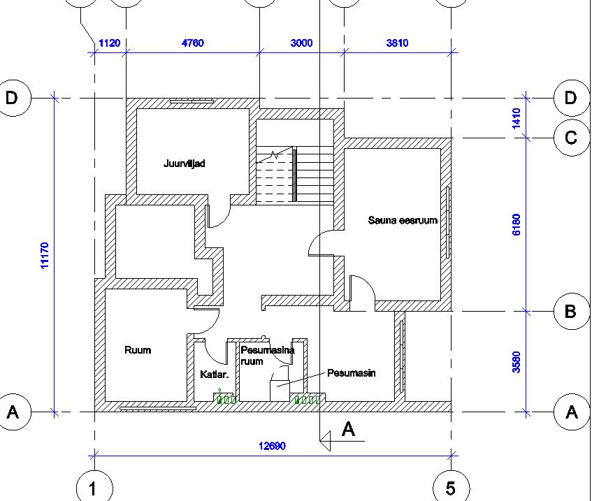
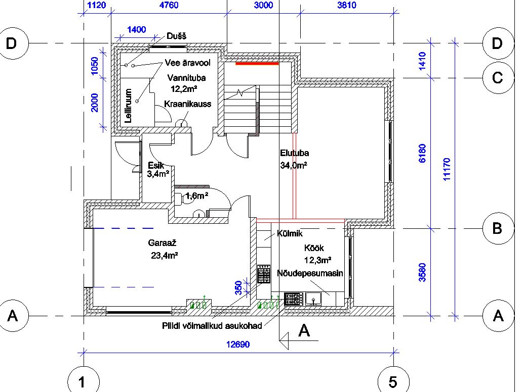
Esimesel korrusel oleks ainult põrandaküte, välja arvatud 1 radiaator mis jääb keldrisse minevasse trepikoja osasse (ustega on see esimesest korrusest ja keldrist eraldatud).

Teisele korrusele tuleksid enamuses radiaatorid (märgitud punasega), välja arvatud 2. korruse vannituba kus oleks põrandaküte.

Mingit nuti- või äpivarianti ei ole vaja, küll aga oleks hea kui saaks maja tsoonideks jagada nii, et igas tsoonis saab eraldi temperatuuri reguleerida, seinalt siis.

Tsoonid oleks:

Esimesel korrusel:
Tsoon 1 – Vannituba
Tsoon 2 – Kogu ülejäänud korrus (välja arvatud garaas kuhu hetkel ei tule kütet)

Teisel korrusel:
Tsoon 3 – Vannituba
Tsoon 4 – Külaliste tuba
Tsoon 5 – Kabinet + Koridorid
Tsoon 6 - Magamistuba 19.3m2
Tsoon 7 - Tuba 10m2 + Magamistuba 12,2m2

Igas tsoonis peaks saama määrata, et näiteks kella 10st õhtul läheb nende tsoonide temperatuur madalamaks ning siis kella 6st hommikul uuesti tõuseb.

Lisan ka, et parim koht vist küttetorusid korruste vahel liigutada on kahe korstna vahel, ehk siis alates pesumasin ruumist keldrikorrusel. Ning 1. korruse põrandakütte kollektor võiks ka äkki sinna seina jääda, garaasis siis. Kuid kõik muud ideed on teretulnud.

Saadan hanke võitjale korruseplaanid ka dwg failidena.

Pildid, video ja failid

Hanke korraldaja: eraisik ID57225

Pakkumised

Pakkumisi kokku: 1

Ettevõte Summa Käibemaks Lisatud Vestlus
Kasutaja ikoon ID56531
Pakkuja profiil Väike nool paremale
420€ Sisaldab KM Sisaldab KM 25.09.2020 Vestlus (0)

Pakkumise kirjeldus:

1. Põrandkütte joonised (torude-, radiaatoride- ja armatuuri valik)
2. Radiaatorkütte joonised(torude-, radiaatoride- ja armatuuri valik)
3. Spetsifikatsioonid
4. Soojussõlme- ja segamissõlme skeemid.

Gaasiga liitumine, suitsugaaside ärajuhtimise ja värske õhu juurdevoolu projekteerimine ei ole hinna sees.

Küsimused hanke korraldajale

Küsimus: private ID56531   24.09.2020 21:54
Tere!

1. Kas keldriruumide kütet peab projekteerima ka?
2. Kas peab lahendama põhiprojekti mahus või piisab joonistest juhistega ja spetsifikatsioonist?
3. Oma poolt ütlen, et põrandaküttega saab ilusti tsoonide järgi ruumi termostaatidega temperatuuri reguleerima ja teisel korruse igal radiaatoril omaette termopeaga ka . Aga see lahendus, kus soovitakse näiteks kella 10st õhtul läheb nende tsoonide temperatuur madalamaks ning siis kella 6st hommikul uuesti tõuseb ei ole tavaline lahendus küttesüsteemile ja nõuab spetsiifilist automaatikat, mis teeb süsteemi palju kallim, aga võitu selles reaalselt ei ole. Gaasikatel ise töötab vastavalt ette antud temperatuurigraakule ja välisõhu temperatuurile.

Teavita reeglite rikkumisest

Korraldaja vastus: 25.09.2020 08:28

Tere
Aitäh Teie küsimuste eest.
Kuna siin keskkonnas midagi ei juhtunud, siis olen teinud natuke ise eeltööd ning tellinud/plaaninud järgmised rakendused põrandakütte jaoks ning põrandakütte ning radiaatorikütte vee temperatuuride eristamiseks:
a. Uponor Smatrix Pulse Stardikomplekt S kolme termostaadiga - et siis osasid tsoone saaks "targalt" juhtida - juba tellitud.
b. Uponor 6 ringiga kollektor - tellitud
c. Vaja on süsteemi, mis katlast tuleva vee jagaks kaheks ringiks erinevate temperatuuridega radiaatori kütte ja põrandakütte vahel. Üks mõte on see: https://www.junkers.ee/junkers-tooted/gaasikute/kiire-paigaldamise-susteemid/bosch-hs-hsm-mm100.html Samas, kui Teil on mingi parem või odavam lahendus siis hea meelega kuulaks seda.

Seega plaanitud siis 2 ringi keldrist üles, 1 põrandakütte jaoks, teine radiaatorite jaoks, kõikide ringide otsas siis ka põrandakütte või radiaatorite kollektorid.
Kindlasti oleks abi siis vaja põrandakütte torude läbimõõduga, radiaatorite suurustega iga toa ja halli jaoks ning millise suurusega torud peaks minema alt keldrist peamagisrtaalidena kollektoriteni ning mis suurusega torud siis sealt edasi radikatesse.

Vastan siis ka Teie küsimustele:
1. Hetkel ei ole tarvis
2. Piisab joonistest ja spetsifikatsioonidest
3. Vast saab vastuse ja lahenduse mu lisainformatsioonist ülevalpool.

Aitäh

Teavita reeglite rikkumisest

Küsimus: private ID56531   25.09.2020 08:55
Tere

Tänan vastuste eest.

1. Jah, see on ainuke variant, millega saab eraldada küttekontuurid, ehk segamissõlmega https://www.junkers.ee/junkers-tooted/gaasikute/kiire-paigaldamise-susteemid/bosch-hs-hsm-mm100.html
2. Põrandkütte osas sain teie loogikast aru, et soovite lahendada Uponori tarkade termostaatidega, millega saab kaugselt juhtida. Kas radiaatorküttele tulevad käsitsi juhitavad termopead?
3. Kas ma õigesti sain mõttest aru, et töövõttu kuulub kõikide elementide projekteerimine (põrandküte, radiaatorid, torud, ventiilid) kuni katlamajani ja see ei kuulu projekteerimise töövõttu?
4. Millega hetkel toimub hoone kütmine?

Teavita reeglite rikkumisest

Korraldaja vastus: 25.09.2020 09:01

2. Jah, radikatele jäävad käsitsi juhitavad termopead. Ning mingil määral vist muudab vee temperatuuri ka see Boschi süsteem vastavalt välitemperatuurile.
3. Paneme katlamaja ka palun sisse
4. Maja on renoveerimisel, hetkel küttesüsteem puudub täielikult.
Aitäh veelkord

Teavita reeglite rikkumisest

Küsimus: private ID56531   25.09.2020 09:11
2. Jah, saab küll reguleerida vastavalt välitemperatuurile.
3. Siis lisaks veel gaasikatla valik, katlamaja küttetorustik, seadmed ja armatuur(ehk soojussõlme ja segamissõlme skeemid). Gaasiga liitumine ei ole hinna sees. Suitsugaaside ärajuhtimine ja värske õhu juurdevool peab olema lahendatud gaasivarustuse projekti raames ja ei kuulu kütteprojekti.
4.Selge.
5. Ilmselt tuleb veel projekteerida ja ühendada süsteemiga sooja vee boiler sooja vee valmistamiseks.

Teavita reeglite rikkumisest

Korraldaja vastus: 25.09.2020 09:33

3. See valik on tegelt tehtud: Logamax Plus GB172-24 T50 ning paigaldatakse umbes 2 nädala pärast. Sinna külge läheb siis see Boschi asi. Gaasiprojekti sain just kätte.
5. Sellel katlal on boiler sisse ehitatud.
Aitäh

Teavita reeglite rikkumisest

Küsimus: private ID56531   25.09.2020 09:45
Tänan vastuse eest. Teen siis selle info baasil pakkumise.

Teavita reeglite rikkumisest

Korraldaja vastus: 25.09.2020 22:01

Tere. Kui peaksite valituks osutuma, kui kiirelt saaksite tööga valmis? Aitäh

Teavita reeglite rikkumisest

Küsimus: private ID56531   25.09.2020 22:05
Tere
Kui kõik vajalik info on käes kuni 2 nädalat, aga arvan, et saab varem ka.

Teavita reeglite rikkumisest

Korraldaja vastus: 26.09.2020 10:52

Aitäh

Teavita reeglite rikkumisest

Lisa küsimus

Lisa küsimus

Minu pakkumine

Reeglid

Pakkumise kirjelduse väli on mõeldud pakkumise detailsemaks lahti kirjutamiseks. Pikema teksti mugavaks sisestamiseks klikkige kasti paremal ülaservas oleval ikoonil.
Pakkumist tehes on keelatud postitada enda kontaktandmeid (nimi, telefon, aadress jne). Me jälgime ja analüüsime pakkumisi, et vältida pettuseid ja reeglite rikkumisi.
Rikkumise puhul kasutajakonto blokeeritakse.

 

Teisi töid samas valdkonnas

Valdkonnas "Küttesüsteemid" on 2 aktiivset tööd

Kütesüsteemi ekspertiis

Asukoht: Harjumaa, Tallinn
Aega jäänud: 20h 44 min
Tehtud pakkumisi: 1

Päikesekütte hooldus

Asukoht: Harjumaa, Laulasmaa
Aega jäänud: 6p 20h
Tehtud pakkumisi: 0

Vanemad teated:

Vaata kõiki

Sellel veebilehel kasutatakse küpsiseid. Kasutamist jätkates nõustute küpsiste kasutamisega.

Sulge
 
Minu pakkumine

Reeglid

Pakkumise kirjelduse väli on mõeldud pakkumise detailsemaks lahti kirjutamiseks. Pikema teksti mugavaks sisestamiseks klikkige kasti paremal ülaservas oleval ikoonil.
Pakkumist tehes on keelatud postitada enda kontaktandmeid (nimi, telefon, aadress jne). Me jälgime ja analüüsime pakkumisi, et vältida pettuseid ja reeglite rikkumisi.
Rikkumise puhul kasutajakonto blokeeritakse.