+ Lisa oma töö      

Otsid ehitajat "Ehituse peatöövõtt" valdkonnast?

Parima pakkumise ja teostaja leidmiseks lisa oma töö.

Maja ehitamine, rekonstrueerimine ja laiendamine

ID 54182

1256 vaatamist

Prindi

  • check Pakkumiste tegemine
    kuni 11.10.2020
  • check Võitja valik kuni
    12.10.2020
  • 3 Töö teostamine
    ja hinnang
Hanke lõpp: P, 11. oktoober, 2020
Maakond: Harjumaa
Linn: Tallinn
Tööde algus: P, 01. november, 2020 (Soovituslik)
Tööde lõpp: E, 01. november, 2021 (Soovituslik)
Ehitusmaterjalid: Töö tegija poolt
Soovin pakkumisi: Summa kogu projektile

Töö sisu

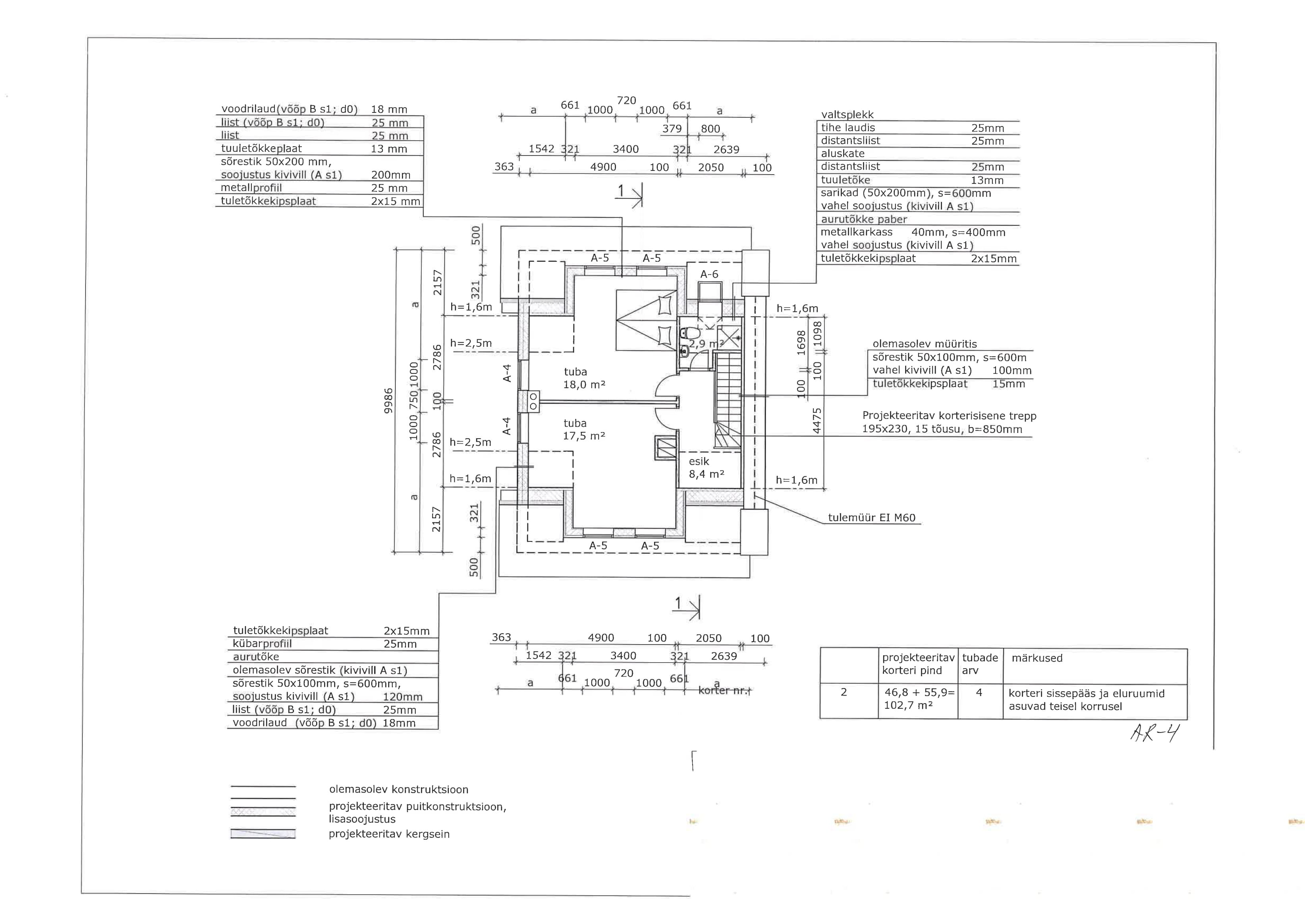
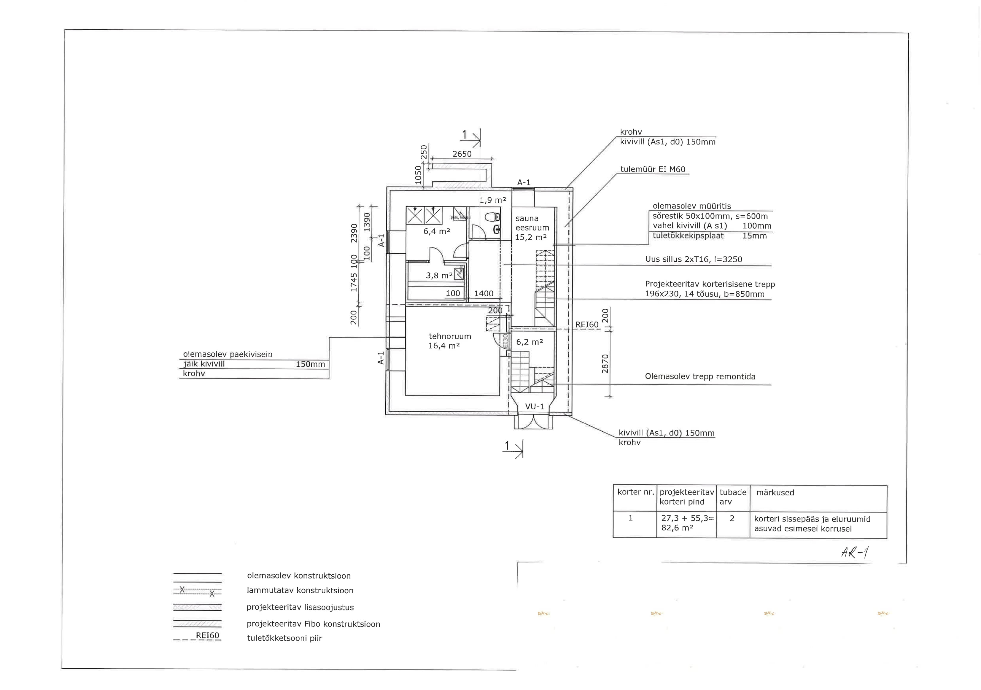
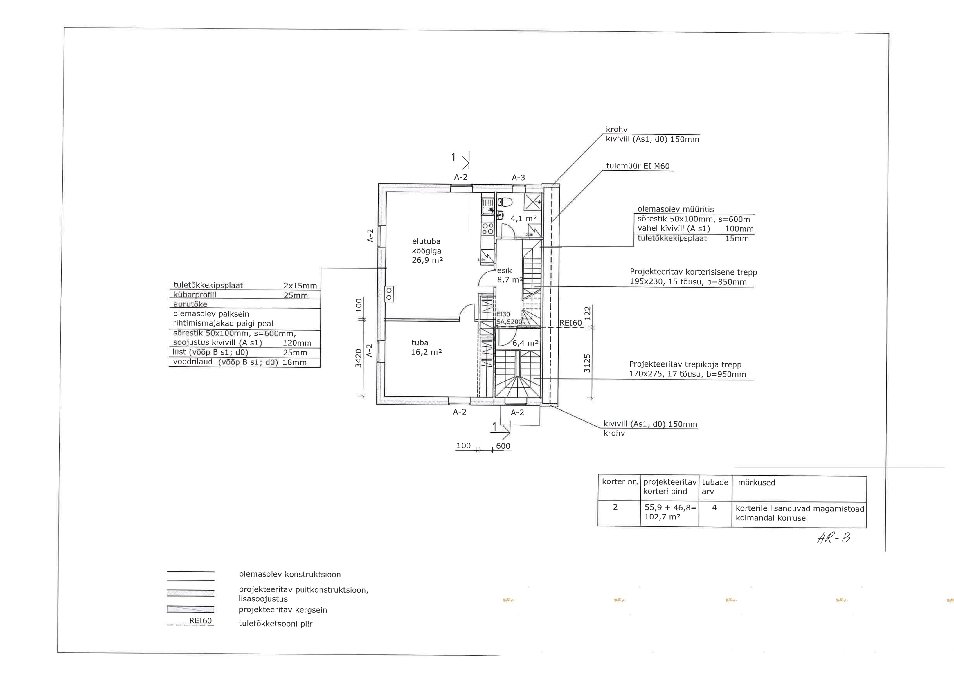
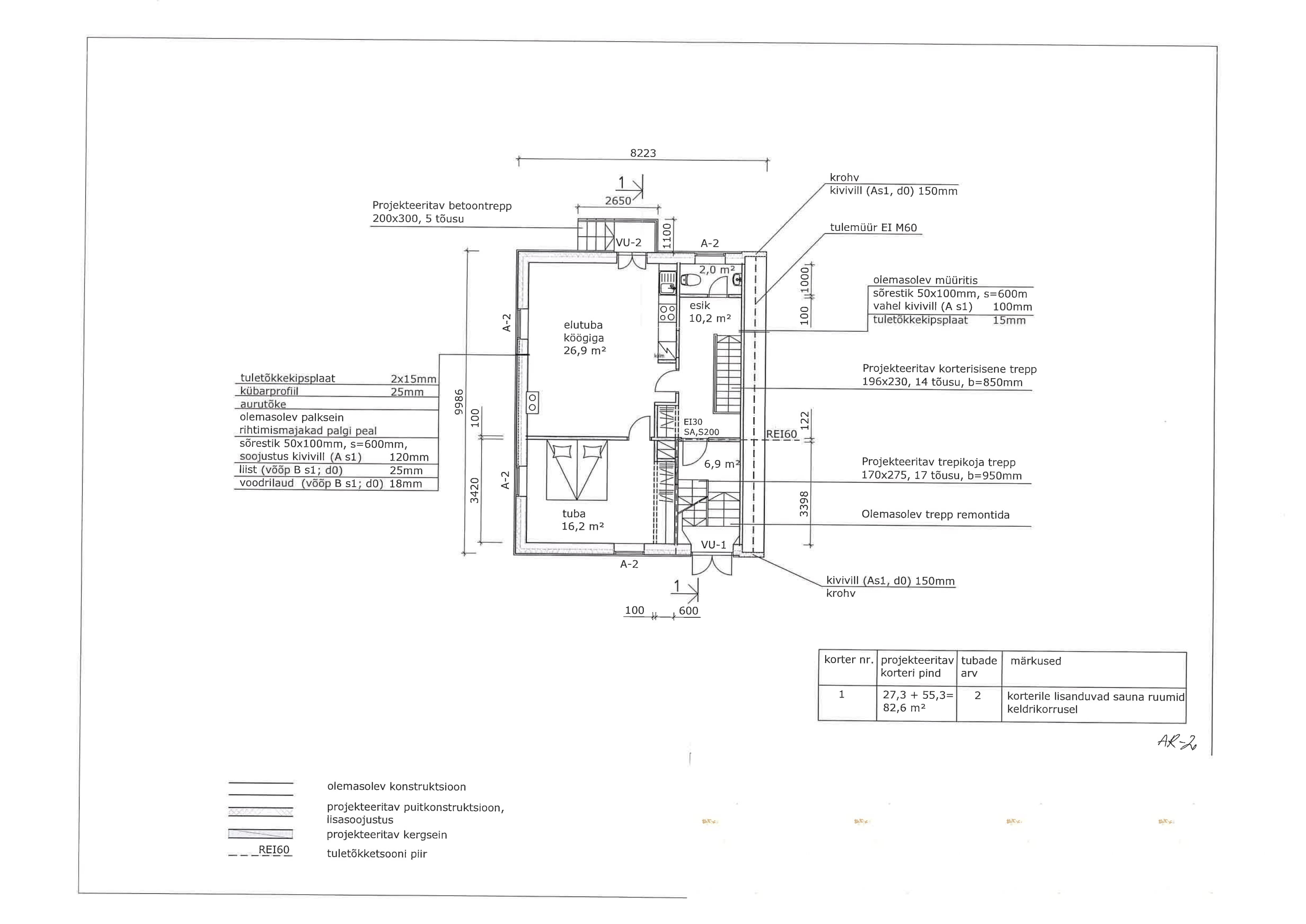
Hetkel on Tallinnas Kassisabas olemas vana hoone (kinnistu on 188m2) ja ehitusluba (28.mai 2020) seda renoveerida ja laiendada kahe korteriga elamuks.

Ehitustegevuse algus on soovituslik.

Ehitustegevus toimuks kinnises hoovis, kus on naabrite majad ümberringi. Uus vee ja kanali trass on toodud hiljuti vundamendini. Ootame hankel osalema firmasid, kellega saaksime hanke lõppemisel edasi suhelda ning kellel on olemas litsents ja võimekus pakkuda 2a garantiid töödele. Palume lähtuda olukorrast, kus püsti jääb tulemüüriga sein ja rajada tuleb uue soojustatud jms vajaliku materjaliga vundamendiga hoone koos vana hoone lammutamisega (va siis tulemüür). Eriosade projekte hetkel ei ole (pakkumises võib hinnad eraldi välja tuua). Kõik tööd peaksid olema koos materjalidega (pakkumises peaks kajastuma töö ja materjali hind eraldi) ning materjali puhul on eelduseks reklaamitavad allahindlused -30% tavahindadest. Kui kellelgi on juba kogu tegevuse jaoks lihtne m2 hind (töö+kogu vajaminev materjal miinus erisused, mida võiks siis täpsustada), siis võib ka selle välja pakkuda.

Eraldi võib välja pakkuda päikesepaneelidega (kivi)katuse lahenduse.
Soojuspumba puhul arvestada kvaliteetset COPi (soovitavalt A+++) ja müranorme, võib eraldi välja tuua ka jahutuslahenduse (1tk per korrus). Hea lahendus oleks kui korterid ja ühisruumid oleksid eraldi arvutatavad (soe/külm).
Tehnoloogiselt nutikaid lahendusi/ideesid võib samuti pakkuda.

Maasoojust ei ole võimalik antud krundile rajada.
Telia kaabli kaev on lähedal ning eeldab osaliselt naaberkrundi kiviparketi avamist jms. Majal ei ole hetkel ühegi tv-interneti operaatoriga liitumist, kuigi projektijärgselt peaks see olema Telia. Vastavad ehitustööd võiks võimalusel välja kirjutada.

Viimistluse puhul järgnev info (siseviimistlusprojekti hetkel ei ole):
1.ruumide seinad viimistlusvärvi ja/või tapeedi all.
2.sanruumide põrandad ja seinad plaadi all (plaadi m2 hind eraldi välja tuua).
3.duššid-segistid-potid-valgustid-lülitid-pistikud-keris tulevad tööde käigus tellija poolt ehitajale paigalduseks.
4.kõik siseuksed (sh. saunauks) tulevad tellija poolt ehitajale paigalduseks.
5.köögid tulevad eraldi köögifirmast koos paigaldusega ehitaja poolt ettevalmistatud nurkadesse.
6.kõik siseruummid (va. sanruumid) arvestada parketi alla (naturaalne), m2 hind materjalile eraldi välja tuua. Võimalik, et koridorid või köögi esised alad lähevad plaadi alla (täpsustub hiljem).
7.kamina puhul arvestada projektijärgse nn. kaminavalmidusega, kuid võib eraldi välja tuua ka viimistlusega (tõstetava klaasiga) südamikuga (koos margi nimega) lahenduse.

Küsimuste korral palun kirjutada.

Pildid, video ja failid

Hanke korraldaja: eraisik ID57151

Pakkumised

Pakkumisi kokku: 0

Küsimused hanke korraldajale

Hanke korraldajale ei ole veel küsimusi esitatud.

Lisa küsimus

Lisa küsimus

Minu pakkumine

Reeglid

Pakkumise kirjelduse väli on mõeldud pakkumise detailsemaks lahti kirjutamiseks. Pikema teksti mugavaks sisestamiseks klikkige kasti paremal ülaservas oleval ikoonil.
Pakkumist tehes on keelatud postitada enda kontaktandmeid (nimi, telefon, aadress jne). Me jälgime ja analüüsime pakkumisi, et vältida pettuseid ja reeglite rikkumisi.
Rikkumise puhul kasutajakonto blokeeritakse.

 

Vanemad teated:

Vaata kõiki

Sellel veebilehel kasutatakse küpsiseid. Kasutamist jätkates nõustute küpsiste kasutamisega.

Sulge
 
Minu pakkumine

Reeglid

Pakkumise kirjelduse väli on mõeldud pakkumise detailsemaks lahti kirjutamiseks. Pikema teksti mugavaks sisestamiseks klikkige kasti paremal ülaservas oleval ikoonil.
Pakkumist tehes on keelatud postitada enda kontaktandmeid (nimi, telefon, aadress jne). Me jälgime ja analüüsime pakkumisi, et vältida pettuseid ja reeglite rikkumisi.
Rikkumise puhul kasutajakonto blokeeritakse.