+ Lisa oma töö      

Otsid ehitajat "Müüritööd" valdkonnast?

Parima pakkumise ja teostaja leidmiseks lisa oma töö.

Müüritööd

ID 54098

580 vaatamist

Prindi

  • check Pakkumiste tegemine
    kuni 09.09.2020
  • check Võitja valik kuni
    16.09.2020
  • 3 Töö teostamine
    ja hinnang
Hanke lõpp: K, 9. september, 2020
Maakond: Harjumaa
Tööde algus: R, 11. september, 2020 (Soovituslik)
Tööde lõpp: T, 15. september, 2020
Ehitusmaterjalid: Töö tellija poolt
Soovin pakkumisi: Summa kogu projektile

Töö sisu

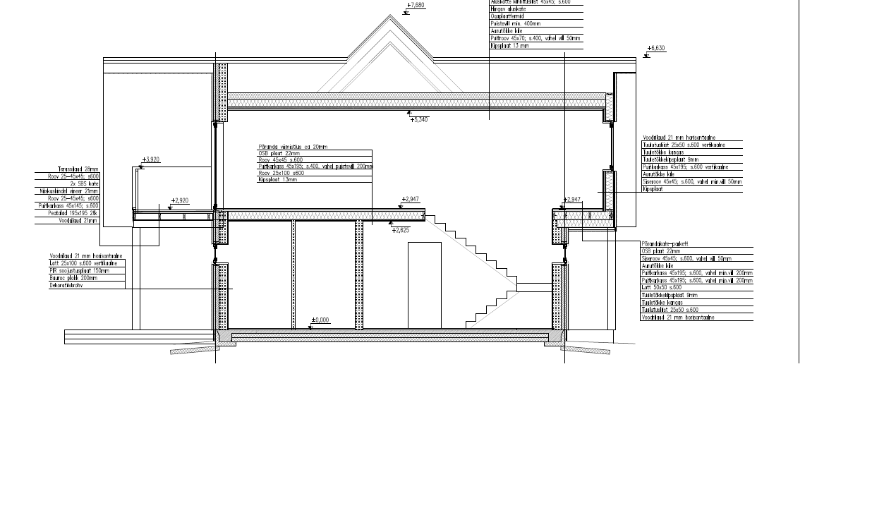
Vaja lappida Bauroc kivi 200x200x600 maja otsa viilud. Sammuti üks keskosa viil.
paigaldada 3 sillust, maja otstesse 1600mm 2tk ja keskossa 2400mm.
Sammuti vaja lappida esimese korruse kergplokist vaheseinad.
Maja otsad 32m2
Siseosa 61m2
Tööde tellija poolt kogu materjal objektil,
Tööde teostaja poolt tellingud ja tööriistad ja tööde teostus.
Soovin kogu kompl hinda.

Asukoht on Harku vald, sõrve küla. Tabasalust umbes 3km.

Pildid, video ja failid

Hanke korraldaja: eraisik ID54518

Pakkumised

Pakkumisi kokku: 1

Ettevõte Summa Käibemaks Lisatud Vestlus
Kasutaja ikoon ID54654
Pakkuja profiil Väike nool paremale
1 040€ Sisaldab KM Sisaldab KM 09.09.2020 Vestlus (0)

Pakkumise kirjeldus:

Pakkumine sisaldab siseseinte ladumist elementidest ja tööde lõpus objekti koristamist tekkinud prahist.
Lugupidamisega:R.

Küsimused hanke korraldajale

Küsimus: private ID54654   08.09.2020 08:16
Tere! Kas kokku laduda ca 90m2? Sain õieti aru? Millisest kergplokist tulevad siseseinad?
Lugupidamisega:R.

Teavita reeglite rikkumisest

Korraldaja vastus: 08.09.2020 21:27

Tere
Hetkel olukord selline, et leidsime inimesed kes saavad teha otsa viilud. Oleks vaja inimest kes laoks siseisa. Plokiks sai ostetud bauroc Element 100. Mõõtmed 400x100x600.
Joonise põhjal arvutasin kokku siseseinad antud number võib muutuda mõni m2.
Parimatega
Kaupo.

Teavita reeglite rikkumisest

Lisa küsimus

Lisa küsimus

Minu pakkumine

Reeglid

Pakkumise kirjelduse väli on mõeldud pakkumise detailsemaks lahti kirjutamiseks. Pikema teksti mugavaks sisestamiseks klikkige kasti paremal ülaservas oleval ikoonil.
Pakkumist tehes on keelatud postitada enda kontaktandmeid (nimi, telefon, aadress jne). Me jälgime ja analüüsime pakkumisi, et vältida pettuseid ja reeglite rikkumisi.
Rikkumise puhul kasutajakonto blokeeritakse.

 

Vanemad teated:

Vaata kõiki

Sellel veebilehel kasutatakse küpsiseid. Kasutamist jätkates nõustute küpsiste kasutamisega.

Sulge
 
Minu pakkumine

Reeglid

Pakkumise kirjelduse väli on mõeldud pakkumise detailsemaks lahti kirjutamiseks. Pikema teksti mugavaks sisestamiseks klikkige kasti paremal ülaservas oleval ikoonil.
Pakkumist tehes on keelatud postitada enda kontaktandmeid (nimi, telefon, aadress jne). Me jälgime ja analüüsime pakkumisi, et vältida pettuseid ja reeglite rikkumisi.
Rikkumise puhul kasutajakonto blokeeritakse.