+ Lisa oma töö      

Otsid ehitajat "Fassaaditööd" valdkonnast?

Parima pakkumise ja teostaja leidmiseks lisa oma töö.

Eramu fassaadi renoveerimine

ID 53956

548 vaatamist

Prindi

  • check Pakkumiste tegemine
    kuni 29.09.2020
  • check Võitja valik kuni
    06.10.2020
  • 3 Töö teostamine
    ja hinnang
Hanke lõpp: T, 29. september, 2020
Maakond: Pärnumaa
Linn: Pärnu
Tööde algus: K, 09. september, 2020 (Soovituslik)
Tööde lõpp: K, 30. september, 2020 (Soovituslik)
Ehitusmaterjalid: Töö tegija poolt
Soovin pakkumisi: Tüki- või ühikuhinda

Töö sisu

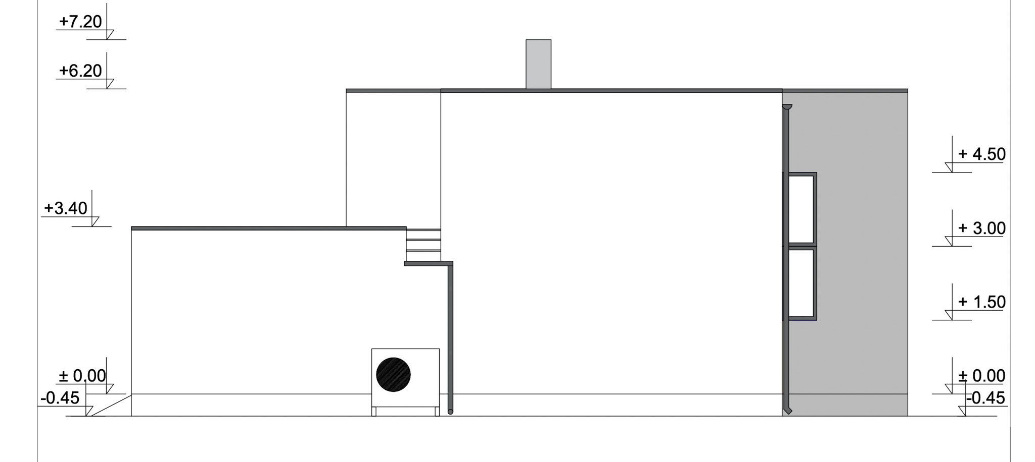
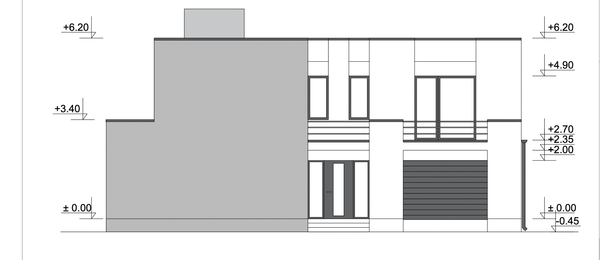
Oleks vaja kogu maja fassaad renoveerida - ca 300m2.

Lahtise krohvi eemaldamine - leidub kohti, kus vana krohv on lahti. Nakkedispersioon, armeerimisvõrgu paigaldus koos armeerimisseguga. Kruntimine vastavalt toonile. Viimistlus krohv. Materjal peab olema CAPAROL. Enamus majast tumehall, osa valge.

Lisatööna oleks vaja paigaldada EPS 60 Silver - ca 45m2. EPS endal olemas. Samuti soojustada väljaspoolt 5 aknasillust. EPS-i paigalduse võib eraldi hinnana välja tuua. Vundament on armeeritud võrgu ja liimseguga.

Joonised ja pildid majast manusena lisatud.

Pildid, video ja failid

Hanke korraldaja: eraisik ID41719

Pakkumised

Pakkumisi kokku: 1

Ettevõte Summa Käibemaks Lisatud Vestlus
Kasutaja ikoon ID49125
Pakkuja profiil Väike nool paremale
8 000€ Ei ole KMKR Ei ole KMKR 29.09.2020 Vestlus (0)

Pakkumise kirjeldus:

Tere, pakkumine soovitud töödele, lahtise krohvi eemaldamine, tasanduskrohv, armeerimine, viimistluskrohv. hinnas sisalduvad kõik tööks vajaminevad materjalid ja töövahendid. Tööaeg kuni 6 nädalat. Leping, garantii 3 aastat.

Küsimused hanke korraldajale

Küsimus: private ID57137   09.09.2020 22:49
tere kas vimistlus krohf soovite miniraalne voi silikoon

Teavita reeglite rikkumisest

Korraldaja vastus: 13.09.2020 09:05

Tere, silikoon.

Teavita reeglite rikkumisest

Lisa küsimus

Lisa küsimus

Minu pakkumine

Reeglid

Pakkumise kirjelduse väli on mõeldud pakkumise detailsemaks lahti kirjutamiseks. Pikema teksti mugavaks sisestamiseks klikkige kasti paremal ülaservas oleval ikoonil.
Pakkumist tehes on keelatud postitada enda kontaktandmeid (nimi, telefon, aadress jne). Me jälgime ja analüüsime pakkumisi, et vältida pettuseid ja reeglite rikkumisi.
Rikkumise puhul kasutajakonto blokeeritakse.

 

Teisi töid samas valdkonnas

Valdkonnas "Fassaaditööd" on 12 aktiivset tööd

Akende ja viilude parandus ja värvimine

Asukoht: Valgamaa, Valga
Aega jäänud: 12h 27 min
Tehtud pakkumisi: 3

Eramaja vintskapide laudise paigaldus

Asukoht: Pärnumaa, Pärnu-Jaagupi
Aega jäänud: 9p 12h
Tehtud pakkumisi: 2

Vanemad teated:

Vaata kõiki

Sellel veebilehel kasutatakse küpsiseid. Kasutamist jätkates nõustute küpsiste kasutamisega.

Sulge
 
Minu pakkumine

Reeglid

Pakkumise kirjelduse väli on mõeldud pakkumise detailsemaks lahti kirjutamiseks. Pikema teksti mugavaks sisestamiseks klikkige kasti paremal ülaservas oleval ikoonil.
Pakkumist tehes on keelatud postitada enda kontaktandmeid (nimi, telefon, aadress jne). Me jälgime ja analüüsime pakkumisi, et vältida pettuseid ja reeglite rikkumisi.
Rikkumise puhul kasutajakonto blokeeritakse.