+ Lisa oma töö      

Otsid ehitajat "Müüritööd" valdkonnast?

Parima pakkumise ja teostaja leidmiseks lisa oma töö.

Eramaja vaheseinte paigaldamine

ID 53933

577 vaatamist

Prindi

  • check Pakkumiste tegemine
    kuni 05.09.2020
  • check Võitja valik kuni
    12.09.2020
  • 3 Töö teostamine
    ja hinnang
Hanke lõpp: L, 5. september, 2020
Maakond: Harjumaa
Muu asula: Saue vald
Tööde algus: T, 01. september, 2020 (Soovituslik)
Tööde lõpp: P, 13. september, 2020 (Soovituslik)
Ehitusmaterjalid: Töö tegija poolt
Soovin pakkumisi: Summa kogu projektile

Töö sisu

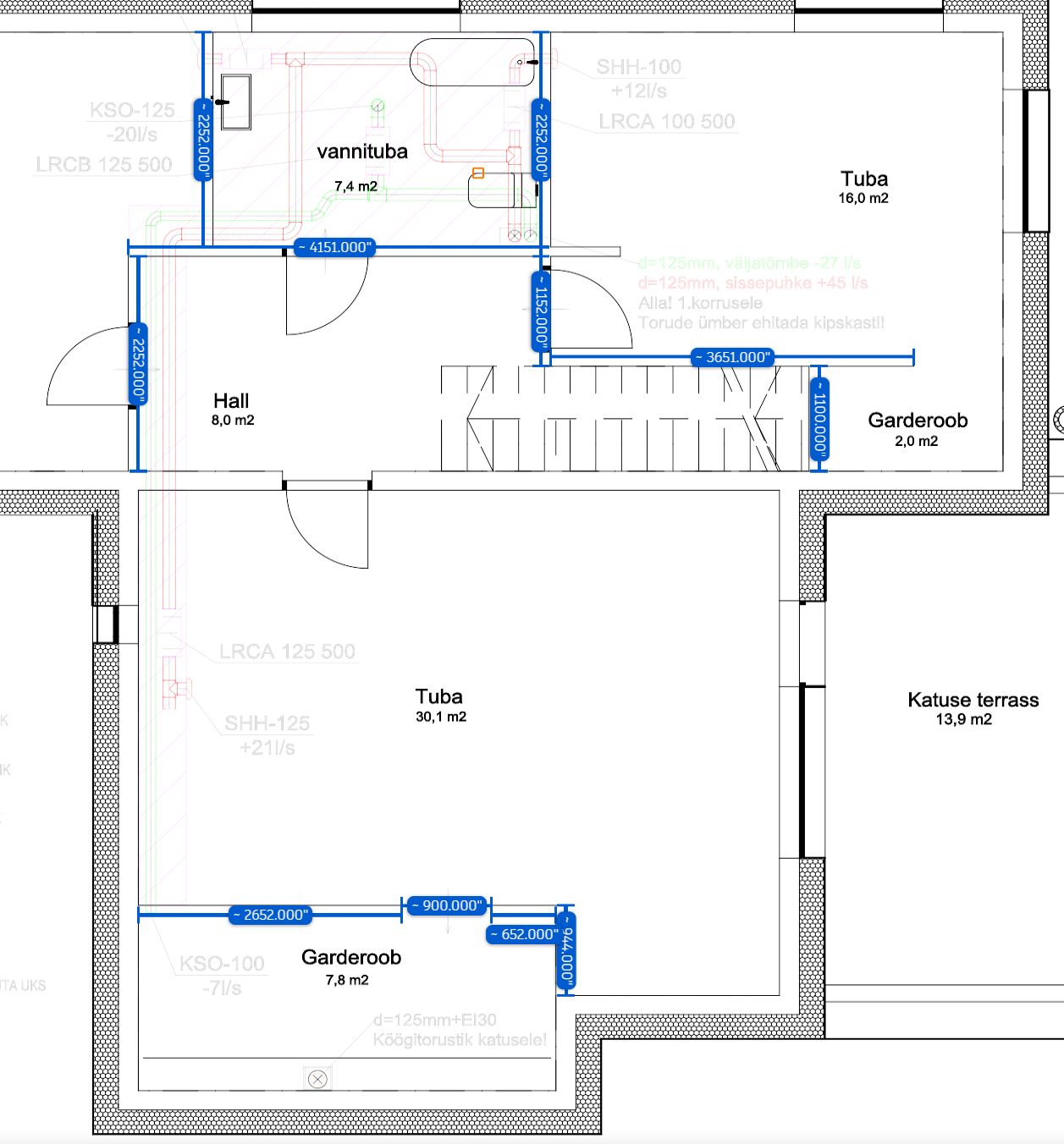
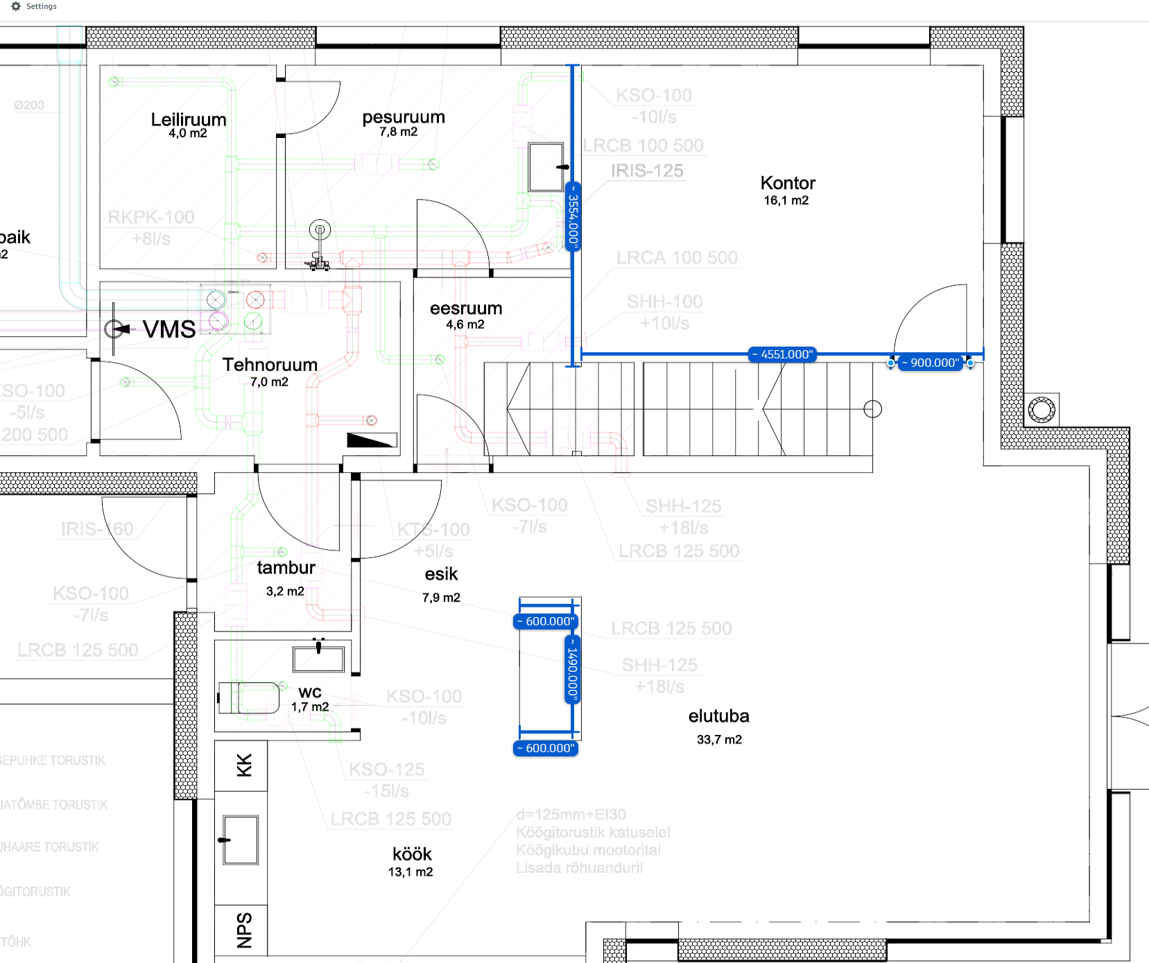
Tere, oleks vaja paigaldada vaheseinu.

Fibo 3 150mm

1. korrus - Vaja paigaldada ainult sinisega märgitud osad, elutoas asuvat kappi tuleb 2 tk. kokku (asukoht veidi muutub)
1 ukseava 900, lae kõrgus ca 2.8m

2. korrus - Kõik sinisega märgitud vaheseinad, samuti fibo 3 150. 4 ukseava, kõik 900 mm.Tubade kõrgus ca 3m.


Mõlemal korrusel vannitubade seintes vaja freesida veetorude avad.
Palun pakkuge ruutmeetri ning kogu töö + materjalide hinda (100 ruutmeetri korral)

Kogupind 85-100 ruutmeetri vahemikus. Eeldan, et kui pakute hinda 100 ruutmeetrile, aga kui tuleb kokku veidi vähem, siis arvestame
100 ruutmeetri hinna puhul ruutmeetri hinnaga ja arvestame lõpuks ümber tegelikule pinnale.

Pildid, video ja failid

Hanke korraldaja: eraisik ID55881

Pakkumised

Pakkumisi kokku: 4

Ettevõte Summa Käibemaks Lisatud Vestlus
Kasutaja ikoon ID8633
Pakkuja profiil Väike nool paremale
4 200€ KM lisandub KM lisandub 30.08.2020 Vestlus (2)

Pakkumise kirjeldus:

töö,materjal

Kasutaja ikoon ID48843
Pakkuja profiil Väike nool paremale
5 000€ Sisaldab KM Sisaldab KM 01.09.2020 Vestlus (0)

Pakkumise kirjeldus:

100m2 müüri ladumine ja materjal.

Kasutaja ikoon ID57033
Pakkuja profiil Väike nool paremale
4 200€ Ei ole KMKR Ei ole KMKR 03.09.2020 Vestlus (0)

Pakkumise kirjeldus:

Tere,

Teid aitab oskustega meeskond. Palun valida meid võitjaks kui töö on kindel.

Kasutaja ikoon ID51052
Pakkuja profiil Väike nool paremale
13 000€ Ei ole KMKR Ei ole KMKR 05.09.2020 Vestlus (0)

Pakkumise kirjeldus:

Tere

Arvestan pinna suuruseks 100ruutu, töö koos materjalide ja prügi utiliseerimisega.

Küsimused hanke korraldajale

Hanke korraldajale ei ole veel küsimusi esitatud.

Lisa küsimus

Lisa küsimus

Minu pakkumine

Reeglid

Pakkumise kirjelduse väli on mõeldud pakkumise detailsemaks lahti kirjutamiseks. Pikema teksti mugavaks sisestamiseks klikkige kasti paremal ülaservas oleval ikoonil.
Pakkumist tehes on keelatud postitada enda kontaktandmeid (nimi, telefon, aadress jne). Me jälgime ja analüüsime pakkumisi, et vältida pettuseid ja reeglite rikkumisi.
Rikkumise puhul kasutajakonto blokeeritakse.

 

Vanemad teated:

Vaata kõiki

Sellel veebilehel kasutatakse küpsiseid. Kasutamist jätkates nõustute küpsiste kasutamisega.

Sulge
 
Minu pakkumine

Reeglid

Pakkumise kirjelduse väli on mõeldud pakkumise detailsemaks lahti kirjutamiseks. Pikema teksti mugavaks sisestamiseks klikkige kasti paremal ülaservas oleval ikoonil.
Pakkumist tehes on keelatud postitada enda kontaktandmeid (nimi, telefon, aadress jne). Me jälgime ja analüüsime pakkumisi, et vältida pettuseid ja reeglite rikkumisi.
Rikkumise puhul kasutajakonto blokeeritakse.