+ Lisa oma töö      

Otsid ehitajat "Renoveerimine" valdkonnast?

Parima pakkumise ja teostaja leidmiseks lisa oma töö.

Väikeelamu rekonstrueerimine

ID 53866

1048 vaatamist

Prindi

  • check Pakkumiste tegemine
    kuni 07.10.2020
  • check Võitja valik kuni
    07.10.2020
  • 3 Töö teostamine
    ja hinnang
Hanke lõpp: K, 7. oktoober, 2020
Maakond: Järvamaa
Linn: Paide
Tööde algus: E, 28. september, 2020 (Soovituslik)
Tööde lõpp: R, 30. aprill, 2021 (Soovituslik)
Ehitusmaterjalid: Töö tegija poolt
Soovin pakkumisi: Summa kogu projektile

Töö sisu

1. I- korruse põrandad (keldri lae soojustamine), kõik põr. küttega 110 m2: Keldri luuk 900x1200mm asukohaga teise korruse trepi all mitte koridori keskel nagu projektis. Süvaimmutatud puit 50x200x6000mm – 400mm sammuga 60 tk koos kinnitusvahendite ja lisaimmutusega, 22mm osb plaat, 200 mm villa ja 100mm peno koos montaazivahu ja kinnitusvahenditega, põrandakütte kergplaadid, küttetoru, osaliselt betoonpõrand (riiete pesuruum, sauna eesruum, dušš ja saunaruum ning WC). Viimistlus kihina laminaatparkett ja osaliselt keraamiline plaat (1 m2 hinnaga kuni 10.- eur). Vana põranda lammutamine, utiliseerimine, materjalide tarne etappidena ning uue köetava põranda montaaž.

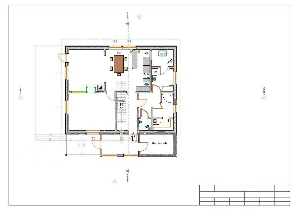
2. II-korruse põrandad koos tuulekoja laiendusega, kõik põr. küttega 85 m2: puit laagid 50x100x600mm – 400mm sammuga 50 tk kooskinnitusvahendite, 22mm osb, 50mm villa, põrandakütte kergplaatide-, küttetoru ja laminaatparketiga. Ehitustöö koos materjalide tarnega ja prügi utiliseerimisega. Tuulekoda laiendust ei ole põhiprojektis kirjas vaata joonist „Põhikorruse plaan_24“. Lisandub garderoobi osa.


3. Pööningu ehitus u. 30 m2: Käigutee ehitamine 40x1000x10000mm talast 400 mm kõrgusele. Soojustamine 12 m3 puistevillaga. Valge pööninguluuk tulepüsivusega EI-30 korstna kõrvale 800x1200mm. Ventilatsiooni restid 2 tk x 125 mm.

4. Katusetööd koos tuulekoja katusega 200 m2: Eterniidi eemaldamine ja utiliseerimine, vintskapi lammutamine, alusroovi eemaldamine, tuulekastide lammutamine. Hingava katuse aluskatte paigaldus ja liitekohtade kokku liimimine koos distantsliistude paigaldusega. Alusroovi paigaldamine koos sirgeks kiilutamisega. Katusepleki ja lisaplekkide paigaldamine. Sisaldab tuulekoja katuse aluskarkassi ehk sarikaid, distantsliiste, alusroovi, kinnitusvahendeid. 2 katuseakent 800x1200mm. Katuseredel koos katusesillaga, pööningult luuki ei tule.

5. Välisseinte ja tuulekoja ehitus koos tuulekastide, akende ja välisustega: Tuulekoja lammutamine, voodrilaua eemaldamine, akende ja uste eemaldamine, vajalikud proteesimised palkseintel. Tuulekoja laienduseks vundamendi kaevetööd (tuulekojal puudub paekivivundament nagu näidatud „keldrikoorus“ joonisel), taldmiku ehitus koos betooni, armatuuri, vundamendi jaoks FIBO 5 plokkide ja liimiga ning plaaditud betoontrepiga. Puitkarkassi ehitus, soojustamine, katmine tuuletõkkeplaadi ja voodrilauaga vastavalt projektile. Akende (kogupinnaga u. 45 m2) ja välisuste (2 tk) paigaldus koos avade mõõtu saagimise ja toestusega. Tuulekastide, piirdeliistude, palede, veeplekkide jms lisatarvikute paigaldus koos viimistlusega.

6. Vundamendi ja sokli soojustamine, armeerimine, krohvimine ja viimistlemine: Lahtikaevamine 1m laiuselt ja 1m sügavuselt, soojustamine styro 100mm plaadiga vertikaalselt ja horisontaalselt, täide killustikuga, tihendamine, sokli krohvimine koos armeeringu ja viimistluskihiga, vajalike läbiviikude tegemine.

7. Palkseinte puhastamine u. 180 m2: Palkseinte puhastamine vuukide tihendamine ja viimistlemine õliga või lakiga.

8. Kipsplaadist metallkarkassile ehitatud seinad/kaldseinad ja laed I ja II korrusel. Kogupindala kipsplaadiga kaetult u. 300 m2, koos metallkarkassi, katuslae ristsõrestiku puit, soojustus ja müravill, pahteldus, värvimine. Teise korruse tubade küljel olev katusealune kaldsein läheb alla ühtlaselt kuni põrandani, vertikaalset seina ei teki.

9. Saun: 5 m2 põrandat plaatida, kuivtrapp paigaldada, 12 m2 seina ja lae pinda isoleerida termoplaadiga, ehitada puitkarkass, katta lepa või haavalauaga, ehitada lava, paigaldada keris ja valgusti ning sauna klaasuks. Viimistleda saunavahaga.

10. WC/dušš I-korrusel: plaatida seinad ja põrand 50 m2 koos hüdroisolatsiooniga. Trapi, poti, valamu jms. santehnika montaaž koos valgustitega ja torustikuga.

11. Köök: Torutööd, vent, kubu väljapuhutava õhuga välja õue, tausta plaatimine ja soodsam eritellimusmööbel koos soodsama tehnikaga.

12. II- korruse WC/dušš: 3-4 m2 põranda ja 15 m2 seina plaatimine koos hüdroisolatsiooni, torutööde ja san tehnikaga.

13. Siseuksed, aknapaled, aknalauad ja liistud: 12 siseukse ja u. 400 jm liistude paigaldamist ustele, akendele ja põrandatele ning aknapalede ja aknalaudade paigaldus.

14. Vihmavee rennid ja torud.

15. Elektrisüsteem kaablite, pistikute, lülitite ja kilbitöödega: Projekt, montaaž, mõõdistus.


16. Torutööd: veesõlme ehitus ja kanalisatsiooni tuulutus. Kraanikausid kitsad mõlemasse wc´sse, suur kööki ja suur riiete pesuruumi.

17. Trepp: Sisetrepp puidust 183x242mm 18 astmega ja turvapiire 1m kõrgete ja 0,3m sammuga, vana trepi lammutamine.

18. Ventilatsioonisüsteem soojustagastusega: Vent agregaat koos torude ja välirestide ning sisse ja väljalaske plafoonidega.

19. Ahi: Vana ahju lammutamine, uuele ahjule aluse valamine olemasolevale paekivi vundamendile, uue ahju püstitamine, ahjuesine plaat 40cm ette ja 10 cm külgedele ulatuv u.. Tulikivi Salvo Classic 18 kaminahi või ahi Blanka võib olla ka samaväärne (tõhusus alates 84%, Energiatõhususeklass A+, Köetav pind 55-80 m2, Ahju mõõtmed min. L-S-K 900-500-1800 võib olla ka veidi kõrgem ja laiem). Peab olema

20. Korsten: Vana korstna lammutamine ja uue, ahjule sobilikuma sertifitseeritud, korstna ehitus koos puhastusluugi, lõõriplokki, läbiviikudega, korstna pitsi müts koos krohvimise viimistlusega, Wakafleksi ja krae lekkidega.


21. Piksekaitse: Projektiga, mõõdistusega ja paigaldusega.

22. Sissesõidu tee ja parkimiskoht umbes 100 m2:

23. Terrassi ehitus: 33 m2.

Soov on taotleda Kredexi väikeelamu rekonstrueerimise taotlust „Terviklik rekonstrueerimine – projekt, millega teostatakse kompleksselt toetuse tingimustes toodud nõuetele vastavalt vähemalt välisseinte ja katuse soojustamine, akende vahetamine, rekonstrueeritakse küttesüsteem ja paigaldatakse soojustagastusega sissepuhke-väljatõmbe ventilatsioonisüsteem“ siis palun tuua välja kogu rekonstrueerimise maksumus ja iga ülalpool välja toodud tööosa eraldi maksumus.

Rekonstrueerimistööd peavad vastama Kredex tingimustele: https://www.kredex.ee/et/majaduueks

Hoonesse on paigaldatud maasoojuspump Nibe F1245-6 mis on ühendatud krundile paigaldatud maakollektoriga. Vajalik maasoojuspumba ühendamine 1 ja 2 korruse põrandaküttega ning soojavee boileri ühendamine mõlema korruse dušši ruumidega.

Esimese korruse toa ja köök-toa akende kõrgus on suurem kui projektis märgitud (umbes 194 cm).
Katusekorruse parempoolses toas (vaade A) tuleb üks suur põrandani kahelt poolt avatav aken ja väljas fassaadile prantsuse rõdu.
Katusekorruse garderoobi asemel tuleb tuba.

Pildid, video ja failid

Hanke korraldaja: eraisik ID56609

Pakkumised

Pakkumisi kokku: 0

Küsimused hanke korraldajale

Küsimus: private ID57334   22.09.2020 16:08
Tere,

Nii suure pakkumise tegemine on üsnagi ajakulukas, kas oleks võimalik objektiga lähemalt tutvuda, et täpne ja parem ülevaade saada?

Parimat,
Janar

Teavita reeglite rikkumisest

Korraldaja vastus: 22.09.2020 19:15

Tere,

Kas reedel 25.09 või pühapäeval 27.09 sobib teile objektiga tutvuma tulla kui jah siis mis kell?

Parimat
Pavel

Teavita reeglite rikkumisest

Lisa küsimus

Lisa küsimus

Minu pakkumine

Reeglid

Pakkumise kirjelduse väli on mõeldud pakkumise detailsemaks lahti kirjutamiseks. Pikema teksti mugavaks sisestamiseks klikkige kasti paremal ülaservas oleval ikoonil.
Pakkumist tehes on keelatud postitada enda kontaktandmeid (nimi, telefon, aadress jne). Me jälgime ja analüüsime pakkumisi, et vältida pettuseid ja reeglite rikkumisi.
Rikkumise puhul kasutajakonto blokeeritakse.

 

Teisi töid samas valdkonnas

Valdkonnas "Renoveerimine" on 2 aktiivset tööd

no-img Pilt puudub

Renoveerimisprojekti koostamine

Asukoht: Läänemaa, Matsalu
Aega jäänud: 2p 16h
Tehtud pakkumisi: 4

Saunamaja renoveerimine väljastpoolt

Asukoht: Ida-Virumaa, Kiviõli
Aega jäänud: 16h 41 min
Tehtud pakkumisi: 0

Vanemad teated:

Vaata kõiki

Sellel veebilehel kasutatakse küpsiseid. Kasutamist jätkates nõustute küpsiste kasutamisega.

Sulge
 
Minu pakkumine

Reeglid

Pakkumise kirjelduse väli on mõeldud pakkumise detailsemaks lahti kirjutamiseks. Pikema teksti mugavaks sisestamiseks klikkige kasti paremal ülaservas oleval ikoonil.
Pakkumist tehes on keelatud postitada enda kontaktandmeid (nimi, telefon, aadress jne). Me jälgime ja analüüsime pakkumisi, et vältida pettuseid ja reeglite rikkumisi.
Rikkumise puhul kasutajakonto blokeeritakse.