+ Lisa oma töö      

Otsid ehitajat "Renoveerimine" valdkonnast?

Parima pakkumise ja teostaja leidmiseks lisa oma töö.

Maja renoveerimine

ID 53493

739 vaatamist

Prindi

  • check Pakkumiste tegemine
    kuni 17.08.2020
  • check Võitja valik kuni
    18.08.2020
  • 3 Töö teostamine
    ja hinnang
Hanke lõpp: E, 17. august, 2020
Maakond: Ida-Virumaa
Linn: Jõhvi
Tööde algus: E, 31. august, 2020 (Soovituslik)
Tööde lõpp: L, 31. oktoober, 2020 (Soovituslik)
Ehitusmaterjalid: Töö tegija poolt
Soovin pakkumisi: Tüki- või ühikuhinda

Töö sisu

Soovin renoveerida maja Jõhvi külas.
Ehitisregistri andmed - elamu 72m2 , kasutusel.

Soovin tellida ehitusprojekt renoveerimiseks ja renoveerida hoone .

Demonteerimine :

- Vana katuse demonteerimine
- Akende, uste , sisekujunduse, vaheseinte demonteerimine.
- Ehitusprahi soorteerimine, äravedu ja utiliseerimine

Välistööd ja siseviimistlus :

- Uue katuse paigaldus
- Akende , uste paigaldus
- Sisetrepi paigaldus
- Fassaaditööd , fassaadi soojustus, viimistlus
- Siseviimistlus - seinte ja lagede viimistlus, plaatimine , põrandakatete paigaldus
- Ehitada terrassi ja ühendada majaga . (ca 400 m2)

Muud tööd :

- Veevarustuse ja kanalisatsiooni organiseerimine.
(Oma registreeritud kaev kinnistul.)
-Küttesüsteemi paigaldus
- Elektriliste tööde teostamine , välised tööd, sisemised tööd, elektrisüsteemide paigaldus
- Sillutuskivi paigaldus ( juurdepääs majale )

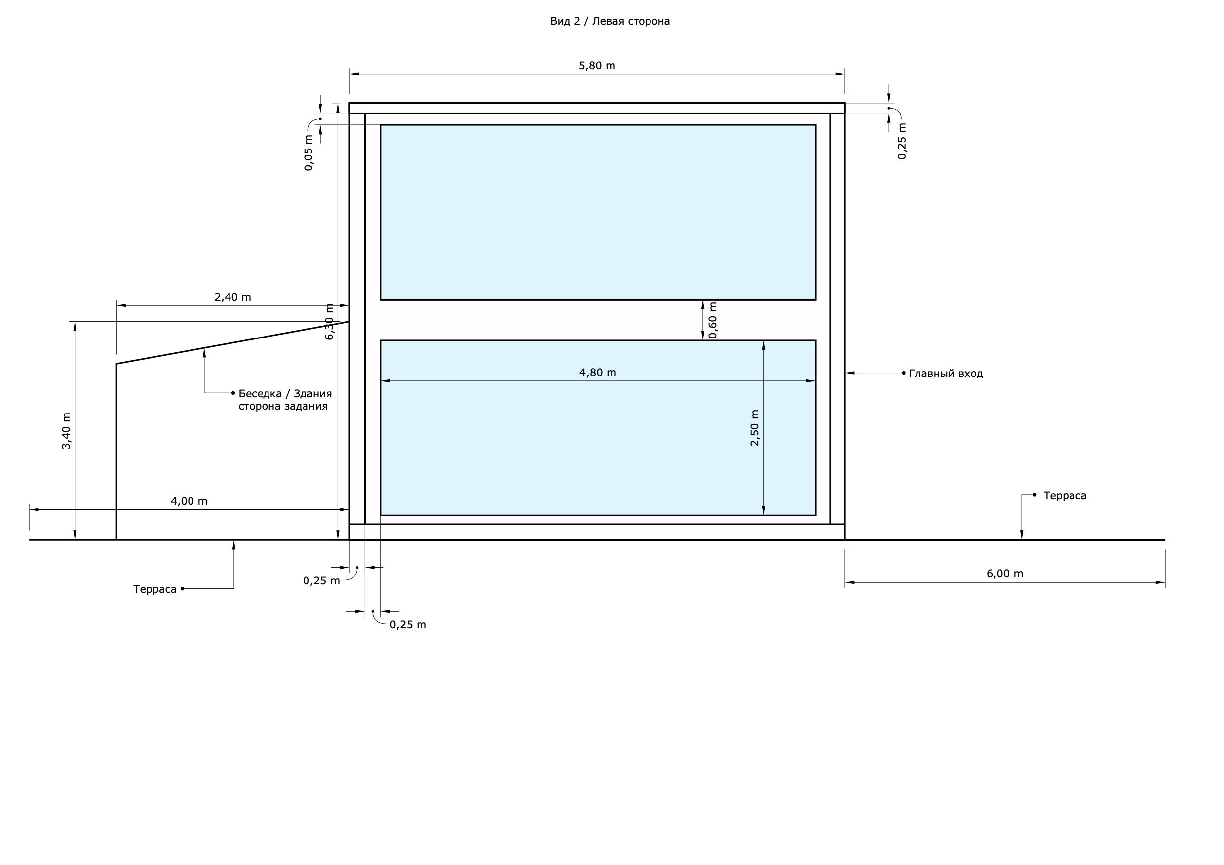
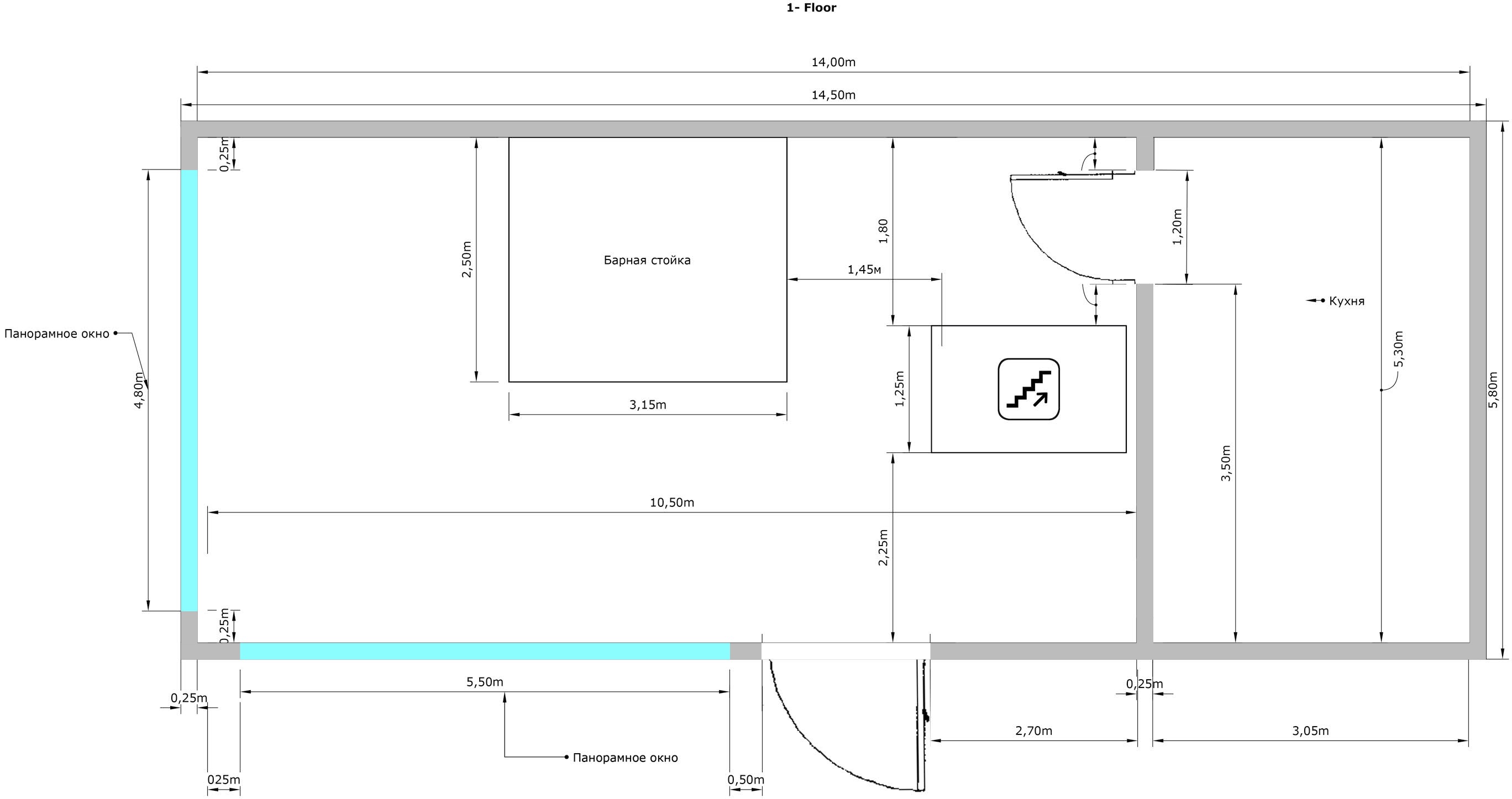
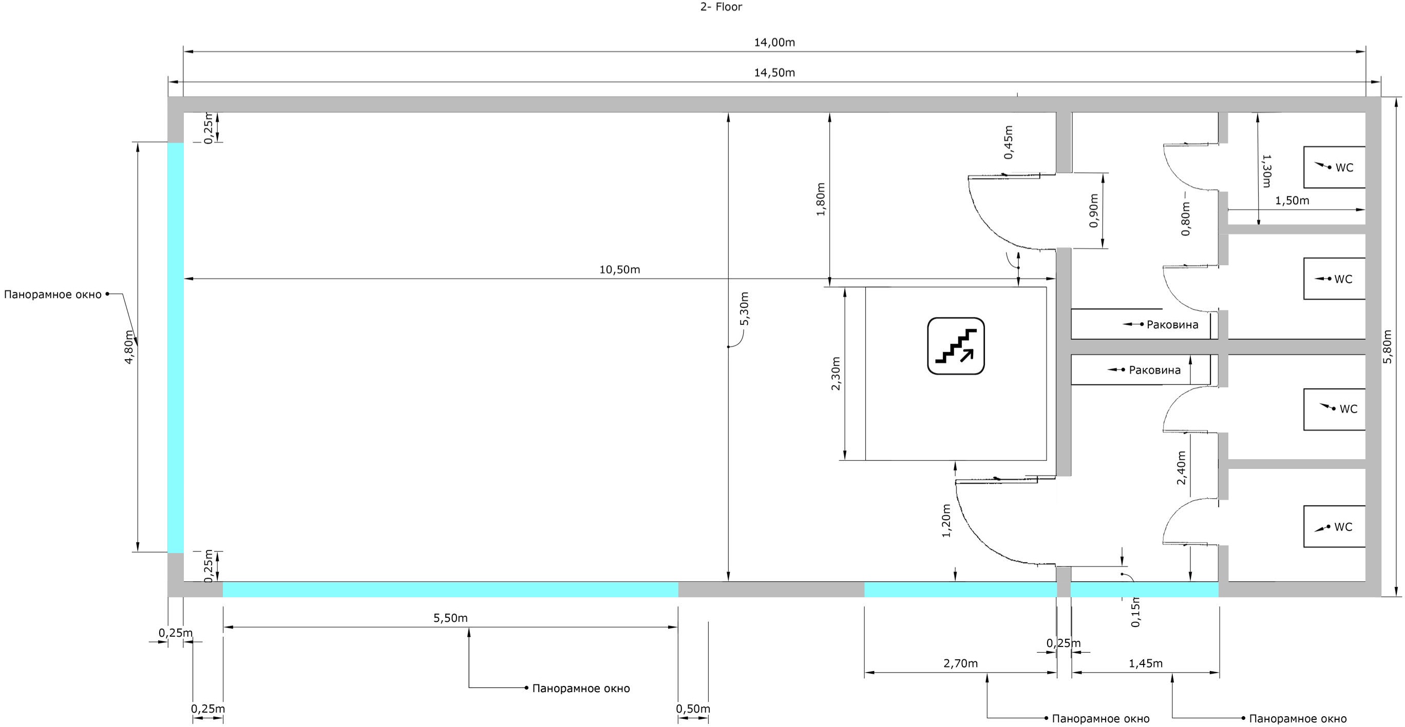
Lisan selle projekti ettekujutuse pilte.

Pildid, video ja failid

Hanke korraldaja: eraisik ID56102

Pakkumised

Pakkumisi kokku: 0

Küsimused hanke korraldajale

Hanke korraldajale ei ole veel küsimusi esitatud.

Lisa küsimus

Lisa küsimus

Minu pakkumine

Reeglid

Pakkumise kirjelduse väli on mõeldud pakkumise detailsemaks lahti kirjutamiseks. Pikema teksti mugavaks sisestamiseks klikkige kasti paremal ülaservas oleval ikoonil.
Pakkumist tehes on keelatud postitada enda kontaktandmeid (nimi, telefon, aadress jne). Me jälgime ja analüüsime pakkumisi, et vältida pettuseid ja reeglite rikkumisi.
Rikkumise puhul kasutajakonto blokeeritakse.

 

Teisi töid samas valdkonnas

Valdkonnas "Renoveerimine" on 2 aktiivset tööd

no-img Pilt puudub

Renoveerimisprojekti koostamine

Asukoht: Läänemaa, Matsalu
Aega jäänud: 2p 2h
Tehtud pakkumisi: 4

Saunamaja renoveerimine väljastpoolt

Asukoht: Ida-Virumaa, Kiviõli
Aega jäänud: 2h 48 min
Tehtud pakkumisi: 0

Vanemad teated:

Vaata kõiki

Sellel veebilehel kasutatakse küpsiseid. Kasutamist jätkates nõustute küpsiste kasutamisega.

Sulge
 
Minu pakkumine

Reeglid

Pakkumise kirjelduse väli on mõeldud pakkumise detailsemaks lahti kirjutamiseks. Pikema teksti mugavaks sisestamiseks klikkige kasti paremal ülaservas oleval ikoonil.
Pakkumist tehes on keelatud postitada enda kontaktandmeid (nimi, telefon, aadress jne). Me jälgime ja analüüsime pakkumisi, et vältida pettuseid ja reeglite rikkumisi.
Rikkumise puhul kasutajakonto blokeeritakse.