+ Lisa oma töö      

Otsid ehitajat "Renoveerimine" valdkonnast?

Parima pakkumise ja teostaja leidmiseks lisa oma töö.

Eramaja renoveerimine

ID 53222

912 vaatamist

Prindi

  • check Pakkumiste tegemine
    kuni 04.08.2020
  • check Võitja valik kuni
    11.08.2020
  • 3 Töö teostamine
    ja hinnang
Hanke lõpp: T, 4. august, 2020
Maakond: Viljandimaa
Linn: Viljandi
Tööde algus: T, 01. september, 2020 (Soovituslik)
Tööde lõpp: T, 02. veebruar, 2021 (Soovituslik)
Ehitusmaterjalid: Töö tellija poolt
Soovin pakkumisi: Tüki- või ühikuhinda

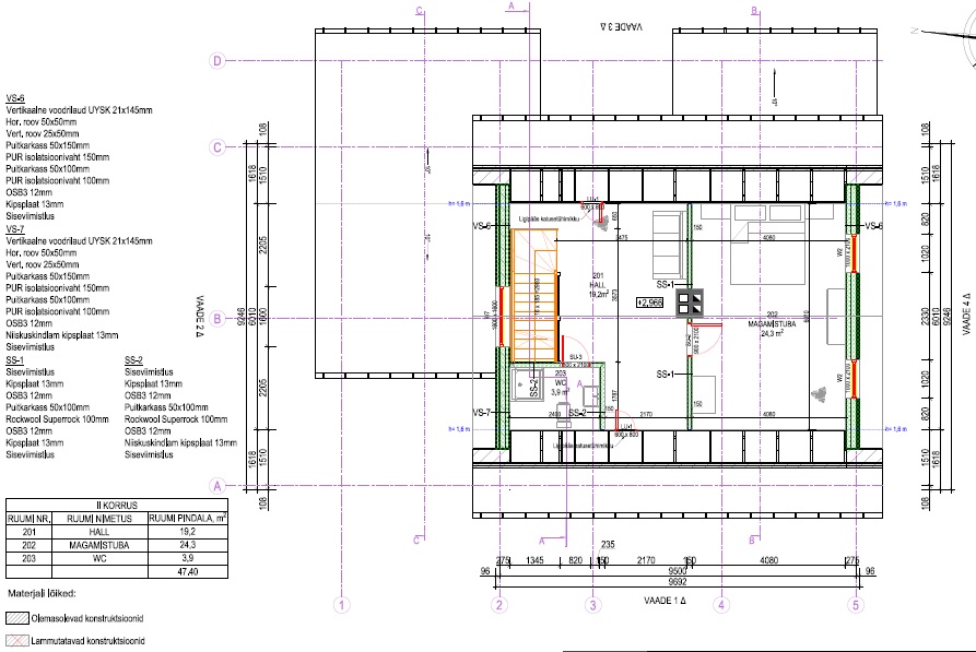
Töö sisu

Tuhaplokk müürid on olemas. Teise korruse ülesehitamine fermidega (fermid tellija poolt), Katusekatte(Valtsplekk plekk tellija poolt) paigaldus koos sinna juurde kuuluva aluskattega. Vahelae väljaehitamine koos vesipõrandakütte paigaldusega(Tycroc plaadid). Esimese korruse vesipõrandakütte paigaldus ja betoonivalu. Katuslae katmine osb plaadiga. Välisfassaadi paigaldus(vertikaal laudis). Soojustab tellija(pur vaht). Vundamendi soojustamine.
Lammutustööd teeb tellija.

Palun suuremate tööde hinnad eraldi välja tuua.

Pildid, video ja failid

Hanke korraldaja: eraisik ID56299

Pakkumised

Pakkumisi kokku: 1

Ettevõte Summa Käibemaks Lisatud Vestlus
Kasutaja ikoon ID56388
Pakkuja profiil Väike nool paremale
18 300€ Sisaldab KM Sisaldab KM 26.07.2020 Vestlus (2)

Pakkumise kirjeldus:

Vajalik mõlemale maja poole paigaldada fassaadi laudis.

Küsimused hanke korraldajale

Küsimus: private ID46961   02.08.2020 07:26
Tere. Kas katusele tuleb valtsprofiilplekk või päris valtsplekk?

Teavita reeglite rikkumisest

Korraldaja vastus: 02.08.2020 12:13

Tere!
Tegelikult hoopis klassikprofiil.
Muudan kirjelduses ära.

Teavita reeglite rikkumisest

Lisa küsimus

Lisa küsimus

Minu pakkumine

Reeglid

Pakkumise kirjelduse väli on mõeldud pakkumise detailsemaks lahti kirjutamiseks. Pikema teksti mugavaks sisestamiseks klikkige kasti paremal ülaservas oleval ikoonil.
Pakkumist tehes on keelatud postitada enda kontaktandmeid (nimi, telefon, aadress jne). Me jälgime ja analüüsime pakkumisi, et vältida pettuseid ja reeglite rikkumisi.
Rikkumise puhul kasutajakonto blokeeritakse.

 

Teisi töid samas valdkonnas

Valdkonnas "Renoveerimine" on 2 aktiivset tööd

no-img Pilt puudub

Renoveerimisprojekti koostamine

Asukoht: Läänemaa, Matsalu
Aega jäänud: 2p 6h
Tehtud pakkumisi: 4

Saunamaja renoveerimine väljastpoolt

Asukoht: Ida-Virumaa, Kiviõli
Aega jäänud: 6h 59 min
Tehtud pakkumisi: 0

Vanemad teated:

Vaata kõiki

Sellel veebilehel kasutatakse küpsiseid. Kasutamist jätkates nõustute küpsiste kasutamisega.

Sulge
 
Minu pakkumine

Reeglid

Pakkumise kirjelduse väli on mõeldud pakkumise detailsemaks lahti kirjutamiseks. Pikema teksti mugavaks sisestamiseks klikkige kasti paremal ülaservas oleval ikoonil.
Pakkumist tehes on keelatud postitada enda kontaktandmeid (nimi, telefon, aadress jne). Me jälgime ja analüüsime pakkumisi, et vältida pettuseid ja reeglite rikkumisi.
Rikkumise puhul kasutajakonto blokeeritakse.