+ Lisa oma töö      

Otsid ehitajat "Plaatimistööd" valdkonnast?

Parima pakkumise ja teostaja leidmiseks lisa oma töö.

Plaatimine

ID 53155

522 vaatamist

Prindi

  • check Pakkumiste tegemine
    kuni 02.08.2020
  • check Võitja valik kuni
    09.08.2020
  • 3 Töö teostamine
    ja hinnang
Hanke lõpp: P, 2. august, 2020
Maakond: Harjumaa
Tööde algus: E, 21. september, 2020 (Soovituslik)
Tööde lõpp: P, 25. oktoober, 2020 (Soovituslik)
Ehitusmaterjalid: Töö tellija poolt
Soovin pakkumisi: Tüki- või ühikuhinda

Töö sisu

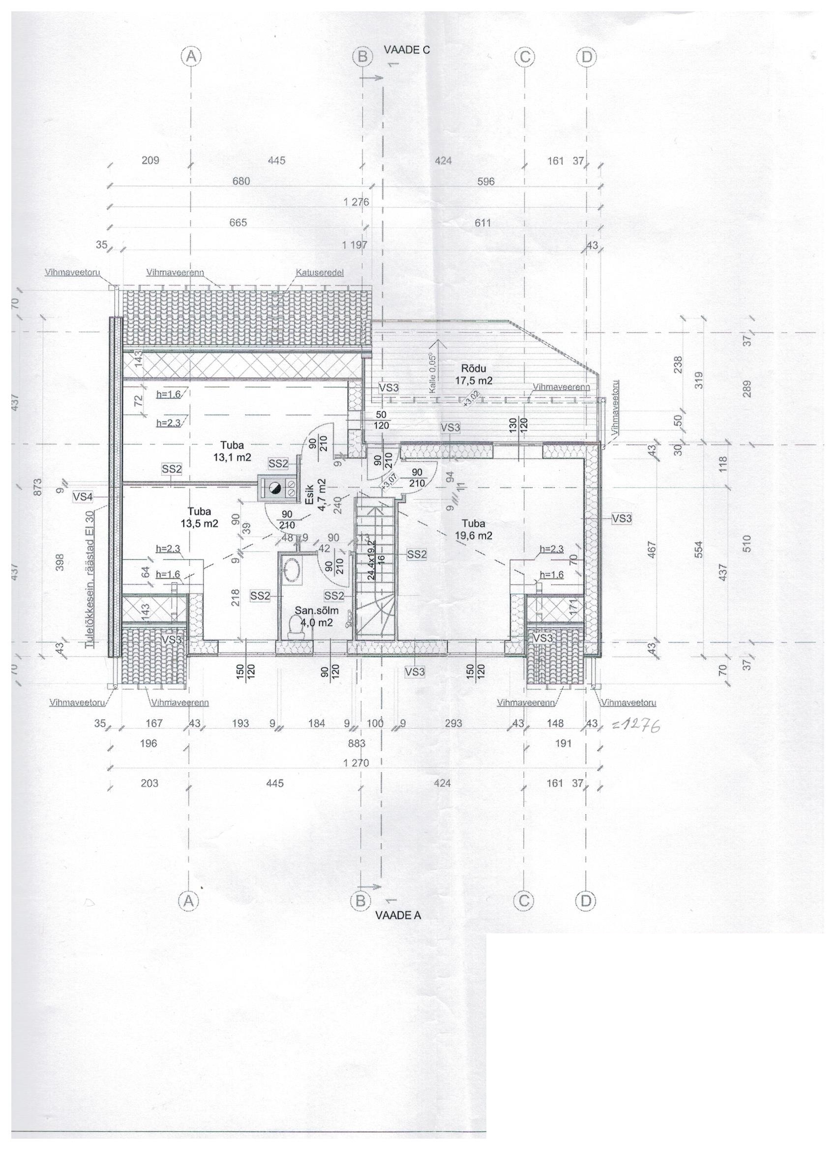
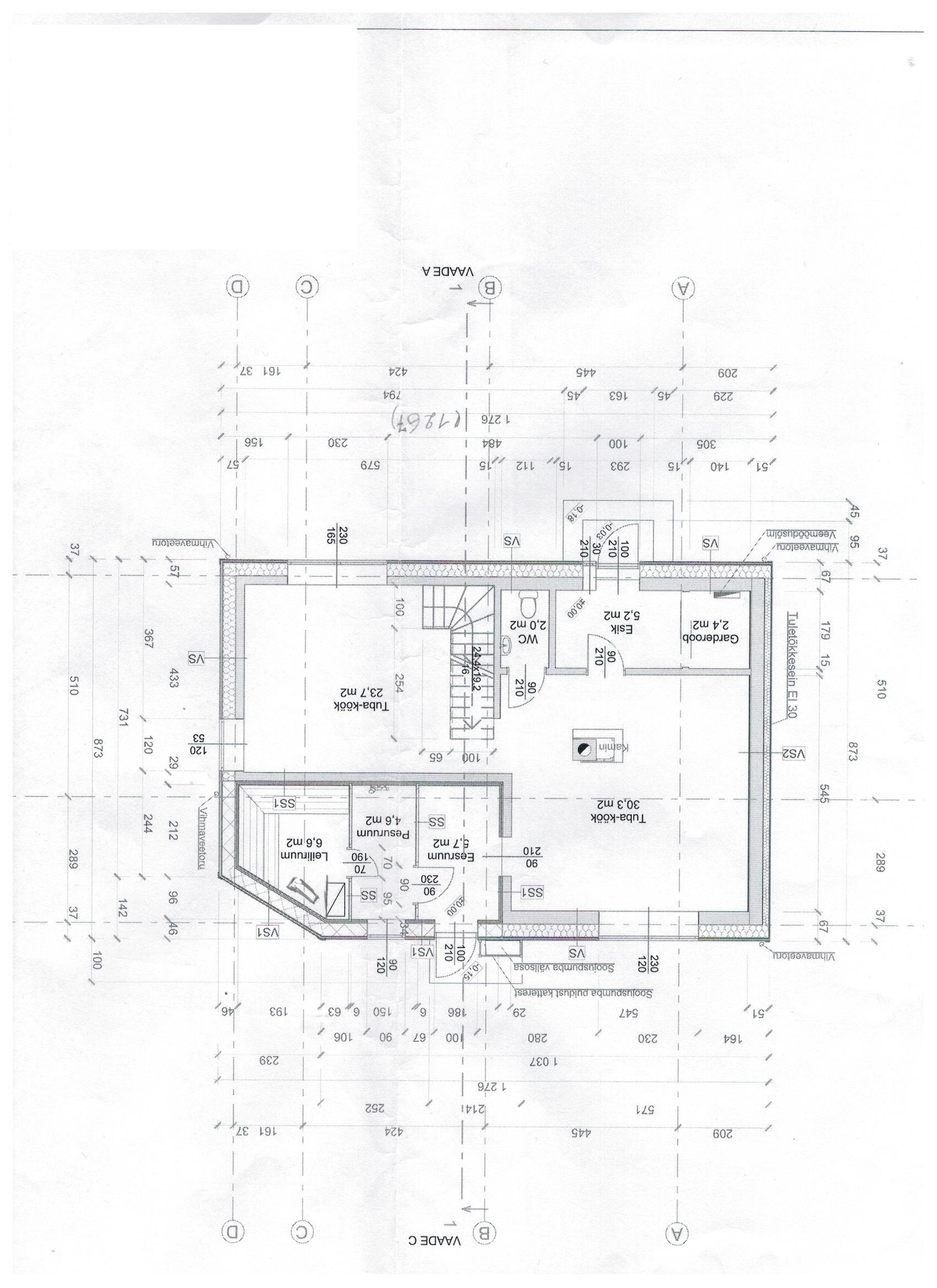
Plaatimine ja hüdroeristuse paigaldmine eramajas. Kipsseinte ja betoonpõrandate plaatimine. Paigaldussegu plaatijal, võin ka ise osta. Vuugisegu minu poolt. Võib ka pakkuda paigaldus ilma seguta. Pakkuda m2 hind. Pinda kokku umbes 50-80m2. Kõõk , dušši ruum ja saun.

Pildid, video ja failid

Hanke korraldaja: eraisik ID28882

Pakkumised

Pakkumisi kokku: 5

Ettevõte Summa Käibemaks Lisatud Vestlus
Kasutaja ikoon ID56388
Pakkuja profiil Väike nool paremale
5 800€ Ei ole KMKR Ei ole KMKR 26.07.2020 Vestlus (0)

Pakkumise kirjeldus:

Teeme tööd kvaliteetselt ja saame alustada kohe peale ettemaksu laekumist.

Kasutaja ikoon ID49387
Pakkuja profiil Väike nool paremale
4 600€ KM lisandub KM lisandub 29.07.2020 Vestlus (0)

Pakkumise kirjeldus:

Tervitus

Pakkumine sisaldab hüdroisolatsiooni , plaatimist, vuukimis ja silikoonimis töid.
Pakkumises sisaldub plaatimissegu ja viimistlus silikoon.
Anname tööle 3 aastase garantii.

Parimat

Kasutaja ikoon ID27299
Pakkuja profiil Väike nool paremale
4 600€ Ei ole KMKR Ei ole KMKR 31.07.2020 Vestlus (0)

Pakkumise kirjeldus:

Pole võimalik pakkuda ruudu hinda, sellise info peale.

Kasutaja ikoon ID11067
Pakkuja profiil Väike nool paremale
35€ Sisaldab KM Sisaldab KM 02.08.2020 Vestlus (0)

Pakkumise kirjeldus:

Töö kiire ja korralik, tehtud tööle garantii. Hind sisaldab ruut eetri hinda.

Kasutaja ikoon ID23896
Pakkuja profiil Väike nool paremale
4 500€ Sisaldab KM Sisaldab KM 02.08.2020 Vestlus (0)

Küsimused hanke korraldajale

Küsimus: private ID48307   31.07.2020 06:42
Tere! Kus Harjumaal objekt asub?

Teavita reeglite rikkumisest

Korraldaja vastus: 02.08.2020 08:39

Tallinnas

Teavita reeglite rikkumisest

Lisa küsimus

Lisa küsimus

Minu pakkumine

Reeglid

Pakkumise kirjelduse väli on mõeldud pakkumise detailsemaks lahti kirjutamiseks. Pikema teksti mugavaks sisestamiseks klikkige kasti paremal ülaservas oleval ikoonil.
Pakkumist tehes on keelatud postitada enda kontaktandmeid (nimi, telefon, aadress jne). Me jälgime ja analüüsime pakkumisi, et vältida pettuseid ja reeglite rikkumisi.
Rikkumise puhul kasutajakonto blokeeritakse.

 

Teisi töid samas valdkonnas

Valdkonnas "Plaatimistööd" on 2 aktiivset tööd

Trepikoja plaatimine

Asukoht: Tartumaa, Ülenurme
Aega jäänud: 4p 17h
Tehtud pakkumisi: 2

Pesuruumi plaatimine 12.6 m2

Asukoht: Tartumaa, Teedla
Aega jäänud: 1p 17h
Tehtud pakkumisi: 0

Vanemad teated:

Vaata kõiki

Sellel veebilehel kasutatakse küpsiseid. Kasutamist jätkates nõustute küpsiste kasutamisega.

Sulge
 
Minu pakkumine

Reeglid

Pakkumise kirjelduse väli on mõeldud pakkumise detailsemaks lahti kirjutamiseks. Pikema teksti mugavaks sisestamiseks klikkige kasti paremal ülaservas oleval ikoonil.
Pakkumist tehes on keelatud postitada enda kontaktandmeid (nimi, telefon, aadress jne). Me jälgime ja analüüsime pakkumisi, et vältida pettuseid ja reeglite rikkumisi.
Rikkumise puhul kasutajakonto blokeeritakse.