+ Lisa oma töö      

Otsid ehitajat "Vundamenditööd" valdkonnast?

Parima pakkumise ja teostaja leidmiseks lisa oma töö.

Vundamendi soojustamine

ID 53025

531 vaatamist

Prindi

  • check Pakkumiste tegemine
    kuni 26.07.2020
  • check Võitja valik kuni
    02.08.2020
  • 3 Töö teostamine
    ja hinnang
Hanke lõpp: P, 26. juuli, 2020
Maakond: Harjumaa
Tööde algus: E, 24. august, 2020 (Soovituslik)
Tööde lõpp: E, 31. august, 2020 (Soovituslik)
Ehitusmaterjalid: Töö tellija poolt
Soovin pakkumisi: Tüki- või ühikuhinda

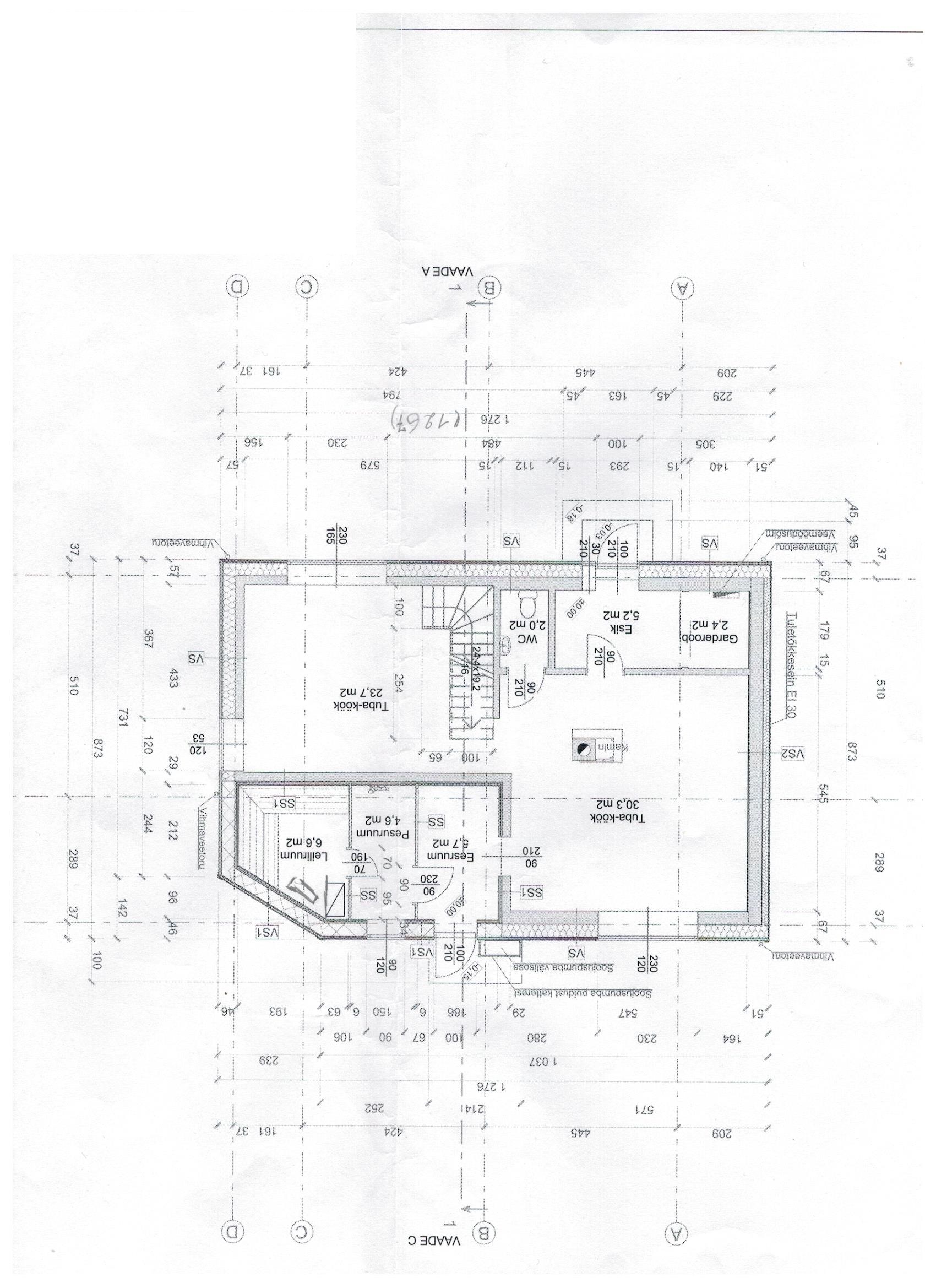
Töö sisu

Kaevata lahti vundament umbes 70cm sügavuselt. Vundament on umbes 50% ulatuses paekivi ja 50% betoon. Vertikaal soojustus paekivil 150 Finnfoam +50mm ebs-i graanul. Betoonil 100mm EPS+100mm Finnfoam , ja horisontaalselt 100 Finnfoam ja täita.

Pildid, video ja failid

Hanke korraldaja: eraisik ID28882

Pakkumised

Pakkumisi kokku: 4

Ettevõte Summa Käibemaks Lisatud Vestlus
Kasutaja ikoon ID39222
Pakkuja profiil Väike nool paremale
7 600€ Sisaldab KM Sisaldab KM 12.07.2020 Vestlus (0)
Kasutaja ikoon ID44230
Pakkuja profiil Väike nool paremale
8 150€ Sisaldab KM Sisaldab KM 14.07.2020 Vestlus (0)

Pakkumise kirjeldus:

PAKKUMINE SISALDAB:
1.KOIK VAJALIKUD MEHANIZMID
2.PRUGI UTILISEERIMINE
3.VUNDAMENTI SOOJUSTAMINE
4.KORISTUS

Kasutaja ikoon ID55775
Pakkuja profiil Väike nool paremale
6 000€ Sisaldab KM Sisaldab KM 19.07.2020 Vestlus (2)
Kasutaja ikoon ID23896
Pakkuja profiil Väike nool paremale
6 800€ Sisaldab KM Sisaldab KM 26.07.2020 Vestlus (0)

Küsimused hanke korraldajale

Hanke korraldajale ei ole veel küsimusi esitatud.

Lisa küsimus

Lisa küsimus

Minu pakkumine

Reeglid

Pakkumise kirjelduse väli on mõeldud pakkumise detailsemaks lahti kirjutamiseks. Pikema teksti mugavaks sisestamiseks klikkige kasti paremal ülaservas oleval ikoonil.
Pakkumist tehes on keelatud postitada enda kontaktandmeid (nimi, telefon, aadress jne). Me jälgime ja analüüsime pakkumisi, et vältida pettuseid ja reeglite rikkumisi.
Rikkumise puhul kasutajakonto blokeeritakse.

 

Vanemad teated:

Vaata kõiki

Sellel veebilehel kasutatakse küpsiseid. Kasutamist jätkates nõustute küpsiste kasutamisega.

Sulge
 
Minu pakkumine

Reeglid

Pakkumise kirjelduse väli on mõeldud pakkumise detailsemaks lahti kirjutamiseks. Pikema teksti mugavaks sisestamiseks klikkige kasti paremal ülaservas oleval ikoonil.
Pakkumist tehes on keelatud postitada enda kontaktandmeid (nimi, telefon, aadress jne). Me jälgime ja analüüsime pakkumisi, et vältida pettuseid ja reeglite rikkumisi.
Rikkumise puhul kasutajakonto blokeeritakse.