+ Lisa oma töö      

Otsid ehitajat "Siseviimistlustööd" valdkonnast?

Parima pakkumise ja teostaja leidmiseks lisa oma töö.

3 tuba ning wc tapeet eemaldada ja seinad värvida, mööbel komplekteerida

ID 52979

436 vaatamist

Prindi

  • check Pakkumiste tegemine
    kuni 12.07.2020
  • check Võitja valik kuni
    19.07.2020
  • 3 Töö teostamine
    ja hinnang
Hanke lõpp: P, 12. juuli, 2020
Maakond: Harjumaa
Muu asula: Harkujärve
Tööde algus: E, 13. juuli, 2020 (Soovituslik)
Tööde lõpp: R, 17. juuli, 2020
Ehitusmaterjalid: Töö tellija poolt
Soovin pakkumisi: Summa kogu projektile

Töö sisu

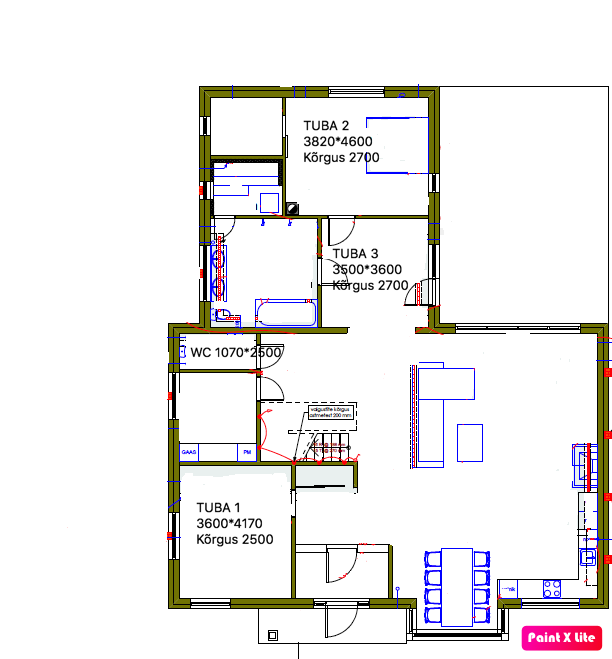
Elumaja esimesel korrusel, Harkujärvel vaja eemaldada vana tapeet kolmes toas ja tualetis. Seintel parandada augud (piltide ja riiulite kruvide kinnitusaugud).

Pabertapeet kõigis kolmes ruumis, seinad on krohvitud AEROC, tapeet on paigaldatud värvitud seinale.

Seinad värvida. Komplekteerida mööbel (IKEA) - kirjutuslaud, seinale kinnitada 2 riiulit ning kokku panna riidekapp (180cm*150cm*90cm).

Tööde teostamisel eemaldada kardinapuud, rulood, lülitid, pistikud ja põrandaliistud ning need ka tagasi panna. Olemasolev kohtpaigaldatav mööbel tõsta tööde ajaks kõrvaltuppa ja hiljem ka tagasi tuua.

Pildid, video ja failid

Hanke korraldaja: eraisik ID49464

Pakkumised

Pakkumisi kokku: 1

Ettevõte Summa Käibemaks Lisatud Vestlus
Kasutaja ikoon ID50979
Pakkuja profiil Väike nool paremale
2 500€ Ei ole KMKR Ei ole KMKR 11.07.2020 Vestlus (0)

Pakkumise kirjeldus:

Töö võimalus teostada 19-25juuli.Juhul kui tapeet ei tule ilusti maha seinast ja tarvis lauspahteldama hakata vms.siis tuleb teine hind ja teine töö teostusaeg.Leping,kvaliteet,garantii 5aastat,ettemaksu ei soovi,km.ei lisandu.Vajadusel materjali tarne meilt.Lisaküsimuste korral kirjutage Vestlusesse.parimatega Margus

Küsimused hanke korraldajale

Hanke korraldajale ei ole veel küsimusi esitatud.

Lisa küsimus

Lisa küsimus

Minu pakkumine

Reeglid

Pakkumise kirjelduse väli on mõeldud pakkumise detailsemaks lahti kirjutamiseks. Pikema teksti mugavaks sisestamiseks klikkige kasti paremal ülaservas oleval ikoonil.
Pakkumist tehes on keelatud postitada enda kontaktandmeid (nimi, telefon, aadress jne). Me jälgime ja analüüsime pakkumisi, et vältida pettuseid ja reeglite rikkumisi.
Rikkumise puhul kasutajakonto blokeeritakse.

 

Teisi töid samas valdkonnas

Valdkonnas "Siseviimistlustööd" on 24 aktiivset tööd

Korteri remont

Asukoht: Harjumaa, Muraste
Aega jäänud: 2p 5h
Tehtud pakkumisi: 15

Seinte pahteldus ja värvimine

Asukoht: Harjumaa, Türisalu
Aega jäänud: 3p 5h
Tehtud pakkumisi: 7

Vanemad teated:

Vaata kõiki

Sellel veebilehel kasutatakse küpsiseid. Kasutamist jätkates nõustute küpsiste kasutamisega.

Sulge
 
Minu pakkumine

Reeglid

Pakkumise kirjelduse väli on mõeldud pakkumise detailsemaks lahti kirjutamiseks. Pikema teksti mugavaks sisestamiseks klikkige kasti paremal ülaservas oleval ikoonil.
Pakkumist tehes on keelatud postitada enda kontaktandmeid (nimi, telefon, aadress jne). Me jälgime ja analüüsime pakkumisi, et vältida pettuseid ja reeglite rikkumisi.
Rikkumise puhul kasutajakonto blokeeritakse.