+ Lisa oma töö      

Otsid ehitajat "Puusepatööd" valdkonnast?

Parima pakkumise ja teostaja leidmiseks lisa oma töö.

I korruse laetalade osaline vahetamine ja liimpuittala paigaldus

ID 52922

978 vaatamist

Prindi

  • check Pakkumiste tegemine
    kuni 14.07.2020
  • check Võitja valik kuni
    15.07.2020
  • 3 Töö teostamine
    ja hinnang
Hanke lõpp: T, 14. juuli, 2020
Maakond: Harjumaa
Muu asula: Muraste küla
Tööde algus: T, 14. juuli, 2020 (Soovituslik)
Tööde lõpp: R, 31. juuli, 2020 (Soovituslik)
Ehitusmaterjalid: Töö tegija poolt
Soovin pakkumisi: Summa kogu projektile

Töö sisu

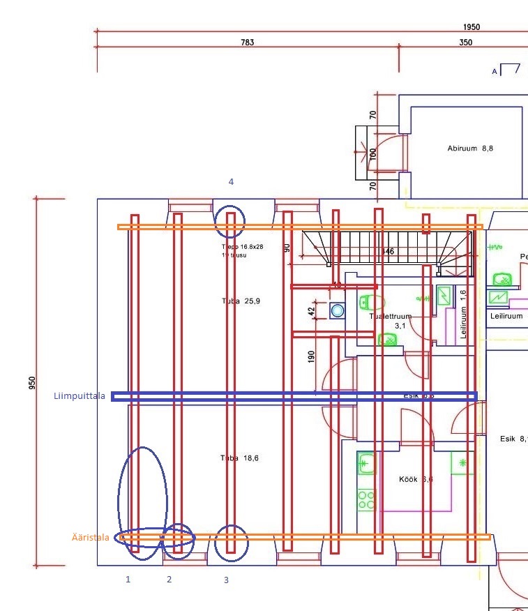
Vaja vahetada / parandada esimese korruse neli laetala ja ääris ning paigaldada liimpuittala (vt joonis).
1. Ääris - majavammi ja niiskuse kahjustus ca 120 cm ulatuses;
2. Tala 1 - majavammi kahjustus ca 170 cm ulatuses;
3. Tala 2 – majavammi ja niiskuse kahjustus tala müüripealses osas;
4. Tala 3 -niiskuse kahjustus tala müüripealses osas;
5. Tala 4 - niiskuse kahjustus tala müüripealses osas;

Töö toimub mitmes etapis:
I. Täpsustatakse laetalade parandamine. Teostatakse vajalikkes kohtades müür, kõikide laetalade kandva vaheseina lammutamiseks ja vajalikes kohtades teise korruse põranda toestus. Lõigatakse välja vammi kahjustusega osad (tala 1-2 ja 2, ääris ja vajadusel tala 3);
II.. Peale seda teostatakse teise pakkuja poolt majavammi tõrje tala 1-3 ning äärise läheduses (kestvus 1 päev);
III. Töö tellija lammutab ise kandva vaheseina ja tugevdab liimpuittala postide vundamendi (täpne vajadus selgub hiljem, kui põrand on lammutatud),
IV. Töö teostaja poolt vahetatakse välja / parandatakse talad 1-4 ja ääris. Kõik uued puitelemendid tuleb võõbata üle vammivastase ainega (aine on töö tellija poolt). Paigaldatakse liimpuittala, mis ühest otsas jääb toetama seina avausse, teise otsa ja keskele tuleb kandma post.
Liimpuittala ja selle postid soetab töö tellija.

Pildid, video ja failid

Hanke korraldaja: eraisik ID56024

Pakkumised

Pakkumisi kokku: 0

Küsimused hanke korraldajale

Hanke korraldajale ei ole veel küsimusi esitatud.

Lisa küsimus

Lisa küsimus

Minu pakkumine

Reeglid

Pakkumise kirjelduse väli on mõeldud pakkumise detailsemaks lahti kirjutamiseks. Pikema teksti mugavaks sisestamiseks klikkige kasti paremal ülaservas oleval ikoonil.
Pakkumist tehes on keelatud postitada enda kontaktandmeid (nimi, telefon, aadress jne). Me jälgime ja analüüsime pakkumisi, et vältida pettuseid ja reeglite rikkumisi.
Rikkumise puhul kasutajakonto blokeeritakse.

 

Vanemad teated:

Vaata kõiki

Sellel veebilehel kasutatakse küpsiseid. Kasutamist jätkates nõustute küpsiste kasutamisega.

Sulge
 
Minu pakkumine

Reeglid

Pakkumise kirjelduse väli on mõeldud pakkumise detailsemaks lahti kirjutamiseks. Pikema teksti mugavaks sisestamiseks klikkige kasti paremal ülaservas oleval ikoonil.
Pakkumist tehes on keelatud postitada enda kontaktandmeid (nimi, telefon, aadress jne). Me jälgime ja analüüsime pakkumisi, et vältida pettuseid ja reeglite rikkumisi.
Rikkumise puhul kasutajakonto blokeeritakse.