+ Lisa oma töö      

Otsid ehitajat "Küttesüsteemid" valdkonnast?

Parima pakkumise ja teostaja leidmiseks lisa oma töö.

Eramu radiaatorite ja torustike paigaldus

ID 52895

711 vaatamist

Prindi

  • check Pakkumiste tegemine
    kuni 21.07.2020
  • check Võitja valik kuni
    28.07.2020
  • 3 Töö teostamine
    ja hinnang
Hanke lõpp: T, 21. juuli, 2020
Maakond: Harjumaa
Linn: Tallinn
Tööde algus: E, 27. juuli, 2020 (Soovituslik)
Tööde lõpp: K, 30. september, 2020 (Soovituslik)
Ehitusmaterjalid: Töö tegija poolt
Soovin pakkumisi: Summa kogu projektile

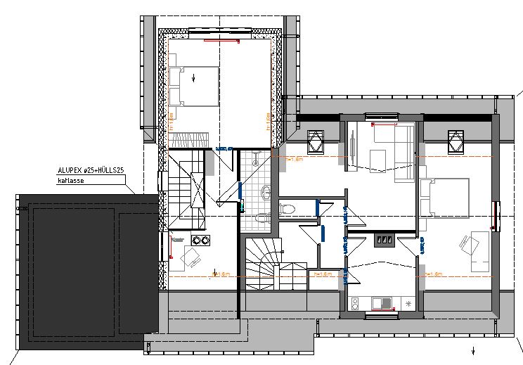
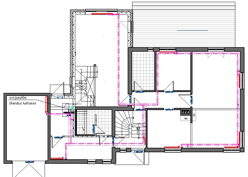
Töö sisu

~150 m2 eramu radiaatorite ja torustike paigaldus. Kokku umbes ~8-9 - tuba. Katel olemas - vaja ühendada katlapumbaringi radiaatorid. Samuti neljas toas põrandaküte. Neile vaja kollektorist ühendused katlasse. Torud paigaldada lae all ja seinal nähtavad teraspress või alupex, vastavalt küttejoonistele.

Pildid, video ja failid

Hanke korraldaja: eraisik ID51453

Pakkumised

Pakkumisi kokku: 1

Ettevõte Summa Käibemaks Lisatud Vestlus
Kasutaja ikoon ID1572
Pakkuja profiil Väike nool paremale
995€ KM lisandub KM lisandub 21.07.2020 Vestlus (0)

Pakkumise kirjeldus:

Pakkumine 2 katlaringi ehituseks ja olemasolevate põrandakütte kollektorite ühendamiseks. Radiaatorkütte torustiku ehitus ja radiaatorite paigalduse pakkumine, peale objektiga tutvumist.

Küsimused hanke korraldajale

Küsimus: private ID56103   08.07.2020 21:57
Tere! Millise katlaga on tegu, kas maja on keldriga , kas I ja II korruse radiaatorite torude saab vedada lagede pealt ja põrandadest? Põrandad võetakse lahti?

Teavita reeglite rikkumisest

Korraldaja vastus: 09.07.2020 11:00

Tere. Põrandaid lahti ei võeta. Katel on Viadrus puukatel. Keldrisse torusi ei tule. 2 korruse radiaatorite magistraal oleks esimese korruse lae all.

Teavita reeglite rikkumisest

Küsimus: private ID56103   09.07.2020 16:40
Kas põrandaküte on paigaldatud juba, ehk et on kollektorit ja selle ühendust siis vaja? Kas akupaak on olemas? Segusõlm on vaja välja ehitada?
Tänud!

Teavita reeglite rikkumisest

Korraldaja vastus: 09.07.2020 19:40

Jah põrandaküttesiud on paigaldatud. Teisele korrusele on veetud toru katlaruumist kollektorini, vaja ühendada siud magistraaliga kollektoriga. 1 korrusel põrandakütte kollektor olemas ja siud ühendatud ja asub katla ruumis, vaja teha ühendused katlaringi. Akumulatsioonipaak olemas. Tuleb teha kaks pumbaringi - üks radiaatorid, teine põrandaküte.

Teavita reeglite rikkumisest

Küsimus: private ID1572   20.07.2020 19:28
Tere! kas radiaatorid on Teil olemas ja kas katel on ühendatud akupaagiga?

Teavita reeglite rikkumisest

Korraldaja vastus:
Hanke korraldaja ei ole küsimusele veel vastanud

Lisa küsimus

Lisa küsimus

Minu pakkumine

Reeglid

Pakkumise kirjelduse väli on mõeldud pakkumise detailsemaks lahti kirjutamiseks. Pikema teksti mugavaks sisestamiseks klikkige kasti paremal ülaservas oleval ikoonil.
Pakkumist tehes on keelatud postitada enda kontaktandmeid (nimi, telefon, aadress jne). Me jälgime ja analüüsime pakkumisi, et vältida pettuseid ja reeglite rikkumisi.
Rikkumise puhul kasutajakonto blokeeritakse.

 

Teisi töid samas valdkonnas

Valdkonnas "Küttesüsteemid" on 2 aktiivset tööd

no-img Pilt puudub

Küttesüsteemi püstakute vahetus ja radiaatoritega ühendamine

Asukoht: Järvamaa, Paide
Aega jäänud: 3p 16h
Tehtud pakkumisi: 2

Cooper&Hunter Consol Inverter 18

Asukoht: Harjumaa, Tallinn
Aega jäänud: 16h 54 min
Tehtud pakkumisi: 1

Vanemad teated:

Vaata kõiki

Sellel veebilehel kasutatakse küpsiseid. Kasutamist jätkates nõustute küpsiste kasutamisega.

Sulge
 
Minu pakkumine

Reeglid

Pakkumise kirjelduse väli on mõeldud pakkumise detailsemaks lahti kirjutamiseks. Pikema teksti mugavaks sisestamiseks klikkige kasti paremal ülaservas oleval ikoonil.
Pakkumist tehes on keelatud postitada enda kontaktandmeid (nimi, telefon, aadress jne). Me jälgime ja analüüsime pakkumisi, et vältida pettuseid ja reeglite rikkumisi.
Rikkumise puhul kasutajakonto blokeeritakse.