+ Lisa oma töö      

Otsid ehitajat "Vundamenditööd" valdkonnast?

Parima pakkumise ja teostaja leidmiseks lisa oma töö.

Plaatvundamendi ehitus Lääne-Nigula vallas

ID 52764

646 vaatamist

Prindi

  • check Pakkumiste tegemine
    kuni 01.07.2020
  • check Võitja valik kuni
    08.07.2020
  • 3 Töö teostamine
    ja hinnang
Hanke lõpp: K, 1. juuli, 2020
Maakond: Läänemaa
Muu asula: Lääne-Nigula vald
Tööde algus: E, 13. juuli, 2020 (Soovituslik)
Tööde lõpp: N, 30. juuli, 2020
Ehitusmaterjalid: Töö tegija poolt
Soovin pakkumisi: Summa kogu projektile

Töö sisu

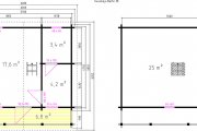
Plaatvundament saunamajale ehitusaluse pinnaga 33,9 m2, millest terrass moodustab 6,82 m2. Täpsem info kaasas olevas eskiisil, erinevalt eskiisist ei tule arvestada elektriküttega, kuid lisaks vee, kanalisatsiooni ja elektriotsad läbi plaatvundamendi.

Pildid, video ja failid

Hanke korraldaja: eraisik ID55927

Pakkumised

Pakkumisi kokku: 1

Ettevõte Summa Käibemaks Lisatud Vestlus
Kasutaja ikoon ID55775
Pakkuja profiil Väike nool paremale
17 500€ Sisaldab KM Sisaldab KM 01.07.2020 Vestlus (0)

Küsimused hanke korraldajale

Hanke korraldajale ei ole veel küsimusi esitatud.

Lisa küsimus

Lisa küsimus

Minu pakkumine

Reeglid

Pakkumise kirjelduse väli on mõeldud pakkumise detailsemaks lahti kirjutamiseks. Pikema teksti mugavaks sisestamiseks klikkige kasti paremal ülaservas oleval ikoonil.
Pakkumist tehes on keelatud postitada enda kontaktandmeid (nimi, telefon, aadress jne). Me jälgime ja analüüsime pakkumisi, et vältida pettuseid ja reeglite rikkumisi.
Rikkumise puhul kasutajakonto blokeeritakse.

 

Vanemad teated:

Vaata kõiki

Sellel veebilehel kasutatakse küpsiseid. Kasutamist jätkates nõustute küpsiste kasutamisega.

Sulge
 
Minu pakkumine

Reeglid

Pakkumise kirjelduse väli on mõeldud pakkumise detailsemaks lahti kirjutamiseks. Pikema teksti mugavaks sisestamiseks klikkige kasti paremal ülaservas oleval ikoonil.
Pakkumist tehes on keelatud postitada enda kontaktandmeid (nimi, telefon, aadress jne). Me jälgime ja analüüsime pakkumisi, et vältida pettuseid ja reeglite rikkumisi.
Rikkumise puhul kasutajakonto blokeeritakse.