+ Lisa oma töö      

Otsid ehitajat "Plaatimistööd" valdkonnast?

Parima pakkumise ja teostaja leidmiseks lisa oma töö.

Pesuruumi ehitus

ID 52759

490 vaatamist

Prindi

  • check Pakkumiste tegemine
    kuni 13.07.2020
  • check Võitja valik kuni
    14.07.2020
  • 3 Töö teostamine
    ja hinnang
Hanke lõpp: E, 13. juuli, 2020
Maakond: Raplamaa
Linn: Rapla
Muu asula: Raikküla
Tööde algus: T, 01. detsember, 2020 (Soovituslik)
Tööde lõpp: R, 01. jaanuar, 2021 (Soovituslik)
Ehitusmaterjalid: Töö tegija poolt
Soovin pakkumisi: Summa kogu projektile

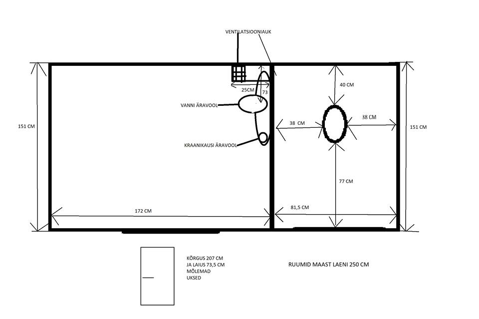
Töö sisu

Korterelamus pesuruumi ja wc vaheseina eemaldamine ja ruumide kokkuehitamine. Vanni dušiga asendamine. Duši alla trapp põrandasse (ilma dušikabiinita). Põrandale duši alla kalle, mujal ilma kaldeta. Kraanikausi paigaldamine. Pesumasina ühendamise võimalus. Ühe ukseava sulgemine ja teise laiendamine. (Boiler on olemas, see on vaja paika panna).
Põranda ja seinte plaatimine. Põrandakütet ei ole vaja. Lakke uus viimistlus ja niiskuskindlad valgustid. Ventilatsiooni avasse niiskusanduriga elektriline ventilaator.

Pildid, video ja failid

Hanke korraldaja: eraisik ID55920

Pakkumised

Pakkumisi kokku: 0

Küsimused hanke korraldajale

Küsimus: private ID50979   12.07.2020 18:56
Kui madalal on äravool,kui äravoolu ei saa allapoole viia,siis peab põrandat juurde valama 15cm.

Teavita reeglite rikkumisest

Korraldaja vastus:
Hanke korraldaja ei ole küsimusele veel vastanud

Lisa küsimus

Lisa küsimus

Minu pakkumine

Reeglid

Pakkumise kirjelduse väli on mõeldud pakkumise detailsemaks lahti kirjutamiseks. Pikema teksti mugavaks sisestamiseks klikkige kasti paremal ülaservas oleval ikoonil.
Pakkumist tehes on keelatud postitada enda kontaktandmeid (nimi, telefon, aadress jne). Me jälgime ja analüüsime pakkumisi, et vältida pettuseid ja reeglite rikkumisi.
Rikkumise puhul kasutajakonto blokeeritakse.

 

Teisi töid samas valdkonnas

Valdkonnas "Plaatimistööd" on 2 aktiivset tööd

Trepikoja plaatimine

Asukoht: Tartumaa, Ülenurme
Aega jäänud: 4p 11h
Tehtud pakkumisi: 2

Pesuruumi plaatimine 12.6 m2

Asukoht: Tartumaa, Teedla
Aega jäänud: 1p 11h
Tehtud pakkumisi: 0

Vanemad teated:

Vaata kõiki

Sellel veebilehel kasutatakse küpsiseid. Kasutamist jätkates nõustute küpsiste kasutamisega.

Sulge
 
Minu pakkumine

Reeglid

Pakkumise kirjelduse väli on mõeldud pakkumise detailsemaks lahti kirjutamiseks. Pikema teksti mugavaks sisestamiseks klikkige kasti paremal ülaservas oleval ikoonil.
Pakkumist tehes on keelatud postitada enda kontaktandmeid (nimi, telefon, aadress jne). Me jälgime ja analüüsime pakkumisi, et vältida pettuseid ja reeglite rikkumisi.
Rikkumise puhul kasutajakonto blokeeritakse.