+ Lisa oma töö      

Otsid ehitajat "Maalritööd" valdkonnast?

Parima pakkumise ja teostaja leidmiseks lisa oma töö.

Hange on lõppenud!

Võitjaks osutus kasutaja ID 8633

Korraldaja hinnang tehtud tööle

5.0
27.11.2020
Töökiirus: 12345
Kvaliteet: 12345
Hind: 12345

Tööga väga rahul ja soovitan kindlasti! Anti nõu, mõeldi kaasa ja pakuti häid lahendusi. Väga kiired ja korralikud :) . Aitäh Teile. - Rasmus L.

Eramaja siseviimistlus.

ID 52640

1608 vaatamist

Prindi

  • check Pakkumiste tegemine
    kuni 09.07.2020
  • check Võitja valik kuni
    16.07.2020
  • 3 Töö teostamine
    ja hinnang
Hanke lõpp: N, 9. juuli, 2020
Maakond: Harjumaa
Linn: Saue
Muu asula: Alliku küla
Tööde algus: E, 17. august, 2020 (Soovituslik)
Tööde lõpp: R, 27. november, 2020
Ehitusmaterjalid: Töö tellija poolt
Soovin pakkumisi: Tüki- või ühikuhinda

Töö sisu

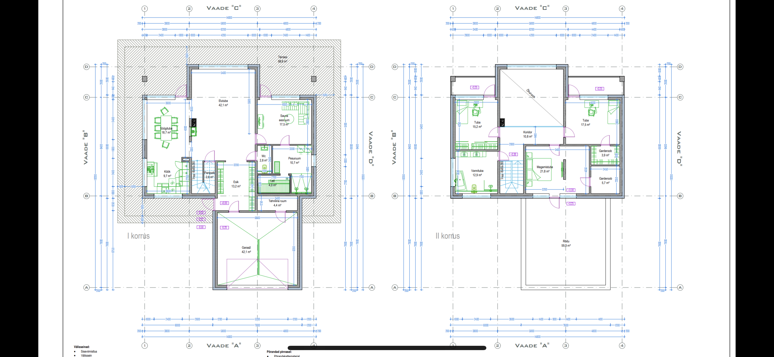
Eramajas siseviimistlusena siseseinte krohvimistööd ja värvimine ning paneel lagede viimistlemine ja värvimine. Maja seinad ehitatud fibo3 st.

Ettepanekud teretulnud kui peaks kasutama mingit muud lahendust krohvimise kihtide osas parema tulemuse saavutamiseks, hanke võitja valimisel võtan seda arvesse ja ei lähtu ainult odavaimast hinnast.

Kuupäevad on puhtalt soovituslikud, võib ka hiljem alustada, peamine eesmärk 27. November valmis saada.

Pildid, video ja failid

Hanke korraldaja: eraisik ID55780

Pakkumised

Pakkumisi kokku: 9

Ettevõte Summa Käibemaks Lisatud Vestlus
Kasutaja ikoon ID55532
Pakkuja profiil Väike nool paremale
25 031€ KM lisandub KM lisandub 25.06.2020 Vestlus (2)
Kasutaja ikoon ID55775
Pakkuja profiil Väike nool paremale
24 000€ Sisaldab KM Sisaldab KM 26.06.2020 Vestlus (15)
Kasutaja ikoon ID49687
Pakkuja profiil Väike nool paremale
25 078€ Ei ole KMKR Ei ole KMKR 26.06.2020 Vestlus (2)

Pakkumise kirjeldus:

Tere.
Pakkumine koostatud teie poolt antud joonise ja lisainfo põhjal.
Lõplik hind kujuneb objekti ülemõõtmise näol.
Krohvimine:
Olen arvestanud et koos armeeringuga on kihi paksus min.6mm. Esmalt õhukene kiht seinale ebatasasuste likvideerimiseks,
Siis armeeringu kiht koos vajaliku segukihiga,esmalt siis 6mm kammiga seina ning siis latiga ... Rohkem

Kasutaja ikoon ID49380
Pakkuja profiil Väike nool paremale
26 100€ Sisaldab KM Sisaldab KM 27.06.2020 Vestlus (0)

Pakkumise kirjeldus:

Hind tehtud krohvimisele ning viimistlusele koos materjaliga.


Lgp.

Kasutaja ikoon ID53064
Pakkuja profiil Väike nool paremale
22 600€ Sisaldab KM Sisaldab KM 30.06.2020 Vestlus (3)

Pakkumise kirjeldus:

Tere,

Esmalt valmistades majakad ning kasutades Knauf MP-75 katame seinad krohviga kaasates selleks krohvipritsi. kaetud sirgetele seintele paigaldame Ejot maalrivõrgu koos esimese kihi Vetonit L pahtliga. Järgmised kihid Vetonit LR+ ja Sheetrock viimistluspahtliga. Meie töödepuhul kehtib alati garantii.

Oleme eelnevalt teostanud sarnaste majade ... Rohkem

Kasutaja ikoon ID8633
Pakkuja profiil Väike nool paremale
23 050€ Sisaldab KM Sisaldab KM 03.07.2020 Vestlus (4)

Pakkumise kirjeldus:

töö,materjal

Kasutaja ikoon ID34985
Pakkuja profiil Väike nool paremale
25€ Sisaldab KM Sisaldab KM 03.07.2020 Vestlus (0)

Pakkumise kirjeldus:

Tehtud töödele garantii 2 aastat
Krohvimine koos võrguga 10-m2 +materjalid .Maalritööd 15-m2 +marerjalid

Kasutaja ikoon ID36865
Pakkuja profiil Väike nool paremale
19 500€ KM lisandub KM lisandub 08.07.2020 Vestlus (2)
Kasutaja ikoon ID46047
Pakkuja profiil Väike nool paremale
16 000€ Sisaldab KM Sisaldab KM 09.07.2020 Vestlus (2)

Pakkumise kirjeldus:

Tere!
Pakkumine sisaldab krohvimist( MP-75 +võrk), lauspahteldust, Kruntvärvimist ja kaks korda värvimist.
Tasumine ettappide kaupa tehtud töödelt.

Lp.

Küsimused hanke korraldajale

Küsimus: private ID49687   24.06.2020 21:14
Tere õhtust.
Sooviksin uurida selliseid asju:
Kui suur on seinte kõikumine ning kas on ka krohvi kihi paksus määratud koos võrguga?
Kui suures osas lähevad märgruumid krohvi ja pahtelduse ja värvi alla.
Kas on ka mingeid ruume mida ei pea üldse tegema või tuleb teha ainult osaliselt.
Kas on ka kipsipindasid?
Lp.
Reno

Teavita reeglite rikkumisest

Korraldaja vastus: 24.06.2020 23:18

Seine kõikumine on väga minimaalne. Krohvi kihi paksust määratud ei ole kuid peab olema piisavalt ( tulemus peab hea jääma kuna teen seda endale).
Kõik ruumid tuleb teha, kipsipindasid on vähe.Siseseinad laotud kõik fibo 3 st 150.
Märgruumid peaksid minema krohvi ja pahtelduse alla kuid hetkel ei ole veel selge kas värvi alla ka või läheb midagi muud sinna peale.

Teavita reeglite rikkumisest

Küsimus: private ID8633   29.06.2020 23:03
Tere,kas dwg joonised on olemas,ei saa aru kuidas inimesed m2 said,vaja vaadet,siis kas 2 korrusel on panel või puit fermid?

Teavita reeglite rikkumisest

Korraldaja vastus: 30.06.2020 01:37

2 korrusel on paneel. Lisan juurde ka dwg

Teavita reeglite rikkumisest

Küsimus: private ID8633   30.06.2020 09:31
Tanud

Teavita reeglite rikkumisest

Korraldaja vastus: 30.06.2020 16:26

.

Teavita reeglite rikkumisest

Lisa küsimus

Lisa küsimus

Minu pakkumine

Reeglid

Pakkumise kirjelduse väli on mõeldud pakkumise detailsemaks lahti kirjutamiseks. Pikema teksti mugavaks sisestamiseks klikkige kasti paremal ülaservas oleval ikoonil.
Pakkumist tehes on keelatud postitada enda kontaktandmeid (nimi, telefon, aadress jne). Me jälgime ja analüüsime pakkumisi, et vältida pettuseid ja reeglite rikkumisi.
Rikkumise puhul kasutajakonto blokeeritakse.

 

Teisi töid samas valdkonnas

Valdkonnas "Maalritööd" on 2 aktiivset tööd

Maja värvimine

Asukoht: Pärnumaa, Mereäärse
Aega jäänud: 2p 1h
Tehtud pakkumisi: 6

no-img Pilt puudub

Aia värvimine

Asukoht: Pärnumaa, Pärnu
Aega jäänud: 3p 1h
Tehtud pakkumisi: 1

Vanemad teated:

Vaata kõiki

Sellel veebilehel kasutatakse küpsiseid. Kasutamist jätkates nõustute küpsiste kasutamisega.

Sulge
 
Minu pakkumine

Reeglid

Pakkumise kirjelduse väli on mõeldud pakkumise detailsemaks lahti kirjutamiseks. Pikema teksti mugavaks sisestamiseks klikkige kasti paremal ülaservas oleval ikoonil.
Pakkumist tehes on keelatud postitada enda kontaktandmeid (nimi, telefon, aadress jne). Me jälgime ja analüüsime pakkumisi, et vältida pettuseid ja reeglite rikkumisi.
Rikkumise puhul kasutajakonto blokeeritakse.