+ Lisa oma töö      

Otsid ehitajat "Maalritööd" valdkonnast?

Parima pakkumise ja teostaja leidmiseks lisa oma töö.

Hange on lõppenud!

Võitjaks osutus kasutaja ID 52783

Korraldaja hinnang tehtud tööle

5.0
11.09.2020
Töökiirus: 12345
Kvaliteet: 12345
Hind: 12345

Väga korralik maalritöö, mis on oma hinda igati väärt. Töö vastuvõtul leitud pisivead parandati kohe järgmine päev. - Toivo A.

Näita pilte (1) Peida pildid

Enne:

Pärast:

  • IMG_20200811_203910.jpg

Mustamäe 2-toalise korteri maalritööd

ID 52612

1398 vaatamist

Prindi

  • check Pakkumiste tegemine
    kuni 07.07.2020
  • check Võitja valik kuni
    07.07.2020
  • 3 Töö teostamine
    ja hinnang
Hanke lõpp: T, 7. juuli, 2020
Maakond: Harjumaa
Linn: Tallinn
Muu asula: Mustamäe
Tööde algus: E, 06. juuli, 2020 (Soovituslik)
Tööde lõpp: E, 03. august, 2020 (Soovituslik)
Ehitusmaterjalid: Töö tellija poolt
Soovin pakkumisi: Summa kogu projektile

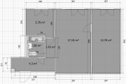
Töö sisu

2-toalises korteris üldpinnaga 45,3m2 vaja teostada vana tapeedi mahavõtmine, seinte ja lagede viimistlus, pahteldus ja värvimine.

Seinad (m2):
Magamistuba 40,5
Elutuba 43,5
Koridor 25
Köök 23,25

Laed (m2):
Magamistuba 13,79
Elutuba 17,19
Koridor 5,73
Köök 5,79

Pildid, video ja failid

Hanke korraldaja: eraisik ID51177

Pakkumised

Pakkumisi kokku: 10

Ettevõte Summa Käibemaks Lisatud Vestlus
Kasutaja ikoon ID18189
Pakkuja profiil Väike nool paremale
3 340€ Ei ole KMKR Ei ole KMKR 23.06.2020 Vestlus (0)

Pakkumise kirjeldus:

Teostama analoogseid remontöösid igapäevaselt, kui tööaeg pole piiratud ja piirdume maalri töödega siis vötab see aega umbe 1 nädal.

Kasutaja ikoon ID53064
Pakkuja profiil Väike nool paremale
2 500€ Sisaldab KM Sisaldab KM 25.06.2020 Vestlus (0)

Pakkumise kirjeldus:

Tere,

Oleme korduvalt teostanud sarnaste korterite värskendustöid. alustada võime esimesel võimalusel. Olemas kõik vahendid tööde teostamiseks ning vastavad teadmised materjali osades. omaltpoolt pakume igakülgset abi ning konsultatsiooni kõikides küsimustes. Arveid väljastame ainult akti alusel ning enne tööle asumist sõlmime lepingu alati. ... Rohkem

Kasutaja ikoon ID55532
Pakkuja profiil Väike nool paremale
2 171€ KM lisandub KM lisandub 26.06.2020 Vestlus (0)
Kasutaja ikoon ID55548
Pakkuja profiil Väike nool paremale
2 300€ Ikoon kell Ei ole KMKR Ei ole KMKR 26.06.2020 Vestlus (2)

Pakkumise kirjeldus:

Tere.
Pakkumine sisaldab:
1) kui on vaja siis esemete või pindade kinnikatmist.
2)Tapeedi/peno eemaldust ja kõike muu mis segavad pahteldamist.
4) vähemalt 2x pindade pahteldamist ja 2x korda värvimist. ja nurkade akrüülitamist.
5)töö teostaiseks vajaminevaid vahendeid: teip, rullid,pahtel, kile, värv (värvitooni osas saab rääkida),
6)tekk ... Rohkem

Kasutaja ikoon ID52783
Pakkuja profiil Väike nool paremale
2 200€ Ei ole KMKR Ei ole KMKR 30.06.2020 Vestlus (2)

Pakkumise kirjeldus:

Tere.
Oleme teinud väga palju analoogseid kortereid, olemas tehtud töödest palju pilte jne.
Teostame töö kvaliteetselt ja mõistliku ajakuluga, tööd teostavad omaala spetsialistid ja 2 maalrit korraga, et protsessi kiirendada.

Kasutaja ikoon ID43013
Pakkuja profiil Väike nool paremale
2 100€ KM lisandub KM lisandub 01.07.2020 Vestlus (0)

Pakkumise kirjeldus:

Tere,
Pakkumine sisaldab tapeedi ja penoplasti eemaldamist, suuremate ebatasasuste krohvimist. Lagedel kohtparanduste tegemist, vajadusel lauspahteldamist ja 2x värvimist. Seintel nurkade paigaldamist, 2x lr+- ga pahteldamist ja 1x sheetrockiga pahteldamist, kruntimist ja 2x värvimist. Ehitusjärgset koristamist. Eeldatav materjalide maksumus võiks olla ... Rohkem

Kasutaja ikoon ID50106
Pakkuja profiil Väike nool paremale
2 600€ Ei ole KMKR Ei ole KMKR 01.07.2020 Vestlus (0)

Pakkumise kirjeldus:

Tere,
Pakkumine teie soovitud töödele.

Parimat

Kasutaja ikoon ID48517
Pakkuja profiil Väike nool paremale
2 500€ Sisaldab KM Sisaldab KM 04.07.2020 Vestlus (0)
Kasutaja ikoon ID44917
Pakkuja profiil Väike nool paremale
2 000€ Ei ole KMKR Ei ole KMKR 05.07.2020 Vestlus (2)

Pakkumise kirjeldus:

Pakkumine tehtud vastavalt hankele.

Lp.S

Kasutaja ikoon ID34985
Pakkuja profiil Väike nool paremale
2 700€ Sisaldab KM Sisaldab KM 06.07.2020 Vestlus (0)

Pakkumise kirjeldus:

Tehtud töödele garantii 2 aastat .
Alustada pole võimalik koheselt.

Küsimused hanke korraldajale

Küsimus: private ID55548   22.06.2020 15:22
Tere. Kas tööaeg on seal piiratud ( mingist kellast kellani) ?
Kas ruumid lähevad eri tooni?

Teavita reeglite rikkumisest

Korraldaja vastus: 22.06.2020 15:42

Tere. Korter on tühi ja võib teostada töid ükskõik mis ajal. Öisel ajal kehtib öörahu ning peab jälgima et naabritele ei kostaks müra mis ületab seaduses ettenähtud piirmäärad.

Teavita reeglite rikkumisest

Küsimus: private ID55548   22.06.2020 15:29
ja küsiks veel, et kas voolu ja vee võimalus on olemas?

Teavita reeglite rikkumisest

Korraldaja vastus: 22.06.2020 15:42

Voolu ja vee võimalus on täiesti olemas - WC/vannituba on seal juba valmis.

Teavita reeglite rikkumisest

Lisa küsimus

Lisa küsimus

Minu pakkumine

Reeglid

Pakkumise kirjelduse väli on mõeldud pakkumise detailsemaks lahti kirjutamiseks. Pikema teksti mugavaks sisestamiseks klikkige kasti paremal ülaservas oleval ikoonil.
Pakkumist tehes on keelatud postitada enda kontaktandmeid (nimi, telefon, aadress jne). Me jälgime ja analüüsime pakkumisi, et vältida pettuseid ja reeglite rikkumisi.
Rikkumise puhul kasutajakonto blokeeritakse.

 

Vanemad teated:

Vaata kõiki

Sellel veebilehel kasutatakse küpsiseid. Kasutamist jätkates nõustute küpsiste kasutamisega.

Sulge
 
Minu pakkumine

Reeglid

Pakkumise kirjelduse väli on mõeldud pakkumise detailsemaks lahti kirjutamiseks. Pikema teksti mugavaks sisestamiseks klikkige kasti paremal ülaservas oleval ikoonil.
Pakkumist tehes on keelatud postitada enda kontaktandmeid (nimi, telefon, aadress jne). Me jälgime ja analüüsime pakkumisi, et vältida pettuseid ja reeglite rikkumisi.
Rikkumise puhul kasutajakonto blokeeritakse.