+ Lisa oma töö      

Otsid ehitajat "Üldehitus" valdkonnast?

Parima pakkumise ja teostaja leidmiseks lisa oma töö.

Üldehitus maja renoveerimisel

ID 52504

853 vaatamist

Prindi

  • check Pakkumiste tegemine
    kuni 16.07.2020
  • check Võitja valik kuni
    23.07.2020
  • 3 Töö teostamine
    ja hinnang
Hanke lõpp: N, 16. juuli, 2020
Maakond: Harjumaa
Linn: Keila
Tööde algus: E, 13. juuli, 2020 (Soovituslik)
Tööde lõpp: R, 26. veebruar, 2021 (Soovituslik)
Ehitusmaterjalid: Töö tellija poolt
Soovin pakkumisi: Summa kogu projektile

Töö sisu

Otsime ehitusfirmat, kes aitaks meie maja renoveerimisel vajaminevate töödega.

Tarvis on:
* vahetada katus, ehitada välja vintskapp
* valada keldripõrand, 1. ja 2. korruse põrandad (lisandub ka põrandaküte)
* välisfassaadi soojustamine + uue fassaadi paigaldus
* uue torustiku vedamine 1. ja 2. korrusele
* kandekonstruktsioonide paigaldamine/vahetus
* muud jooksvad tööd (lähtuvalt ehitusprojektist)

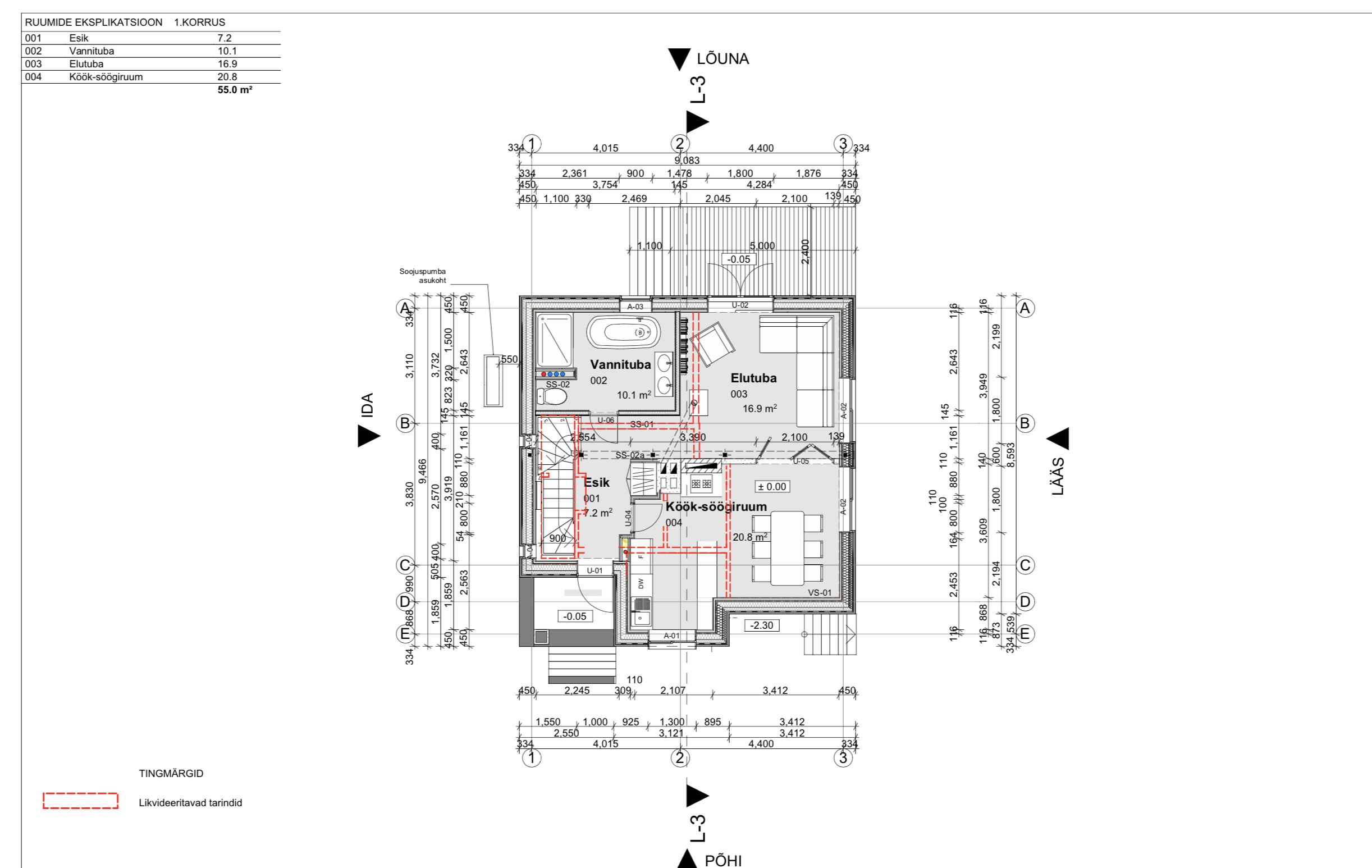
Töö projekti alusel -olemas on vastvalminud ehitusprojekt, kus on vajalike tööde käik ja detailid välja toodud.
Ehitajatelt ootame adekvaatset ajaarvestamist ning ausat ja oskuslikku suhtumist töösse.

Kuna projekt on üsna mahukas ning see on üles laetud ühe tervikuna, jagan pilte, jooniseid jm lisainfot ettevõttele, kes oleks nõus meid vajalike töödega aitama.
Kindlasti on adekvaatse aja-, materjali- jm kulude arvutamisel abiks projekti läbi töötamine, küsige julgelt lisainfot!

Pildid, video ja failid

Hanke korraldaja: eraisik ID55704

Pakkumised

Pakkumisi kokku: 4

Ettevõte Summa Käibemaks Lisatud Vestlus
Kasutaja ikoon ID55775
Pakkuja profiil Väike nool paremale
40 000€ Sisaldab KM Sisaldab KM 06.07.2020 Vestlus (0)

Pakkumise kirjeldus:

Tere
Töö on keeruline ja kõike fotodest, eriti materjali kogust, on võimatu hinnata. Kutsume teid hindama ainult tööd - 40 000 eurot kõige eest

Kasutaja ikoon ID8356
Pakkuja profiil Väike nool paremale
40 000€ KM lisandub KM lisandub 15.07.2020 Vestlus (0)

Pakkumise kirjeldus:

Hinnas katusetööd koos vintskapi ehitamisega, põrandate valamine koos küttetorude paigaldusega, välisfassaadi uuendamine, vajalike torustike vedamine, kandekonstruktsioonide ümberehitamine vastavalt projektile, vaheseinte ehitus ja vajalikud lammutustööd.

Kasutaja ikoon ID49873
Pakkuja profiil Väike nool paremale
43 415€ KM lisandub KM lisandub 15.07.2020 Vestlus (0)

Pakkumise kirjeldus:

Tere, pakkumine lähtuvalt lähteülesandest:
- katuse lammutamine ja uue ehitamine koos vintskapiga;
- kipsi põrandavalau koos veekütte torustikuga;
- vee ja kanalisatsiooni tourustike paigaldamine;
- olemasoleva fassaadi lammutamine ja uue fassaadi paigaldus;
- olemasolevate seinte lammutamine ja uute konstruktsioonid ehitus;
- santehnika paigaldam ... Rohkem

Kasutaja ikoon ID8633
Pakkuja profiil Väike nool paremale
44 200€ KM lisandub KM lisandub 16.07.2020 Vestlus (0)

Küsimused hanke korraldajale

Küsimus: private ID33424   16.06.2020 17:20
Tere. Kui võimalik siis sooviks infot katuse kohta. Jooniseid või plaani, mille põhjal teha pakkumine.

Teavita reeglite rikkumisest

Korraldaja vastus: 16.06.2020 19:08

Tere! Ikka! Hetkel on peal vana eterniitkatus ning uus katus tuleb samuti eterniidist (Bestor Gotika) . Lisan hanke fotode hulka juurde katusejoonised.

Teavita reeglite rikkumisest

Küsimus: private ID49873   30.06.2020 11:13
Tere, mõni foto hetke olukorrast palun. Mis fassaad on hetkel ... laudis või krohv? Hoone konstruktsioon - kivi või puit? Tervitades ...

Teavita reeglite rikkumisest

Korraldaja vastus: 01.07.2020 09:52

Tere! Fassaad on hetkel silikaattellis puitkonstruktsioonil -klassikaline 60ndatel ehitatud maja. Lisan fotodesse maja välisvaateid.

Teavita reeglite rikkumisest

Lisa küsimus

Lisa küsimus

Minu pakkumine

Reeglid

Pakkumise kirjelduse väli on mõeldud pakkumise detailsemaks lahti kirjutamiseks. Pikema teksti mugavaks sisestamiseks klikkige kasti paremal ülaservas oleval ikoonil.
Pakkumist tehes on keelatud postitada enda kontaktandmeid (nimi, telefon, aadress jne). Me jälgime ja analüüsime pakkumisi, et vältida pettuseid ja reeglite rikkumisi.
Rikkumise puhul kasutajakonto blokeeritakse.

 

Teisi töid samas valdkonnas

Valdkonnas "Üldehitus" on 27 aktiivset tööd

Terassi õlitamine, 13,7 ruutu

Asukoht: Harjumaa, Saue
Aega jäänud: 5p 20h
Tehtud pakkumisi: 4

Eramaja ehitus

Asukoht: Harjumaa, Suurupi
Aega jäänud: 4p 20h
Tehtud pakkumisi: 4

Vanemad teated:

Vaata kõiki

Sellel veebilehel kasutatakse küpsiseid. Kasutamist jätkates nõustute küpsiste kasutamisega.

Sulge
 
Minu pakkumine

Reeglid

Pakkumise kirjelduse väli on mõeldud pakkumise detailsemaks lahti kirjutamiseks. Pikema teksti mugavaks sisestamiseks klikkige kasti paremal ülaservas oleval ikoonil.
Pakkumist tehes on keelatud postitada enda kontaktandmeid (nimi, telefon, aadress jne). Me jälgime ja analüüsime pakkumisi, et vältida pettuseid ja reeglite rikkumisi.
Rikkumise puhul kasutajakonto blokeeritakse.