+ Lisa oma töö      

Otsid ehitajat "Kanalisatsioonitööd" valdkonnast?

Parima pakkumise ja teostaja leidmiseks lisa oma töö.

Kanalisatsiooni- ja sadeveetorustiku montaaž

ID 52238

763 vaatamist

Prindi

  • check Pakkumiste tegemine
    kuni 29.06.2020
  • check Võitja valik kuni
    06.07.2020
  • 3 Töö teostamine
    ja hinnang
Hanke lõpp: E, 29. juuni, 2020
Maakond: Pärnumaa
Linn: Pärnu
Muu asula: Kesklinn
Tööde algus: E, 03. august, 2020 (Soovituslik)
Tööde lõpp: E, 17. august, 2020 (Soovituslik)
Ehitusmaterjalid: Töö tegija poolt
Soovin pakkumisi: Summa kogu projektile

Töö sisu

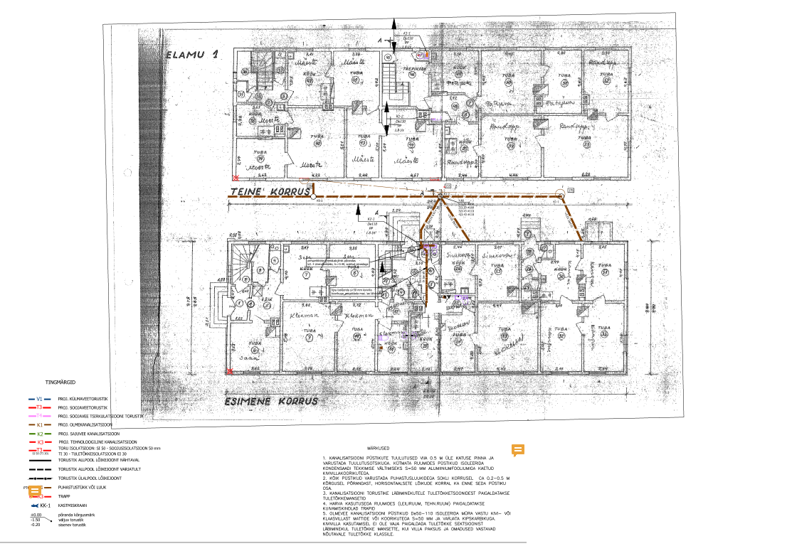
1. Väliskanalisatsioonitorustiku rajamine 75.95 m - De110 PVC L=34.8 m, De160 40.15 m, kanalisatsioonikaev d=400/310 6 tk, läbiviik vundamendist 6 tk. Vt "KAHEKORDNE ELAMU PÄRNUS. KANALISATSIOONI SISE- JA VÄLISPROJEKT"

2. Sadeveetorustiku rajamine 56 m - De110 PVC L=43 m, De160 PVC L=13 m, sadeveekaevud 5 tk, vihmaveelehtrit 7 tk. Vt skeemi "Kinnistusisene sademeveekanalisatsioon"

3. Sisekanalisatsioonitorustiku rajamine vastavalt projektile "KAHEKORDNE ELAMU PÄRNUS. KANALISATSIOONI SISE- JA VÄLISPROJEKT" . Kuivkäimlate 3 tk likvideerimine.

Pildid, video ja failid

Hanke korraldaja: korteriühistu ID55456

Pakkumised

Pakkumisi kokku: 1

Ettevõte Summa Käibemaks Lisatud Vestlus
Kasutaja ikoon ID34075
Pakkuja profiil Väike nool paremale
23 200€ KM lisandub KM lisandub 29.06.2020 Vestlus (0)

Pakkumise kirjeldus:

Pakkumine väliskanalile ja sadeveele.
Hoonesiseste tööde pakkumine objektiga kohapeal tutvumisel.

Küsimused hanke korraldajale

Hanke korraldajale ei ole veel küsimusi esitatud.

Lisa küsimus

Lisa küsimus

Minu pakkumine

Reeglid

Pakkumise kirjelduse väli on mõeldud pakkumise detailsemaks lahti kirjutamiseks. Pikema teksti mugavaks sisestamiseks klikkige kasti paremal ülaservas oleval ikoonil.
Pakkumist tehes on keelatud postitada enda kontaktandmeid (nimi, telefon, aadress jne). Me jälgime ja analüüsime pakkumisi, et vältida pettuseid ja reeglite rikkumisi.
Rikkumise puhul kasutajakonto blokeeritakse.

 

Teisi töid samas valdkonnas

Valdkonnas "Kanalisatsioonitööd" on 2 aktiivset tööd

Kaevetööd, 8 m³ kogumismahuti paigaldus ja trassid - Juminda küla

Asukoht: Harjumaa, Juminda
Aega jäänud: 6p 10h
Tehtud pakkumisi: 0

no-img Pilt puudub

Veevarustuse- ja kanalisatsiooniinsener, tase 6 MTR registreering

Asukoht: Pärnumaa, Pärnu
Aega jäänud: 12p 10h
Tehtud pakkumisi: 0

Vanemad teated:

Vaata kõiki

Sellel veebilehel kasutatakse küpsiseid. Kasutamist jätkates nõustute küpsiste kasutamisega.

Sulge
 
Minu pakkumine

Reeglid

Pakkumise kirjelduse väli on mõeldud pakkumise detailsemaks lahti kirjutamiseks. Pikema teksti mugavaks sisestamiseks klikkige kasti paremal ülaservas oleval ikoonil.
Pakkumist tehes on keelatud postitada enda kontaktandmeid (nimi, telefon, aadress jne). Me jälgime ja analüüsime pakkumisi, et vältida pettuseid ja reeglite rikkumisi.
Rikkumise puhul kasutajakonto blokeeritakse.