+ Lisa oma töö      

Otsid ehitajat "Terrasside ehitus" valdkonnast?

Parima pakkumise ja teostaja leidmiseks lisa oma töö.

Eramaja terrassi ehitus

ID 51733

857 vaatamist

Prindi

  • check Pakkumiste tegemine
    kuni 11.06.2020
  • check Võitja valik kuni
    18.06.2020
  • 3 Töö teostamine
    ja hinnang
Hanke lõpp: N, 11. juuni, 2020
Maakond: Harjumaa
Muu asula: Vääna-Jõesuu
Tööde algus: E, 25. mai, 2020 (Soovituslik)
Tööde lõpp: P, 07. juuni, 2020 (Soovituslik)
Ehitusmaterjalid: Töö tegija poolt
Soovin pakkumisi: Summa kogu projektile

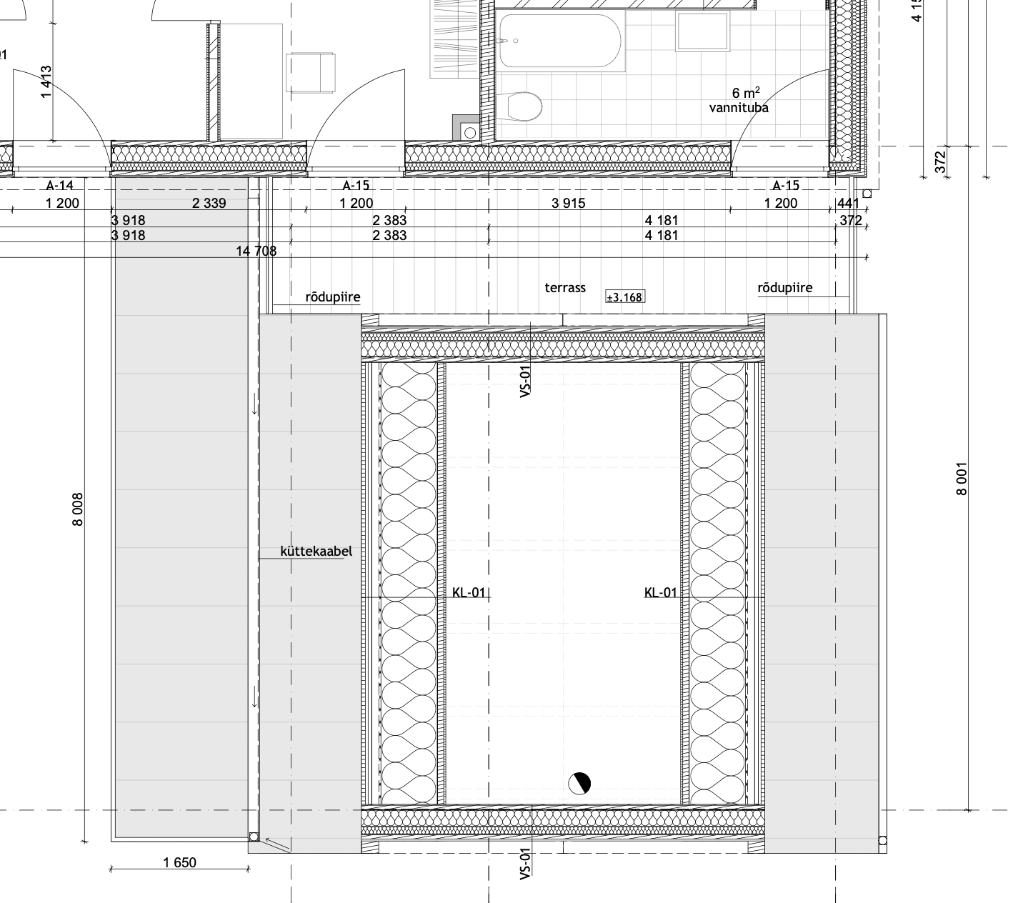
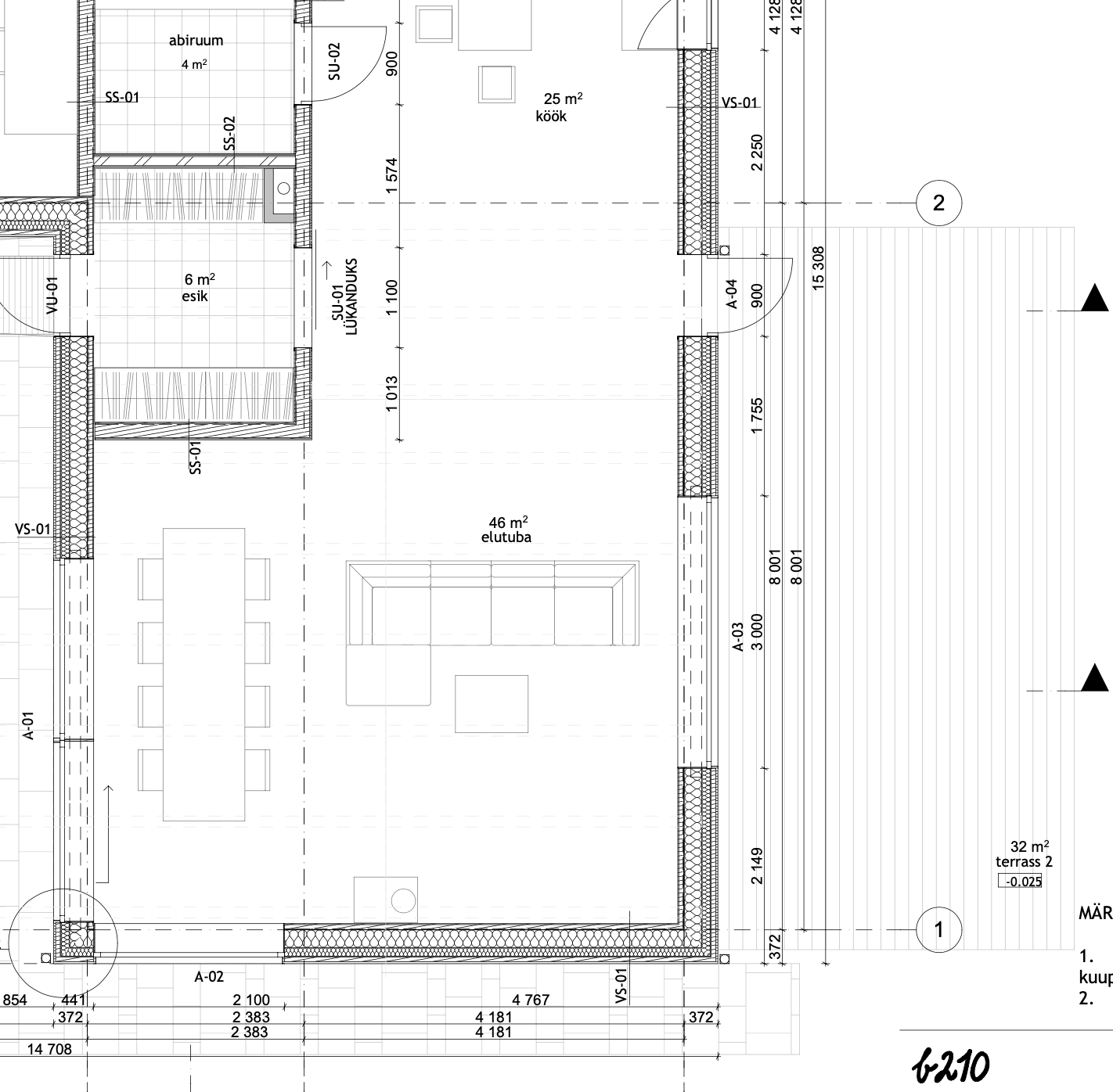
Töö sisu

Backyard terrace (~31.8m2)
4mx7.8m square
Foundation posts are ready.

Balcony terrace (~12.58m2)
7.2mx1.7m
Will have metal fence in future

Offer price for different options:
- Siberi lehis
- thermowood
- oiled terrace planks

Pildid, video ja failid

Hanke korraldaja: eraisik ID53729

Pakkumised

Pakkumisi kokku: 5

Ettevõte Summa Käibemaks Lisatud Vestlus
Kasutaja ikoon ID52119
Pakkuja profiil Väike nool paremale
2 117,0€ Sisaldab KM Sisaldab KM 17.05.2020 Vestlus (10)

Pakkumise kirjeldus:

Hy !
Backyard terrace will go about 900eur building cost's.
Balcony terrace will go 400eur
Would make it so that on the edges will go double line long and tall what will be an eye catcher and it will highlight the space. that's done then we do from short boards the middle area.'
Material dark terrace boards what has been previously soaked, color dark br ... Rohkem

Kasutaja ikoon ID47901
Pakkuja profiil Väike nool paremale
2 219€ Sisaldab KM Sisaldab KM 17.05.2020 Vestlus (0)

Pakkumise kirjeldus:

Tere.
Pakkumises arvestatud pruuni sügavimmutatud 120 mm laiust terrassilauda ja pealt kinnitust kruvidega.
See on kõige odavam varjant,lehis ja termotöödeldud terrassilaud kalleim.Km ei lisandu hinnale,ettemaksu ei soovi.

Kasutaja ikoon ID47629
Pakkuja profiil Väike nool paremale
3 420€ Sisaldab KM Sisaldab KM 20.05.2020 Vestlus (0)

Pakkumise kirjeldus:

Tere!

Hind vastavalt hanke kirjeldusele koos materjaliga. Materjalid ja töö kvaliteetne.
Meie töödele garantii.

Parimate soovidega,
Kristjan

Kasutaja ikoon ID8633
Pakkuja profiil Väike nool paremale
3 200€ KM lisandub KM lisandub 05.06.2020 Vestlus (0)
Kasutaja ikoon ID55607
Pakkuja profiil Väike nool paremale
2 730€ Sisaldab KM Sisaldab KM 11.06.2020 Vestlus (0)

Küsimused hanke korraldajale

Küsimus: private ID47901   14.05.2020 12:46
Tere.
Kas suhtlus toimub inglise keeles?

Teavita reeglite rikkumisest

Korraldaja vastus: 14.05.2020 17:31

mitte tingimata. kui pakkumine on mõistlik, saan suhtlemisega hakkama.

Teavita reeglite rikkumisest

Küsimus: private ID47901   14.05.2020 17:17
#suhtlemine

Teavita reeglite rikkumisest

Korraldaja vastus:
Hanke korraldaja ei ole küsimusele veel vastanud

Lisa küsimus

Lisa küsimus

Minu pakkumine

Reeglid

Pakkumise kirjelduse väli on mõeldud pakkumise detailsemaks lahti kirjutamiseks. Pikema teksti mugavaks sisestamiseks klikkige kasti paremal ülaservas oleval ikoonil.
Pakkumist tehes on keelatud postitada enda kontaktandmeid (nimi, telefon, aadress jne). Me jälgime ja analüüsime pakkumisi, et vältida pettuseid ja reeglite rikkumisi.
Rikkumise puhul kasutajakonto blokeeritakse.

 

Teisi töid samas valdkonnas

Valdkonnas "Terrasside ehitus" on 8 aktiivset tööd

Terrassi ehitus

Asukoht: Harjumaa, Jüri
Aega jäänud: 11p 21h
Tehtud pakkumisi: 8

Olemasoleva terrassi demonteerimine, utiliseerimine, uue ehitus

Asukoht: Harjumaa, Tallinn
Aega jäänud: 21h 46 min
Tehtud pakkumisi: 7

Vanemad teated:

Vaata kõiki

Sellel veebilehel kasutatakse küpsiseid. Kasutamist jätkates nõustute küpsiste kasutamisega.

Sulge
 
Minu pakkumine

Reeglid

Pakkumise kirjelduse väli on mõeldud pakkumise detailsemaks lahti kirjutamiseks. Pikema teksti mugavaks sisestamiseks klikkige kasti paremal ülaservas oleval ikoonil.
Pakkumist tehes on keelatud postitada enda kontaktandmeid (nimi, telefon, aadress jne). Me jälgime ja analüüsime pakkumisi, et vältida pettuseid ja reeglite rikkumisi.
Rikkumise puhul kasutajakonto blokeeritakse.