+ Lisa oma töö      

Otsid ehitajat "Katusetööd" valdkonnast?

Parima pakkumise ja teostaja leidmiseks lisa oma töö.

Profiilplekist katus eramajale

ID 51558

845 vaatamist

Prindi

  • check Pakkumiste tegemine
    kuni 04.06.2020
  • check Võitja valik kuni
    11.06.2020
  • 3 Töö teostamine
    ja hinnang
Hanke lõpp: N, 4. juuni, 2020
Maakond: Harjumaa
Muu asula: Viimsi vald, Pringi küla
Tööde algus: N, 17. september, 2020 (Soovituslik)
Tööde lõpp: P, 04. oktoober, 2020 (Soovituslik)
Ehitusmaterjalid: Töö tegija poolt
Soovin pakkumisi: Summa kogu projektile

Töö sisu

Hinnapakkumist soovin katusekattele koos roov, vihmaveesüsteemi ja paigaldusega.
Projekti seletuskirjas nõuded:
Katusekate – profiilplekk Klassik
Roov 25x100 mm
Distantsliist 50x50 mm
Hingav aluskate
Tuulesuunaja – tuuletõkkeplaat 12 mm
Puitfermid 50x200 mm
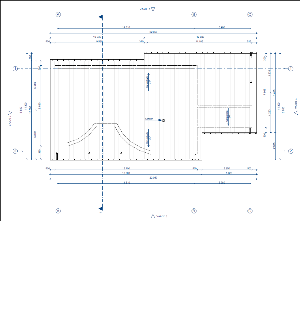
Katuseplaan lisatud dokumendina.

Pildid, video ja failid

Hanke korraldaja: eraisik ID54837

Pakkumised

Pakkumisi kokku: 3

Ettevõte Summa Käibemaks Lisatud Vestlus
Kasutaja ikoon ID48540
Pakkuja profiil Väike nool paremale
20 625€ Ei ole KMKR Ei ole KMKR 07.05.2020 Vestlus (0)

Pakkumise kirjeldus:

Tere
Hinnapakkumine sisaldab kõiki materjale ja töid alates katusefermidest ja lõpetades vihmaveesüsteemiga.
Katuse pindalaks arvestatud 275m2
Kulu materjalidele 45€m2
Töötasu 30€ m2
Ettemaks materjalide osas etapiviisiliselt , tööde eest tasustamine vastavalt kaetud tööde aktidele.
Pikaaegne kogemus katusetöödega.
Tervitades
Rando

Kasutaja ikoon ID51699
Pakkuja profiil Väike nool paremale
26 500€ Ikoon kell KM lisandub KM lisandub 11.05.2020 Vestlus (0)

Pakkumise kirjeldus:

Tere,

Pakkumine vastavalt hanke sisule,
ettemaks peale lepingu sõlmimist(kokkuleppel)
GARANTII 5AASTAT,TÖID TEOSTAVAD PIKA KOGEMUSEGA SPETSIALISTID,
Profiilis olemas ka pildid osadest töödest
Peatsele koostööle lootes

Kasutaja ikoon ID8633
Pakkuja profiil Väike nool paremale
26 200€ KM lisandub KM lisandub 04.06.2020 Vestlus (0)

Küsimused hanke korraldajale

Hanke korraldajale ei ole veel küsimusi esitatud.

Lisa küsimus

Lisa küsimus

Minu pakkumine

Reeglid

Pakkumise kirjelduse väli on mõeldud pakkumise detailsemaks lahti kirjutamiseks. Pikema teksti mugavaks sisestamiseks klikkige kasti paremal ülaservas oleval ikoonil.
Pakkumist tehes on keelatud postitada enda kontaktandmeid (nimi, telefon, aadress jne). Me jälgime ja analüüsime pakkumisi, et vältida pettuseid ja reeglite rikkumisi.
Rikkumise puhul kasutajakonto blokeeritakse.

 

Teisi töid samas valdkonnas

Valdkonnas "Katusetööd" on 9 aktiivset tööd

no-img Pilt puudub

Käidava katuse PVC 54m2

Asukoht: Harjumaa, Muraste
Aega jäänud: 4p 7h
Tehtud pakkumisi: 3

Suvila

Asukoht: Pärnumaa, Eametsa
Aega jäänud: 7h 49 min
Tehtud pakkumisi: 2

Vanemad teated:

Vaata kõiki

Sellel veebilehel kasutatakse küpsiseid. Kasutamist jätkates nõustute küpsiste kasutamisega.

Sulge
 
Minu pakkumine

Reeglid

Pakkumise kirjelduse väli on mõeldud pakkumise detailsemaks lahti kirjutamiseks. Pikema teksti mugavaks sisestamiseks klikkige kasti paremal ülaservas oleval ikoonil.
Pakkumist tehes on keelatud postitada enda kontaktandmeid (nimi, telefon, aadress jne). Me jälgime ja analüüsime pakkumisi, et vältida pettuseid ja reeglite rikkumisi.
Rikkumise puhul kasutajakonto blokeeritakse.