+ Lisa oma töö      

Otsid ehitajat "Lammutustööd" valdkonnast?

Parima pakkumise ja teostaja leidmiseks lisa oma töö.

Paneelmaja kandvatesse seinadese avade lõikamine, tekkiva ehitusprahi utiliseerimine

ID 51536

920 vaatamist

Prindi

  • check Pakkumiste tegemine
    kuni 18.05.2020
  • check Võitja valik kuni
    25.05.2020
  • 3 Töö teostamine
    ja hinnang
Hanke lõpp: E, 18. mai, 2020
Maakond: Harjumaa
Linn: Tallinn
Tööde algus: E, 01. juuni, 2020 (Soovituslik)
Tööde lõpp: R, 12. juuni, 2020 (Soovituslik)
Ehitusmaterjalid: Töö tegija poolt
Soovin pakkumisi: Summa kogu projektile

Töö sisu

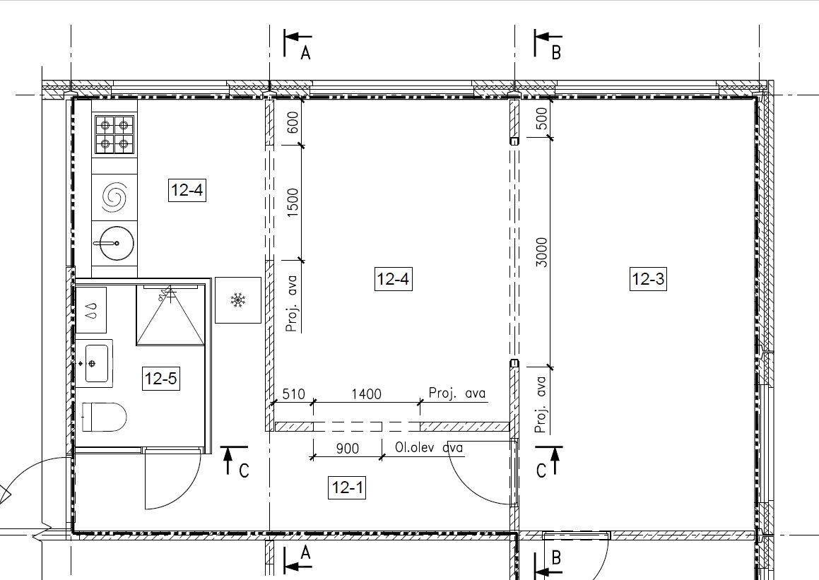
Teha avad paneelmaja kandvatesse vaheseinadesse 4. korrusel vastavalt projektile
1. uus ava mõõtudega 1,5x2,15m.
2. olemasoleva ava laiendamine 0,5x2,15m

Need avad tuleb betoonseintesse teha lõikamismeetodil nii, et eemaldatavad seinatükid ei oleks suuremad kui 0,5x0,5m. Ava servade lõikuse kvaliteet peab vastama normaalklassi nõuetele (BY 47, Betonirakentamisen laatuohjeet 2007, jaotus 4.2.4.2 Seinät). Avade servad tuleb faasida 10x10mm ning lõike pinnale jäävad armatuurvarraste otsad kaitsta korrosiooni eest vastavalt standardi ISO-12944 korrosioonikaitse klassile C2.

3. uus ava mõõtudega 3,0x2,4m.

See ava tuleb teha betoonseina samuti lõikamismeetodil nii, et eemaldatavad seinatükid ei oleks suuremad kui 0,5x0,5m. Lõikamisele eelnevalt tuleb vahelagi kahel pool seina tugistada kuniks ava tugevdusraam on paigaldatud ja pingestatud. Tugistamiskava tuleb kooskõlastada projekteerijaga. Ava kohale jääv seinaosa on ette nähtud tugevdada terastalaga INP220, mis toetatakse mõlemast otsast 100x100x5 kanttorupostidele. Teraspostid tuleb eelnevalt kinnitada kiilankrutega ava servade külge ning postide alused tuleb täita jootebetooniga. Terastala fikseeritakse postide peale keevisühendusega. Pärast postide aluse jootebetooni kivinemist võib alustada terastala pingestamist teraskiiludega. Kiilud paigaldada vastavalt joonisele sammuga ~500mm. Teraskonstruktsioonid tuleb kaitsta tule eest vastavalt tulekaitseklassile R60. Seda võib teha tulekaitsevärvimisega .

Kogu ehituspraht utiliseerida,

Pildid, video ja failid

Hanke korraldaja: eraisik ID5823

Pakkumised

Pakkumisi kokku: 1

Ettevõte Summa Käibemaks Lisatud Vestlus
Kasutaja ikoon ID42649
Pakkuja profiil Väike nool paremale
3 000€ KM lisandub KM lisandub 16.05.2020 Vestlus (0)

Pakkumise kirjeldus:

Töö+materjal+jäätmevedu+vajalikud dokumendid

Küsimused hanke korraldajale

Hanke korraldajale ei ole veel küsimusi esitatud.

Lisa küsimus

Lisa küsimus

Minu pakkumine

Reeglid

Pakkumise kirjelduse väli on mõeldud pakkumise detailsemaks lahti kirjutamiseks. Pikema teksti mugavaks sisestamiseks klikkige kasti paremal ülaservas oleval ikoonil.
Pakkumist tehes on keelatud postitada enda kontaktandmeid (nimi, telefon, aadress jne). Me jälgime ja analüüsime pakkumisi, et vältida pettuseid ja reeglite rikkumisi.
Rikkumise puhul kasutajakonto blokeeritakse.

 

Teisi töid samas valdkonnas

Valdkonnas "Lammutustööd" on 6 aktiivset tööd

Suvila lammutamine

Asukoht: Raplamaa, Vilivere
Aega jäänud: 8h 1 min
Tehtud pakkumisi: 10

Katuse lammutamine

Asukoht: Harjumaa
Aega jäänud: 12p 8h
Tehtud pakkumisi: 7

Vanemad teated:

Vaata kõiki

Sellel veebilehel kasutatakse küpsiseid. Kasutamist jätkates nõustute küpsiste kasutamisega.

Sulge
 
Minu pakkumine

Reeglid

Pakkumise kirjelduse väli on mõeldud pakkumise detailsemaks lahti kirjutamiseks. Pikema teksti mugavaks sisestamiseks klikkige kasti paremal ülaservas oleval ikoonil.
Pakkumist tehes on keelatud postitada enda kontaktandmeid (nimi, telefon, aadress jne). Me jälgime ja analüüsime pakkumisi, et vältida pettuseid ja reeglite rikkumisi.
Rikkumise puhul kasutajakonto blokeeritakse.