+ Lisa oma töö      

Otsid ehitajat "Katusetööd" valdkonnast?

Parima pakkumise ja teostaja leidmiseks lisa oma töö.

Vintskapi ehitus ja katuseakende paigaldus

ID 51510

2368 vaatamist

Prindi

  • check Pakkumiste tegemine
    kuni 18.05.2020
  • check Võitja valik kuni
    25.05.2020
  • 3 Töö teostamine
    ja hinnang
Hanke lõpp: E, 18. mai, 2020
Maakond: Läänemaa
Muu asula: Risti
Tööde algus: E, 01. juuni, 2020 (Soovituslik)
Tööde lõpp: E, 15. juuni, 2020 (Soovituslik)
Ehitusmaterjalid: Töö tegija poolt
Soovin pakkumisi: Summa kogu projektile

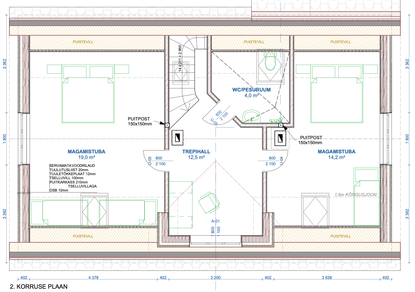
Töö sisu

Ehitada projektijooniste alusel olemasolevale kivikatusega majale vintskapp, ümber tõsta olemasolevad katuseaknad, nihutada väike katuseaken, vormistada katuseakende põsed, soojustada vintskapp ning katuseakende põsed. Maja katus on topeltroovitusega, mittehingava aluskattega.

1. Ehitada välja vintskapp: karkass, tuuletõke, välisvooder servamata lauaga (viimistleda ei ole vaja), katusekatte paigaldus (sh aluskate, neelud, kivid, plekid jne), soojustus (kivivill) - seest katta aurutõkkega ning paigaldada distanstliistud (siseviimistlust ei ole vaja)., paigaldada aken. Kindlasti vaja korralikult teostada aluskattega seotud tööd, et välistada lekete tekkimise oht.

2. Tõsta maja lõunapoolsed katuseaknad ümber vastavalt projektile, sh uue ava ettevalmistamine ja põskede vormistamine, soojustamine, et oleks võimalik hiljem lihtsalt siseviimistlusega katta. Kuna katusel on topeltroovitus, tuleb katuseakna leng soojustada ka väljaspool tuuletõket mõne materjaliga, mis tuult ei karda (näiteks EPS, Kingspan vms?)

3. Tõsta põhjapoolsel küljel väike katuseaken ca 15-20cm ida poole ning samuti soojustada ja vormistada põsed.

4. Põhjapoolsel suurel katuseaknal soojustada ja vormistada põsed.

Selgituseks: põsed ei vaja viimistlust, aga peaks olema soojustatud, ning olemas karkass/raam, millele paigaldada viimistlusplaat (kips, OSB vms).

Pildid, video ja failid

Hanke korraldaja: ettevõte ID43173

Pakkumised

Pakkumisi kokku: 1

Ettevõte Summa Käibemaks Lisatud Vestlus
Kasutaja ikoon ID33424
Pakkuja profiil Väike nool paremale
5 184€ KM lisandub KM lisandub 12.05.2020 Vestlus (0)

Pakkumise kirjeldus:

Hinnapakkumine hankes kirjeldatud töödele. Lugupidamisega, J.

Küsimused hanke korraldajale

Küsimus: private ID33424   11.05.2020 16:27
Tere. Kas vintskapile tulev aken on olemas või vaja tellida teostaja poolt?

Teavita reeglite rikkumisest

Korraldaja vastus: 11.05.2020 19:47

Tere, aken on tellija poolt.

Teavita reeglite rikkumisest

Lisa küsimus

Lisa küsimus

Minu pakkumine

Reeglid

Pakkumise kirjelduse väli on mõeldud pakkumise detailsemaks lahti kirjutamiseks. Pikema teksti mugavaks sisestamiseks klikkige kasti paremal ülaservas oleval ikoonil.
Pakkumist tehes on keelatud postitada enda kontaktandmeid (nimi, telefon, aadress jne). Me jälgime ja analüüsime pakkumisi, et vältida pettuseid ja reeglite rikkumisi.
Rikkumise puhul kasutajakonto blokeeritakse.

 

Teisi töid samas valdkonnas

Valdkonnas "Katusetööd" on 9 aktiivset tööd

no-img Pilt puudub

Käidava katuse PVC 54m2

Asukoht: Harjumaa, Muraste
Aega jäänud: 4p 7h
Tehtud pakkumisi: 3

Suvila

Asukoht: Pärnumaa, Eametsa
Aega jäänud: 7h 52 min
Tehtud pakkumisi: 2

Vanemad teated:

Vaata kõiki

Sellel veebilehel kasutatakse küpsiseid. Kasutamist jätkates nõustute küpsiste kasutamisega.

Sulge
 
Minu pakkumine

Reeglid

Pakkumise kirjelduse väli on mõeldud pakkumise detailsemaks lahti kirjutamiseks. Pikema teksti mugavaks sisestamiseks klikkige kasti paremal ülaservas oleval ikoonil.
Pakkumist tehes on keelatud postitada enda kontaktandmeid (nimi, telefon, aadress jne). Me jälgime ja analüüsime pakkumisi, et vältida pettuseid ja reeglite rikkumisi.
Rikkumise puhul kasutajakonto blokeeritakse.