+ Lisa oma töö      

Otsid ehitajat "Katusetööd" valdkonnast?

Parima pakkumise ja teostaja leidmiseks lisa oma töö.

Ventilatsioonikorstna paigaldus plekkkatusele

ID 51416

699 vaatamist

Prindi

  • check Pakkumiste tegemine
    kuni 06.05.2020
  • check Võitja valik kuni
    13.05.2020
  • 3 Töö teostamine
    ja hinnang
Hanke lõpp: K, 6. mai, 2020
Maakond: Harjumaa
Linn: Tallinn
Tööde algus: R, 01. mai, 2020 (Soovituslik)
Tööde lõpp: R, 08. mai, 2020 (Soovituslik)
Ehitusmaterjalid: Töö tegija poolt
Soovin pakkumisi: Tüki- või ühikuhinda

Töö sisu

Tükk 1
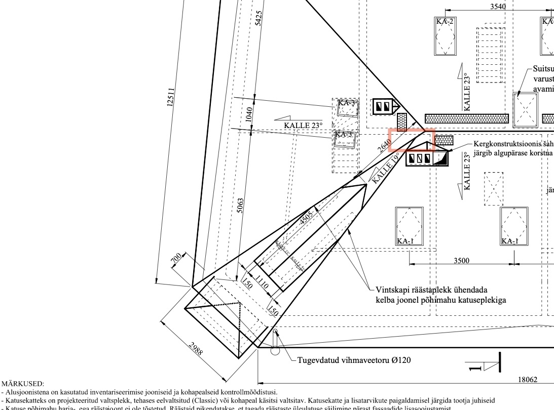
Katusekorrusele paigaldada ventilatsioonikorsten. Lisatud joonise fragmendil näidatud soovitav asukoht. Katusematerjal Classic.

Tükk 2
Soovi korral võib pakkuda ka sama katuse harja ja korstnaplekkide kontroll ning vajadusel remont (ühe korstna juures tuvastatud leke).

Pildid, video ja failid

Hanke korraldaja: eraisik ID54721

Pakkumised

Pakkumisi kokku: 0

Küsimused hanke korraldajale

Küsimus: private ID41269   29.04.2020 21:12
Tere. Mitmelõõriline peab olema ? Kas on mingid kindlad viimistlus nõuded katusel ?
Kas katuse kandekonstruksioon ei sega ?

Teavita reeglite rikkumisest

Korraldaja vastus: 29.04.2020 21:28

- 1 lõõr.
- väljast peab kenasti katusega kokku sobima, seest ei ole oluline, jääb pööningule.
- konstruktsiooni osas tuleb valida õige koht. Ma ise ei kujuta ette, kui palju talle ruumi on vaja.

Teavita reeglite rikkumisest

Lisa küsimus

Lisa küsimus

Minu pakkumine

Reeglid

Pakkumise kirjelduse väli on mõeldud pakkumise detailsemaks lahti kirjutamiseks. Pikema teksti mugavaks sisestamiseks klikkige kasti paremal ülaservas oleval ikoonil.
Pakkumist tehes on keelatud postitada enda kontaktandmeid (nimi, telefon, aadress jne). Me jälgime ja analüüsime pakkumisi, et vältida pettuseid ja reeglite rikkumisi.
Rikkumise puhul kasutajakonto blokeeritakse.

 

Teisi töid samas valdkonnas

Valdkonnas "Katusetööd" on 10 aktiivset tööd

Käidava katuse PVC 54m2

Asukoht: Harjumaa, Muraste
Aega jäänud: 4p 5h
Tehtud pakkumisi: 3

Suvila

Asukoht: Pärnumaa, Eametsa
Aega jäänud: 5h 31 min
Tehtud pakkumisi: 2

Vanemad teated:

Vaata kõiki

Sellel veebilehel kasutatakse küpsiseid. Kasutamist jätkates nõustute küpsiste kasutamisega.

Sulge
 
Minu pakkumine

Reeglid

Pakkumise kirjelduse väli on mõeldud pakkumise detailsemaks lahti kirjutamiseks. Pikema teksti mugavaks sisestamiseks klikkige kasti paremal ülaservas oleval ikoonil.
Pakkumist tehes on keelatud postitada enda kontaktandmeid (nimi, telefon, aadress jne). Me jälgime ja analüüsime pakkumisi, et vältida pettuseid ja reeglite rikkumisi.
Rikkumise puhul kasutajakonto blokeeritakse.