+ Lisa oma töö      

Otsid ehitajat "Üldehitus" valdkonnast?

Parima pakkumise ja teostaja leidmiseks lisa oma töö.

Pööningu ümberehitus eluruumiks

ID 51369

1253 vaatamist

Prindi

  • check Pakkumiste tegemine
    kuni 27.05.2020
  • check Võitja valik kuni
    03.06.2020
  • 3 Töö teostamine
    ja hinnang
Hanke lõpp: K, 27. mai, 2020
Maakond: Harjumaa
Tööde algus: E, 04. mai, 2020 (Soovituslik)
Tööde lõpp: T, 23. juuni, 2020 (Soovituslik)
Ehitusmaterjalid: Töö tegija poolt
Soovin pakkumisi: Summa kogu projektile

Töö sisu

Pööningu ümberehitus vastavalt projektile eluruumiks (puitkarkass elamu viilkatuse all). Teisele korrusele vermide vahele tekib 3 ruumi (magamistuba + väike garderoob) & wc . Kokku 35 m2.

Vajalikud toimingud projektist lähtuvalt:
Olemasoleva pööningu aluse lammutus (ca 20 m2 pluss prügi ja äravedu) ;
Katusekonstruktsioonide ja põranda tugevdamine (vastavalt projektile);
Torutööd (katusealuse wc + vesi & kanali ehitus alumiselt korruselt) + märgruumi ehitus;
Põrandaehitus ja siseviimistlus;
Elektri ja ventilatsioonitööd;
Kipsitööd koos siseuste paigaldusega (sealhulgas soojustamine);
Siseviimistlus (maalritööd);
Trepiava ehitustööd koos trepiga;
Küttesüsteem gaasikatlast (esimeselt korruselt) - radiaatorid või siis põrandaküte (esimesel korrusel põrandaküte).

Pildid, video ja failid

Hanke korraldaja: eraisik ID54664

Pakkumised

Pakkumisi kokku: 2

Ettevõte Summa Käibemaks Lisatud Vestlus
Kasutaja ikoon ID39222
Pakkuja profiil Väike nool paremale
17 000€ Sisaldab KM Sisaldab KM 23.05.2020 Vestlus (0)

Pakkumise kirjeldus:

Teostamise aeg-2kuud

Kasutaja ikoon ID8356
Pakkuja profiil Väike nool paremale
29 390€ KM lisandub KM lisandub 27.05.2020 Vestlus (0)

Pakkumise kirjeldus:

Kõik hinnas pakkumine.

Küsimused hanke korraldajale

Küsimus: private ID9125   27.04.2020 19:12
Tervist!

Kas, Teil oleks võimalik lisada mõned pildid hetke olukorrast 2-el korrusel.
Kas projektiga on olemas seletuskiri? Võimalusel lisada

Teavita reeglite rikkumisest

Korraldaja vastus: 27.04.2020 22:16

Tere, foto lisatud!
Seletuskirja kokkuvõtte saadaks meilile?

Teavita reeglite rikkumisest

Küsimus: private ID9125   27.04.2020 22:46
Tervist

Kontaktandmete edastamine on siin keskkonnas keelatud, kas Teil oleks võimalik siia lisada seletuskiri?

Teavita reeglite rikkumisest

Korraldaja vastus: 28.04.2020 09:11

Tere,
lisatud väike kokkuvõte:
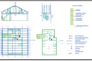
Katusekonstruktsioonide tugevdamine. Esmalt tuleb tugevdada katusekonstruktsioone
kasutades materjalina 50 x 100 mm läbimõõduga prusse. Katuse fermide ülemistele pennidele
kinnitada lisa tugevdused, lisa tugevdused kinnitada olemasoleva konstruktsiooni külge kruvidega nii otstest kui ka pikki horisontaalset osa. Penni tugevdusprussid jäävad laekonstruktsiooni aluspinnaks ja tuleb paigaldada loodi. Põranda pinna suurendamiseks tuleb pikendada põranda talasid. Põranda kandetalad paigaldatakse olemasolevate fermide põrandatasapinna kõrgusele kahele poole põrandat läbivaid fermide konstruktsioone. Põrandataladega risti paigaldatakse lisatoed fermidele 2,3,4,5 fermide vastaspoolele 5,6,7,8, 9, 10, materjalina kasutatakse prussi läbimõõduga 50 x 150 mm. Kõikidele nendele fermidele paigaldatakse I korruse laepinnast kuni fermide ülemise servani ulatuvad vertikaalsed lisatoed. Nii risti fermidega asetsevad kui ka vertikaalsed lisatoed ühendatakse omavahel
metallnurkade ja kruvidega. Fermidele 3,4,6,7,9 paigaldatakse pikad lisatoed põranda taladega samale kõrgusele, mis ulatuvad hoone keskelt kuni välisseinani ja pikad lisatoed paigaldatakse samadele fermidele kaldekonstruktsioonide külge, materjaliks kasutatakse prusse ristlõikega 50 x 100 mm. Kõikidele risti ja vertikaalselt paigaldatavate tugevduste kinnitusteks kasutada metallnurki ja plaate. Töid teostades tohib toetuda ainult fermidele või neile paigaldatud tööpindadele. Lisatugevdused on näidatud joonisel: katusekonstruktsioonide muudatused.

Ventilatsioonitorustiku ümberehitus.
Kui kõik fermid on tugevdatud on järgmiseks tööks köögi ventilatsioonitorustiku ümber ehitus.
Olemasolev lahendus jätab katusest väljuva ventilatsioonitoru keset ruumi, mis halvendab oluliselt ruumi kasutust. Uus ventilatsiooni väljaviik ehitada metallist ventilatsiooni torust läbimõõduga 180mm. Toru tuleb paigaldada fermide 1 ja 2 vahele horisontaalselt põrandatasapinna alla. Põranda tasapinna all olev ventilatsioonitoru isoleerida tulekindla kivivillaga PAROC Wired Mat 80. Toru väljaviigu otsa paigaldada tagasilöögiklapp, toru ots viiakse läbi välisseina õue ja kaetakse katterestiga. Katusel asetsev ventilatsiooni korsten jääb kohale. ˇ

Enne II korruse põranda ehitust ja soojustuskihtide paigaldamist tuleb paigaldada II korrust
teenindavad küttevee, sooja ja külma vee ning kanalisatsiooni torustikud, teise korruse tarbeks elektri toitekaablid. Küttevee torustik ühendatakse olemasoleva süsteemiga katlaruumis, edasi liigub torustik põranda all kuni põrandat läbivate väljavõteteni, mis toidavad temperatuuri regulaatoritega radiaatoreid. Vee torustikud ühendada I korruse pesuruumi ripplae taga olevatesse kollektoritesse. Sooja ja külma vee torustiku laest läbiviik II korrusele teostada pesuruumis. Torustiku horisontaalne osa kulgeb II korrusel põranda alt kraanikausini ja WC potini, segistit teenindavate torude vertikaalne osa paigaldada seina sisse. Vee torustiku ∅ 16 mm.
Enne torustike isoleerimist teostada surveproovid. Kütte ja vee torustik isoleerida vältimaks sooja kadusid ja kondensaadi teket. II korruse kanalisatsiooni vertikaalne toru ∅ 100 mm, ühendatakse I korruse WC poti väljaviiku kolmikuga. II korrusel ühendatakse kanalisatsiooniga wc pott (toru ∅100mm) ja kraankauss (toru ∅ 50 mm). Torustike paigaldus joonisel II korruse tehnovõrgud.

Tugipostid, trepiava, trepp.
Eemaldada trepiava kohalt puistevill, millega täiendavalt täita maja katusealune osa kuhu ei laiene
väljaehitus. Lõigata läbi trepiavause kohal asuv I korruse laeplaat ja eemaldada. Toestada katuse
vermid nr 9, 10 viimistletud prussidega läbimõõduga 95 x 95 mm, I korruse põrandale saab poste
kinnitada liimides, vältida põrandakütte torustiku kahjustamist. Järgnevalt paigaldada fermide 10 ja 11 vahel asetseva I korruse vaheseinale, katlamaja poolsele küljele vertikaalselt kaks prussi, lisatugevdust, läbimõõtudega 70x100 mm. Paigaldatavad prussid ulatuvad läbi vahelae pealmise tasapinnani, lae pinna peale paigaldatakse horisontaalselt 50x150 mm läbimõõduga pruss, mis toetub lisatugevduste otstele ja kinnitatakse teistest otstest välisseinale ja trepi toetusprussile. Lae peal asetseva prussi peale ja 11 fermi vahele paigaldada risti täiendavad vertikaalsed lisatugevdused. Lisatugevdused kinnitada 11 fermi külge kasutades metallnurki ja plaate. Lisatugevdusi vajab fermi 10 põranda kandetala. II korruse põranda pinnast alla poole paigaldada fermide 9, 10 ja 11 vahele risti trepi kinnituseks prussid. Kõik tugevdused näidatud joonisel: katusekonstruktsioonide muudatused. Kui kõik lisatugevdused on paigaldatud saab alustada põrandalaudade paigaldusega ja algsete fermide konstruktsioonide muutmisega. Paigaldada I ja II korruse vaheline trepp.

Põranda ehitus.
Põrand valmistada täispunn laudadest paksusega vähemalt 32 mm. Põrandalaudu hakata paigaldama ruumi keskelt suunaga servade poole kui eemaldatavate fermi osadeni jääb 3-4 laua laiust võib joonisel näidatud diagonaalse osa eemaldada põranda talaga ühelt joonelt. Põranda pind peab ulatuma seinte metallkarkasside vöö alla. Sauna ventilatsioonikorstna ümber ei pea paigaldama tulekindlat isolatsiooni.

Laiendatava pinna ventilatsioon.
Ventilatsioon koosneb kahest osast sissepuhe ja väljapuhe. Sissepuhke avad asuvad küljeseintes.
Külgseintesse paigaldatud sissepuhke osa ehitatakse 100mm läbimõõduga lõõtstorust, mis läbib hoonekülgseina ja siseneb laiendatavasse pinda samuti läbi külgseina. Õues asuv toru ots katta
metallrestidega, siseseinas olevatele avadele paigaldada sissepuhke plafoonid. Väljapuhke torud
koosnevad 100mm läbimõõduga jäikadest plasttorudest. Väljapuhke kaks kanalit väljuvad vanasse köögi ventilatsiooni korstnasse, mõlemasse kanalisse paigaldatakse ventilaatorid. Ventilatsiooni torudesse pärast ventilaatoreid paigaldada tagasilöögi klapid.

Elektri toite ja side kaabeldamine.
Enne külgseinte ehitust tuleb paigaldada majasisese olemasoleva jaotuskilbi ja II korruse vahele
toitekaablid. Valgustusvoolule PPJ 3x1,5 üks kaabel ja jõu otstele (pistikutele) kaks kaablit PPJ 3 x 2,5mm2. Jaotuskilbis kasutatakse valguse tarbeks 10A kaitset nr 20, pistikute tarbeks kasutatakse 16A kaitset nr V21, lisaks tuleb jaotuskilpi paigaldada täiendav 16A kaitse numbriga V22 pistikute tarbeks. Sidekaablina tuleks kasutada cat5 või cat6 kaablit, parima valmisoleku annab kahe madalpinge seinapesa kõrvuti asetsemine mõlemas toas.

Soojustus, seinad ja lagi.
Soojustamine algab I korruse lae pinnalt. Soojustus koosneb 100 mm PIR plaadist ja 50 mm paksusest kivivilla kihist, mis on paigaldatud metallkarkassi sisse. Vahelae pinnalt algab PIR plaat, põranda pinnalt algab seina metallkarkass. PIR plaadi kinnitamiseks rajada toetuskarkass, järgnevalt paigaldada plaadid, PIR plaatide vahed täita ehitusvahuga, vahust vuugi pind tasandada ja kleepida üle foolium teibiga. PIR plaatide kihi peale paigaldada kipsplaatide tarbeks metallkarkass nii seintele kui ka lakke. Enne kipsplaatide paigaldust teostada elektrijuhtmestiku kaabeldamine. Trepi vahelaest läbiviik vormistada kipsplaadiga.

Vahesein.
Teise korruse vaheseinad paigaldada vastavalt joonisele. Vaheseinas kasutada 43 mm metallkarkassi, soovitatav on vaheseinad täita kivivillaga, aitab parendada heliisolatsiooni. Vaheuste laius on 800 mm.

Oluline on ehituse dokumenteerimine ehituspäevikus.

Teavita reeglite rikkumisest

Lisa küsimus

Lisa küsimus

Minu pakkumine

Reeglid

Pakkumise kirjelduse väli on mõeldud pakkumise detailsemaks lahti kirjutamiseks. Pikema teksti mugavaks sisestamiseks klikkige kasti paremal ülaservas oleval ikoonil.
Pakkumist tehes on keelatud postitada enda kontaktandmeid (nimi, telefon, aadress jne). Me jälgime ja analüüsime pakkumisi, et vältida pettuseid ja reeglite rikkumisi.
Rikkumise puhul kasutajakonto blokeeritakse.

 

Teisi töid samas valdkonnas

Valdkonnas "Üldehitus" on 27 aktiivset tööd

Maja värvimine

Asukoht: Harjumaa, Saue
Aega jäänud: 2p 10h
Tehtud pakkumisi: 5

Terassi õlitamine, 13,7 ruutu

Asukoht: Harjumaa, Saue
Aega jäänud: 5p 10h
Tehtud pakkumisi: 5

Vanemad teated:

Vaata kõiki

Sellel veebilehel kasutatakse küpsiseid. Kasutamist jätkates nõustute küpsiste kasutamisega.

Sulge
 
Minu pakkumine

Reeglid

Pakkumise kirjelduse väli on mõeldud pakkumise detailsemaks lahti kirjutamiseks. Pikema teksti mugavaks sisestamiseks klikkige kasti paremal ülaservas oleval ikoonil.
Pakkumist tehes on keelatud postitada enda kontaktandmeid (nimi, telefon, aadress jne). Me jälgime ja analüüsime pakkumisi, et vältida pettuseid ja reeglite rikkumisi.
Rikkumise puhul kasutajakonto blokeeritakse.