+ Lisa oma töö      

Otsid ehitajat "Vundamenditööd" valdkonnast?

Parima pakkumise ja teostaja leidmiseks lisa oma töö.

Paarismaja vundamendi ehitus

ID 51113

1300 vaatamist

Prindi

  • check Pakkumiste tegemine
    kuni 28.04.2020
  • check Võitja valik kuni
    05.05.2020
  • 3 Töö teostamine
    ja hinnang
Hanke lõpp: T, 28. aprill, 2020
Maakond: Harjumaa
Linn: Tallinn
Muu asula: Nõmme
Tööde algus: E, 11. mai, 2020 (Soovituslik)
Tööde lõpp: P, 14. juuni, 2020 (Soovituslik)
Ehitusmaterjalid: Töö tegija poolt
Soovin pakkumisi: Summa kogu projektile

Töö sisu

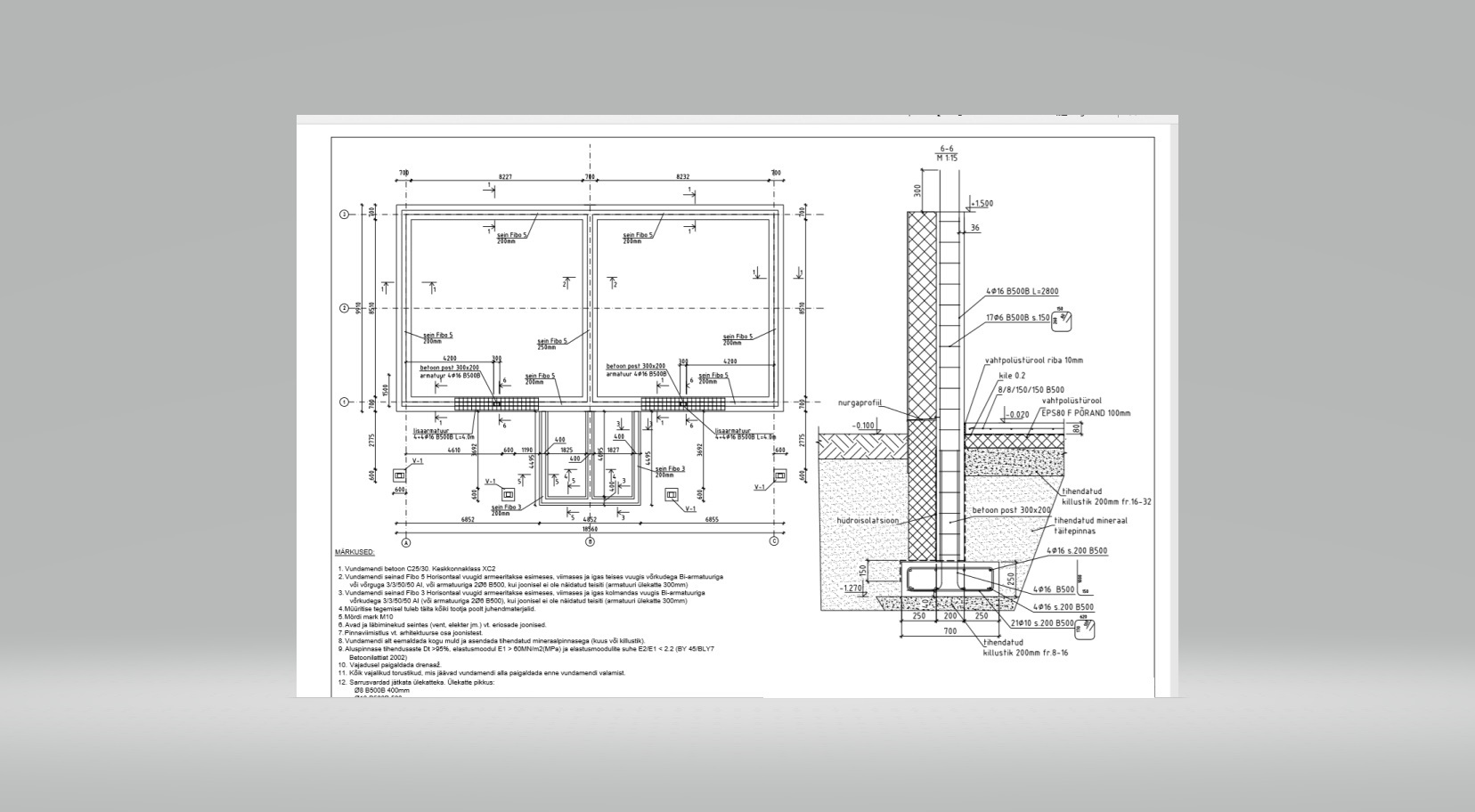
Oleks vaja Tallinnas Nõmmel paarismaja vundamendi ehitajat. (hiljem sobivusel ka müüride ladujat põrandate ja vahelae ehitust).

Pildid, video ja failid

Hanke korraldaja: ettevõte ID43279

Pakkumised

Pakkumisi kokku: 2

Ettevõte Summa Käibemaks Lisatud Vestlus
Kasutaja ikoon ID38559
Pakkuja profiil Väike nool paremale
21 650€ KM lisandub KM lisandub 28.04.2020 Vestlus (0)

Pakkumise kirjeldus:

Tere,

Meie hind oleks 21650 eur, km ei lisandu.

Sisaldab järgnevat:

1. Väljakaeve
2. Killustikupadja ehitus
3. RB taldmikute + rakise ehitus
4. Postvundamentide ehitus
5. Fibo 250mm müür 5 rida
6. Fibo 200mm müür 5 rida
7. Hüdroisolatsioon
8. Vundamendi soojustus EPS 200mm perimeetrile
9. Tagasitäide

Oleksime võimelis ... Rohkem

Kasutaja ikoon ID43816
Pakkuja profiil Väike nool paremale
10 434€ KM lisandub KM lisandub 28.04.2020 Vestlus (0)

Pakkumise kirjeldus:

Tere

Pakkumises on vundamendi killustikaluse ehitus, vundamendi lintide ehitus, betoonpostide ehitus 2tk.
Teostame ka müüritööd ja montaažitööd ning sooviks antud objektil peale vundamendi valmimist kindlasti jatkata karpi püstitamisega ehk müüritöödega ja vahelae ehitusega kuna ausalt öeldes ainult vundamendi ehitusest jääb väheseks m ... Rohkem

Küsimused hanke korraldajale

Küsimus: private ID9125   15.04.2020 08:51
Tervist.

Kas Teil oleks võimalik lisada seletuskiri ja asendiplaan.

Teavita reeglite rikkumisest

Korraldaja vastus: 15.04.2020 14:34

Tere, lisasin pdfis asendi ja vunda plaani, kus ka seletus paremini näha.

Teavita reeglite rikkumisest

Küsimus: private ID43816   15.04.2020 13:26
Tere

Kas saaksite lisada jooniseid dwgs ka või vähemalt pdf-is? Sest praegu piltide kvaliteet ei ole väga loetav.
Kas aluse ehitus sh kaevetööd ja killustikaluse paigaldus on ka töövõtu piirides?

Teavita reeglite rikkumisest

Korraldaja vastus: 15.04.2020 14:37

Tere, lisasin vunda plaani pdfis. Kaevetöödega võiks nii olla, et teie jaoks hakkaks töövõtt killustik aluse tegemisega (auk oleks sisse võetud.)

Teavita reeglite rikkumisest

Küsimus: private ID49783   19.04.2020 21:37
Tere, Kas vundamendi ehituse sisse on arvestatud ka r/b põrandavalu 100mm koos alusega ja kom. sisenditega? Tänan.

Teavita reeglite rikkumisest

Korraldaja vastus: 20.04.2020 08:54

Tere, esialgu ei ole vaja seda arvestada.

Teavita reeglite rikkumisest

Küsimus: private ID43816   22.04.2020 15:49
Kas te tahate just killustiku fr 8-16 lintide alla, mis on kallim? Sest tavaliselt pannakse fr16-32.

Teavita reeglite rikkumisest

Korraldaja vastus: 27.04.2020 14:00

Võib 16-32 ka olla

Teavita reeglite rikkumisest

Lisa küsimus

Lisa küsimus

Minu pakkumine

Reeglid

Pakkumise kirjelduse väli on mõeldud pakkumise detailsemaks lahti kirjutamiseks. Pikema teksti mugavaks sisestamiseks klikkige kasti paremal ülaservas oleval ikoonil.
Pakkumist tehes on keelatud postitada enda kontaktandmeid (nimi, telefon, aadress jne). Me jälgime ja analüüsime pakkumisi, et vältida pettuseid ja reeglite rikkumisi.
Rikkumise puhul kasutajakonto blokeeritakse.

 

Vanemad teated:

Vaata kõiki

Sellel veebilehel kasutatakse küpsiseid. Kasutamist jätkates nõustute küpsiste kasutamisega.

Sulge
 
Minu pakkumine

Reeglid

Pakkumise kirjelduse väli on mõeldud pakkumise detailsemaks lahti kirjutamiseks. Pikema teksti mugavaks sisestamiseks klikkige kasti paremal ülaservas oleval ikoonil.
Pakkumist tehes on keelatud postitada enda kontaktandmeid (nimi, telefon, aadress jne). Me jälgime ja analüüsime pakkumisi, et vältida pettuseid ja reeglite rikkumisi.
Rikkumise puhul kasutajakonto blokeeritakse.