+ Lisa oma töö      

Otsid ehitajat "Arhitektibürood" valdkonnast?

Parima pakkumise ja teostaja leidmiseks lisa oma töö.

Hange on lõppenud!

Võitjaks osutus kasutaja ID 39199

suvila projekt

ID 51089

1394 vaatamist

Prindi

  • check Pakkumiste tegemine
    kuni 16.04.2020
  • check Võitja valik kuni
    23.04.2020
  • 3 Töö teostamine
    ja hinnang
Hanke lõpp: N, 16. aprill, 2020
Maakond: Ida-Virumaa
Muu asula: Alutaguse vald, Ida-Viru maakond
Tööde algus: L, 25. aprill, 2020 (Soovituslik)
Tööde lõpp: P, 31. mai, 2020 (Soovituslik)
Ehitusmaterjalid: Töö tegija poolt
Soovin pakkumisi: Summa kogu projektile

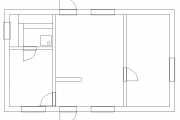
Töö sisu

Soovin 1 korruselise suvila 59,9m2 projekti ehitusloani välja.

Pildid, video ja failid

Hanke korraldaja: eraisik ID54362

Pakkumised

Pakkumisi kokku: 9

Ettevõte Summa Käibemaks Lisatud Vestlus
Kasutaja ikoon ID49405
Pakkuja profiil Väike nool paremale
1 100€ Ei ole KMKR Ei ole KMKR 14.04.2020 Vestlus (0)

Pakkumise kirjeldus:

Ehitusprojekt ehitusloa taotlemiseks/ ehitusteatise esitamiseks vajalikus eelprojekti mahus, vastavalt normidele ja standartidele ning Teie kirjeldusele. Kõik kooskõlastused ja asjaajamised kuni ehitusloani / ehitusteatise registreerimiseni. Vajadusel konsultatsioonid ja mõõdistamine.. Projekt hõlmab kõike, mis on ette nähtud eelprojektis. Projekt di ... Rohkem

Kasutaja ikoon ID40011
Pakkuja profiil Väike nool paremale
1 925€ Sisaldab KM Sisaldab KM 14.04.2020 Vestlus (0)

Pakkumise kirjeldus:

Pakkumine suvila ehitusprojektile arhitektuurse eelprojekti mahus.
Pakkumine sisaldab nii projekti kui ka geo-alust.
Töö lõpeb ehitusteatise kooskõlatuse saamise ning projekti üleandmisega paberil/ DWG ja PDF kujul.

Kasutaja ikoon ID48142
Pakkuja profiil Väike nool paremale
720€ Ikoon kell Sisaldab KM Sisaldab KM 14.04.2020 Vestlus (0)

Pakkumise kirjeldus:

Pakkumine sisaldab:
Suvila arhitektuurset eelprojekti ehitusteatise heakskiidu mahus (seletuskiri, asendiplaan eelprojekti tehnovõrkudega, hoone põhiplaan, vundamendi plaan, katuse plaan, vaated, lõige, 3D visualiseeringud), vajadusel ametkondade märkuste korrigeerimist ehitusprojekti heakskiidu saamiseni. Vajadusel nõu andmist ehituse käigus tekkivat ... Rohkem

Kasutaja ikoon ID46491
Pakkuja profiil Väike nool paremale
1 200€ Ei ole KMKR Ei ole KMKR 14.04.2020 Vestlus (0)

Pakkumise kirjeldus:

Hinnas arhitktuurse eelprojekti koostamine vajalike lisadega ning ehitisteatise registreerimine EHRis. Lisainfo vajadusel "vestluse" kaudu

Kasutaja ikoon ID39199
Pakkuja profiil Väike nool paremale
950€ Ei ole KMKR Ei ole KMKR 14.04.2020 Vestlus (4)

Pakkumise kirjeldus:

Tere! Hinnapakkumine sisaldab projektdokumentatsiooni ehitusliku eelprojekti mahus vastavalt EVS 932-2017 toodule. Hind sisaldab ka krundi geodeetilise alusplaani koostamist.

Kasutaja ikoon ID42152
Pakkuja profiil Väike nool paremale
550€ Ei ole KMKR Ei ole KMKR 14.04.2020 Vestlus (0)

Pakkumise kirjeldus:

Ehitusprojekt eelprojekti staadiumis (arh-eh osa koos eriosadega)
PAkkumsihind sisaldab:
Seletuskiri
Asendiplaan (vajalik geoalus, milel hind eraldi tööna on 490EUR)
Vund ja korruse plaan
Hoone lõige
Hoone vaated
Avatäidete joonised

Kooskõlastused ehitusteatise registreerimsieks
Ehitusteatise esitamine KOV

Riigilõivuvaba

Kasutaja ikoon ID44908
Pakkuja profiil Väike nool paremale
1 100€ Ei ole KMKR Ei ole KMKR 15.04.2020 Vestlus (0)

Pakkumise kirjeldus:

Nimetus Selgitus
Topo-geodeetiline alusplaan- Ei sisaldu
Eskiis lahendatab järgmised ülesanded:
- koostatakse hoone 3D mudel
- koostatakse hoone põhiplaanid, vaated ja lõiked
Tuleohutus (ca 3500 tähemärki):
- tuleohutusnõuete määratlemine;
Konstruktiivne eelprojekt lahendatab järgmised ülesanded määratud ruumides:
- määratakse hoone ko ... Rohkem

Kasutaja ikoon ID46826
Pakkuja profiil Väike nool paremale
540€ Sisaldab KM Sisaldab KM 16.04.2020 Vestlus (0)

Pakkumise kirjeldus:

*eelprojekt ehitusteatise esitamiseks: joonised (vundament, põhiplaan, vaated, lõige) koos seletuskirjaga.
* ehituseatise taotlemine ja MTR sisestamine
*kooskõlastamised ja kaasnevad asjaajamised
*asendplaan ( geoalus 375 eur )

Täpsustavad küsimused oodatud

Parimate soovidega

Kasutaja ikoon ID48870
Pakkuja profiil Väike nool paremale
500€ Sisaldab KM Sisaldab KM 16.04.2020 Vestlus (2)

Pakkumise kirjeldus:

Pakkumine sisaldab:
- Eelprojekti vormistamin joonised :
vaated , lõige, korruste plaanid, vund. plaan avatäited
seletuskirjaga
Kooskõlastused ehitusteatise registreerimiseks
Ehitusteatise esitamine KOv
Asendiplaan (vajalik geoalus, milel hind eraldi tööna on 350EUR)

Küsimused hanke korraldajale

Küsimus: private ID48142   13.04.2020 20:16
Kas on olemas kehtiv geoalus? Kas 59,9m2 on suvila netopinnaks või ehitisealuseks pinnaks? Kuidas on kavas lahendada hoone vee- ja kanalisatsioonivarustus. Kas on liitumisi tehnovõrkudega?

Teavita reeglite rikkumisest

Korraldaja vastus: 13.04.2020 20:37

Geoalus puudub . 59.9 jääb ehitusaluseks pinnaks ehk siis saame hakkama ehitisteatisega. Vesi esialgu puudub kanalisatsioon tuleb septiku näol liitumisi tehnovõrkudega ei tule. 6x10 puitkarkass maja, kivikatus lintvundament, moodulkorsten.

Teavita reeglite rikkumisest

Küsimus: private ID44908   14.04.2020 10:19
Kas suvila kõrgus jääb alla 5m?

Teavita reeglite rikkumisest

Korraldaja vastus: 14.04.2020 10:28

Jah suvila kõrgus jääb alla 5m.

Teavita reeglite rikkumisest

Lisa küsimus

Lisa küsimus

Minu pakkumine

Reeglid

Pakkumise kirjelduse väli on mõeldud pakkumise detailsemaks lahti kirjutamiseks. Pikema teksti mugavaks sisestamiseks klikkige kasti paremal ülaservas oleval ikoonil.
Pakkumist tehes on keelatud postitada enda kontaktandmeid (nimi, telefon, aadress jne). Me jälgime ja analüüsime pakkumisi, et vältida pettuseid ja reeglite rikkumisi.
Rikkumise puhul kasutajakonto blokeeritakse.

 

Teisi töid samas valdkonnas

Valdkonnas "Arhitektibürood" on 4 aktiivset tööd

no-img Pilt puudub

Ehitusprojekt

Asukoht: Pärnumaa, Lemmetsa
Aega jäänud: 2p 7h
Tehtud pakkumisi: 3

36 kohalise hooldekodu projekti koostamine

Asukoht: Pärnumaa, Pärnu
Aega jäänud: 29p 7h
Tehtud pakkumisi: 2

Vanemad teated:

Vaata kõiki

Sellel veebilehel kasutatakse küpsiseid. Kasutamist jätkates nõustute küpsiste kasutamisega.

Sulge
 
Minu pakkumine

Reeglid

Pakkumise kirjelduse väli on mõeldud pakkumise detailsemaks lahti kirjutamiseks. Pikema teksti mugavaks sisestamiseks klikkige kasti paremal ülaservas oleval ikoonil.
Pakkumist tehes on keelatud postitada enda kontaktandmeid (nimi, telefon, aadress jne). Me jälgime ja analüüsime pakkumisi, et vältida pettuseid ja reeglite rikkumisi.
Rikkumise puhul kasutajakonto blokeeritakse.