+ Lisa oma töö      

Otsid ehitajat "Vannitubade remont" valdkonnast?

Parima pakkumise ja teostaja leidmiseks lisa oma töö.

Hange on lõppenud!

Võitjaks osutus kasutaja ID 48704

Korraldaja hinnang tehtud tööle

5.0
15.06.2020
Töökiirus: 12345
Kvaliteet: 12345
Hind: 12345

Pakkumine sisaldas piisavalt informatsiooni tööde teostamise plaanist nii sisulises kui ajalises mõttes. Pakkumises olid ka mõned ehitaja kogemusel baseeruvad esialgselt mittenõutud valikud, mis andsid lisakindluse, et sarnaseid töid on varem teostatud. Vastused täiendavatele küsimustele olid ammendavad ja viisid kiiresti positiivse otsuseni, hoolimata asjaolust, et tegu ei olnud odavaima pakkumisega ja tegelikult ületasid minu kui tellija subjektiivset esialgset eelarvet. Koostöö ja kommunikatsioon laabus suurepäraselt, alates ülevaatusest/planeerimisest, jätkates ettevalmistavate lammutustööde, ehituse ja viimistlusega. Kuna ma ise objektil regulaarselt ei viibinud, sain ülevaate progressist igapäevaste piltide abil (mis on ka väga hea arhiivimaterjal – on võimalik detailideni tuvastada, kus ja mis seinas või põrandas paikneb) – samuti lahendasime kõik küsitavused/otsustamise kohad, kui parasjagu ei olnud võimalik kohtuda. Objekt oli alati korras, materjalid ja jäägid paigutatud kokkulepitud kohta. Ajakava oli mõlemale poolele alati teada, oli piisavalt aega teha oma valikuid ja otsuseid (nt siseviimistlusmaterjalid, mööbel jne). Projektile kulus kokku pisut rohkem aega, kui esialgu mõeldud, kuid see oli täielikul vastastikusel kokkuleppel – tegime mitmeid kohtumisi ka töövabadel päevadel, sest nii lihtsalt sobis mõlemale paremini. Teostus on väga korralik, töö käekirjast peegeldub ehitus- ja kasutuskogemus – paljud, sh esialgselt planeeritust erinevad, ettepanekud olid väga head, praktilised ja säästvad, samas ei olnud kunagi probleemi teostada asjad täpselt nii nagu soovitud, isegi paar asja tagantjärele ümber teha. Kokku võttes - äärmiselt positiivne kogemus, lisaks kokkulepitu tarnimisele astub teostaja sammu või paar rohkem, et ehituse tulemus veelgi paremini/kiiremini kasutusele võtta. Aitäh! - Daniel T.

Sanruumi ehitus

ID 50972

1066 vaatamist

Prindi

  • check Pakkumiste tegemine
    kuni 22.04.2020
  • check Võitja valik kuni
    29.04.2020
  • 3 Töö teostamine
    ja hinnang
Hanke lõpp: K, 22. aprill, 2020
Maakond: Pärnumaa
Muu asula: Tori Vald
Tööde algus: E, 13. aprill, 2020 (Soovituslik)
Tööde lõpp: P, 17. mai, 2020 (Soovituslik)
Ehitusmaterjalid: Töö tegija poolt
Soovin pakkumisi: Summa kogu projektile

Töö sisu

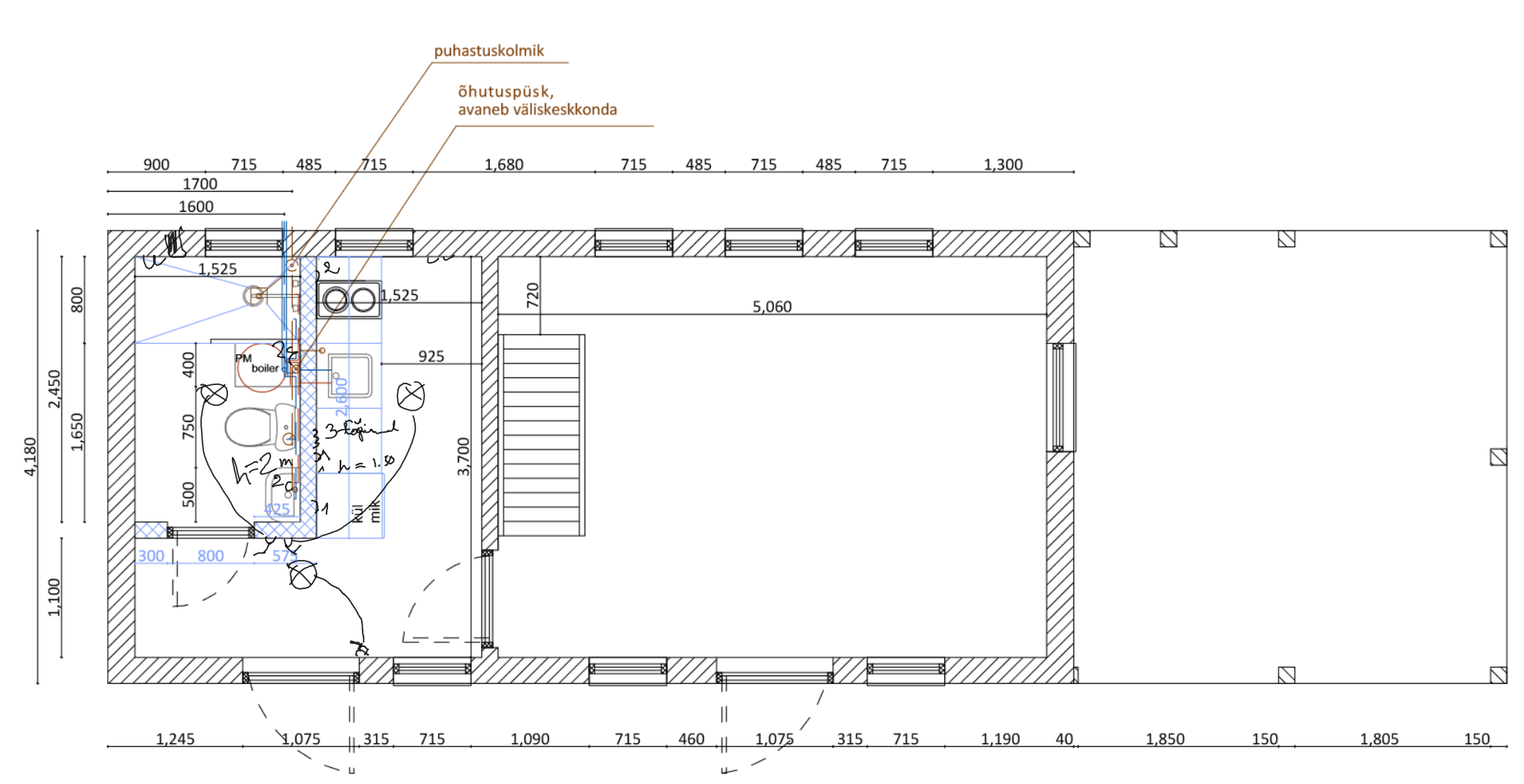
Hetkeolukord. Umbes 2015 abihooneks ehitatud lintvundamendiga puitkarkassmajas puudub veevärk täielikult. Majas on ca 12m2 suurune eesruum (lisatud foto - laudisseinad ja -laed, põrandal betoonile laotud suured keraamilised plaadid). Samas ruumis on ka elektrikaitsmete kapp, kust on seinte seest veetud maja olemasolevad elektriühendused (kaablid seinapistikuteni, valgustite-lülititeni jne). Vett puurkaevust majani ja kanalisatsiooni välisühendusi veel ei ole, kuid olemas on projekt, ehitusluba ja ka tulevane välistööde teostaja - eesmärk on sisetööd enne välistöid valmis saada (konsulteerides vajadusel välistööde teostajaga).

Plaan on sellesse eesruumi ehitada vaheseinad selliselt, et tekib eraldatud sanruum (u 4-5m2) ja köök-esik. Kirjale on lisatud väljavõte korruseplaanist, millele on elektrisoovid vabas vormis peale märgitud (olen valmis täpsustama, kui arusaamatu).
Tulevsase sanruumi alt on vaja põrand esimese tööna lõhkuda, et tulevase plaaditud põranda alla paigaldada torustik, põrandaküttekaabel jne - kuna laed on suhteliselt madalad (ca 2,2m), siis peaks uus põrand jääma praegusega samasse tasandisse, kindlasti mitte kõrgemale.
Kõik veeühendused jäävad ehitatavasse sise-vaheseina. Veeotsad: dušš, elektriboiler, pesumasin, wc, sanruumi valamu, köögivalamu; kanal: puhastuskolmik, dušš, pesumasin, wc, õhutus (mõelda, kas saab viia välja või vaakumklapp), sanruumi valamu, köögivalamu. Majja on vesi sisenema planeeritud läbi vundamendi soojustuskoorikus (vaja on ilmselt välisehitajaga täpsustamist tööde käigus) - veesõlme asukoht umbes boileri juures (peaks planeerima ka filtri). Reovee väljumine u 30 cm sügavuselt läbi vundamendi de110 toruga (vaja on ilmselt välisehitajaga täpsustamist tööde käigus).
Köök-esikusse jääb olemasolev põrand. Sanruumi uus põrand ja uued seinad on vaja plaatida, lagi ja enamik olemasolevat seina (kus võimalik ja mõistlik) jäävad laudisega. Köögi ja esiku poolele uutele seintele värv (tööpinna kohale seinaplaat). Seinad tuleks teha sellise arvestusega, et sinna on vaja kinnitada köögikappe, boiler jne.
Elektriühendused: sanruumis praeguse pistikupesa sulgemine/vee eest kaitsmine, uued ühendused uues vaheseinas boilerile, pesumasinale ning ühele laevalgustile lülitamisega uuelt vaheseinalt ja ühele seinavalgustile valamu kohal; köögis külmkapp, pliit, ahi, tööpinna pistikupesad, tööpinna valgustus lülitamisega tööpinna kohalt seinalt ja laelamp lülitamisega uuelt vaheseinalt; esikus laelamp lülitamisega välisukse kõrvalt (olemasolev lüliti ja valgusti).
Pakkumine peaks sisaldama santehnika, köögimööbli (lihtsad Ikea kapid ja tööpind) ja elektri (lülitid-valgustid, pistikupesad + vajalikud eeldused, nt täiendav kaabeldus, lekkevoolukaitse jms) paigaldamist.

Pildid, video ja failid

Hanke korraldaja: eraisik ID6059

Pakkumised

Pakkumisi kokku: 2

Ettevõte Summa Käibemaks Lisatud Vestlus
Kasutaja ikoon ID48704
Pakkuja profiil Väike nool paremale
6 095€ Sisaldab KM Sisaldab KM 15.04.2020 Vestlus (2)

Pakkumise kirjeldus:

Tere,
pakkumine sisaldab põranda lammutust, torustiku paigaldus+ materjalid, elektritööd + materjalid (ppesad, lülitid ABB), põranda valamist ja põrandakütte paigaldust (elekter), vaheseina ehitust koos materjalidega (k.a. uks), plaatimist toodud mahule, sundventilatsiooni paigaldust (läbi seina õue vms), wc- pott IFÖ sign 6860, kraanikauss ja seg ... Rohkem

Kasutaja ikoon ID49995
Pakkuja profiil Väike nool paremale
5 150€ Ei ole KMKR Ei ole KMKR 16.04.2020 Vestlus (2)

Pakkumise kirjeldus:

Soov ainult materialide ettemaks.
Leping ja garantii.( hinna sees)
Parimat

Küsimused hanke korraldajale

Hanke korraldajale ei ole veel küsimusi esitatud.

Lisa küsimus

Lisa küsimus

Minu pakkumine

Reeglid

Pakkumise kirjelduse väli on mõeldud pakkumise detailsemaks lahti kirjutamiseks. Pikema teksti mugavaks sisestamiseks klikkige kasti paremal ülaservas oleval ikoonil.
Pakkumist tehes on keelatud postitada enda kontaktandmeid (nimi, telefon, aadress jne). Me jälgime ja analüüsime pakkumisi, et vältida pettuseid ja reeglite rikkumisi.
Rikkumise puhul kasutajakonto blokeeritakse.

 

Teisi töid samas valdkonnas

Valdkonnas "Vannitubade remont" on 3 aktiivset tööd

Vannitoa ja Wc kapitaalremont

Asukoht: Harjumaa, Tallinn
Aega jäänud: 1p 11h
Tehtud pakkumisi: 4

Vannitoa ehitamine

Asukoht: Harjumaa, Tallinn
Aega jäänud: 15p 11h
Tehtud pakkumisi: 4

Vanemad teated:

Vaata kõiki

Sellel veebilehel kasutatakse küpsiseid. Kasutamist jätkates nõustute küpsiste kasutamisega.

Sulge
 
Minu pakkumine

Reeglid

Pakkumise kirjelduse väli on mõeldud pakkumise detailsemaks lahti kirjutamiseks. Pikema teksti mugavaks sisestamiseks klikkige kasti paremal ülaservas oleval ikoonil.
Pakkumist tehes on keelatud postitada enda kontaktandmeid (nimi, telefon, aadress jne). Me jälgime ja analüüsime pakkumisi, et vältida pettuseid ja reeglite rikkumisi.
Rikkumise puhul kasutajakonto blokeeritakse.