+ Lisa oma töö      

Tuulekastide ehitus

ID 40804

2233 vaatamist

Prindi

  • check Pakkumiste tegemine
    kuni 02.10.2017
  • check Võitja valik kuni
    09.10.2017
  • 3 Töö teostamine
    ja hinnang
Hanke lõpp: E, 2. oktoober, 2017
Maakond: Harjumaa
Muu asula: Patika
Tööde algus: T, 10. oktoober, 2017 (Soovituslik)
Tööde lõpp: P, 10. mai, 2026 (Soovituslik)
Ehitusmaterjalid:

Töö sisu

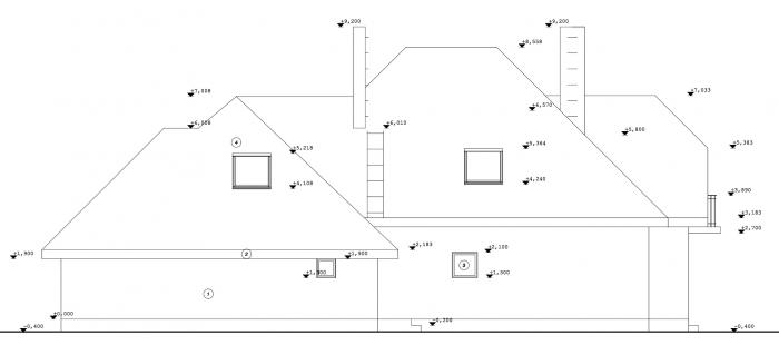
Ootan pakkumisi kahekordse eramu tuulekastide ehitamiseks ning nelja katuse nurga tõstmiseks ja fikseerimiseks (ära vajunud). Kaks nurka minimaalselt, üks nurk natuke rohkem ja ühe nurga lahendus keskmisest keerukam.

- Tuulekasti mõõt 600 x 200 mm
- Kogupikkus ca 77 jm
- Värvitud lauast (nt 100 mm aga võib ka laiem)
- Tuulekastide kõrgused erinevatel tasanditel. Kõige madalamas kohas ulatab peaaegu maast tegema, aga enamiku perimeetri jaoks on vaja tellinguid (kõrgeim koht 5,5m). Vaata lisaks ka mõõtudega jooniseid ja pilte.
- Tuulekasti seest tuleb vedada ka elektrikaabel valgustuse jaoks (olemas tellija poolt) ning teatud kohtadest laudise vahelt välja jätta. Midagi muud sellega teha ei tule.

Laias laastus tööde etapid sellised:
- Räästa aluse karkassi/toestuse ehitus ja rihtimine
- 4 katuse nurga tõstmine ja fikseerimine
- Peaukse varjualuse lae ehitus ca 2 m2 - tuuletõkkeplaat + distantsliist + tuulekasti laud.
- Laudise paigaldus
- Viimistlus (kruvipeade ja lauaotsete värvimine kohapeal)

Objekt asub Patikal, Tallinnast 20 km

Kõik projektiga seotud kulud jäävad pakkuja kanda (materjal, transport, kinnitusvahendid, tellingud jms) kuni objekti valmimiseni.

NB! Sobiva hinnapakkumuse selgumise korral on töödega võimalik alustada koheselt.

Pildid, video ja failid

Hanke korraldaja: eraisik ID37733

Pakkumised

Pakkumisi kokku: 0

Küsimused hanke korraldajale

Küsimus: private ID43902   06.08.2017 06:43
Tere,<br />
Kas on võimalik lisada pilte nurkadest mis vajunud?Saan jutust aru ,et nugad on vajunud,aga piltidelt näha ei ole midagi,raske teha pakkumist.Kas otsaseina räästakasti välimised nurgad on vajunud?

Teavita reeglite rikkumisest

Korraldaja vastus: 07.08.2017 12:49

Tere!<br />
<br />
Üritan selgemad vajunud nurkadest lisada homseks. Kahjuks süsteem siin teeb pildid nii väikeseks, et pole kindel, kas sealt aru saab.<br />
Kaks nurka ilmselt suudan pildistada arusaadavalt aga kaks nurka on niivõrd vähe vajunud, et pole kindel, kas neid foto peal aru saabki.<br />
Proovin ja lisan homme pildid koos punaste nooltega.

Teavita reeglite rikkumisest

Küsimus: private ID43902   25.08.2017 19:42
Tere,<br />
teeksin pakkumise,aga töid saaksin teostada alles novembris,kas selline aeg sobiks teile?

Teavita reeglite rikkumisest

Korraldaja vastus: 26.08.2017 05:12

Sobib ikka. Tehke aga pakkumine. Antud on eeldatav tööde aeg, mis pole kohustuslik

Teavita reeglite rikkumisest

Lisa küsimus

Lisa küsimus

Minu pakkumine

Reeglid

Pakkumise kirjelduse väli on mõeldud pakkumise detailsemaks lahti kirjutamiseks. Pikema teksti mugavaks sisestamiseks klikkige kasti paremal ülaservas oleval ikoonil.
Pakkumist tehes on keelatud postitada enda kontaktandmeid (nimi, telefon, aadress jne). Me jälgime ja analüüsime pakkumisi, et vältida pettuseid ja reeglite rikkumisi.
Rikkumise puhul kasutajakonto blokeeritakse.

 

Vanemad teated:

Vaata kõiki

Sellel veebilehel kasutatakse küpsiseid. Kasutamist jätkates nõustute küpsiste kasutamisega.

Sulge
 
Minu pakkumine

Reeglid

Pakkumise kirjelduse väli on mõeldud pakkumise detailsemaks lahti kirjutamiseks. Pikema teksti mugavaks sisestamiseks klikkige kasti paremal ülaservas oleval ikoonil.
Pakkumist tehes on keelatud postitada enda kontaktandmeid (nimi, telefon, aadress jne). Me jälgime ja analüüsime pakkumisi, et vältida pettuseid ja reeglite rikkumisi.
Rikkumise puhul kasutajakonto blokeeritakse.