+ Lisa oma töö      

Tuulekastide ehitus eramule

ID 40265

4822 vaatamist

Prindi

  • check Pakkumiste tegemine
    kuni 04.07.2017
  • check Võitja valik kuni
    11.07.2017
  • 3 Töö teostamine
    ja hinnang
Hanke lõpp: T, 4. juuli, 2017
Maakond: Harjumaa
Muu asula: Patika
Tööde algus: R, 28. juuli, 2017 (Soovituslik)
Tööde lõpp: P, 10. mai, 2026 (Soovituslik)
Ehitusmaterjalid:

Töö sisu

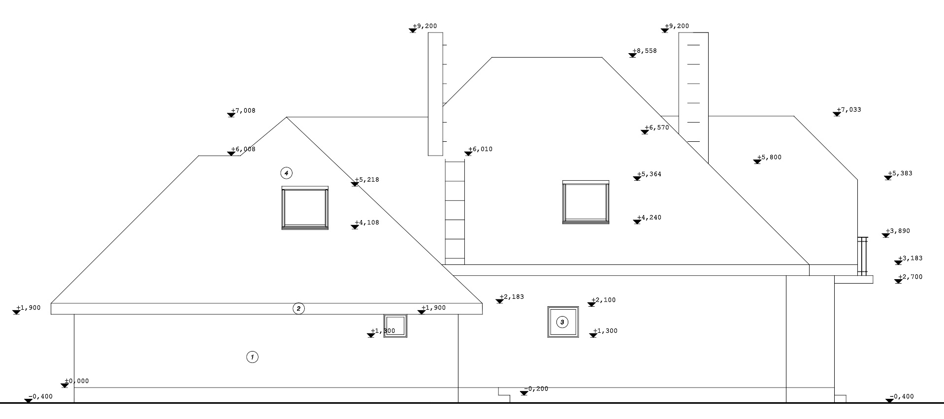
Ootan pakkumisi kahekordse eramu tuulekastide ehitamiseks ning nelja katuse nurga tõstmiseks ja fikseerimiseks (ära vajunud). Kaks nurka minimaalselt, üks nurk natuke rohkem ja ühe nurga lahendus keskmisest keerukam.

- Tuulekasti mõõt 600 x 200 mm
- Kogupikkus ca 77 jm
- Värvitud lauast (nt 100 mm aga võib ka laiem)
- Tuulekastide kõrgused erinevatel tasanditel. Kõige madalamas kohas ulatab peaaegu maast tegema, aga enamiku perimeetri jaoks on vaja tellinguid (kõrgeim koht 5,5m). Vaata lisaks ka mõõtudega jooniseid ja pilte.
- Tuulekasti seest tuleb vedada ka elektrikaabel valgustuse jaoks (olemas tellija poolt) nign teatud kohtadest laudise vahelt välja jätta. Midagi muud sellega teha ei tule.

Laias laastus tööde etapid sellised:
- Räästa aluse karkassi/toestuse ehitus ja rihtimine
- 4 katuse nurga tõstmine ja fikseerimine
- Peaukse varjualuse lae ehitus ca 2 m2 - tuuletõkkeplaat + distantsliist + tuulekasti laud.
- Laudise paigaldus
- Viimistlus (kruvipeade ja lauaotsete värvimine kohapeal)

Objekt asub Patikal, Tallinnast 20 km

Kõik projektiga seotud kulud jäävad pakkuja kanda (materjal, transport, kinnitusvahendid, tellingud jms) kuni objekti valmimiseni.

Pildid, video ja failid

Hanke korraldaja: eraisik ID37733

Pakkumised

Pakkumisi kokku: 1

Ettevõte Summa Käibemaks Lisatud Vestlus
Kasutaja ikoon ID45589
Pakkuja profiil Väike nool paremale
6 100€ Ei sisalda Ei sisalda 30.06.2017 Vestlus (0)

Küsimused hanke korraldajale

Hanke korraldajale ei ole veel küsimusi esitatud.

Lisa küsimus

Lisa küsimus

Minu pakkumine

Reeglid

Pakkumise kirjelduse väli on mõeldud pakkumise detailsemaks lahti kirjutamiseks. Pikema teksti mugavaks sisestamiseks klikkige kasti paremal ülaservas oleval ikoonil.
Pakkumist tehes on keelatud postitada enda kontaktandmeid (nimi, telefon, aadress jne). Me jälgime ja analüüsime pakkumisi, et vältida pettuseid ja reeglite rikkumisi.
Rikkumise puhul kasutajakonto blokeeritakse.

 

Vanemad teated:

Vaata kõiki

Sellel veebilehel kasutatakse küpsiseid. Kasutamist jätkates nõustute küpsiste kasutamisega.

Sulge
 
Minu pakkumine

Reeglid

Pakkumise kirjelduse väli on mõeldud pakkumise detailsemaks lahti kirjutamiseks. Pikema teksti mugavaks sisestamiseks klikkige kasti paremal ülaservas oleval ikoonil.
Pakkumist tehes on keelatud postitada enda kontaktandmeid (nimi, telefon, aadress jne). Me jälgime ja analüüsime pakkumisi, et vältida pettuseid ja reeglite rikkumisi.
Rikkumise puhul kasutajakonto blokeeritakse.