+ Lisa oma töö      

Suvemaja ehitusmaterjaal

ID 16653

2804 vaatamist

Prindi

  • check Pakkumiste tegemine
    kuni 09.07.2009
  • check Võitja valik kuni
    16.07.2009
  • 3 Töö teostamine
    ja hinnang
Hanke lõpp: N, 9. juuli, 2009
Maakond: Raplamaa
Tööde algus: E, 15. juuni, 2009 (Soovituslik)
Tööde lõpp: R, 01. mai, 2026 (Soovituslik)
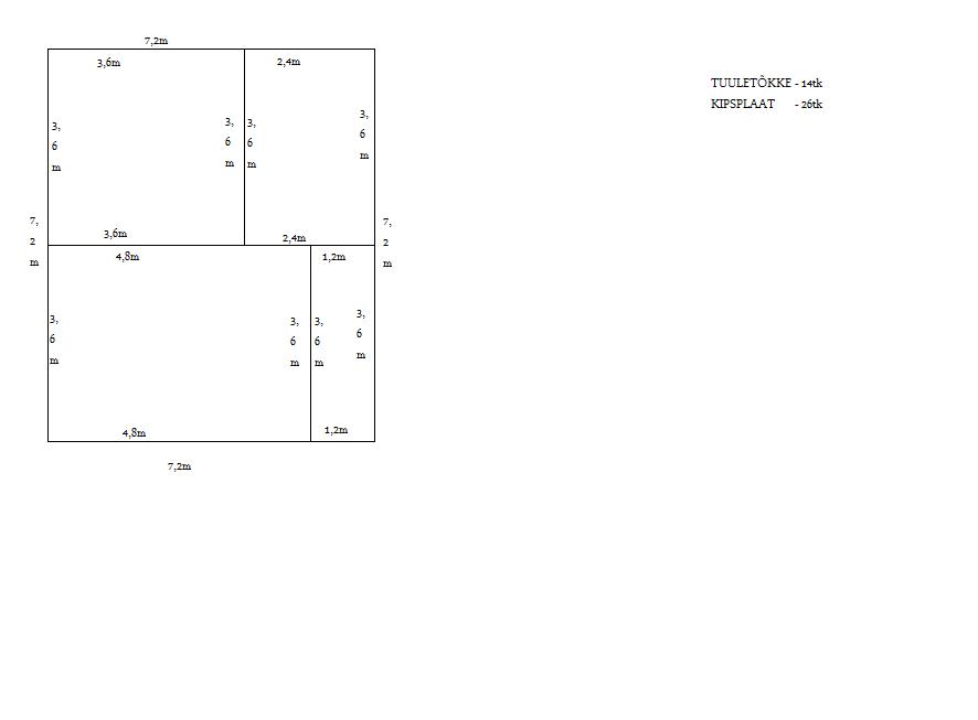
Ehitusmaterjalid:

Töö sisu

50x150mm - 100,2m
50x100mm - 68,7m
50x50mm -
Tuuletõke - 42tk
Kile - 121,68 m2
Soojustus - 120 m2
Põranda Plaat - 18tk
Ploke - 28tk
Kips - 52tk
Sise Uksed - 3tk
Aken(1,2m x 1m) - 3tk
Aken(0,6m x 1m) - 1tk
Välisuks - 1tk
Nurgad - 96tk
Väikesed Nurgad - 16tk
Kruvid - 672tk
Klambrid - 1pk
Tuuletüke Naelad - ?

Pildid, video ja failid

Hanke korraldaja: eraisik ID20800

Pakkumised

Pakkumisi kokku: 1

Ettevõte Summa Käibemaks Lisatud Vestlus
Kasutaja ikoon ID17036
Pakkuja profiil Väike nool paremale
2 684,3€ Ei sisalda Ei sisalda 08.07.2009 Vestlus (0)

Pakkumise kirjeldus:

Tere.Parimatega

Küsimused hanke korraldajale

Küsimus: private ID21032   12.06.2009 12:39
mis materjalist sise uksi soovid, ja kas klaasiga või ilma? ja ukse mõõdud?

Teavita reeglite rikkumisest

Korraldaja vastus: 01.05.2026 08:05

midagi odavat ja vahet ei ole kas klaasiga voi ilma

Teavita reeglite rikkumisest

Küsimus: private ID21032   15.06.2009 13:46
aga mis mõõdus uksi tahad?

Teavita reeglite rikkumisest

Korraldaja vastus:
Hanke korraldaja ei ole küsimusele veel vastanud

Küsimus: private ID21032   15.06.2009 13:47
kas puit või plastik aken?

Teavita reeglite rikkumisest

Korraldaja vastus:
Hanke korraldaja ei ole küsimusele veel vastanud

Lisa küsimus

Lisa küsimus

Minu pakkumine

Reeglid

Pakkumise kirjelduse väli on mõeldud pakkumise detailsemaks lahti kirjutamiseks. Pikema teksti mugavaks sisestamiseks klikkige kasti paremal ülaservas oleval ikoonil.
Pakkumist tehes on keelatud postitada enda kontaktandmeid (nimi, telefon, aadress jne). Me jälgime ja analüüsime pakkumisi, et vältida pettuseid ja reeglite rikkumisi.
Rikkumise puhul kasutajakonto blokeeritakse.

 

Vanemad teated:

Vaata kõiki

Sellel veebilehel kasutatakse küpsiseid. Kasutamist jätkates nõustute küpsiste kasutamisega.

Sulge
 
Minu pakkumine

Reeglid

Pakkumise kirjelduse väli on mõeldud pakkumise detailsemaks lahti kirjutamiseks. Pikema teksti mugavaks sisestamiseks klikkige kasti paremal ülaservas oleval ikoonil.
Pakkumist tehes on keelatud postitada enda kontaktandmeid (nimi, telefon, aadress jne). Me jälgime ja analüüsime pakkumisi, et vältida pettuseid ja reeglite rikkumisi.
Rikkumise puhul kasutajakonto blokeeritakse.