+ Lisa oma töö      

Suvemaja ehitus materjaal

ID 16652

1710 vaatamist

Prindi

  • check Pakkumiste tegemine
    kuni 25.05.2009
  • check Võitja valik kuni
    01.06.2009
  • 3 Töö teostamine
    ja hinnang
Hanke lõpp: E, 25. mai, 2009
Maakond: Raplamaa
Linn: Rapla
Tööde algus: E, 15. juuni, 2009 (Soovituslik)
Tööde lõpp: R, 01. mai, 2026 (Soovituslik)
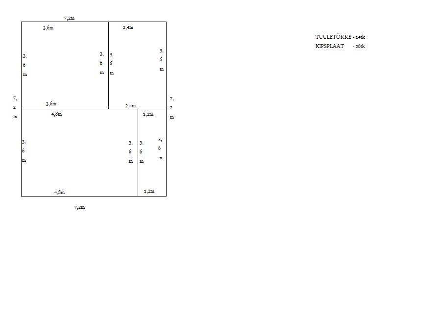
Ehitusmaterjalid:

Töö sisu

soovix sootsalt osta ehitus materjaali suvemajale
vaja läheb siis selliseid tooteid

50x150mm - 100,2jm
50x100mm - 68,7jm
50x50mm -
Tuuletõke - 42tk
Kile - 121,68 m2
Soojustus - 120 m2
Põranda Plaat - 18tk
Ploke - 28tk
Kips - 52tk
Sise Uksed - 3tk
Aken(1,2m x 1m) - 3tk
Aken(0,6m x 1m) - 1tk
Välisuks - 1tk
Nurgad - 96tk
Väikesed Nurgad - 16tk
Kruvid - 672tk
Klambrid - 1pk
Tuuletüke Naelad - ?

Pildid, video ja failid

Hanke korraldaja: eraisik ID20800

Pakkumised

Pakkumisi kokku: 0

Küsimused hanke korraldajale

Hanke korraldajale ei ole veel küsimusi esitatud.

Lisa küsimus

Lisa küsimus

Minu pakkumine

Reeglid

Pakkumise kirjelduse väli on mõeldud pakkumise detailsemaks lahti kirjutamiseks. Pikema teksti mugavaks sisestamiseks klikkige kasti paremal ülaservas oleval ikoonil.
Pakkumist tehes on keelatud postitada enda kontaktandmeid (nimi, telefon, aadress jne). Me jälgime ja analüüsime pakkumisi, et vältida pettuseid ja reeglite rikkumisi.
Rikkumise puhul kasutajakonto blokeeritakse.

 

Vanemad teated:

Vaata kõiki

Sellel veebilehel kasutatakse küpsiseid. Kasutamist jätkates nõustute küpsiste kasutamisega.

Sulge
 
Minu pakkumine

Reeglid

Pakkumise kirjelduse väli on mõeldud pakkumise detailsemaks lahti kirjutamiseks. Pikema teksti mugavaks sisestamiseks klikkige kasti paremal ülaservas oleval ikoonil.
Pakkumist tehes on keelatud postitada enda kontaktandmeid (nimi, telefon, aadress jne). Me jälgime ja analüüsime pakkumisi, et vältida pettuseid ja reeglite rikkumisi.
Rikkumise puhul kasutajakonto blokeeritakse.