+ Lisa oma töö      

Otsid ehitajat "Katusetööd" valdkonnast?

Parima pakkumise ja teostaja leidmiseks lisa oma töö.

Põhi- ja tööprojekt savihoonele uue katuse ehituseks

ID 134150

225 vaatamist

Prindi

  • 1 Pakkumiste tegemine
    kuni 09.05.2026
  • 2 Võitja valik kuni
    19.05.2026
  • 3 Töö teostamine
    ja hinnang
Hanke lõpp: L, 9. mai, 2026
Maakond: Tartumaa
Muu asula: Mõra
Tööde lõpp: Kokkuleppel
Ehitusmaterjalid: Töö tellija poolt
Soovin pakkumisi: Summa kogu projektile

Töö sisu

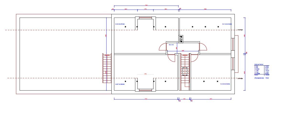
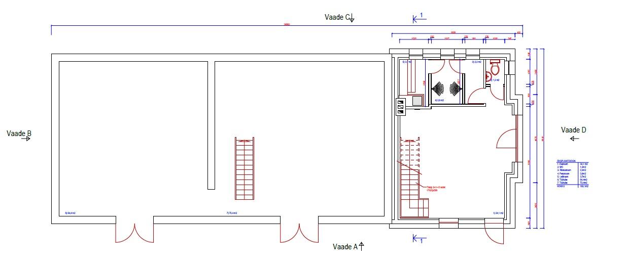
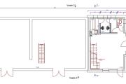
Projekti eesmärk ehitada vanale savist seinadega kõrvalhoonele uus kaasaegne katus, eesmärgiga ehitada katuse alla eluruumid. Põhiprojekti eesmärk projekti alusel katuse ehituse hinnapakkumiste välja selgitamine ning nende alusel hiljem ehituse läbiviimine. Olemas uute tubade ja vaheseinade nägemus ja plaan. Uus katus soovitud katuslaena, st toad on kõrgete lagedega kuni harjani lahti. Uued eluruumid tulevad ainult halli ehk eterniidist osa alla. Tänane savihoone katus (sketšidel hall ja roheline osa) kaardunud ümarpalk sarikatest, mille peal ¾ osas Onduline laineplaat ja ¼ osas vana eterniit, all tavaline must roovitus. Savihoone otsas uus hoone, ehitatud 10a tagasi, uuema aja soojustatud katusega, kus all on juba eluruumid ja katusekatteks trapets profiilplekk. Projekti puudutava osa eelistatud katusekattematerjal valtsplekk ning kaalumisel ka olemasoleva uue hoone osa katusekattematerjali vahetus selle vastu (et kogu katus oleks kogu pikkuses ühesuguse katte all).

Projekteerimise eesmärk teha 3 töömahu versiooni, et saada 3 erinevat hinnapakkumist:
1) Ainult eterniidist ehk sketšidel halli osaga tähistatud katuse osas uue katuse ehitus ja katuse sidumine uue hoonega (sketšidel valge osa ehk trapets pleki all), kui ka jätkuva vana hoonega (sketšidel roheline osa ehk Onduline-i all) ehk nö ainult kogu katuse keskmise osa vahetus. Antud versioonis vintskappi (šketsil punasega) ei ehitata;
2) Ainult eterniidist ehk sketšidel halli osaga tähistatud katuse osas uue katuse ehitus ja katuse sidumine uue hoonega (sketšidel valge osa ehk trapets pleki all), kui ka vana hoonega (sketšidel roheline osa ehk Onduline-i all) + sketšil punasega näidatud vintskapi ehitus (hallile osale);
3) Nii eterniidist kui Onduline katte all oleva ehk sketšidel halli ja rohelise värviga tähistatud ehk kogu vana katuse vahetamine uue vastu ning uue hoonega (sketšidel valge osa) ühendamine + sketšidel punasega näidatud vintskapi ehitus. Antud versiooni peamine põhjus – võibolla ei ole tehniliselt mõttekas vana (kaardus) ja uut katust ühendada (ehk võibolla ei ole tehniliselt mõtekas/võimalik teha sketšidel nn hall - roheline osa üleminekut) ja/või soov saada aru kui palju maksab terve katuse vahetus (et võtta seda kaalumisele);

Projekti mahus vähemalt:
1) Sarikaplaan ja lõige;
2) Räästasõlm;
3) Toolvärgi sõlm;
4) Harjasõlm;
5) Pennisõlm (kui see tuleb);
6) Otsaseina sõlm (kõikide versioonide puhul soojustatud otsasein vähemalt halli ja rohelise osa vahel, versioonis 3 lisandub soojustamata otsasein ka hoone otsa);
7) Katuslae lõige (katusekate, tuulutus, soojustus jne);
8) Katuste üleminekusõlmed - uue hoone osa (sketšil valge) ja uue katuse vahel (sketšil hall osa) ning uue katuse (sketšil hall osa) ja vana katuse osa (ehk rohelise) vahel (mis variandi 1 järgi alles jäetakse).
9) Vajalikud töömahud nii hinnapakkumiste kui ehituse jaoks.
Märkus: eeldame projekteerijalt teadmist, mis peab antud põhi- ja tööprojekti mahus olema hinnapakkumiste ja ehituse läbiviimiseks.

Erisoovid:
1) Kuna halli osa alla rajatavatel eluruumidel soov teha katuslagi ehk ruumid harjani lahti, siis sellega seoses soov konstrueerida võimalikult väike pennisõlm või leida võimalusi see üldse ära jätta (nt kasutades ruumide vaheseinu toestuseks). Eeldab kogemust või konstrueerimist projekteerijalt (võimalik et vajalikud lihtsamad tugevusarvutused või kindel kogemus ja/või üledimensioneerimine).
2) Projekteerijal peaks olema samasuguste tööde tegemise kogemus ja referentse näidata.
3) Projekteerijalt eeldame paikvaatlusele tulemist ja objektiga tutvumist. Aja osas oleme paindlikud.
4) Projekteerijalt eeldame kaasa mõtlemist, ideid ja lahendusi. Ise pakume aktiivset kaasa töötamist.
5) Lisaks võib olla ehituslikke küsimusi või otsutuskohti (a la kas vana müürilatti saab kasutada või peab uue tegema jne).
6) Samuti võib olla oskab projekteerija pakkuda parema ülesehituse 3 versiooni tegemisele - a la projekteeritakse ikkagi täis maht, aga töömahtude loendis tehakse vähendatud versioonide kitsendused vms.

Lisainfo:
1) Kogu hoone pikkus ca 24,5m. Laius (sh müürilatist müürilatini) 9,5m.
2) Katuse harja kõrgu 7,7m (maapinnast 0m).
3) Täna olemasoleva uue osa pikkus ca 6m, hall osa kuhu planeeritud uued toad ca 7,5m ja roheline osa ca 11m.
4) Aastast 2016 olemas korralik eelprojekt, millega lahendatud savi hoone otsas oleva uue hoone osa ehitus. Sealhulgas lahendatud perspektiivselt eterniidi osa alla jäävad toad, kuid selles osas tänaseks nägemus muutnud (projekteerijale edastatakse täpne info mis on uus nägemus). Peamine muutus - soovime katuslage ning et toad oleks teistpidi (läbi hoone). Nimetatud eelprojekt sisaldab andmeid hoone kohta kogu ulatuses, seega saab selle peale kohe hakata ehitama käesolevat põhi - ja tööprojekti.

Küsimused teretulnud!
Ootame pakkumisi.

Pildid, video ja failid

Hanke korraldaja: eraisik ID98418

Pakkumised

Pakkumisi kokku: 0

Küsimused hanke korraldajale

Küsimus: Hange.ee assistent i 25.04.2026 14:43
1) Kas olemasolevate saviseinte ja müürilati kandevõime on hinnatud (nt ekspertiis või mõõdistus) ning kas võib eeldada, et need kannavad uut valtsplekk-katust koos soojustuse ja võimaliku lumekoormusega, või tuleb arvestada müürilati/seinte tugevdamise või asendamisega?

2) Kas projekteerija koostab ka tugevusarvutused (sh pennisõlme vähendamise või ära jätmise lahenduse kohta) ning kas need kuuluvad tööprojekti mahtu hinnapakkumise aluseks?

3) Milline on soovitud soojustuse tase (U-arv või soojustuse paksus) uue katuse puhul ning kas see peab vastama eluruumide energiatõhususe miinimumnõuetele?

4) Kas versioonides 1 ja 2 tuleb arvestada olemasoleva rohelise osa (Onduline all) võimaliku sirgestamise või konstruktiivse korrigeerimisega, et tagada korrektne üleminek uue ja vana katuse vahel?

5) Kas olemasoleva uue hoone osa (trapetsplekk-katus) võimalik katusekatte vahetus valtspleki vastu tähendab ka aluskonstruktsiooni muutmist või eeldatakse, et olemasolev aluskonstruktsioon jääb muutmata?

Korraldaja vastus: 25.04.2026 16:40

1) Olemasolevate saviseinte ja müürilati kandevõimet ei ole hinnatud. Võiks eeldada, et need kannatavad uut valtsplekk-katust koos soojustusega, sest varasemalt on need kandnud aasta kümneid eterniitkatust. Lisaks lisanduvad antud projekti raames 2-3 vaheseina (tubadele) ja ilmselt ka toolvärk, mis omakorda toetuvad laetaladele. Lumekoormuse osas ei muutuks ka senine olukord. Käesoleva projekti raames on soov lahendada ainult uue katuse tugevus ja konsutruktsioon. On plaanis täiendav töö/projekt müürilati all olevate laetalade täiendavaks toestamiseks (st kandev ei oleks ainult savisein vaid ruumi keskele lisatakse ka postid ning vajadusel lisatakse poste ka saviseina äärde). Küsimus on selles mõttes aktuaalne et tänase katuse müürilatt on ümarpalgist nagu ka tänased sarikad ja seda peab projekteerija hindama, kas saab uuesti kasutada või tuleb asendada kaasaegse müürilatiga (ja see siduda uuesti vanade olemasolevate laetaladega).
2) Tugevusarvutuste vajadust hindab projekteerija töö käigus, aga selle vajadusega võiks arvestada. Võimalik, et seda saab teha ka kogemuse või üledimensioneerimise pealt. Arvestada saab et lisanduvad vaheseinad, toolvärk ja need toetuvad ka otse laetaladele, mis omakorda toestatakse alt.
3) Soojustuse tase võiks olla maksimaalne võimalik võttes arvesse võimalusi. Lahenduskäik võiks olla seda pidi et määratakse ära uue katuse sarikate võimalik laius ja selle põhjal otsustatakse kui head (paksu) soojustust nende vahele saab teha. Eesmärk on kasutada mõistlikult tervislikke lahendusi eluruumides ehk soojustusvillasid (ilmselt vahtusid ei soovi). Kui selle käigus saavutatakse eluruumide energiatõhususe miinimumnõude tase, siis on väga hästi, aga see ei ole eraldi eesmärk kui see pole võimalik.
4) Projekti versioonides 1 ja 2 kus sketšil katuse roheline osa ei läheks vahetusse, on tõesti üks võimalik lahendus täna olemasolevate vanade ümarpalk sarikate sirgestamine, võibolla ka konstruktiivse toolvärgi rajamine (et peatada läbipaine) ja sama kattematerjali tagasi panemine (kas vana või uue roovitusega). Siin peaks projekteerijaga koostöös hindama, kui kõver ehk kui palju on läbipainet sellel rohelisel osal ehk kas sirgestamine on üldse vajalik.
5) Olemasoleva uue hoone osa (trapetsplekk-katus) võimalikul katusekatte vahetusel valtspleki vastu võiks eeldada, et aluskonstruktsioon on õige ja jääb muutmata, aga seda võiks projekteerijaga koostöös üle hinnata, näiteks paikvaatlusel.

Teavita reeglite rikkumisest

Lisa küsimus

Lisa küsimus

Minu pakkumine

Reeglid

Pakkumise kirjelduse väli on mõeldud pakkumise detailsemaks lahti kirjutamiseks. Pikema teksti mugavaks sisestamiseks klikkige kasti paremal ülaservas oleval ikoonil.
Pakkumist tehes on keelatud postitada enda kontaktandmeid (nimi, telefon, aadress jne). Me jälgime ja analüüsime pakkumisi, et vältida pettuseid ja reeglite rikkumisi.
Rikkumise puhul kasutajakonto blokeeritakse.

 

Aega jäänud: 9 päeva 15h

Jälgi seda hanget

Teisi töid samas valdkonnas

Valdkonnas "Katusetööd" on 16 aktiivset tööd

Katuse vahetus koos korstnate ülesehitusega kolmekordses majas. aluspindala 402 ruutmeetrit

Asukoht: Lääne-Virumaa
Aega jäänud: 15h 51 min
Tehtud pakkumisi: 6

Katuse vahetus uue eterniidi vastu

Asukoht: Harjumaa, Viimsi
Aega jäänud: 7p 15h
Tehtud pakkumisi: 6

Vanemad teated:

Vaata kõiki

Sellel veebilehel kasutatakse küpsiseid. Kasutamist jätkates nõustute küpsiste kasutamisega.

Sulge
 
Minu pakkumine

Reeglid

Pakkumise kirjelduse väli on mõeldud pakkumise detailsemaks lahti kirjutamiseks. Pikema teksti mugavaks sisestamiseks klikkige kasti paremal ülaservas oleval ikoonil.
Pakkumist tehes on keelatud postitada enda kontaktandmeid (nimi, telefon, aadress jne). Me jälgime ja analüüsime pakkumisi, et vältida pettuseid ja reeglite rikkumisi.
Rikkumise puhul kasutajakonto blokeeritakse.