+ Lisa oma töö      

Otsid ehitajat "Siseviimistlustööd" valdkonnast?

Parima pakkumise ja teostaja leidmiseks lisa oma töö.

Korteri seinte krohvimine, ~155㎡

ID 134070

303 vaatamist

Prindi

  • 1 Pakkumiste tegemine
    kuni 08.05.2026
  • 2 Võitja valik kuni
    18.05.2026
  • 3 Töö teostamine
    ja hinnang
Hanke lõpp: R, 8. mai, 2026
Maakond: Harjumaa
Linn: Tallinn
Tööde lõpp: Kokkuleppel
Ehitusmaterjalid: Töö tellija poolt
Soovin pakkumisi: Summa kogu projektile

Töö sisu

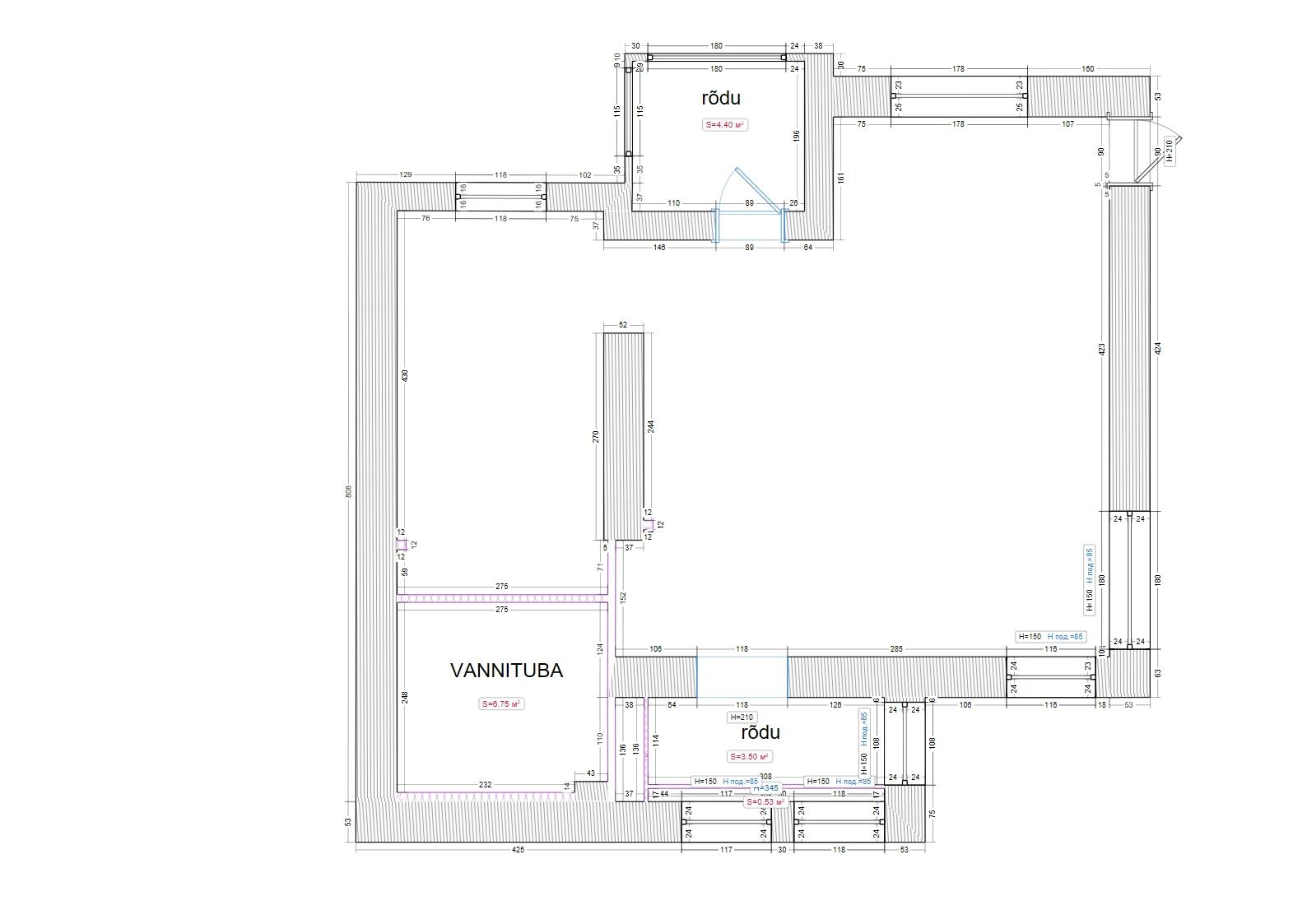
Vaja on tasandada peaaegu kõik korteri siseseinad, välja arvatud üks kipssein ja kaks rõdu. Seinad on tellisest. Lae kõrgus on umbes 370 cm. Seinte pindala on umbes 155 m².

Töö tuleb teha majakate järgi ning kasutada klaaskiudvõrku kõikidel tasandatavatel seintel. Majakad tuleb pärast kasutamist eemaldada. Kruntimine on kohustuslik.

Vannitoas peavad nurgad olema võimalikult 90 kraadi ning seinad võimalikult täpselt loodis ja tasapinnas, kuna hiljem tuleb plaatimine. Vannitoas ei tohi kasutada kipsipõhist krohvi. Teistes ruumides on oluline, et seinad oleksid sirged ja tasased, kuid absoluutne loodis olek ei ole nii kriitiline.

Objektil on olemas 3×16 A elekter ja vesi.

Pärast video tegemist on olukord objektil veidi muutunud: vannitoa sein on nüüd olemas, üleliigsed põrandakihid on eemaldatud, puuduvad aknad on paigaldatud ning üks lisasein on eemaldatud.

Pärast krohvimajakate paigaldamist tuleb anda meie elektrikule umbes 5–6 päeva aega juhtmete paigaldamiseks.

Eelistatud on töövõtjad, kes kasutavad krohvimismasinat.

Soovitav tööde algus on alates umbes 12.05.2026. Majakate varasema paigaldamise osas saame eraldi kokku leppida. Võite esitada pakkumise nii koos materjalidega kui ka ilma materjalideta, ainult tööraha kohta. Tasumine arve alusel.

Pildid, video ja failid

Hanke korraldaja: ettevõte ID77077

Pakkumised

Pakkumisi kokku: 1

Küsimused hanke korraldajale

Küsimus: Hange.ee assistent i 24.04.2026 10:31
1. Mis on tasandatavate seinte ligikaudne kogupindala (m²) ning kas on olemas mõõdistatud mahud või joonised mõõtudega?
2. Kui suured on olemasolevate seinte kõikumised (maksimaalne kõverus/kõrvalekalle) ehk millise keskmise krohvikihi paksusega peaks arvestama?
3. Kas kõik seinad on puhtad ja krohvimiseks ette valmistatud (vana krohv eemaldatud, tolmuvabad, nakked tagatud) või peab töövõtja arvestama täiendava ettevalmistustööga?
4. Mitmendal korrusel objekt asub ning kas kasutada saab lifti/materjalitõstukit (oluline materjalide ja krohvimismasina transpordiks)?
5. Milline on soovitud lõppviimistluse kvaliteeditase (nt Q2/Q3/Q4 või valmis värvimiseks ilma täiendava pahtelduseta)?

Korraldaja vastus:
Hanke korraldaja ei ole küsimusele veel vastanud

Lisa küsimus

Lisa küsimus

Minu pakkumine

Reeglid

Pakkumise kirjelduse väli on mõeldud pakkumise detailsemaks lahti kirjutamiseks. Pikema teksti mugavaks sisestamiseks klikkige kasti paremal ülaservas oleval ikoonil.
Pakkumist tehes on keelatud postitada enda kontaktandmeid (nimi, telefon, aadress jne). Me jälgime ja analüüsime pakkumisi, et vältida pettuseid ja reeglite rikkumisi.
Rikkumise puhul kasutajakonto blokeeritakse.

 

Aega jäänud: 8 päeva 15h

Jälgi seda hanget

Teisi töid samas valdkonnas

Valdkonnas "Siseviimistlustööd" on 20 aktiivset tööd

Trepikoja remont

Asukoht: Harjumaa, Tallinn
Aega jäänud: 5p 15h
Tehtud pakkumisi: 4

Sanitaarruumi sisemiste ukseliistude vahetus

Asukoht: Harjumaa, Tallinn
Aega jäänud: 1p 15h
Tehtud pakkumisi: 3

Vanemad teated:

Vaata kõiki

Sellel veebilehel kasutatakse küpsiseid. Kasutamist jätkates nõustute küpsiste kasutamisega.

Sulge
 
Minu pakkumine

Reeglid

Pakkumise kirjelduse väli on mõeldud pakkumise detailsemaks lahti kirjutamiseks. Pikema teksti mugavaks sisestamiseks klikkige kasti paremal ülaservas oleval ikoonil.
Pakkumist tehes on keelatud postitada enda kontaktandmeid (nimi, telefon, aadress jne). Me jälgime ja analüüsime pakkumisi, et vältida pettuseid ja reeglite rikkumisi.
Rikkumise puhul kasutajakonto blokeeritakse.