+ Lisa oma töö      

Otsid ehitajat "Puitehitised" valdkonnast?

Parima pakkumise ja teostaja leidmiseks lisa oma töö.

Garderoobi seinad

ID 133997

22 vaatamist

Prindi

  • 1 Pakkumiste tegemine
    kuni 26.04.2026
  • 2 Võitja valik kuni
    06.05.2026
  • 3 Töö teostamine
    ja hinnang
Hanke lõpp: P, 26. aprill, 2026
Maakond: Harjumaa
Linn: Tallinn
Tööde lõpp: R, 05. juuni, 2026
Ehitusmaterjalid: Töö tellija poolt
Soovin pakkumisi: Summa kogu projektile

Töö sisu

Otsin meistrit, kes hindaks detailide ja terviku loomisel ruumile loodavat lisaväärtust ja silmailu pakkuvat tulemust.
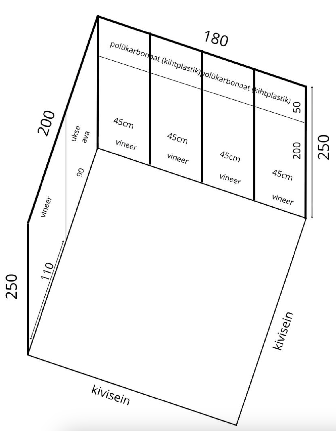
Otsin meistrimeest, kes ehitaks puikarkassiga kaks seina (kasevineerist ning kihtplastikust).
Meistrilt ootan ehitise tarvis täpsete mõõtude võtmist ning (meistril oma töökojas) materjali mõõtulõikamist, vineeri lihvimist ja kahekordset lakiga töötlemist (kiva10) + lakkimisjärgne lihv (ei soovi oma kodus saagimis ega lihvimistolmu) ning detailide kokku monteerimist objektil.
Ehitisele tuleb pagaldada ka siinidel liikuv uks (vineerist mõtu lõigatud plaat)
Hea oleks, kui oleks jagada pilte eelnevalt tehtud (puu)töödest (seinakapid, garderoobid, vineerist valminud sisustuselemendid jms).
Ehitise umbkaudsed mõõtmed on 180x200 (kõrgus 250). Materjalid töö tellija poolt.

Pildid, video ja failid

Hanke korraldaja: eraisik ID98359

Pakkumised

Pakkumisi kokku: 0

Küsimused hanke korraldajale

Küsimus: Hange.ee assistent i 23.04.2026 07:57
1. Kas saate täpsustada, milline peab olema seinte sisemine konstruktsioon (nt kas vajalik soojustus, heliisolatsioon, elektrijuhtmete läbiviigud vms)?
2. Millist tüüpi kihtplastikut on plaanis kasutada ning kuhu see konstruktsioonis täpselt paigaldatakse?
3. Millist siinidel liikuvat uksemehhanismi eelistate (ülemine siin, alumine juhik, soft-close süsteem) ja kas mehhanism on tellija poolt olemas?
4. Kas seinad kinnitatakse olemasolevate põranda, lae ja külgseinte külge ning millistest materjalidest on olemasolevad pinnad?
5. Milline on soovitud viimistlustase ja toon (kas lakk jääb naturaalne või toonitud, milline läikeaste)?

Korraldaja vastus:
Hanke korraldaja ei ole küsimusele veel vastanud

Lisa küsimus

Lisa küsimus

Minu pakkumine

Reeglid

Pakkumise kirjelduse väli on mõeldud pakkumise detailsemaks lahti kirjutamiseks. Pikema teksti mugavaks sisestamiseks klikkige kasti paremal ülaservas oleval ikoonil.
Pakkumist tehes on keelatud postitada enda kontaktandmeid (nimi, telefon, aadress jne). Me jälgime ja analüüsime pakkumisi, et vältida pettuseid ja reeglite rikkumisi.
Rikkumise puhul kasutajakonto blokeeritakse.

 

Aega jäänud: 3 päeva 10h

Jälgi seda hanget

Teisi töid samas valdkonnas

Valdkonnas "Puitehitised" on 2 aktiivset tööd

Pergola ehitus

Asukoht: Harjumaa, Tallinn
Aega jäänud: 10h 24 min
Tehtud pakkumisi: 0

no-img Pilt puudub

Välikäimla ehitus koos paigaldusega

Asukoht: Hiiumaa
Aega jäänud: 4p 10h
Tehtud pakkumisi: 0

Vanemad teated:

Vaata kõiki

Sellel veebilehel kasutatakse küpsiseid. Kasutamist jätkates nõustute küpsiste kasutamisega.

Sulge
 
Minu pakkumine

Reeglid

Pakkumise kirjelduse väli on mõeldud pakkumise detailsemaks lahti kirjutamiseks. Pikema teksti mugavaks sisestamiseks klikkige kasti paremal ülaservas oleval ikoonil.
Pakkumist tehes on keelatud postitada enda kontaktandmeid (nimi, telefon, aadress jne). Me jälgime ja analüüsime pakkumisi, et vältida pettuseid ja reeglite rikkumisi.
Rikkumise puhul kasutajakonto blokeeritakse.