+ Lisa oma töö      

Otsid ehitajat "Üldehitus" valdkonnast?

Parima pakkumise ja teostaja leidmiseks lisa oma töö.

Lvt põranda paigaldus

ID 133905

87 vaatamist

Prindi

  • 1 Pakkumiste tegemine
    kuni 25.04.2026
  • 2 Võitja valik kuni
    05.05.2026
  • 3 Töö teostamine
    ja hinnang
Hanke lõpp: L, 25. aprill, 2026
Maakond: Harjumaa
Tööde lõpp: Kokkuleppel
Ehitusmaterjalid: Töö tellija poolt
Soovin pakkumisi: Tüki- või ühikuhinda

Töö sisu

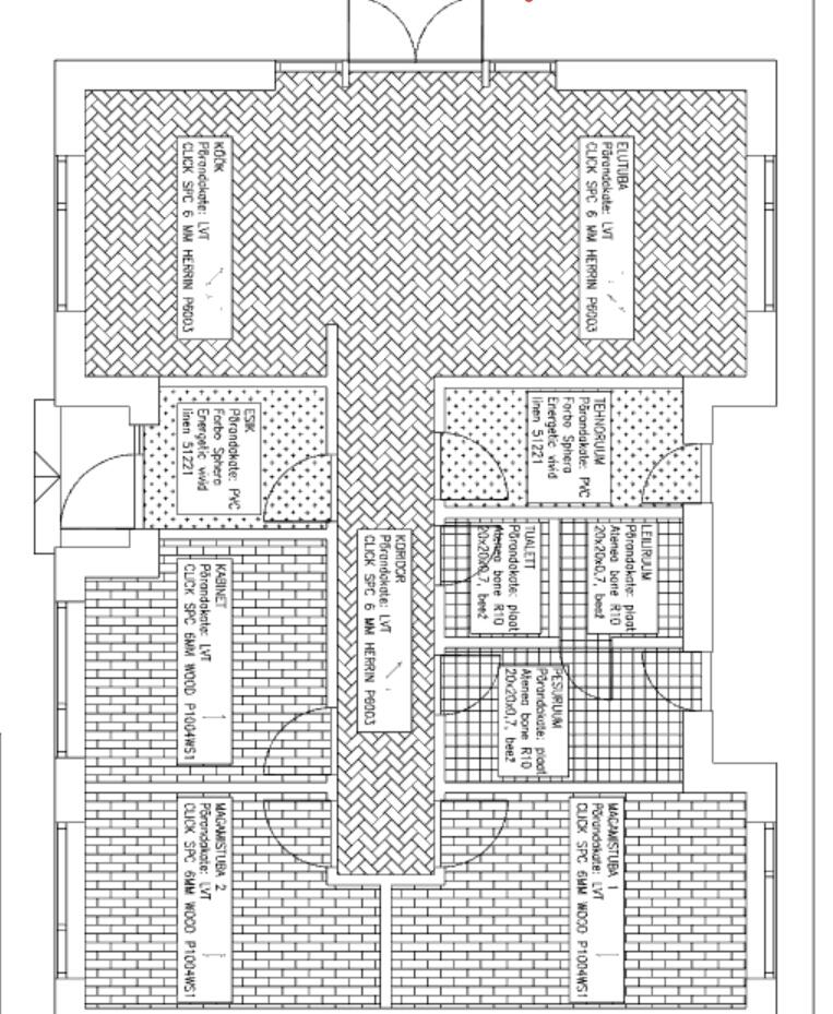
70 m2 lvt paigaldus, põrandad on ettevalmistatud.

Pildid, video ja failid

Hanke korraldaja: ettevõte ID98311

Pakkumised

Pakkumisi kokku: 1

Küsimused hanke korraldajale

Küsimus: Hange.ee assistent i 22.04.2026 08:41
1. Kas paigaldatav LVT on liimitav või click-süsteemiga ning kas konkreetne toode on juba välja valitud?
2. Milline on olemasoleva aluspõranda tüüp (betoon, puit vms) ja kas on tehtud niiskusmõõtmised?
3. Kas töö hõlmab ka põrandaliistude, üleminekuliistude ja lävepakkude paigaldust?
4. Kas ruumid on ühe suure pinnana või mitme eraldi ruumina (kas on vaja teha eraldi mustrisuunad või paisumisvuugid)?
5. Kas töö sisaldab ka alusvaiba/niiskustõkke paigaldust või tasandusseguga paranduskohti enne LVT paigaldust?

Korraldaja vastus: 22.04.2026 18:50

Click süsteemiga. Betoonpõrand, mõõtmine tehtud. Võib teha ka liistud, suur tuba/köök, koridor ja 3 magamistuba, alusvaipa ei pea paigaldama

Teavita reeglite rikkumisest

Küsimus: private ID34611   22.04.2026 19:51
Tere
Mitu rm on kalasaba LVT-d ja mitu rm on tavalist LVT-d. Vajadusel saan ka PVC paigaldusega abiks olla.

Teavita reeglite rikkumisest

Korraldaja vastus: 23.04.2026 09:48

Tere!
Kalasaba u 45 m2!

Teavita reeglite rikkumisest

Lisa küsimus

Lisa küsimus

Minu pakkumine

Reeglid

Pakkumise kirjelduse väli on mõeldud pakkumise detailsemaks lahti kirjutamiseks. Pikema teksti mugavaks sisestamiseks klikkige kasti paremal ülaservas oleval ikoonil.
Pakkumist tehes on keelatud postitada enda kontaktandmeid (nimi, telefon, aadress jne). Me jälgime ja analüüsime pakkumisi, et vältida pettuseid ja reeglite rikkumisi.
Rikkumise puhul kasutajakonto blokeeritakse.

 

Aega jäänud: 2 päeva 9h

Jälgi seda hanget

Teisi töid samas valdkonnas

Valdkonnas "Üldehitus" on 45 aktiivset tööd

no-img Pilt puudub

Keldri bokside ehitus

Asukoht: Tartumaa, Tartu
Aega jäänud: 9h 17 min
Tehtud pakkumisi: 6

no-img Pilt puudub

Terassi ehitamine 15m2

Asukoht: Harjumaa
Aega jäänud: 1p 9h
Tehtud pakkumisi: 5

Vanemad teated:

Vaata kõiki

Sellel veebilehel kasutatakse küpsiseid. Kasutamist jätkates nõustute küpsiste kasutamisega.

Sulge
 
Minu pakkumine

Reeglid

Pakkumise kirjelduse väli on mõeldud pakkumise detailsemaks lahti kirjutamiseks. Pikema teksti mugavaks sisestamiseks klikkige kasti paremal ülaservas oleval ikoonil.
Pakkumist tehes on keelatud postitada enda kontaktandmeid (nimi, telefon, aadress jne). Me jälgime ja analüüsime pakkumisi, et vältida pettuseid ja reeglite rikkumisi.
Rikkumise puhul kasutajakonto blokeeritakse.