+ Lisa oma töö      

Otsid ehitajat "Fassaaditööd" valdkonnast?

Parima pakkumise ja teostaja leidmiseks lisa oma töö.

Korterelamu täiskeldri põranda ja vaheseinte demontaaž, utiliseerimine ja keldri taastamine (varjendi funktsiooniga)

ID 133821

125 vaatamist

Prindi

  • 1 Pakkumiste tegemine
    kuni 28.04.2026
  • 2 Võitja valik kuni
    08.05.2026
  • 3 Töö teostamine
    ja hinnang
Hanke lõpp: T, 28. aprill, 2026
Maakond: Tartumaa
Tööde lõpp: Kokkuleppel
Ehitusmaterjalid: Töö tellija poolt
Soovin pakkumisi: Summa kogu projektile

Töö sisu

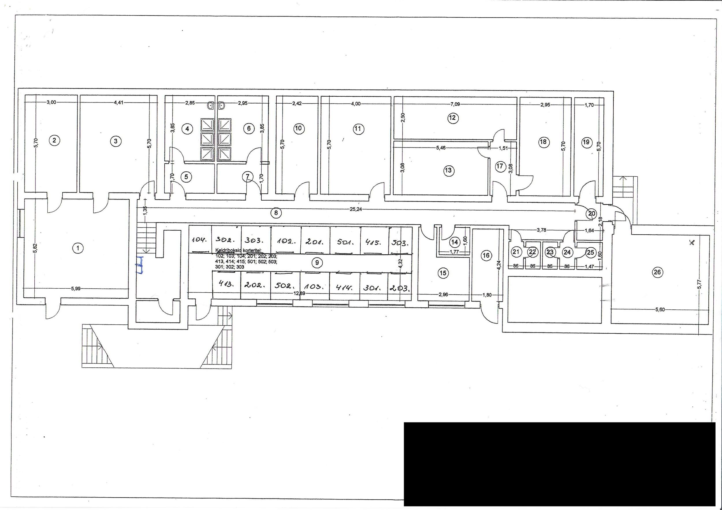
Korterelamu on ehitatud vaiade peale. Keldri tegemisel ilmselt ei täidetud aluspõhja korralikult ära (kaamera uuringuga on näha, et esineb suuri tühimikke) või on maja alla voolav sadevesi pinnase ära uhunud. Seetõttu on põrand ära vajunud ja koos sellega ka mittekandvad vaheseinad. Keldris on olemas mitu väljapääsu, vesi (duširuumid) ja kanalisatsioon, mistõttu sobib hästi võimalikuks varjendiks. Taastamisel saab seda arvestada ... projekti hetkel veel ei ole.

Pildid, video ja failid

Hanke korraldaja: eraisik ID43704

Pakkumised

Pakkumisi kokku: 0

Küsimused hanke korraldajale

Küsimus: Hange.ee assistent i 21.04.2026 15:25
1. Mis on keldri ligikaudne pindala ja kõrgus ning kas olemas on mõõdistusjoonised või vähemalt põhiplaan?

2. Kas on tehtud geotehniline uuring või täiendav ekspertiis aluspinnase ja vaiade seisukorra kohta ning kas need dokumendid on kättesaadavad?

3. Kas taastamisel on ette nähtud uus kandekonstruktsiooniga põrand (nt raudbetoonplaat) ning kas soovitakse ka aluspinnase täiendavat täitmist ja tihendamist?

4. Millises ulatuses tuleb taastada tehnosüsteemid (vesi, kanalisatsioon, elekter, ventilatsioon) ja kas need tuleb kohandada varjendi funktsioonile vastavaks?

5. Kas varjendi funktsioonile on juba määratletud konkreetsed nõuded (nt tugevdatud vaheseinad, plahvatuskoormus, autonoomne ventilatsioon), millega tuleb pakkumises arvestada?

Korraldaja vastus: 21.04.2026 15:48

1. Laadisin plaani üles
2. Ei ole tehtud
3. Aluspinnase täitmine ja tihendamine on vajalik, samuti uus raudbetoonpõrand.
4. Tehnosüsteemide osas - kahest duširuumist jätame sama funktsiooni täitma ühe, teise saaks nt köögiks ümber kujundada, Wc tuleb lihtsalt korda teha ja lisada kõrvale ka teine, elektrijuhtmestik tuleb vahetada. Ventilatsiooni peab mõõtma, varjenditele on ilmselt olemas omad nõuded.
5. Määratud ei ole, lähtume Päästeameti soovitustest.

Teavita reeglite rikkumisest

Küsimus: private ID87116   22.04.2026 13:49
Soovite keldri põranda ja seinte lammutamist ja utiliseerimist? Hiljem pinnase sissevedu ja tihendamist. Eps soojustus ja armatuuri.

Teavita reeglite rikkumisest

Korraldaja vastus:
Hanke korraldaja ei ole küsimusele veel vastanud

Lisa küsimus

Lisa küsimus

Minu pakkumine

Reeglid

Pakkumise kirjelduse väli on mõeldud pakkumise detailsemaks lahti kirjutamiseks. Pikema teksti mugavaks sisestamiseks klikkige kasti paremal ülaservas oleval ikoonil.
Pakkumist tehes on keelatud postitada enda kontaktandmeid (nimi, telefon, aadress jne). Me jälgime ja analüüsime pakkumisi, et vältida pettuseid ja reeglite rikkumisi.
Rikkumise puhul kasutajakonto blokeeritakse.

 

Aega jäänud: 5 päeva 4h

Jälgi seda hanget

Teisi töid samas valdkonnas

Valdkonnas "Fassaaditööd" on 19 aktiivset tööd

Puitmaja värvimine

Asukoht: Harjumaa
Aega jäänud: 12p 4h
Tehtud pakkumisi: 17

Hoonete värvimine

Asukoht: Läänemaa, Kirbla
Aega jäänud: 5p 4h
Tehtud pakkumisi: 4

Vanemad teated:

Vaata kõiki

Sellel veebilehel kasutatakse küpsiseid. Kasutamist jätkates nõustute küpsiste kasutamisega.

Sulge
 
Minu pakkumine

Reeglid

Pakkumise kirjelduse väli on mõeldud pakkumise detailsemaks lahti kirjutamiseks. Pikema teksti mugavaks sisestamiseks klikkige kasti paremal ülaservas oleval ikoonil.
Pakkumist tehes on keelatud postitada enda kontaktandmeid (nimi, telefon, aadress jne). Me jälgime ja analüüsime pakkumisi, et vältida pettuseid ja reeglite rikkumisi.
Rikkumise puhul kasutajakonto blokeeritakse.