+ Lisa oma töö      

Otsid ehitajat "Üldehitus" valdkonnast?

Parima pakkumise ja teostaja leidmiseks lisa oma töö.

Abihoone ehitustööd

ID 133700

188 vaatamist

Prindi

  • 1 Pakkumiste tegemine
    kuni 26.04.2026
  • 2 Võitja valik kuni
    06.05.2026
  • 3 Töö teostamine
    ja hinnang
Hanke lõpp: P, 26. aprill, 2026
Maakond: Saaremaa
Muu asula: Iide
Tööde lõpp: Kokkuleppel
Ehitusmaterjalid: Töö tellija poolt
Soovin pakkumisi: Summa kogu projektile

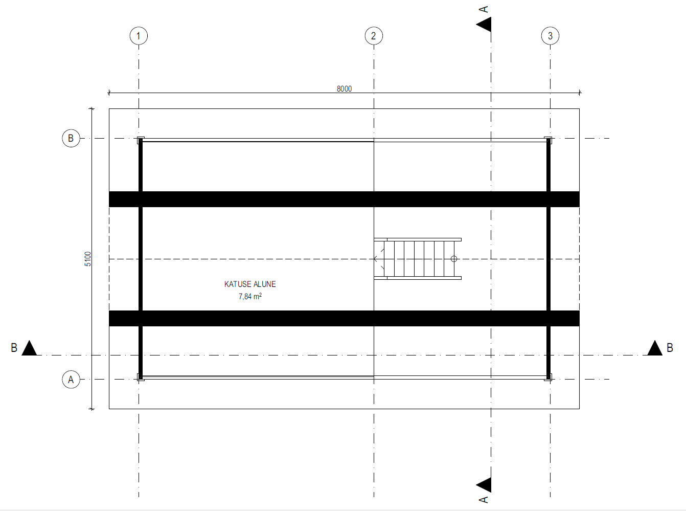
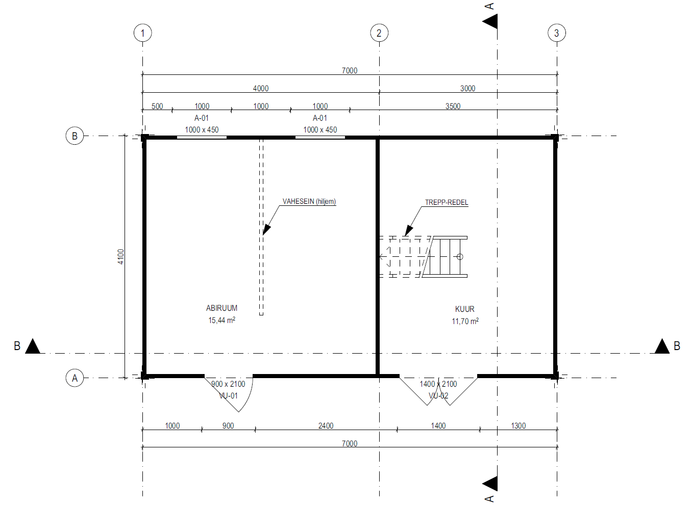
Töö sisu

Tellija soovib saada hinnapakkumist ainult tööde teostamisele. Kõik ehitusmaterjalid tellitakse ja tasutakse Tellija poolt koostöös ehitajaga.

Tööde maht, millele tuleb esitada tööraha pakkumine
1. Vundamenditööd
- Vundamendi aluse tihendamine vasta vastavalt nõuetele
- Aluskaeve ja täide on Tellija poolt juba tehtud

2. Plaatvundament
- Plaatvundamendi ehitus koos vajalike kihtidega (betoon, armatuur, kile jms – materjalid Tellija poolt)

3. Puitkarkassi ehitus
- Kandva puitkarkassi püstitamine
- Katusefermide paigaldus

4. Tuuletõkke paigaldus
- Tuuletõkkeplaatide paigaldus ainult telgede 1–2 / A–B ulatuses
- Tuuletõkke teipimine ja tihendamine vastavalt tooteja juhendile (materjal Tellija poolt)

5. Fassaaditööd
- Puitvoodrilaua paigaldus (vertikaalselt)
- Tuulutusliistude paigaldus

6. Katusetööd
- Aluskatte paigaldus
- Roovituse ehitus
- Plekk-katuse paigaldus koos plekidetailide paigaldusega
- räästa- ja harjaplekkidega
- vihmaveesüsteemiga (renn + torud)

7. Avatäited
- Akende paigaldus (2 tk)
- Uste paigaldus (2 tk)

Tööd, mida pakkumises arvesse võtma ei pea
- Materjalide utiliseerimine või äravedu
- Soojustuse paigaldus seintesse või katusele (v.a vundamendi soojustus, mis on tööde hulgas)
- Tehnosüsteemid (elekter, nõrkvool, ventilatsioon, vesi-kanal)
- Vaheseina ehitus (punktiirjoonega)

Täpsustused ja ootused ehitajale
- Pakkumine peab sisaldama ainult tööde maksumust iga tööetapi lõikes või koondhinnana.
- Tööde teostamisel tuleb arvestada tavapäraste ehitusnormide ja hea ehitustava nõuetega.
- Tööde järjekord ja täpsem ajakava lepitakse kokku pärast ehitaja valikut.
- Ehitaja peab arvestama, et materjalid tarnib Tellija, kuid ehitaja annab sisendi koguste ja spetsifikatsioonide osas.

Tuua palun lisaks töö maksumusele välja ka kogu kestus ning millal oleks võimalik töödega alustada.

Pildid, video ja failid

Hanke korraldaja: eraisik ID58756

Pakkumised

Pakkumisi kokku: 0

Küsimused hanke korraldajale

Küsimus: Hange.ee assistent i 19.04.2026 22:00
1. Palun täpsustage hoone täpsed mõõdud (pindala, kõrgus, seinte kõrgus) ning plaatvundamendi paksus ja konstruktiivne lahendus (nt servatald, ribid jms), kui see ei ole joonistelt üheselt loetav.

2. Kas kandva puitkarkassi ja katusefermide osas on olemas konstruktiivne projekt koos sõlmedega ning kas fermid tarnitakse valmiskujul või tuleb need kohapeal ehitada?

3. Milline on katuse täpne lahendus (kalle, katusekatte profiil, aluskate tüüp) ning kas katusel on läbiviike või erilahendusi, millega tuleb arvestada?

4. Kas aknad ja uksed tarnitakse koos paigaldustarvikutega (kinnitusvahendid, tihendusmaterjalid, plekkliistud) ning kas nende paigaldussõlmed on ette antud?

5. Kas fassaadi osas on täpsustatud voodrilaua tüüp, mõõt ja viimistlusaste (nt krunditud/värvitud), ning kas tuulutuslahendus (õhuvahe suurus, putukavõrk jms) on projektis määratud?

Korraldaja vastus: 21.04.2026 12:32

Täname esitatud täpsustavate küsimuste eest. Anname alljärgnevalt vastused Teie poolt tõstatatud punktidele.

1. Hoone täpsed mõõdud (sh pindala, üldkõrgus ja seinte kõrgused) on kajastatud projektdokumentatsioonis ning loetavad vastavatelt joonistelt. Plaatvundamendi puhul palume hinnapakkumuse koostamisel arvestada orientiirina ühtlase paksusega ca 150 mm plaatvundament koos armeerimisvõrgu ja kilega (ilma soojustuseta). Eraldi konstruktiivseid elemente (nt servatald või ribid) ei ole ette nähtud.

2. Antud objekti puhul, olles tegemist lihtsama abihoonega, ei ole koostatud ega ole ka ette nähtud eraldi konstruktiivset projekti koos sõlmlahendustega. Katusefermid on planeeritud valmistada kohapeal ning neid ei ole kavandatud tellida tehases toodetud elementidena ega paigaldada tõstetavate elementidena.

3. Katuse kalle ja geomeetria on näidatud projekti joonistel. Katusekatte profiil tuleb Toode AS valikust (näiteks profiil "Kiviprofiil", tooniga pruun). Aluskatte lõplik materjalivalik otsustatakse koostöös valitud ehitajaga ning ei ole käesoleval hetkel fikseeritud. Katusele ei ole ette nähtud läbiviike ega erilahendusi, millega tuleks eraldi arvestada.

4. Projektdokumentatsioon ei sisalda akende ja uste paigaldussõlmi ning neid ei ole ka edaspidi planeeritud koostada. Paigalduslahendused lahendatakse kohapeal vastavalt valitud toodetele. Vajadusel on võimalik paigaldussõlmed ja -detailid täpsustada ning kokku leppida otse akna- ja uksetootjatega eraldi tellimusena. Paigaldustarvikud (kinnitusvahendid, tihendusmaterjalid, plekkliistud jms) hangib Tellija eraldi.

5. Fassaadil kasutatakse tavapärast nn tuulekastilauda, mis paigaldatakse vertikaalselt malekorras ülekattega. Viimistluseks kasutatakse Teknos värvitooteid. Fassaadi tuulutusvahe täpset mõõtu ei ole projektis määratud ning sellel ei ole hinnapakkumuse koostamisel määravat mõju. Putukavõrkude paigaldamisega ei ole vaja arvestada.

Teavita reeglite rikkumisest

Lisa küsimus

Lisa küsimus

Minu pakkumine

Reeglid

Pakkumise kirjelduse väli on mõeldud pakkumise detailsemaks lahti kirjutamiseks. Pikema teksti mugavaks sisestamiseks klikkige kasti paremal ülaservas oleval ikoonil.
Pakkumist tehes on keelatud postitada enda kontaktandmeid (nimi, telefon, aadress jne). Me jälgime ja analüüsime pakkumisi, et vältida pettuseid ja reeglite rikkumisi.
Rikkumise puhul kasutajakonto blokeeritakse.

 

Aega jäänud: 3 päeva 9h

Jälgi seda hanget

Teisi töid samas valdkonnas

Valdkonnas "Üldehitus" on 45 aktiivset tööd

no-img Pilt puudub

Keldri bokside ehitus

Asukoht: Tartumaa, Tartu
Aega jäänud: 9h 23 min
Tehtud pakkumisi: 6

no-img Pilt puudub

Terassi ehitamine 15m2

Asukoht: Harjumaa
Aega jäänud: 1p 9h
Tehtud pakkumisi: 5

Vanemad teated:

Vaata kõiki

Sellel veebilehel kasutatakse küpsiseid. Kasutamist jätkates nõustute küpsiste kasutamisega.

Sulge
 
Minu pakkumine

Reeglid

Pakkumise kirjelduse väli on mõeldud pakkumise detailsemaks lahti kirjutamiseks. Pikema teksti mugavaks sisestamiseks klikkige kasti paremal ülaservas oleval ikoonil.
Pakkumist tehes on keelatud postitada enda kontaktandmeid (nimi, telefon, aadress jne). Me jälgime ja analüüsime pakkumisi, et vältida pettuseid ja reeglite rikkumisi.
Rikkumise puhul kasutajakonto blokeeritakse.