+ Lisa oma töö      

Otsid ehitajat "Elektritööd" valdkonnast?

Parima pakkumise ja teostaja leidmiseks lisa oma töö.

Hange on lõppenud!

Võitjaks osutus kasutaja ID 50340

Soovin saada olemasolevale hoonele(100m2) kasutusloa jaoks elektri dokumentatsiooni(projekt, mõõdistus jm.)

ID 133278

1065 vaatamist

Prindi

  • check Pakkumiste tegemine
    kuni 28.04.2026
  • check Võitja valik kuni
    08.05.2026
  • 3 Töö teostamine
    ja hinnang
Hanke lõpp: T, 28. aprill, 2026
Maakond: Harjumaa
Tööde lõpp: Kokkuleppel
Ehitusmaterjalid: Töö tellija poolt
Soovin pakkumisi: Summa kogu projektile

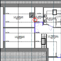
Pildid, video ja failid

Hanke korraldaja: eraisik ID98067

Pakkumised

Pakkumisi kokku: 7

Ettevõte Summa Käibemaks Lisatud Vestlus
Kasutaja ikoon ID70621
Pakkuja profiil Väike nool paremale
1 030€ KM lisandub KM lisandub 14.04.2026 Vestlus (2)

Pakkumise kirjeldus:

Projekt ja joonised 680-
Elektripaigaldise audit ja mõõtmised. 350-

Kasutaja ikoon ID52405
Pakkuja profiil Väike nool paremale
900€ KM lisandub KM lisandub 15.04.2026 Vestlus (2)

Pakkumise kirjeldus:

Tere. Projekt, mõõdistamine, deklar ja audit.

Kasutaja ikoon ID94694
Pakkuja profiil Väike nool paremale
380€ Sisaldab KM Sisaldab KM 15.04.2026 Vestlus (0)

Pakkumise kirjeldus:

Tere

Pakkumine sisaldab:
- Pistikupesade plaan.
- Valgistuste plaan.
- Maanduse skeem.
- Kilbi skeem.
- Hange.ee tasusid.
- Soovitused.

Ettevõtte omab Elektritööde MTR registreeringut ja töid teostab vastava pädevusega inimene .

Loodan, et pakkumine on sobiv ja viib koostööle.

Kasutaja ikoon ID44271
Pakkuja profiil Väike nool paremale
1 100€ Sisaldab KM Sisaldab KM 16.04.2026 Vestlus (0)
Kasutaja ikoon ID50340
Pakkuja profiil Väike nool paremale
800€ KM lisandub KM lisandub 17.04.2026 Vestlus (2)

Pakkumise kirjeldus:

Tere,
Pakkumine siis kogu dokumentatsioonile, joonised,mõõdistus, audit, deklaratsioon. Tasumisel erinevad võimalused.
Olemas MTR registreering.

Kasutaja ikoon ID91360
Pakkuja profiil Väike nool paremale
3 000€ Ei ole KMKR Ei ole KMKR 19.04.2026 Vestlus (0)
Kasutaja ikoon ID19451
Pakkuja profiil Väike nool paremale
900€ Ei ole KMKR Ei ole KMKR 27.04.2026 Vestlus (0)

Pakkumise kirjeldus:

Teostusjoonised, kontrollmõõtmised, audit. Kui vaja mingeid muudatusi teha elektrisüsteemis siis see lisandub hinnale. ( Ilmselt kilbis tuleb)

Küsimused hanke korraldajale

Küsimus: Hange.ee assistent i 14.04.2026 09:41
1. Kas hoonel on olemas varasem elektriprojekt või teostusjoonised, millele saab dokumentatsiooni koostamisel tugineda?
2. Kas elektripaigaldis on täielikult valmis ja kasutuses või on tehtud hiljutisi ümberehitusi/muudatusi?
3. Millise peakaitsme ja liitumisvõimsusega on tegemist ning kas võrguettevõtjaga on leping olemas?
4. Kas kasutusloa taotlemiseks on juba määratud täpsed dokumendid (nt audit, mõõteprotokollid, teatised), mida kohalik omavalitsus nõuab?
5. Kas hoones on lisaks tavapaigaldusele ka erilahendusi (nt päikesepaneelid, generaator, automaatika, nõrkvoolusüsteemid), mis tuleb dokumenteerida?

Korraldaja vastus: 14.04.2026 09:50

1. Varasemat el projekti ei ole. Olemas arhidektuuri -ehituse projekt.
2.Elektripaigaldis on täielikult valmis ja kasutuses.
3.16A ja leping olemas.
4. Ei ole määratud. Pole veel kohaliku omavalitsusse pöördutud.
5.Erilahendused puuduvad.

Teavita reeglite rikkumisest

Küsimus: private ID19451   14.04.2026 21:00
Tere!
Milline on ehitusaasta? Millisel ajal tehtud kilp? Foto kilbist ei teeks paha:)

Teavita reeglite rikkumisest

Korraldaja vastus: 15.04.2026 08:08

Tere!
Nii maja kui kilbi ehitusaasta 2011.
Foto kilbist lisatud

Teavita reeglite rikkumisest

Lisa küsimus

Lisa küsimus

Minu pakkumine

Reeglid

Pakkumise kirjelduse väli on mõeldud pakkumise detailsemaks lahti kirjutamiseks. Pikema teksti mugavaks sisestamiseks klikkige kasti paremal ülaservas oleval ikoonil.
Pakkumist tehes on keelatud postitada enda kontaktandmeid (nimi, telefon, aadress jne). Me jälgime ja analüüsime pakkumisi, et vältida pettuseid ja reeglite rikkumisi.
Rikkumise puhul kasutajakonto blokeeritakse.

 

Teisi töid samas valdkonnas

Valdkonnas "Elektritööd" on 4 aktiivset tööd

no-img Pilt puudub

Olemasoleva elektri kontroll

Asukoht: Raplamaa, Orguse
Aega jäänud: 1p 13h
Tehtud pakkumisi: 5

no-img Pilt puudub

Elektritööd

Asukoht: Harjumaa, Luige
Aega jäänud: 4p 13h
Tehtud pakkumisi: 4

Vanemad teated:

Vaata kõiki

Sellel veebilehel kasutatakse küpsiseid. Kasutamist jätkates nõustute küpsiste kasutamisega.

Sulge
 
Minu pakkumine

Reeglid

Pakkumise kirjelduse väli on mõeldud pakkumise detailsemaks lahti kirjutamiseks. Pikema teksti mugavaks sisestamiseks klikkige kasti paremal ülaservas oleval ikoonil.
Pakkumist tehes on keelatud postitada enda kontaktandmeid (nimi, telefon, aadress jne). Me jälgime ja analüüsime pakkumisi, et vältida pettuseid ja reeglite rikkumisi.
Rikkumise puhul kasutajakonto blokeeritakse.