+ Lisa oma töö      

Otsid ehitajat "Üldehitus" valdkonnast?

Parima pakkumise ja teostaja leidmiseks lisa oma töö.

Puitkarkassi ehitus

ID 133277

210 vaatamist

Prindi

  • 1 Pakkumiste tegemine
    kuni 28.04.2026
  • 2 Võitja valik kuni
    08.05.2026
  • 3 Töö teostamine
    ja hinnang
Hanke lõpp: T, 28. aprill, 2026
Maakond: Pärnumaa
Muu asula: Tõstamaa
Tööde lõpp: Kokkuleppel
Ehitusmaterjalid: Töö tellija poolt
Soovin pakkumisi: Tüki- või ühikuhinda

Töö sisu

Otsime üldehitajat järgmistele töödele:
* Puitkarkassi ehitus, koos sarikatega
* Tuuletõkkekangas koos rooviga
* Terrassi ehitus (Fibo/kiviplokkidel vundament)
* Otsaseintele puitlaudise paigaldus
* Sokli krohvimine

Pakkumisele lisada oma neto tunnihind
Objekt asub Tõstamaal

Pildid, video ja failid

Hanke korraldaja: eraisik ID78307

Pakkumised

Pakkumisi kokku: 2

Küsimused hanke korraldajale

Küsimus: Hange.ee assistent i 14.04.2026 09:34
1. Kas olemas on tööprojekt koos mõõtude, lõigete ja sõlmedega (eriti puitkarkassi, sarikate ja terrassi osas)?
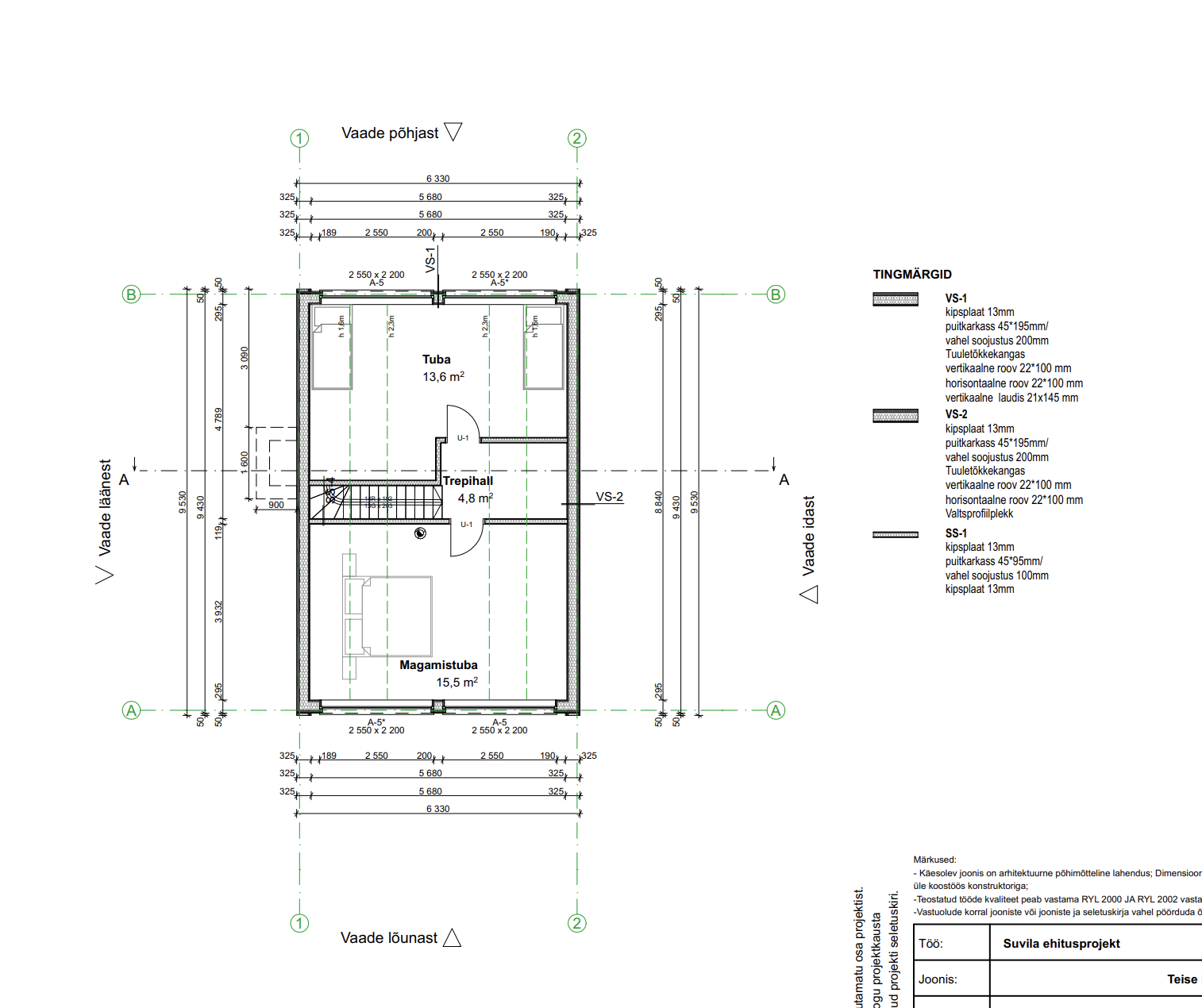
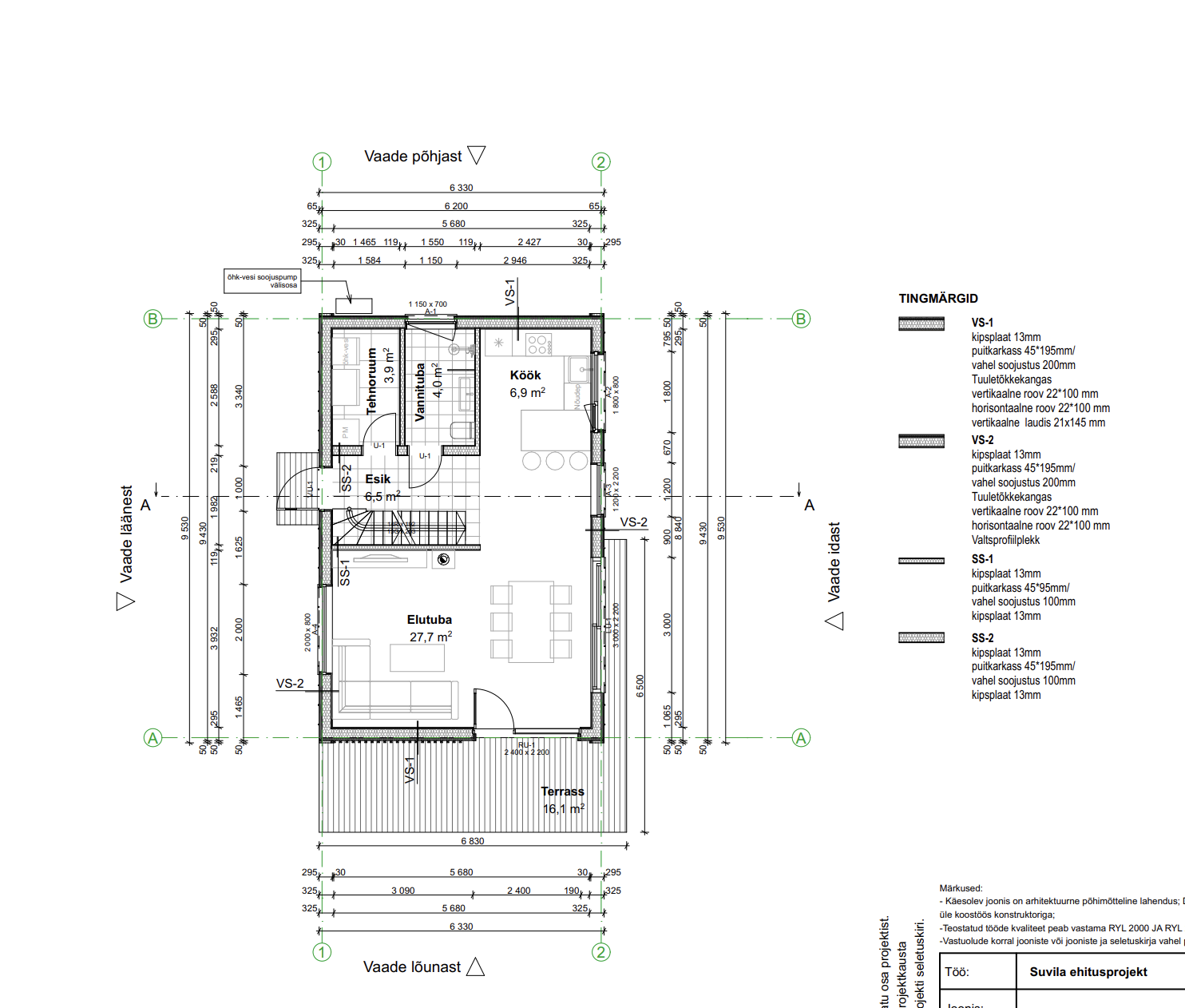
2. Kui suur on hoone ja terrassi pindala (m²) ning milline on konstruktsiooni kõrgus/katuse kalle?
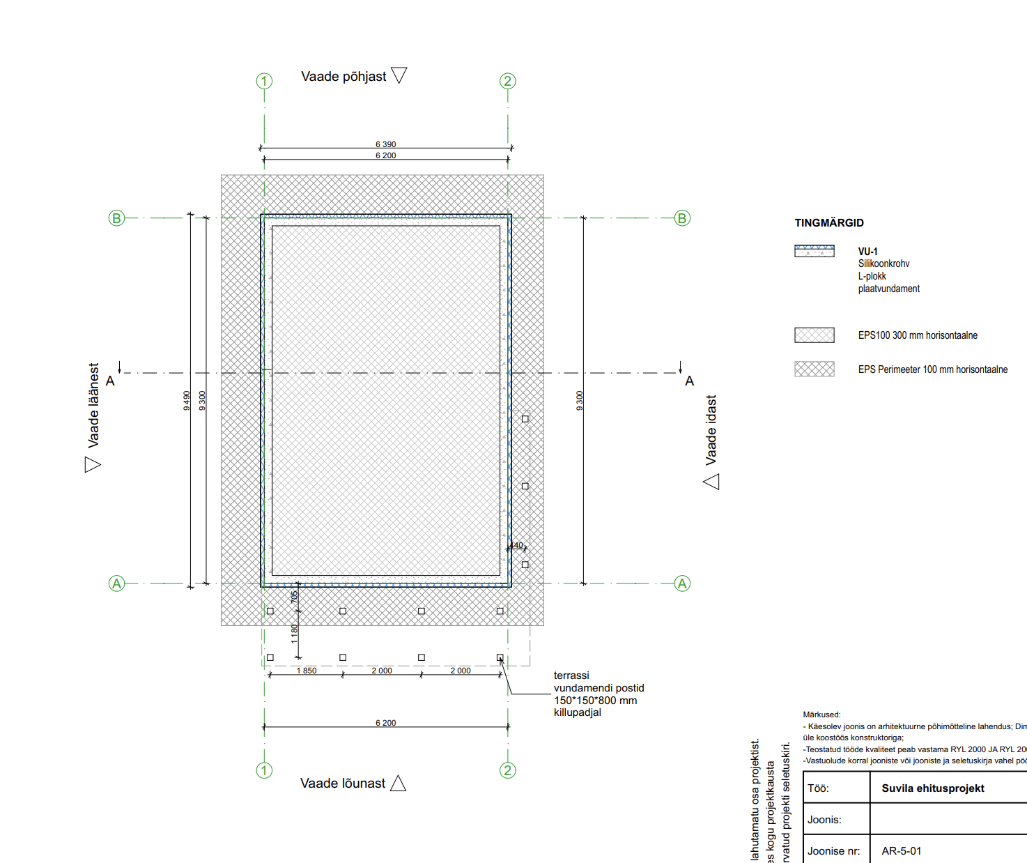
3. Kas vundament (sh terrassi Fibo/kiviplokkidest alus) on juba valmis või tuleb see samuti ehitajal rajada?
4. Millise viimistlusastmeni tuleb otsaseinte puitlaudis ja sokli krohv teha (nt krunditud/värvitud, mitu krohvikihti)?
5. Kas tellingud ja tõstetehnika on tellija poolt või peab ehitaja need ise organiseerima?

Korraldaja vastus: 14.04.2026 13:05

1. Eraldi tööprojekti pole, on olemas kunagised fermide pakkumised millelt võib inspiratsiooni võtta.
2. Terrass on 16m2, vt. lisatud jooniseid
3. Maja plaatvundament on valmis, terrassi alla paneme fibo või muu sarnase kiviplokid, vastavalt ehitaja soovitusele.
4. Otsaseinad vastavalt joonises välja toodule: Tikkurila Valtti 5069 Siimes
5. Võite arvestada ise materjalide jm. veoga. Materjaliveo puhul arveldame tunnihinna + sõidukulude alusel. Materjalide ja tellingute eest tasub tellija, antud pakkumises ootame vaid töömehe neto tunnihinda.

Teavita reeglite rikkumisest

Lisa küsimus

Lisa küsimus

Minu pakkumine

Reeglid

Pakkumise kirjelduse väli on mõeldud pakkumise detailsemaks lahti kirjutamiseks. Pikema teksti mugavaks sisestamiseks klikkige kasti paremal ülaservas oleval ikoonil.
Pakkumist tehes on keelatud postitada enda kontaktandmeid (nimi, telefon, aadress jne). Me jälgime ja analüüsime pakkumisi, et vältida pettuseid ja reeglite rikkumisi.
Rikkumise puhul kasutajakonto blokeeritakse.

 

Aega jäänud: 10 päeva 10h

Jälgi seda hanget

Teisi töid samas valdkonnas

Valdkonnas "Üldehitus" on 41 aktiivset tööd

no-img Pilt puudub

Majal terrassi vahetus

Asukoht: Harjumaa, Tallinn
Aega jäänud: 10h 50 min
Tehtud pakkumisi: 5

Valamu paigaldus

Asukoht: Harjumaa, Tallinn
Aega jäänud: 10h 50 min
Tehtud pakkumisi: 4

Vanemad teated:

Vaata kõiki

Sellel veebilehel kasutatakse küpsiseid. Kasutamist jätkates nõustute küpsiste kasutamisega.

Sulge
 
Minu pakkumine

Reeglid

Pakkumise kirjelduse väli on mõeldud pakkumise detailsemaks lahti kirjutamiseks. Pikema teksti mugavaks sisestamiseks klikkige kasti paremal ülaservas oleval ikoonil.
Pakkumist tehes on keelatud postitada enda kontaktandmeid (nimi, telefon, aadress jne). Me jälgime ja analüüsime pakkumisi, et vältida pettuseid ja reeglite rikkumisi.
Rikkumise puhul kasutajakonto blokeeritakse.