+ Lisa oma töö      

Otsid ehitajat "Vundamenditööd" valdkonnast?

Parima pakkumise ja teostaja leidmiseks lisa oma töö.

Eramu juurdeehituse vundament ning pinnase tugisein

ID 132599

220 vaatamist

Prindi

  • 1 Pakkumiste tegemine
    kuni 19.04.2026
  • 2 Võitja valik kuni
    29.04.2026
  • 3 Töö teostamine
    ja hinnang
Hanke lõpp: P, 19. aprill, 2026
Maakond: Harjumaa
Linn: Saue
Tööde lõpp: Kokkuleppel
Ehitusmaterjalid: Töö tegija poolt
Soovin pakkumisi: Summa kogu projektile

Töö sisu

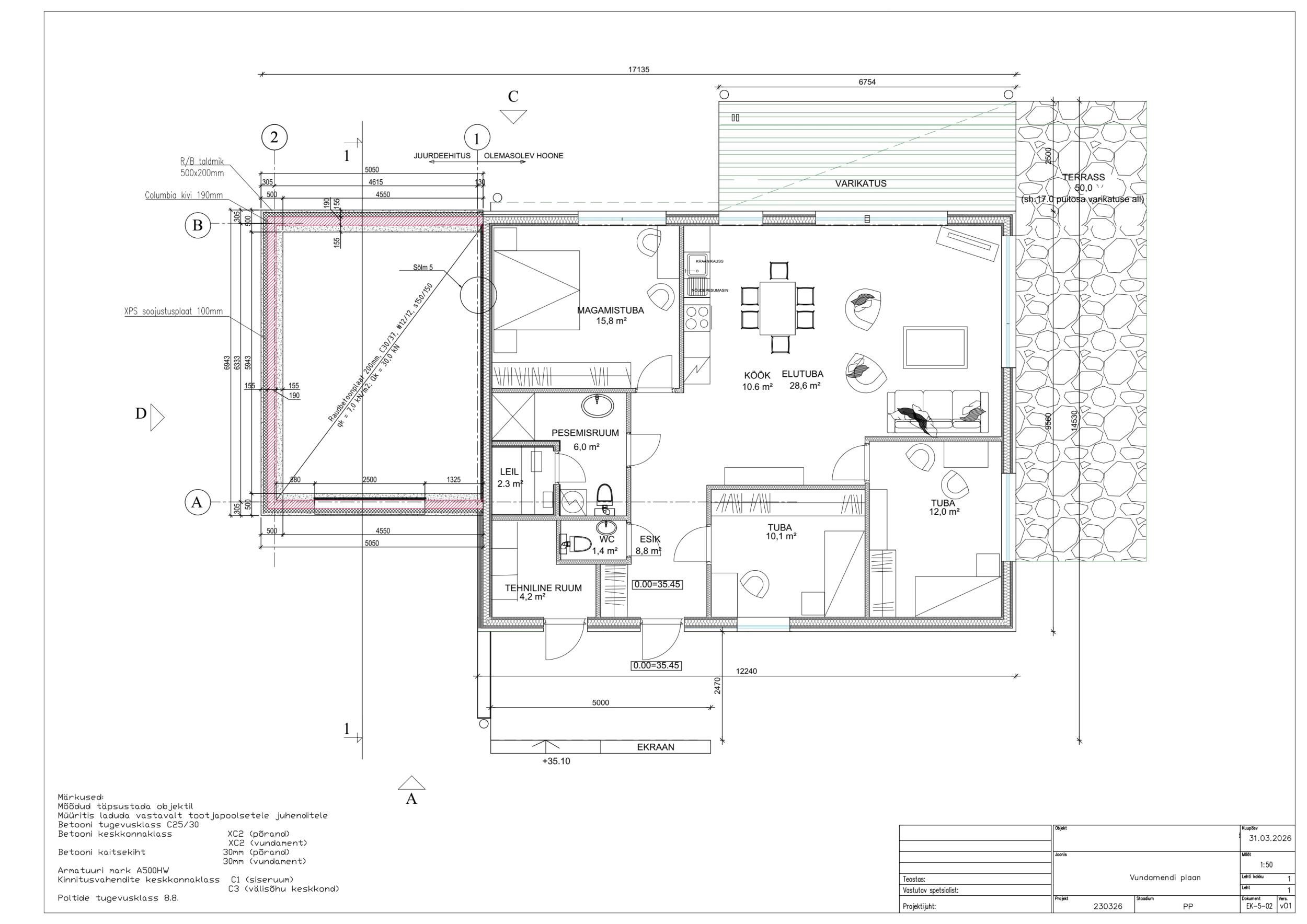
Eramu juurdeehituse vundamendi ning tugiseinte rajamine.

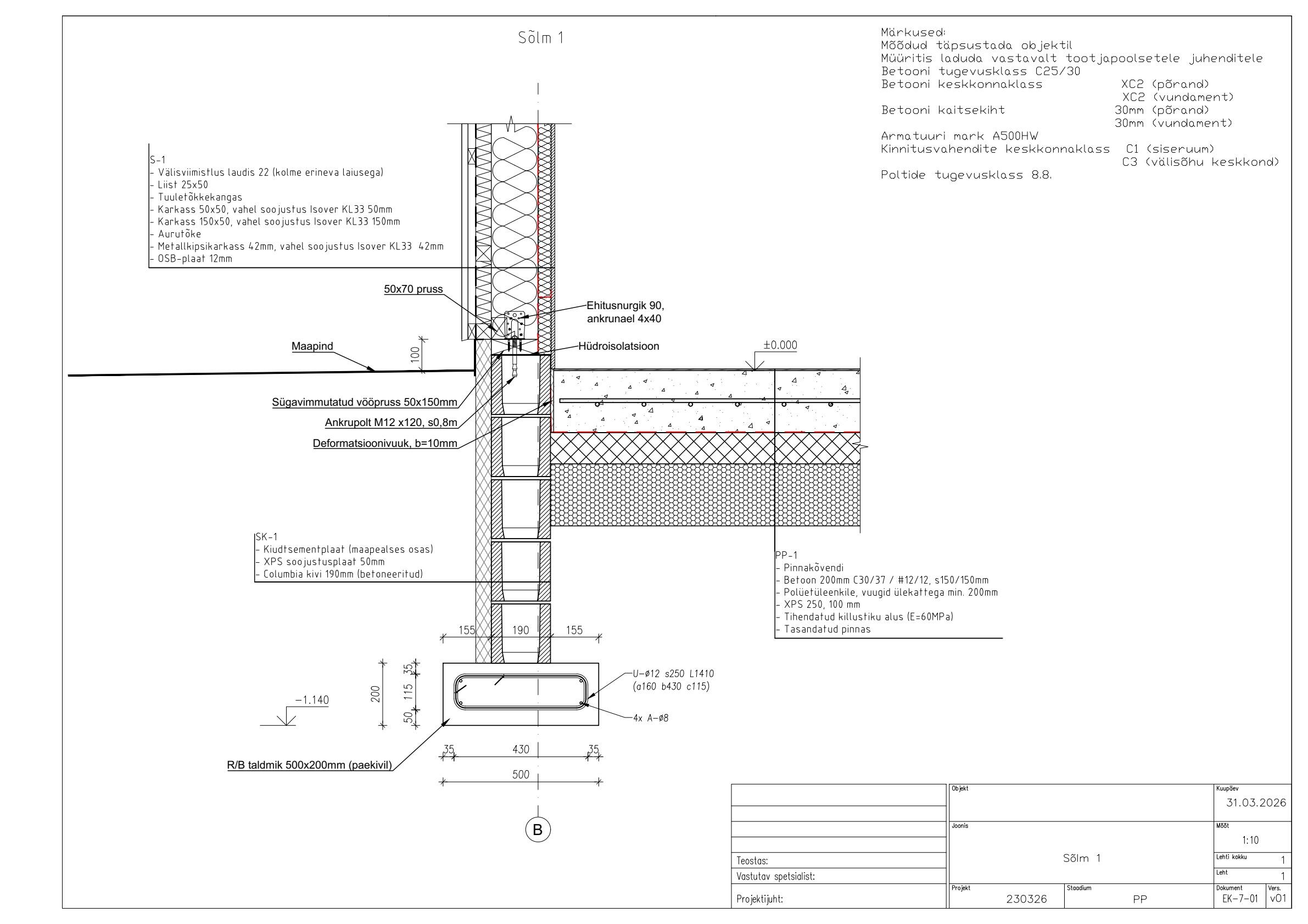
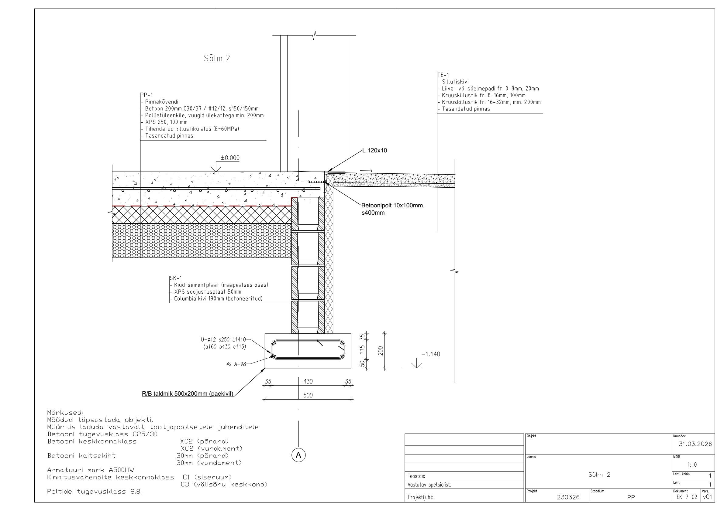
Hoone rajatakse lintvundamentidele (joonis EK-5-02). Taldmiku mõõtmed on 500×200 mm. Taldmik toetub paekivile (sügavus täpsustatakse ehitustööde käigus). Betooni klass on C25/30. Armatuuri klass on A500W.

Hoone põrandad rajatakse kihtide kaupa tihendatud killustikalusele. Aluskiht peab olema mehaaniliselt tihendatud (E = 60 MPa). Põrandaplaadi alla paigaldatakse XPS-soojustusplaat paksusega 200 mm. Põrandaplaat on monoliitsest raudbetoonist, varrasarmeeritud ühes kihis armatuuriga A500W (vt graafiline osa). Põrandaplaadid eraldatakse vertikaalsetest konstruktsioonidest deformatsioonivuukidega. Betooni klass on C30/37. Armatuuri klass on A500W.

Vundament rajatakse r/b taldmikule mõõtmetega 500×200 mm (joonised EK-5-02, EK-7-01_02). Vundamendi osa rajatakse 190 mm Columbia kivi plokkidest. Plokid betoneeritakse ja armeeritakse vastavalt tootjapoolsetele juhenditele.

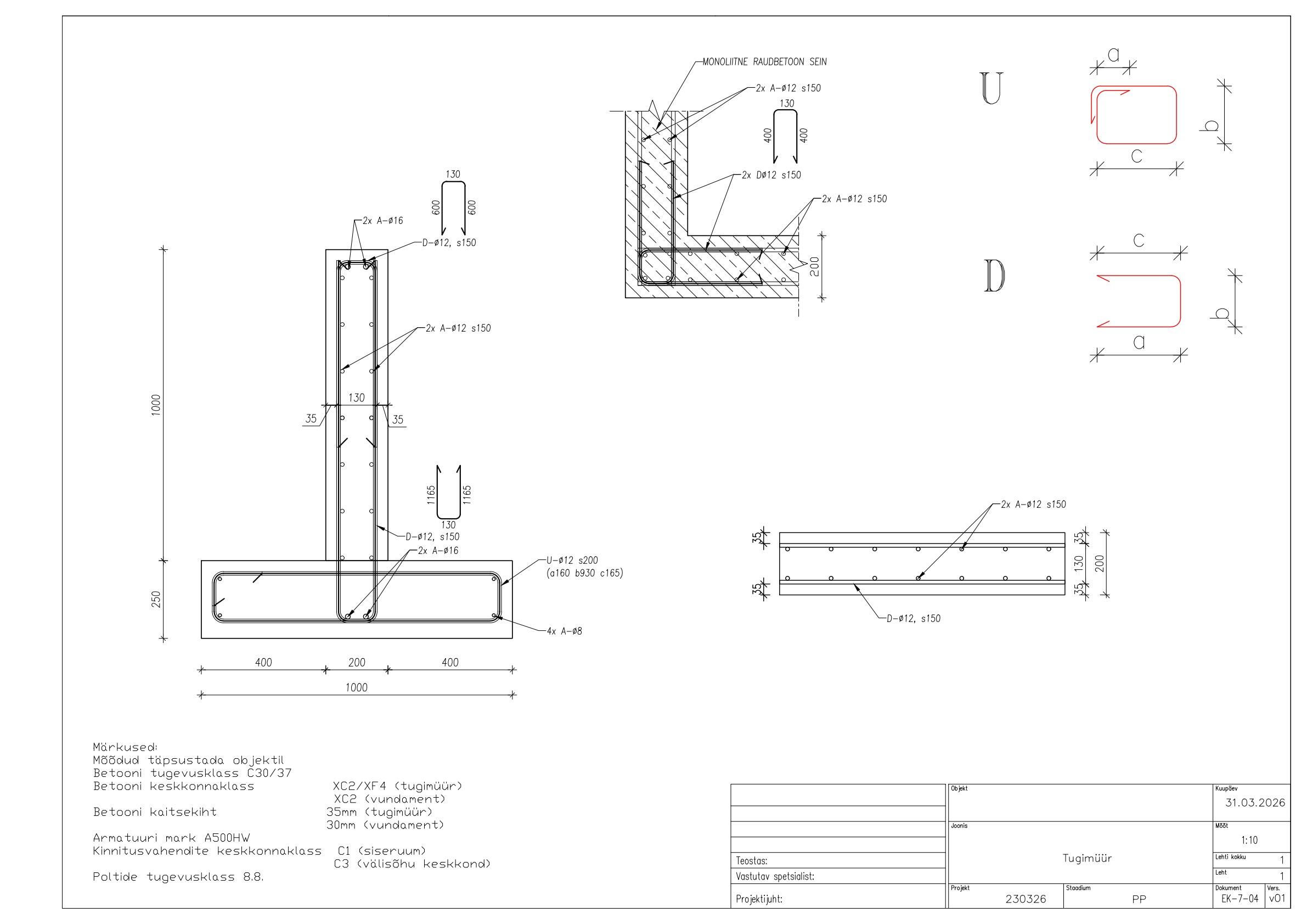
Juurdeehituse ukse ette rajatakse sillutiskivist sissesõidutee. Tee on ääristatud r/b-st tugimüüriga ning põhjaküljel paikneb sillutiskivist välistrepp. Tugimüür on r/b taldmikul mõõtmetega 1000×250 mm.
Betooni klass on C30/37. Armatuuri klass on A500W.


Soovin pakkumist vajalikele kaevetöödele ning vundamendi ning tugiseinte rajamisele.
Ligipääs on olemas oleva sillutisega sissesõidu kaudu ehk väga raske tehnikaga ligi ei pääse.

Pildid, video ja failid

Hanke korraldaja: eraisik ID73548

Pakkumised

Pakkumisi kokku: 0

Küsimused hanke korraldajale

Hanke korraldajale ei ole veel küsimusi esitatud.

Lisa küsimus

Lisa küsimus

Minu pakkumine

Reeglid

Pakkumise kirjelduse väli on mõeldud pakkumise detailsemaks lahti kirjutamiseks. Pikema teksti mugavaks sisestamiseks klikkige kasti paremal ülaservas oleval ikoonil.
Pakkumist tehes on keelatud postitada enda kontaktandmeid (nimi, telefon, aadress jne). Me jälgime ja analüüsime pakkumisi, et vältida pettuseid ja reeglite rikkumisi.
Rikkumise puhul kasutajakonto blokeeritakse.

 

Aega jäänud: 8 päeva 12h

Jälgi seda hanget

Teisi töid samas valdkonnas

Valdkonnas "Vundamenditööd" on 3 aktiivset tööd

Vundamendi soojustamine, hüdroisolatsioon ja drenaažisüsteemi renoveerimine

Asukoht: Harjumaa, Tallinn
Aega jäänud: 1p 12h
Tehtud pakkumisi: 1

Vundamendi ehitus

Asukoht: Harjumaa, Ülgase
Aega jäänud: 13p 12h
Tehtud pakkumisi: 0

Vanemad teated:

Vaata kõiki

Sellel veebilehel kasutatakse küpsiseid. Kasutamist jätkates nõustute küpsiste kasutamisega.

Sulge
 
Minu pakkumine

Reeglid

Pakkumise kirjelduse väli on mõeldud pakkumise detailsemaks lahti kirjutamiseks. Pikema teksti mugavaks sisestamiseks klikkige kasti paremal ülaservas oleval ikoonil.
Pakkumist tehes on keelatud postitada enda kontaktandmeid (nimi, telefon, aadress jne). Me jälgime ja analüüsime pakkumisi, et vältida pettuseid ja reeglite rikkumisi.
Rikkumise puhul kasutajakonto blokeeritakse.