+ Lisa oma töö      

Otsid ehitajat "Põrandaküte, paigaldus" valdkonnast?

Parima pakkumise ja teostaja leidmiseks lisa oma töö.

Põrandaküte 176 ruutu, vesi ja kanalisatsioon

ID 132584

734 vaatamist

Prindi

  • check Pakkumiste tegemine
    kuni 08.04.2026
  • check Võitja valik kuni
    18.04.2026
  • 3 Töö teostamine
    ja hinnang
Hanke lõpp: K, 8. aprill, 2026
Maakond: Harjumaa
Linn: Tallinn
Tööde lõpp: Kokkuleppel
Ehitusmaterjalid: Töö tegija poolt
Soovin pakkumisi: Summa kogu projektile

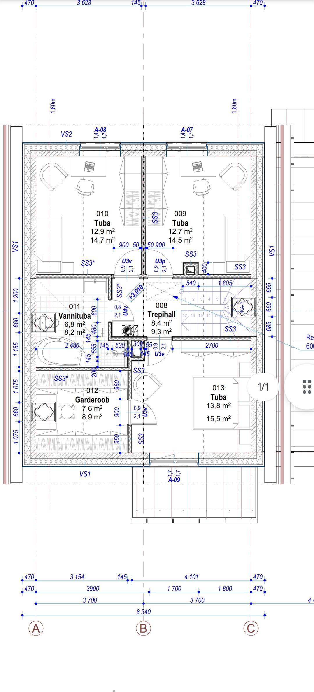
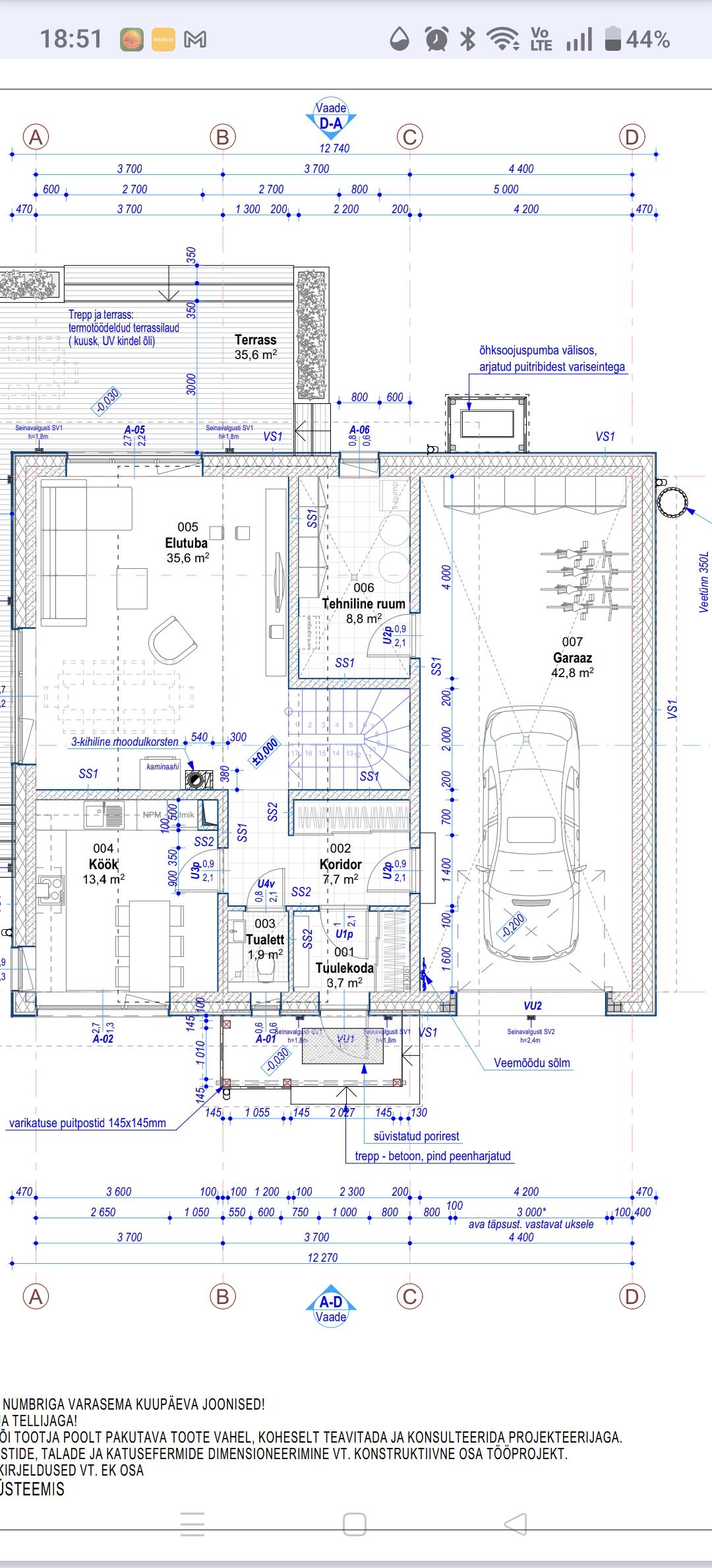
Pildid, video ja failid

Hanke korraldaja: eraisik ID97813

Pakkumised

Pakkumisi kokku: 3

Ettevõte Summa Käibemaks Lisatud Vestlus
Kasutaja ikoon ID87168
Pakkuja profiil Väike nool paremale
31 800€ Ei ole KMKR Ei ole KMKR 05.04.2026 Vestlus (0)

Pakkumise kirjeldus:

1. Põrandakütte paigaldus (vesipõhine süsteem)
Tööde sisu:
Põrandakütte torustiku paigaldus
Kollektorite paigaldus koos kapiga
Süsteemi ühendamine
Survekatse ja süsteemi kontroll
Automaatika paigaldus (termostaadid, ajamid)
2. Vee- ja kanalisatsioonitööd
Tööde sisu:
Külma ja sooja vee torustiku paigaldus
Kanalisatsioonitorustiku pai ... Rohkem

Kasutaja ikoon ID88316
Pakkuja profiil Väike nool paremale
22 865,6€ Sisaldab KM Sisaldab KM 06.04.2026 Vestlus (0)

Pakkumise kirjeldus:

materjal kokku: 9 690 €
töö kokku: 8 750 €
kokku ilma KM-ta: 18 440 €
KM 24%: 4425,60 €
kokku koos KM-ga: 22 865,60 €

Kasutaja ikoon ID95593
Pakkuja profiil Väike nool paremale
11 316€ KM lisandub KM lisandub 08.04.2026 Vestlus (0)

Pakkumise kirjeldus:

Tere . tööraha hind, alustada saab kohe.
Lugupidamisega.

Küsimused hanke korraldajale

Küsimus: private ID87642   05.04.2026 19:48
Tere!
Kas vajalik ka hankes küsitud tööde vaheline ettevalmistus (liivapõhi, eps, armatuur, betoneerimine jne)?

Teavita reeglite rikkumisest

Korraldaja vastus: 05.04.2026 20:01

Esimese korruse põrandal on liiv olemas ja kõrgus paigas, küll aga vee ja kanalisatsiooni torude paigaldamiseks on vaja kaevata ja hiljem siluda, paigaldada eps, armatuur ja põrandaküte. Teise korruse põrand on betoonist õõnespaneelid, paigaldada armatuur ja põrandaküte. Betoneerida pole vaja.

Teavita reeglite rikkumisest

Küsimus: private ID31957   06.04.2026 09:42
Tere,

Lisaga palun eriosade joonised.
vesi, küte ja kanal.

Lugupidamisega

Teavita reeglite rikkumisest

Korraldaja vastus:
Hanke korraldaja ei ole küsimusele veel vastanud

Küsimus: private ID1058   08.04.2026 09:47
Tere
Epsi paksus, armatuuri läbimõõt ? Teine korrus äkki 5cm müravill ja kipsivalu.Kipsivalu saab ka esimesele korrusele paigaldada, plussid-õhem(kergem), ei vaja armatuuri,

Teavita reeglite rikkumisest

Korraldaja vastus:
Hanke korraldaja ei ole küsimusele veel vastanud

Lisa küsimus

Lisa küsimus

Minu pakkumine

Reeglid

Pakkumise kirjelduse väli on mõeldud pakkumise detailsemaks lahti kirjutamiseks. Pikema teksti mugavaks sisestamiseks klikkige kasti paremal ülaservas oleval ikoonil.
Pakkumist tehes on keelatud postitada enda kontaktandmeid (nimi, telefon, aadress jne). Me jälgime ja analüüsime pakkumisi, et vältida pettuseid ja reeglite rikkumisi.
Rikkumise puhul kasutajakonto blokeeritakse.

 

Vanemad teated:

Vaata kõiki

Sellel veebilehel kasutatakse küpsiseid. Kasutamist jätkates nõustute küpsiste kasutamisega.

Sulge
 
Minu pakkumine

Reeglid

Pakkumise kirjelduse väli on mõeldud pakkumise detailsemaks lahti kirjutamiseks. Pikema teksti mugavaks sisestamiseks klikkige kasti paremal ülaservas oleval ikoonil.
Pakkumist tehes on keelatud postitada enda kontaktandmeid (nimi, telefon, aadress jne). Me jälgime ja analüüsime pakkumisi, et vältida pettuseid ja reeglite rikkumisi.
Rikkumise puhul kasutajakonto blokeeritakse.