+ Lisa oma töö      

Otsid ehitajat "Üldehitus" valdkonnast?

Parima pakkumise ja teostaja leidmiseks lisa oma töö.

Eramaja juurdeehitus

ID 132530

244 vaatamist

Prindi

  • 1 Pakkumiste tegemine
    kuni 12.04.2026
  • 2 Võitja valik kuni
    22.04.2026
  • 3 Töö teostamine
    ja hinnang
Hanke lõpp: P, 12. aprill, 2026
Maakond: Saaremaa
Linn: Kuressaare
Tööde lõpp: Kokkuleppel
Ehitusmaterjalid: Töö tellija poolt
Soovin pakkumisi: Summa kogu projektile

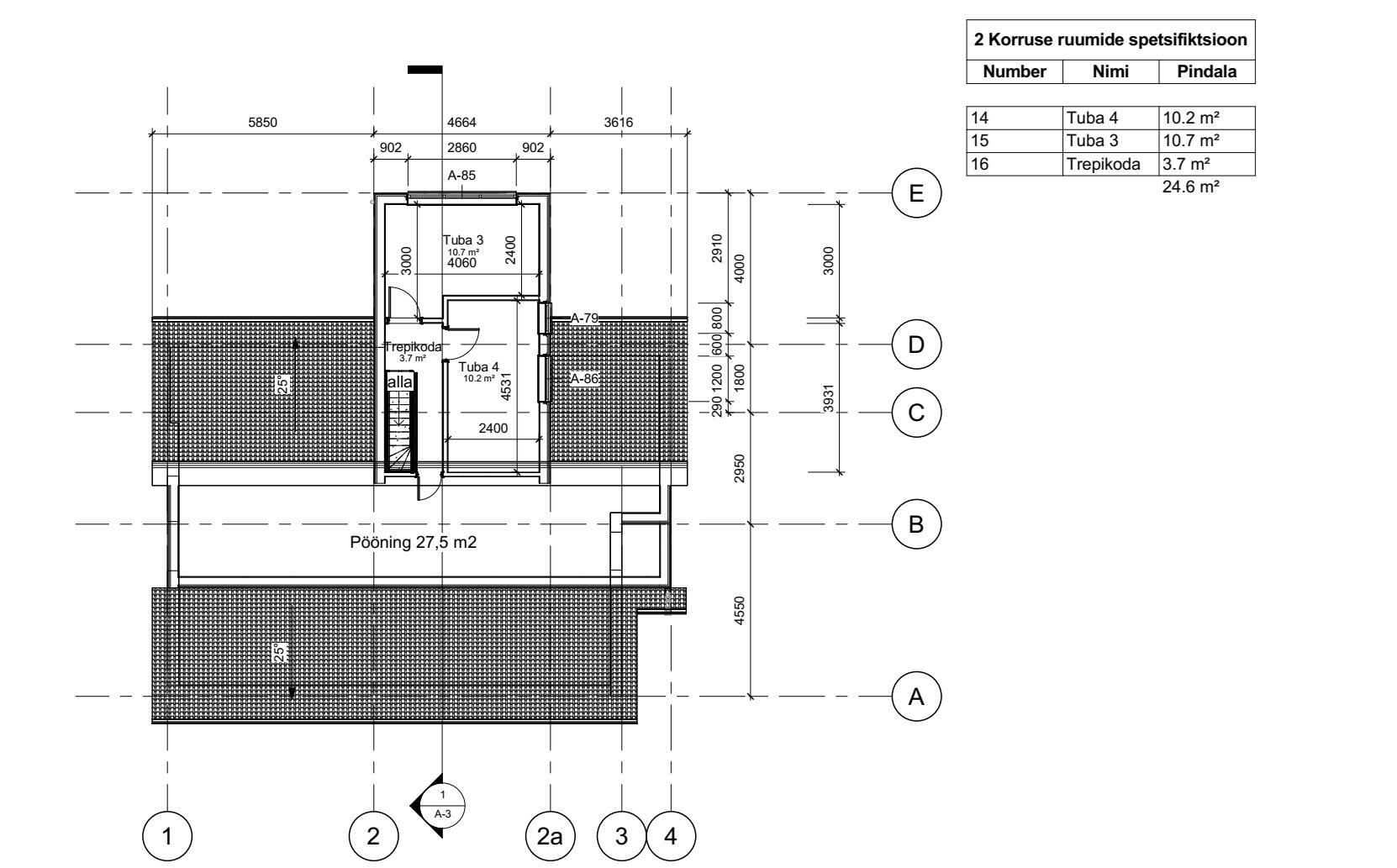
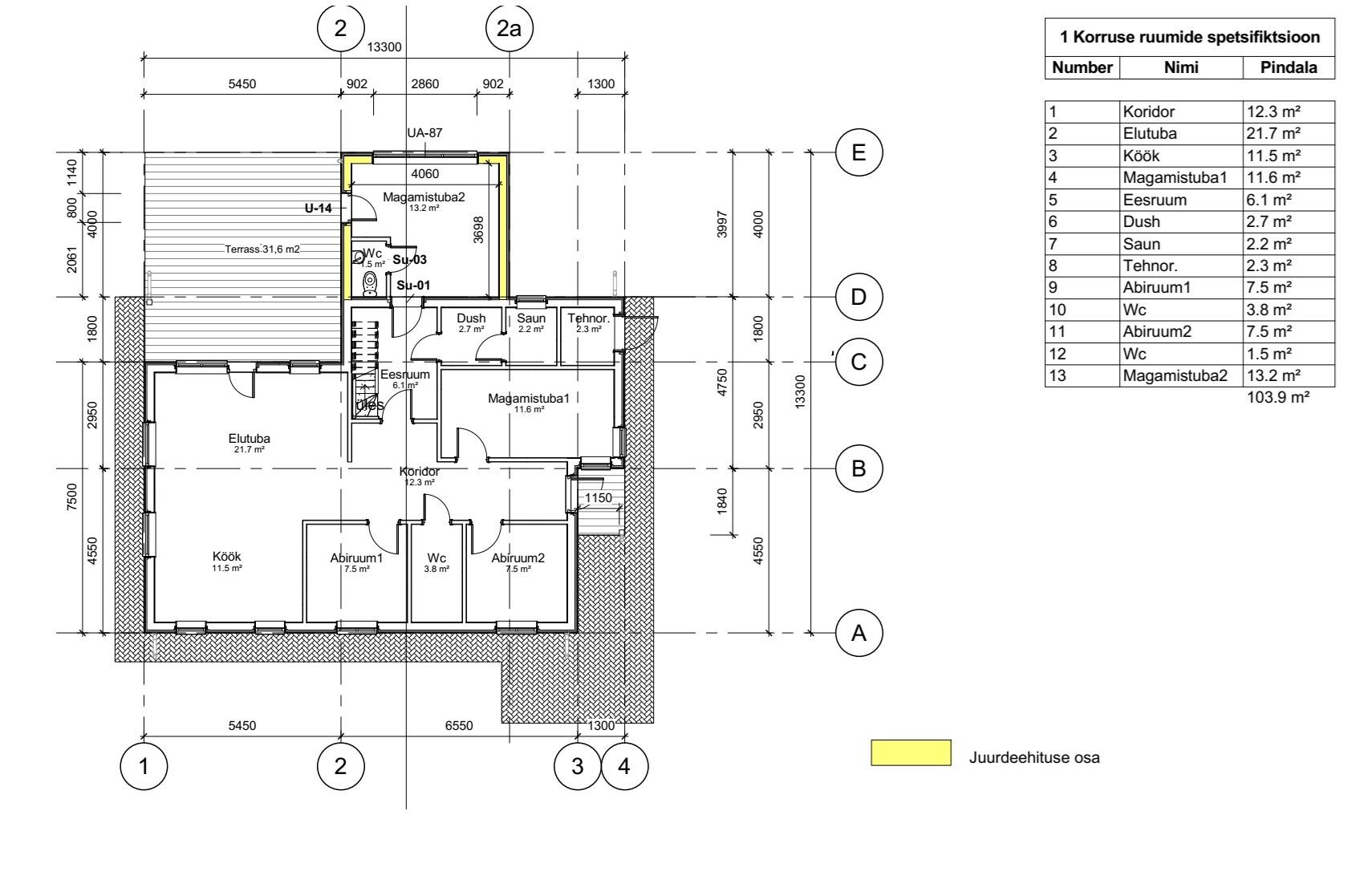
Töö sisu

Vundamendi rajamine:
Armeeritud betoonist taldmikule paksusega 200mm rajatakse Fibo5-300mm plokist metallvõrguga
armeeritud vundament. Põhikonstruktsioon soojustatakse väljastpoolt 100mm. EPS-120 Perimeeter
isolatsiooniplaadiga. Sokkel kaetakse krohviga.

Põrand pinnasel:
Monoliitne raudbetoon konstruktsioonil põrand: tihendatud killustik 200mm, tihendatud liivalus, vahtpolüstürool EPS-80 200mm, kile (liugekiht), küttetorustik - R/B 100mm.
Pinnase eemaldus ja utiliseerimine.

Krundi sisese lisakanalisatsiooni rajamine umbes 25m magistraalini (teise WC jaoks).
Ülejäänud pinnase utiliseerimine.

Välisseinad VS-1: Puitsõrestiksein 50x200 ja kivivill, puitroovitus 50x50 ja kivivill, tuuletökkekangas,
distantsliist, voodrilaud peensaetud. Seest; aurutõkkekile, OSB 15Kipsplaat.
Näriliste tõke all ja ülal. Värskeõhku klapid 3tk.

Katus: Kiviprofiil plekk, tuulutus, 50x50, roovitus 25x100, hingav aluskate, sarikas 50x200 materjalis 15 kraadise nurga all.

Vana katuse ja fermide eemaldus juurdeehitava osa ulatuses. Fermide ümberehitus ja tugevdamine.
Ventilatsiooni torude ümberpaigutus ja katusest läbiviimine.

Vahelagi: põrandatalad 50x200 ja kivivill, ülesse roovitus 50x100, OSB 22 ja põrandaküte kuivmeetodil; Alla aurutõke ja roovitus 25x100

Trepi jaoks avavuse rajamine.

Siseseinad: 50x100 puitkarkass koos kivivllaga, OSB 15, kipsplaat. Akende põsed ja aknalauad.

Aknad ja uksed: Paigaldus, aknad(5-6tk) ja siseuksed koos lengiga(5tk) Aknad ja uksed ostab hanke korraldaja

Tuulekastid, nurgalauad,akende piirdeliistud ja põsed. Aknaplekid.

Lisatööd: kokkuleppel

Pakkumises tuua eraldi välja tööhind ja materjali hind.

Pildid, video ja failid

Hanke korraldaja: eraisik ID68019

Pakkumised

Pakkumisi kokku: 0

Küsimused hanke korraldajale

Hanke korraldajale ei ole veel küsimusi esitatud.

Lisa küsimus

Lisa küsimus

Minu pakkumine

Reeglid

Pakkumise kirjelduse väli on mõeldud pakkumise detailsemaks lahti kirjutamiseks. Pikema teksti mugavaks sisestamiseks klikkige kasti paremal ülaservas oleval ikoonil.
Pakkumist tehes on keelatud postitada enda kontaktandmeid (nimi, telefon, aadress jne). Me jälgime ja analüüsime pakkumisi, et vältida pettuseid ja reeglite rikkumisi.
Rikkumise puhul kasutajakonto blokeeritakse.

 

Aega jäänud: 1 päeva 12h

Jälgi seda hanget

Teisi töid samas valdkonnas

Valdkonnas "Üldehitus" on 43 aktiivset tööd

Hoonest savi-liiva kihi eemaldamine ja utiliseerimine

Asukoht: Viljandimaa, Polli
Aega jäänud: 2p 12h
Tehtud pakkumisi: 4

Lammutustööd

Asukoht: Harjumaa, Tallinn
Aega jäänud: 1p 12h
Tehtud pakkumisi: 4

Vanemad teated:

Vaata kõiki

Sellel veebilehel kasutatakse küpsiseid. Kasutamist jätkates nõustute küpsiste kasutamisega.

Sulge
 
Minu pakkumine

Reeglid

Pakkumise kirjelduse väli on mõeldud pakkumise detailsemaks lahti kirjutamiseks. Pikema teksti mugavaks sisestamiseks klikkige kasti paremal ülaservas oleval ikoonil.
Pakkumist tehes on keelatud postitada enda kontaktandmeid (nimi, telefon, aadress jne). Me jälgime ja analüüsime pakkumisi, et vältida pettuseid ja reeglite rikkumisi.
Rikkumise puhul kasutajakonto blokeeritakse.