+ Lisa oma töö      

Otsid ehitajat "Lammutustööd" valdkonnast?

Parima pakkumise ja teostaja leidmiseks lisa oma töö.

Hange on lõppenud!

Võitjaks osutus kasutaja ID 49626

Korteri seinte ja põrandalaagideni lammutus (v.a. kandev sein)

ID 132052

779 vaatamist

Prindi

  • check Pakkumiste tegemine
    kuni 12.04.2026
  • check Võitja valik kuni
    22.04.2026
  • 3 Töö teostamine
    ja hinnang
Hanke lõpp: P, 12. aprill, 2026
Maakond: Harjumaa
Linn: Tallinn
Tööde lõpp: Kokkuleppel
Ehitusmaterjalid: Töö tegija poolt
Soovin pakkumisi: Summa kogu projektile

Töö sisu

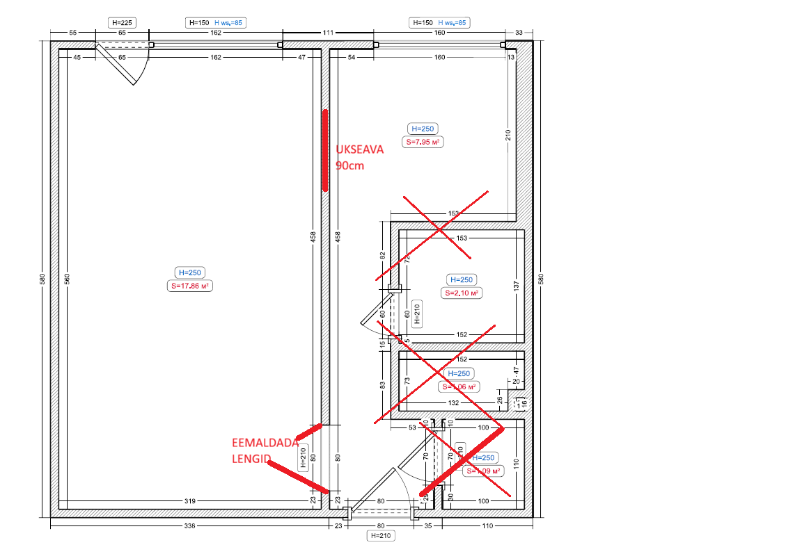
Soovin saada pakkumist 1-toalise (30 m²) korteri täielikuks lammutamiseks kuni krohvi ja põrandalaagideni (v.a. kandev sein).

Korter asub Tallinnas, Mustamäel, Tammsaare teel, nõukogudeaegses paneelmajas 4. korrusel.

Eesmärk on eemaldada kõik mittekandvad konstruktsioonid. Säilima peab ainult kandev sein, kuhu on planeeritud ühe ava tegemine.

Tööde loetelu:

- WC ja vannitoa lammutamine (betoonist sisse tõstetud ruumielement)
- Esiku panipaiga (nn konku) lammutamine koos seinte ja uksega
- Koridori ülemise kapi lammutamine
- Kõikide siseuste eemaldamine koos lengidega
- Ava tegemine kandvasse seina (laius 90 cm)
- Kogu lammutusest tekkiva prügi ning korteris olevate esemete (kardinapuud, vann, valamu, kapid, gaasipliit, vaip jms) utiliseerimine

Kõik töödeks vajalikud materjalid ja vahendid hangib töövõtja.

Pakkumus peab sisaldama:

- tööde kogumaksumust (sh kõik kulud)
- tööde teostamise orienteeruvat ajakulu
- garantiid teostatud töödele

Pildid, video ja failid

Hanke korraldaja: eraisik ID97545

Pakkumised

Pakkumisi kokku: 6

Ettevõte Summa Käibemaks Lisatud Vestlus
Kasutaja ikoon ID92279
Pakkuja profiil Väike nool paremale
2 900€ KM lisandub KM lisandub 29.03.2026 Vestlus (0)

Pakkumise kirjeldus:

Tere!
Kõik hinnas: lammutustööd, äravedu ja utiliseerimine.
Lugupidamisega

Kasutaja ikoon ID49626
Pakkuja profiil Väike nool paremale
2 450€ KM lisandub KM lisandub 29.03.2026 Vestlus (12)

Pakkumise kirjeldus:

Pakkumine sisaldab:
1. Vannitoa kabiini täielikku lammutust ning jäätmete utiliseerimist.
2. Koridori ülemise kapi lammutamist
3. Esiku panipaiga (nn konku) lammutamist koos seinte ja uksega
4. Koridori ülemise kapi lammutamist
5. Kõikide siseuste eemaldamist koos lengidega
6. Ava tegemist kandvasse seina (laius 90 cm)
7. Kogu lammutusest ... Rohkem

Kasutaja ikoon ID95587
Pakkuja profiil Väike nool paremale
4 800€ Sisaldab KM Sisaldab KM 29.03.2026 Vestlus (0)

Pakkumise kirjeldus:

Tegin pakkumise.Hind sisaldab käibemaksu,utiliseerimist ja kõike muud.Ca nädalaga oleks korter puhas täielikult.

Kasutaja ikoon ID77501
Pakkuja profiil Väike nool paremale
2 800€ KM lisandub KM lisandub 01.04.2026 Vestlus (0)

Pakkumise kirjeldus:

Tere,

Meie ettevõttel on hea meel pakkuda abi teie tööde teostamisel ning esitame allpool oma umbkaudse hinnapakkumise.

Hind sisaldab kõiki ülalnimetatud töid, transpordikulusid ning jäätmete äravedu.

Kõigile töödele kehtib 2-aastane garantii. Kõik ametlikud aktid ja tööde üleandmine-allkirjastamine toimuvad mõlema poole esindajate ... Rohkem

Kasutaja ikoon ID88169
Pakkuja profiil Väike nool paremale
2 700€ Ei ole KMKR Ei ole KMKR 01.04.2026 Vestlus (9)
Kasutaja ikoon ID44127
Pakkuja profiil Väike nool paremale
5 000€ KM lisandub KM lisandub 12.04.2026 Vestlus (0)

Pakkumise kirjeldus:

Tere, Kõik Hinnas pakkumine!

Küsimused hanke korraldajale

Küsimus: private ID49626   29.03.2026 13:33
Ava tegemine kandvasse seina - kas projekt ja luba olemas? Kui jah siis kas projektis on ettenähtud sillus?
Põranda laagid - kui tegu tavalise paneelikaga siis ei jää mingeid laage alles :) . Põrand siis ikka paneelini puhtaks oli Teie mõte !? Neljas korrus kuid kas viiekordses majas ( lifti ei ole ) või 9 kordses ( lift olemas ) ? Aitäh

Teavita reeglite rikkumisest

Korraldaja vastus: 29.03.2026 15:17

Tere! Aitäh küsimuste eest. Ehitusprojekt on inseneriga kooskõlastatud ja hetkel just tegemisel. Peaks saama valmis nädala jooksul. Suure tõenäosusega võib tulla sillus.
Tänud täpsustamast laagide osa, siis jah ikka paneelini puhtaks, et saaks uue põranda teha.
Neljas korrus on 5-korruselises majas ja ilma liftita.

Teavita reeglite rikkumisest

Küsimus: private ID49626   29.03.2026 15:36
Aitäh kiire vastuse eest. Sellise ava saab teha ilma silluseta kui teistes korterites ei ole sellel kohal ava veel tehtud. Oleme neid omajagu teinud. Teen pakkumise kuid kahjuks väikse erandiga ehk siis lugege pakkumist. Edu hankega!

Teavita reeglite rikkumisest

Korraldaja vastus:
Hanke korraldaja ei ole küsimusele veel vastanud

Lisa küsimus

Lisa küsimus

Minu pakkumine

Reeglid

Pakkumise kirjelduse väli on mõeldud pakkumise detailsemaks lahti kirjutamiseks. Pikema teksti mugavaks sisestamiseks klikkige kasti paremal ülaservas oleval ikoonil.
Pakkumist tehes on keelatud postitada enda kontaktandmeid (nimi, telefon, aadress jne). Me jälgime ja analüüsime pakkumisi, et vältida pettuseid ja reeglite rikkumisi.
Rikkumise puhul kasutajakonto blokeeritakse.

 

Teisi töid samas valdkonnas

Valdkonnas "Lammutustööd" on 6 aktiivset tööd

Keldri bokside ja elektri eemaldamine

Asukoht: Tartumaa, Tartu
Aega jäänud: 2p 20h
Tehtud pakkumisi: 13

Aia lammutus

Asukoht: Harjumaa, Tallinn
Aega jäänud: 2p 20h
Tehtud pakkumisi: 11

Vanemad teated:

Vaata kõiki

Sellel veebilehel kasutatakse küpsiseid. Kasutamist jätkates nõustute küpsiste kasutamisega.

Sulge
 
Minu pakkumine

Reeglid

Pakkumise kirjelduse väli on mõeldud pakkumise detailsemaks lahti kirjutamiseks. Pikema teksti mugavaks sisestamiseks klikkige kasti paremal ülaservas oleval ikoonil.
Pakkumist tehes on keelatud postitada enda kontaktandmeid (nimi, telefon, aadress jne). Me jälgime ja analüüsime pakkumisi, et vältida pettuseid ja reeglite rikkumisi.
Rikkumise puhul kasutajakonto blokeeritakse.